| ||||||||||||||||||||||||||||||||
Скачать СН 460-74 Раздел 7. Отопление и вентиляцияДата актуализации: 10.08.2017
|
| Обозначение: | СН 460-74 |
| Обозначение англ: | SN 460-74 |
| Статус: | не действует |
| Название рус.: | Раздел 7. Отопление и вентиляция |
| Дата добавления в базу: | 01.09.2013 |
| Дата актуализации: | 05.05.2017 |
| Дата введения: | 12.08.1986 |
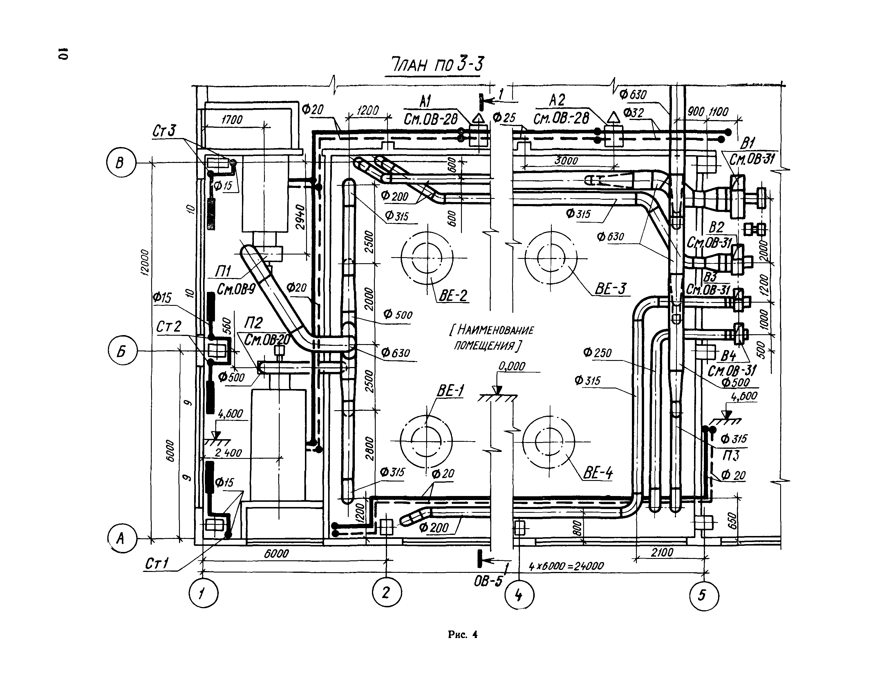
| Область применения: | Документ устанавливает состав и правила оформления рабочих чертежей отопления и вентиляции зданий и сооружений |
| Оглавление: | 1. Область применения 2. Состав основного комплекта рабочих чертежей и общие правила их оформления 3. Общие данные (заглавный лист) 4. Планы и разрезы систем отопления и вентиляции 5. Схемы систем вентиляции 6. Схемы систем отопления 7. Планы и разрезы отопительно-вентиляционных установок 8. Чертежи общих видов нетиповых конструкций и нестандартизированного оборудования |
| Разработан: | Сантехпроект Госстроя СССР Промстройпроект |
| Утверждён: | 29.05.1974 Госстрой СССР (Государственный комитет Совета Министров СССР по делам строительства) (USSR Gosstroy 111) |
| Издан: | Стройиздат (1975 г. ) |
| Расположен в: | |
| Чем заменён: |
|
























