Информационная система
«Ёшкин Кот»

Скачать базу одним архивом
Скачать обновления
История создания базы
Карта сайта

Скачать Типовой проект 902-1-65 Альбом IV. Часть 2. Изделия. Подземная часть

Дата актуализации: 10.08.2017

Типовой проект 902-1-65

Альбом IV. Часть 2. Изделия. Подземная часть

Обозначение: Типовой проект 902-1-65
Обозначение англ: 902-1-65
Статус:действует
Название рус.:Альбом IV. Часть 2. Изделия. Подземная часть
Дата добавления в базу:01.09.2013
Дата актуализации:05.05.2017
Дата введения:01.11.1982
Оглавление:ТП 902-1-65-КЖИ-ДО Содержание листов выпуска
ТП 902-1-65-КЖИ-ТТ1 Технические требования к изготовлению сборных железобетонных изделий
ТП 902-1-65-КЖИ-ТТ2 Технические требования к изготовлению арматурных и закладных изделий
ТП 902-1-65-КЖИ-ВС Ведомость расхода стали
ТП 902-1-65-КЖИ-У Узлы 1-7
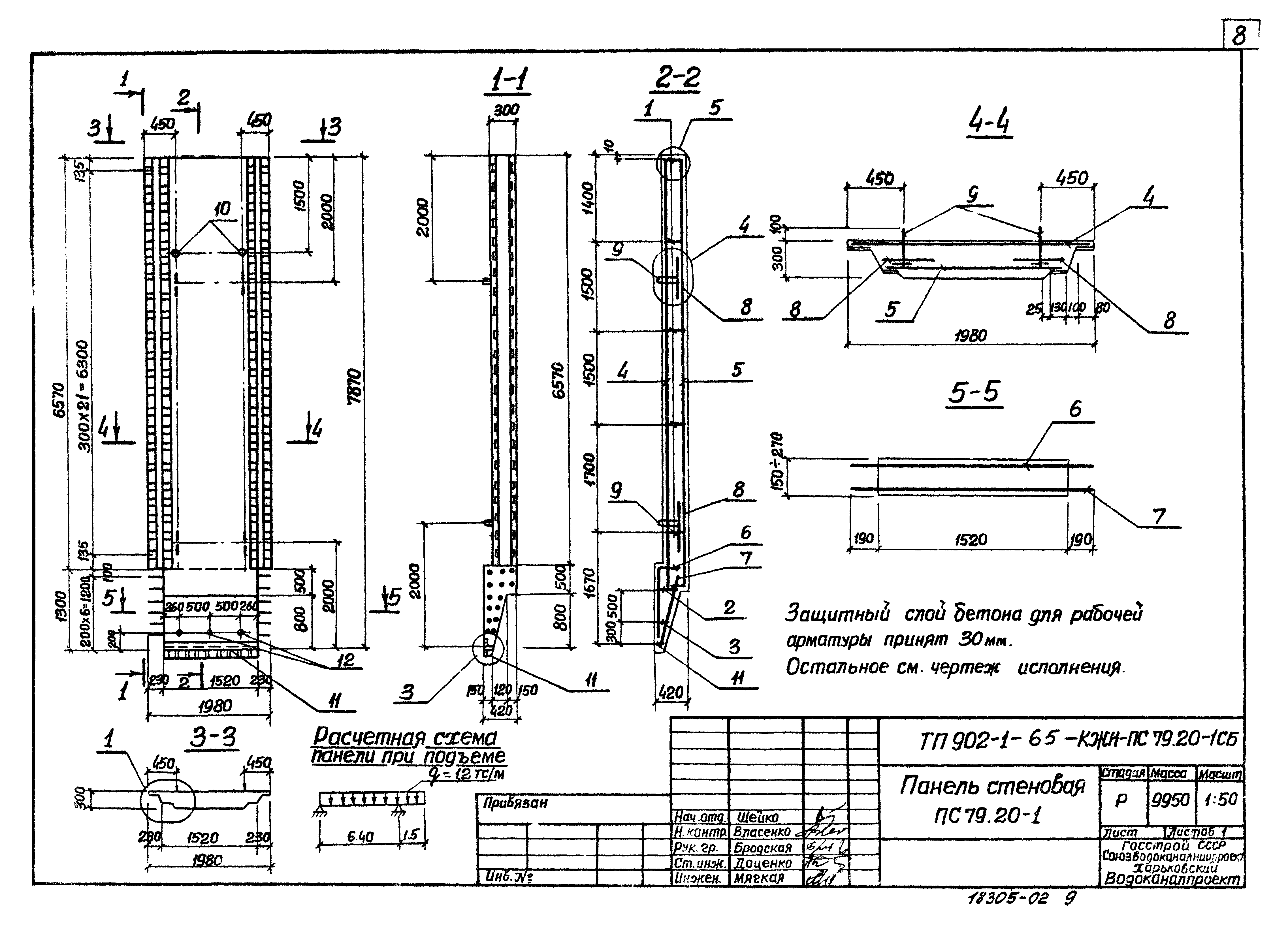
ТП 902-1-65-КЖИ-ПС79.20-1 Панель стеновая ПС79.20-1
ТП 902-1-65-КЖИ-ПС79.20-2 Панель стеновая ПС79.20-2
ТП 902-1-65-КЖИ-ПС79.20-1СБ Панель стеновая ПС79.20-1СБ
ТП 902-1-65-КЖИ-ПС79.20-2СБ Панель стеновая ПС79.20-2СБ
ТП 902-1-65-КЖИ-ПС79.20-1(2)-01 Панель стеновая ПС79.20-1(2)-01
ТП 902-1-65-КЖИ-ПС79.20-1(2)-02 Панель стеновая ПС79.20-1(2)-02
ТП 902-1-65-КЖИ-ПС79.20-1(2)-03 Панель стеновая ПС79.20-1(2)-03
ТП 902-1-65-КЖИ-ПС79.20-1(2)-04 Панель стеновая ПС79.20-1(2)-04
ТП 902-1-65-КЖИ-ПС79.20-1(2)-05 Панель стеновая ПС79.20-1(2)-05
ТП 902-1-65-КЖИ-ПС79.20-1(2)-06 Панель стеновая ПС79.20-1(2)-06
ТП 902-1-65-КЖИ-ПС79.20-1(2)-07 Панель стеновая ПС79.20-1(2)-07
ТП 902-1-65-КЖИ-ПС79.20-1(2)-08 Панель стеновая ПС79.20-1(2)-08
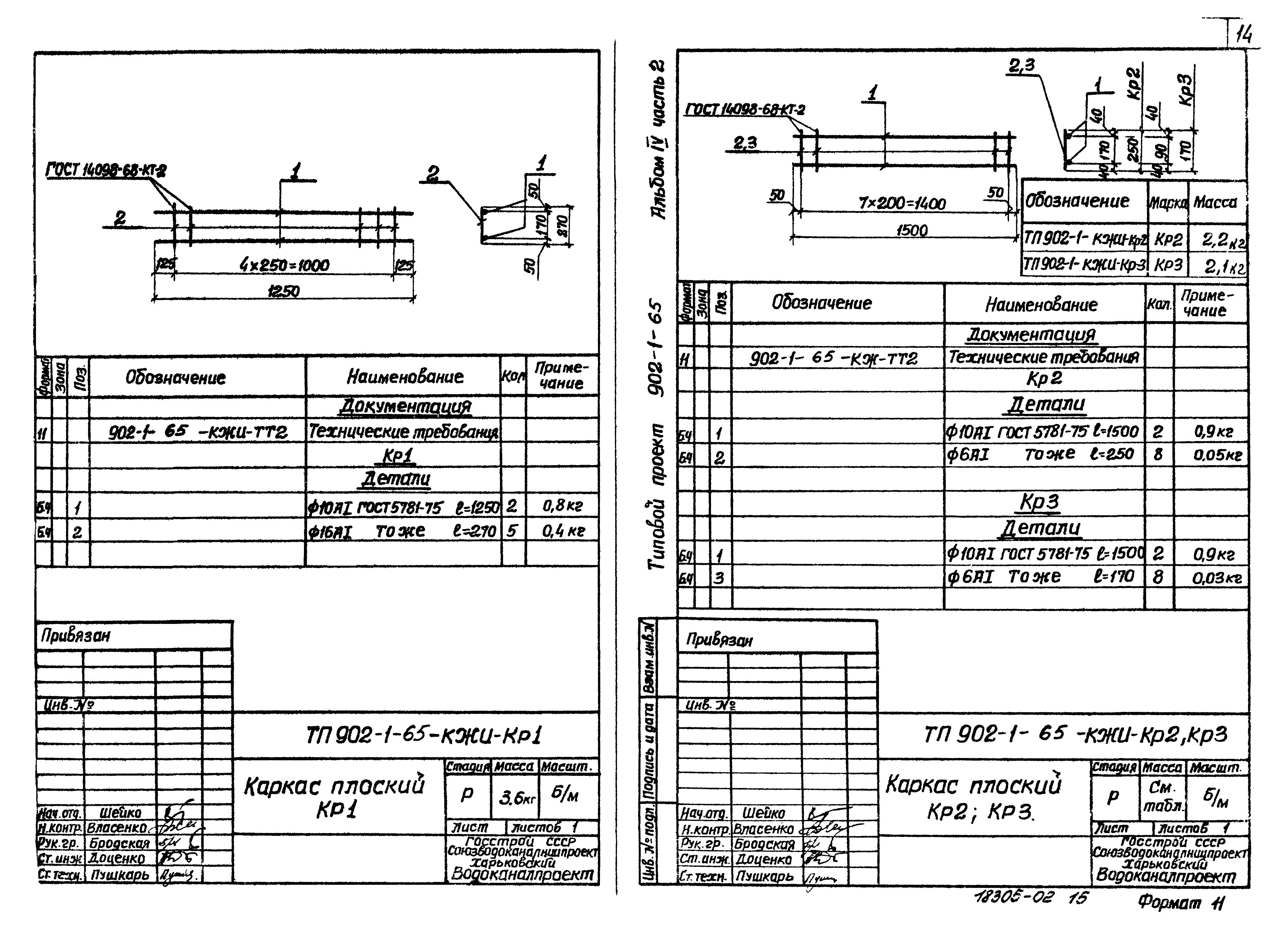
ТП 902-1-65-КЖИ-КР1 Каркас плоский КР1
ТП 902-1-65-КЖИ-КР2,КР3 Каркас плоский КР2,КР3
ТП 902-1-65-КЖИ-С1 Сетка арматурная С1
ТП 902-1-65-КЖИ-С2 Сетка арматурная С2
ТП 902-1-65-КЖИ-С3 Сетка арматурная С3
ТП 902-1-65-КЖИ-С4 Сетка арматурная С4
ТП 902-1-65-КЖИ-С5 Сетка арматурная С5
ТП 902-1-65-КЖИ-С6 Сетка арматурная С6
ТП 902-1-65-КЖИ-МН2 Изделие закладное МН2
ТП 902-1-65-КЖИ-МН1 Изделие закладное МН1
ТП 902-1-65-КЖИ-МН4 Изделие закладное МН4
ТП 902-1-65-КЖИ-МН3 Изделие закладное МН3
ТП 902-1-65-КЖИ-МН5 Изделие закладное МН5
ТП 902-1-65-КЖИ-МС1 Изделие соединительное МС1
ТП 902-1-65-КЖИ-МС2 Изделие соединительное МС2
ТП 902-1-65-КЖИ-МС3 Изделие соединительное МС3
ТП 902-1-65-КЖИ-МС4 Изделие соединительное МС4
ТП 902-1-65-КЖИ-МС5 Изделие соединительное МС5
ТП 902-1-65-КЖИ-МС6 Изделие соединительное МС6
ТП 902-1-65-КЖИ-МС7 Изделие соединительное МС7
ТП 902-1-65-КЖИ-МС8 Изделие соединительное МС8
ТП 902-1-65-КЖИ-МС9 Изделие соединительное МС9
ТП 902-1-65-КЖИ-МС10 Изделие соединительное МС10
Разработан: Харьковский Водоканалпроект
Утверждён:29.04.1982 Главпромстройпроект Госстроя СССР (15)
Расположен в:Техническая документация Строительство Справочные документы Типовые строительные конструкции, изделия и узлы Общероссийский строительный каталог Промышленные предприятия, здания и сооружения Здания и сооружения санитарно-технические Канализация Станции насосные Станции насосные для перекачки бытовых сточных вод
Типовой проект 902-1-65Типовой проект 902-1-65Типовой проект 902-1-65Типовой проект 902-1-65Типовой проект 902-1-65Типовой проект 902-1-65Типовой проект 902-1-65Типовой проект 902-1-65Типовой проект 902-1-65Типовой проект 902-1-65Типовой проект 902-1-65Типовой проект 902-1-65Типовой проект 902-1-65Типовой проект 902-1-65Типовой проект 902-1-65Типовой проект 902-1-65Типовой проект 902-1-65Типовой проект 902-1-65Типовой проект 902-1-65Типовой проект 902-1-65Типовой проект 902-1-65Типовой проект 902-1-65Типовой проект 902-1-65Типовой проект 902-1-65Типовой проект 902-1-65Типовой проект 902-1-65Типовой проект 902-1-65

© 2013 Ёшкин Кот :-) Карта сайта