Информационная система
«Ёшкин Кот»

Скачать базу одним архивом
Скачать обновления
История создания базы
Карта сайта

Скачать Типовой проект 902-1-62 Альбом III. Строительные решения. Подземная часть (монолитный вариант)

Дата актуализации: 10.08.2017

Типовой проект 902-1-62

Альбом III. Строительные решения. Подземная часть (монолитный вариант)

Обозначение: Типовой проект 902-1-62
Обозначение англ: 902-1-62
Статус:действует
Название рус.:Альбом III. Строительные решения. Подземная часть (монолитный вариант)
Дата добавления в базу:01.09.2013
Дата актуализации:05.05.2017
Дата введения:01.10.1982
Оглавление:ТП 902-1-62 Содержание
ТП 902-1-62-КЖ Основной комплект марки КЖ
ТП 902-1-62-КЖ-1 Общие данные
ТП 902-1-62-КЖ-2 Планы на отм. -3.600 и -6.900 Разрезы 1-1,2-2 (открытый способ в сухих и мокрых грунтах)
ТП 902-1-62-КЖ-3 Планы на отм. -3.600 и -6.900 Разрезы 1-1,2-2 (опускной способ в мокрых грунтах)
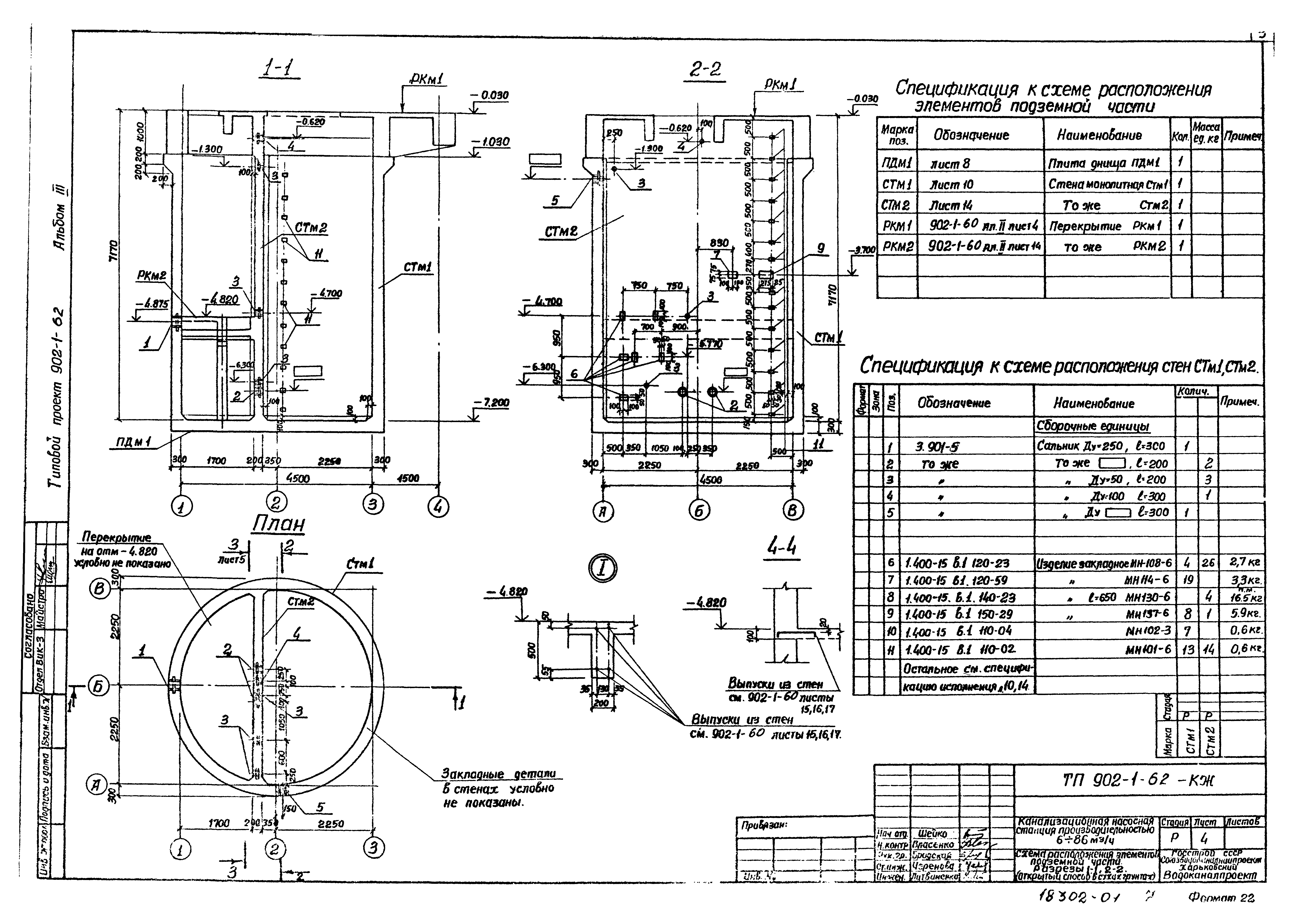
ТП 902-1-62-КЖ-4 Схема расположения элементов подземной части. Разрезы 1-1,2-2 (открытый способ в сухих грунтах)
ТП 902-1-62-КЖ-5 СТМ1. Развертка. Разрез 3-3 (открытый способ в сухих грунтах)
ТП 902-1-62-КЖ-6 Схема расположения элементов подземной части. Разрезы 1-1,2-2 (опускной способ в мокрых грунтах)
ТП 902-1-62-КЖ-7 СТМ1. Развертка. Разрез 3-3 (опускной способ в мокрых грунтах)
ТП 902-1-62-КЖ-8 Плита днища ПДМ1. Схема армирования (открытый способ в сухих грунтах)
ТП 902-1-62-КЖ-9 Плита днища ПДМ1. Схема армирования (открытый способ в мокрых грунтах)
ТП 902-1-62-КЖ-10 СТМ1. Схема армирования (открытый способ в сухих грунтах)
ТП 902-1-62-КЖ-11 СТМ1. Схема армирования и расположения выпусков. Узлы 1-3 (открытый способ в сухих грунтах)
ТП 902-1-62-КЖ-12 СТМ1. Схема армирования (опускной способ в мокрых грунтах)
ТП 902-1-62-КЖ-13 СТМ1. Схема армирования и расположения выпусков. Узлы 1-2 (опускной способ в мокрых грунтах)
ТП 902-1-62-КЖ-14 СТМ2. Схема армирования
ТП 902-1-62-КМ Основной комплект марки КМ
ТП 902-1-62-КМ-1 Общие данные
ТП 902-1-62-КМ-2 Схемы расположения металлических лестниц и лестничных площадок
ТП 902-1-62-КМ-3 Схемы расположения лестниц. Сечения 1-1÷7-7. Узел 1
Разработан: Харьковский Водоканалпроект
Утверждён:29.04.1982 Главпромстройпроект Госстроя СССР (15)
Расположен в:Техническая документация Строительство Справочные документы Типовые строительные конструкции, изделия и узлы Общероссийский строительный каталог Промышленные предприятия, здания и сооружения Здания и сооружения санитарно-технические Канализация Станции насосные Станции насосные для перекачки бытовых сточных вод
Типовой проект 902-1-62Типовой проект 902-1-62Типовой проект 902-1-62Типовой проект 902-1-62Типовой проект 902-1-62Типовой проект 902-1-62Типовой проект 902-1-62Типовой проект 902-1-62Типовой проект 902-1-62Типовой проект 902-1-62Типовой проект 902-1-62Типовой проект 902-1-62Типовой проект 902-1-62Типовой проект 902-1-62Типовой проект 902-1-62Типовой проект 902-1-62Типовой проект 902-1-62Типовой проект 902-1-62Типовой проект 902-1-62Типовой проект 902-1-62

© 2013 Ёшкин Кот :-) Карта сайта