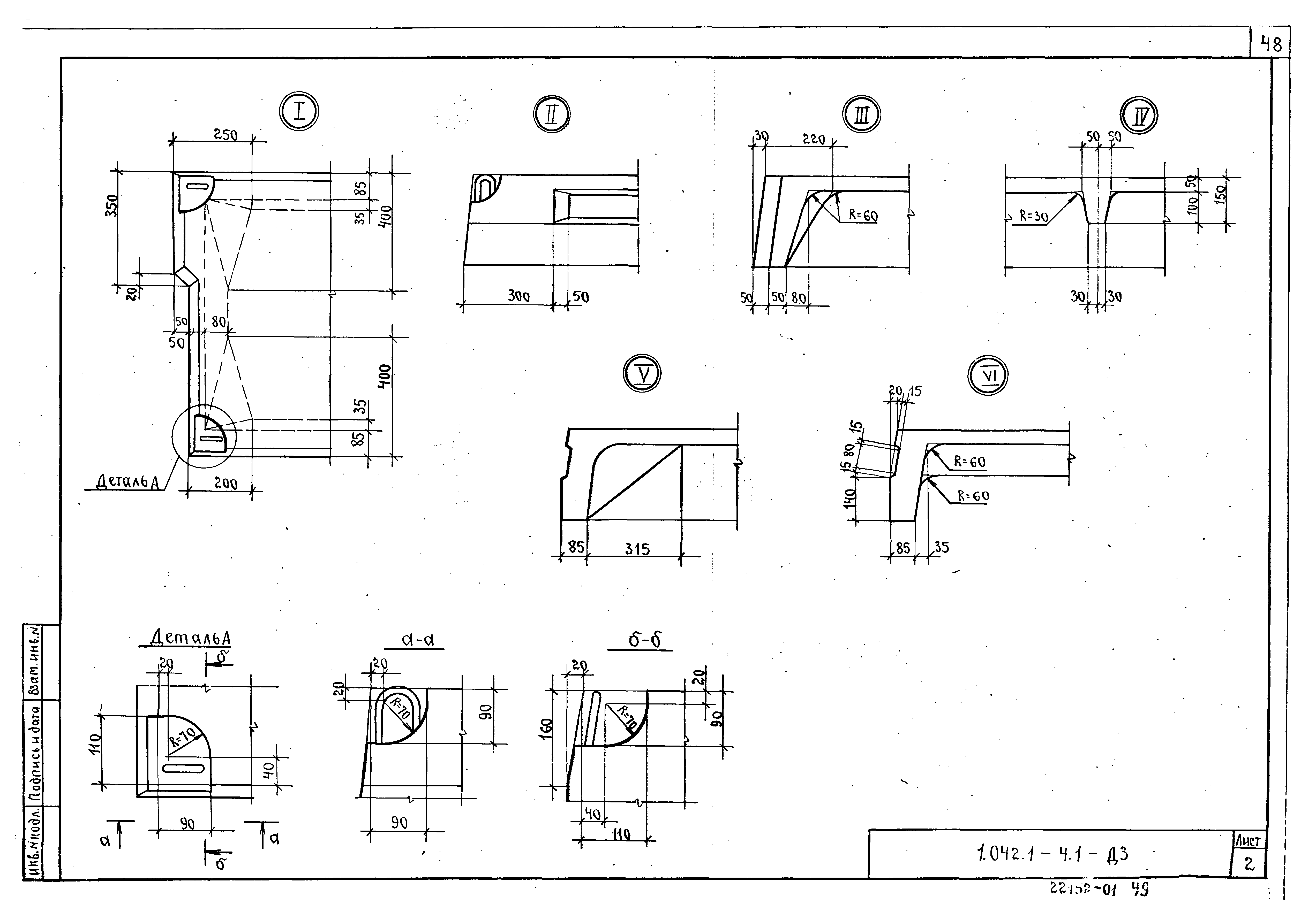
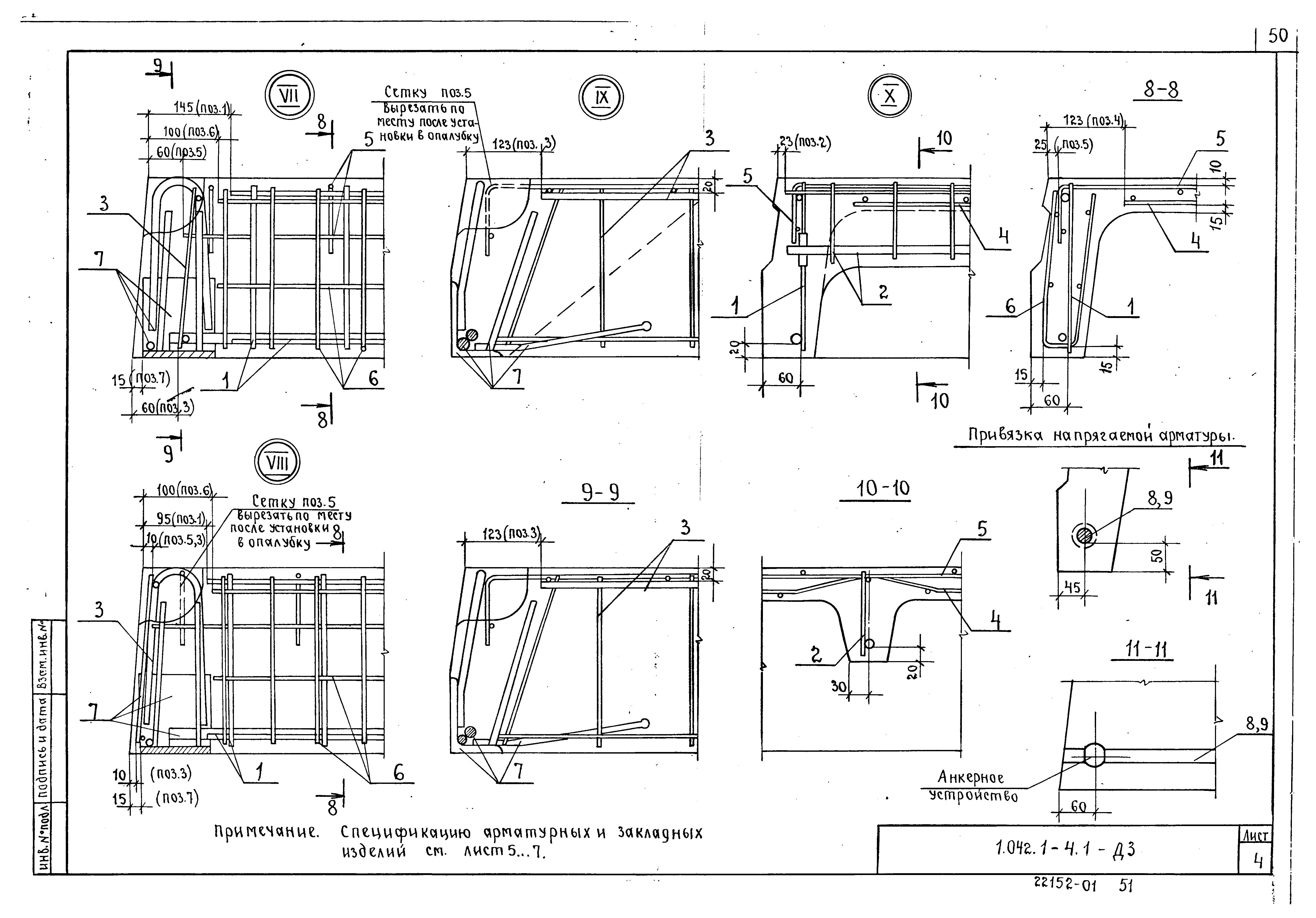
Скачать Серия 1.042.1-4 Выпуск 1. Плиты длиной 5650 мм, шириной 2985, 1485 и 935 мм. Рабочие чертежиДата актуализации: 10.08.2017 Серия 1.042.1-4
Выпуск 1. Плиты длиной 5650 мм, шириной 2985, 1485 и 935 мм. Рабочие чертежиОбозначение: | Серия 1.042.1-4 | Обозначение англ: | Series 1.042.1-4 | Статус: | не действует | Название рус.: | Выпуск 1. Плиты длиной 5650 мм, шириной 2985, 1485 и 935 мм. Рабочие чертежи | Дата добавления в базу: | 01.09.2013 | Дата актуализации: | 05.05.2017 | Дата введения: | 01.03.1987 | Дата окончания срока действия: | 01.12.1994 | Разработан: | ЦНИИпромзданий НИИЖБ
| Утверждён: | 24.10.1986 Госстрой СССР (Государственный комитет Совета Министров СССР по делам строительства) (USSR Gosstroy А4-71)
| Издан: | ЦИТП Госстроя СССР (CITP, Gosstroy (USSR) 1988 г. )
| Расположен в: |
| Чем заменён: | |
                                                               
|