Информационная система
«Ёшкин Кот»

Скачать базу одним архивом
Скачать обновления
История создания базы
Карта сайта

Скачать Типовой проект 902-2-379.83 Альбом IV. Электротехническая часть

Дата актуализации: 10.08.2017

Типовой проект 902-2-379.83

Альбом IV. Электротехническая часть

Обозначение: Типовой проект 902-2-379.83
Обозначение англ: 902-2-379.83
Статус:не действует
Название рус.:Альбом IV. Электротехническая часть
Дата добавления в базу:01.09.2013
Дата актуализации:05.05.2017
Оглавление:ТП 902-2-379.83-ЭМ Чертежи марки ЭМ
ТП 902-2-379.83-ЭМ-1 Общие данные (начало)
ТП 902-2-379.83-ЭМ-2 Общие данные (продолжение)
ТП 902-2-379.83-ЭМ-3 Общие данные (продолжение)
ТП 902-2-379.83-ЭМ-4 Общие данные (окончание)
ТП 902-2-379.83-ЭМ-5 Ведомость электрооборудования, кабельных изделий и материалов, поставляемых заказчиком. Ведомость объемов электромонтажных работ (начало)
ТП 902-2-379.83-ЭМ-6 Ведомость электрооборудования, кабельных изделий и материалов, поставляемых заказчиком. Ведомость объемов электромонтажных работ (окончание)
ТП 902-2-379.83-ЭМ-7 Схема электрическая принципиальная распределительной сети 380/220 В (начало)
ТП 902-2-379.83-ЭМ-8 Схема электрическая принципиальная распределительной сети 380/220 В (окончание)
ТП 902-2-379.83-ЭМ-9 Схема электрическая принципиальная АВР
ТП 902-2-379.83-ЭМ-10 Схема функциональная
ТП 902-2-379.83-ЭМ-11 Откачка осадка из отстойников. Диаграмма работы механизмов и настройки программных реле времени
ТП 902-2-379.83-ЭМ-12 Откачка осадка из отстойников. Общая электрическая принципиальная схема (начало)
ТП 902-2-379.83-ЭМ-13 Откачка осадка из отстойников. Общая электрическая принципиальная схема (окончание)
ТП 902-2-379.83-ЭМ-14 Откачка осадка из отстойников. Схема электрическая принципиальная управления илоскребами (М1...М4)
ТП 902-2-379.83-ЭМ-15 Откачка осадка из отстойников. Схема электрическая принципиальная управления задвижками выпуска осадка из отстойников
ТП 902-2-379.83-ЭМ-16 Откачка осадка из отстойников. Схема электрическая принципиальная управления насосами
ТП 902-2-379.83-ЭМ-17 Перекачка жира из жиросборников. Общая электрическая принципиальная схема
ТП 902-2-379.83-ЭМ-18 Перекачка жира из жиросборников. Схема электрическая принципиальная управления насосами
ТП 902-2-379.83-ЭМ-19 Перекачка жира из жиросборников. Схема электрическая принципиальная управления задвижками выпуска жира из жиросборников
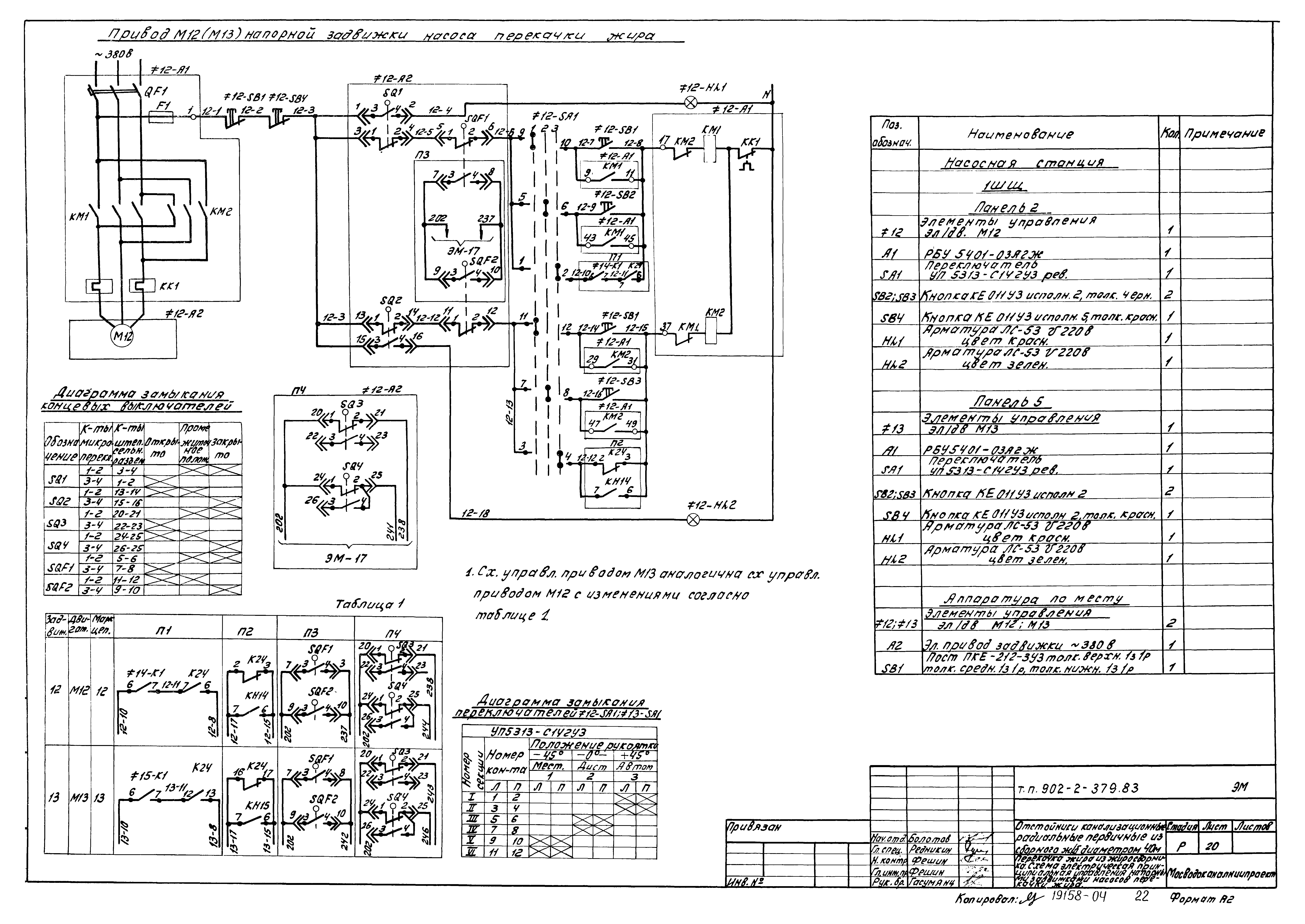
ТП 902-2-379.83-ЭМ-20 Перекачка жира из жиросборников. Схема электрическая принципиальная управления напорными задвижками насосов перекачки жира
ТП 902-2-379.83-ЭМ-21 Схемы электрические принципиальные управления дренажным насосом и вытяжным вентилятором
ТП 902-2-379.83-ЭМ-22 Схема электрическая принципиальная аварийной сигнализации (начало)
ТП 902-2-379.83-ЭМ-23 Схема электрическая принципиальная аварийной сигнализации (окончание)
ТП 902-2-379.83-ЭМ-24 Общая электрическая схема присоединений
ТП 902-2-379.83-ЭМ-25 Схема электрических подключений 1ШЩ (начало)
ТП 902-2-379.83-ЭМ-26 Схема электрических подключений 1ШЩ (продолжение)
ТП 902-2-379.83-ЭМ-27 Схема электрических подключений 1ШЩ (продолжение)
ТП 902-2-379.83-ЭМ-28 Схема электрических подключений 1ШЩ (окончание)
ТП 902-2-379.83-ЭМ-29 Схема электрических подключений 2ШЩ
ТП 902-2-379.83-ЭМ-30 Схема электрических подключений щита КиП и ящиков 1Я...4Я
ТП 902-2-379.83-ЭМ-31 Схема электрических подключений аппаратуры, расположенной по месту (начало)
ТП 902-2-379.83-ЭМ-32 Схема электрических подключений аппаратуры, расположенной по месту (окончание)
ТП 902-2-379.83-ЭМ-33 Кабельный журнал (начало)
ТП 902-2-379.83-ЭМ-34 Кабельный журнал (окончание)
ТП 902-2-379.83-ЭМ-35 План установки электрооборудования электроаппаратуры и прокладки кабелей (начало)
ТП 902-2-379.83-ЭМ-36 План установки электрооборудования электроаппаратуры и прокладки кабелей (окончание)
ТП 902-2-379.83-ЭМ-37 План насосной с нанесением сети освещения
ТП 902-2-379.83-АМ-1 Общие данные
ТП 902-2-379.83-АМ-2 Ведомость электроаппаратуры, кабельных изделий и материалов, поставляемых заказчиком. Ведомость электромонтажных работ
ТП 902-2-379.83-АМ-3 Функциональная схема (начало)
ТП 902-2-379.83-АМ-4 Функциональная схема (окончание)
ТП 902-2-379.83-АМ-5 Приточная система. Схема электрическая принципиальная управления и регулирования (начало)
ТП 902-2-379.83-АМ-6 Приточная система. Схема электрическая принципиальная управления и регулирования (продолжение)
ТП 902-2-379.83-АМ-7 Схема питания. Схема принципиальная измерения расходов уровней
ТП 902-2-379.83-АМ-8 Общая электрическая схема присоединений
ТП 902-2-379.83-АМ-9 Схема электрических подключений (начало)
ТП 902-2-379.83-АМ-10 Схема электрических подключений (продолжение)
ТП 902-2-379.83-АМ-11 Кабельный журнал. Схема электрических подключений (окончание)
ТП 902-2-379.83-АМ-12 План установки электроаппаратуры и прокладки кабелей
Разработан: МосводоканалНИИпроект
Утверждён:10.08.1983 МосводоканалНИИпроект (193)
Расположен в:Техническая документация Строительство Справочные документы Типовые строительные конструкции, изделия и узлы Общероссийский строительный каталог Промышленные предприятия, здания и сооружения Здания и сооружения санитарно-технические Канализация Сооружения механической очистки Отстойники Отстойники радиальные первичные
Типовой проект 902-2-379.83Типовой проект 902-2-379.83Типовой проект 902-2-379.83Типовой проект 902-2-379.83Типовой проект 902-2-379.83Типовой проект 902-2-379.83Типовой проект 902-2-379.83Типовой проект 902-2-379.83Типовой проект 902-2-379.83Типовой проект 902-2-379.83Типовой проект 902-2-379.83Типовой проект 902-2-379.83Типовой проект 902-2-379.83Типовой проект 902-2-379.83Типовой проект 902-2-379.83Типовой проект 902-2-379.83Типовой проект 902-2-379.83Типовой проект 902-2-379.83Типовой проект 902-2-379.83Типовой проект 902-2-379.83Типовой проект 902-2-379.83Типовой проект 902-2-379.83Типовой проект 902-2-379.83Типовой проект 902-2-379.83Типовой проект 902-2-379.83Типовой проект 902-2-379.83Типовой проект 902-2-379.83Типовой проект 902-2-379.83Типовой проект 902-2-379.83Типовой проект 902-2-379.83Типовой проект 902-2-379.83Типовой проект 902-2-379.83Типовой проект 902-2-379.83Типовой проект 902-2-379.83Типовой проект 902-2-379.83Типовой проект 902-2-379.83Типовой проект 902-2-379.83Типовой проект 902-2-379.83Типовой проект 902-2-379.83Типовой проект 902-2-379.83Типовой проект 902-2-379.83Типовой проект 902-2-379.83Типовой проект 902-2-379.83Типовой проект 902-2-379.83Типовой проект 902-2-379.83Типовой проект 902-2-379.83Типовой проект 902-2-379.83Типовой проект 902-2-379.83Типовой проект 902-2-379.83Типовой проект 902-2-379.83Типовой проект 902-2-379.83Типовой проект 902-2-379.83

© 2013 Ёшкин Кот :-) Карта сайта