Информационная система
«Ёшкин Кот»

Скачать базу одним архивом
Скачать обновления
История создания базы
Карта сайта

Скачать Типовой проект 903-1-214.84 Альбом V. Архитектурно-строительная часть

Дата актуализации: 10.08.2017

Типовой проект 903-1-214.84

Альбом V. Архитектурно-строительная часть

Обозначение: Типовой проект 903-1-214.84
Обозначение англ: 903-1-214.84
Статус:не действует
Название рус.:Альбом V. Архитектурно-строительная часть
Дата добавления в базу:01.09.2013
Дата актуализации:05.05.2017
Оглавление:ТП 903-1-214.84 Содержание альбома
ТП 903-1-214.84 Пояснительная записка
ТП 903-1-214.84-АР Архитектурно-строительные решения марки АР
ТП 903-1-214.84-АР-1 Общие данные (начало)
ТП 903-1-214.84-АР-2 Общие данные (окончание)
ТП 903-1-214.84-АР-3 План на отм. 0.000. Фрагменты 1,2
ТП 903-1-214.84-АР-4 План отверстий и перемычек на отм. 0.000
ТП 903-1-214.84-АР-5 План полов на отм. 0.000. Разрезы 1-1,2-2,3-3
ТП 903-1-214.84-АР-6 Фасады 1-6,6-1,А-В,В-А. Сборная каркасная перегородка. Схема заполнения оконного проема
ТП 903-1-214.84-АР-7 Узлы 1-6
ТП 903-1-214.84-КЖ Конструкции железобетонные марки КЖ
ТП 903-1-214.84-КЖ-1 Общие данные (начало)
ТП 903-1-214.84-КЖ-2 Общие данные (окончание)
ТП 903-1-214.84-КЖ-3 Схема расположения элементов фундаментов. Узлы 1,2
ТП 903-1-214.84-КЖ-4 Узлы 3-8
ТП 903-1-214.84-КЖ-5 Фундаменты ФМ1-ФМ3
ТП 903-1-214.84-КЖ-6 Фундаменты ФМ4,ФМ5
ТП 903-1-214.84-КЖ-7 Фундаменты ФМ6,ФМ7
ТП 903-1-214.84-КЖ-8 Фундаменты ФМ8,ФМ9
ТП 903-1-214.84-КЖ-9 Схема расположения элементов подземного хозяйства
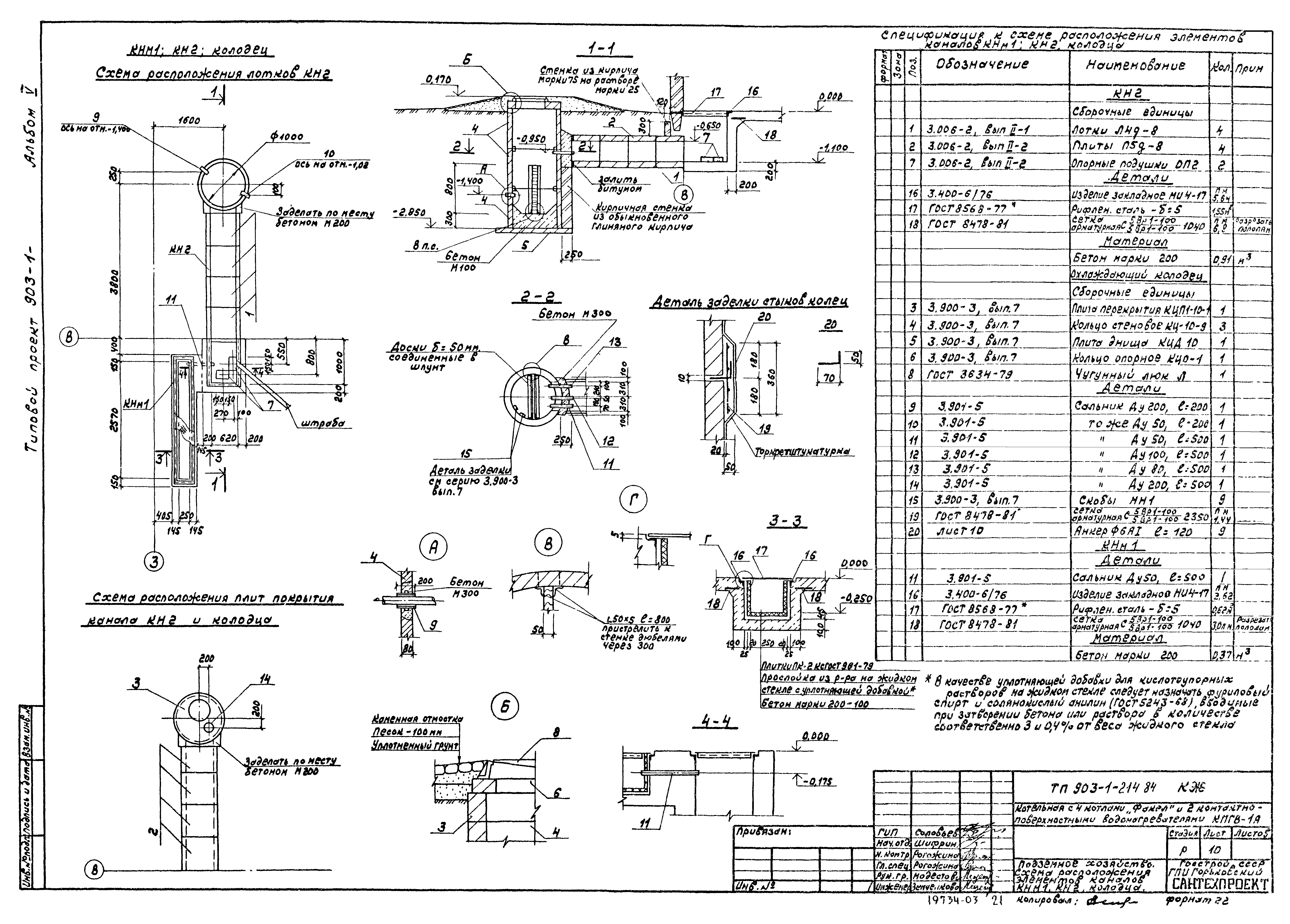
ТП 903-1-214.84-КЖ-10 Подземное хозяйство. Схема расположения элементов каналов КНМ1,КН2, колодца
ТП 903-1-214.84-КЖ-11 Подземное хозяйство. Схема расположения элементов канала КН3
ТП 903-1-214.84-КЖ-12 Подземное хозяйство. Схема расположения элементов приямка ПРМ1, канала КН1
ТП 903-1-214.84-КЖ-13 Подземное хозяйство. Фундаменты под оборудование ФОМ1,ФОМ2,ФОМ4-ФОМ6
ТП 903-1-214.84-КЖ-14 Подземное хозяйство. Фундамент под оборудование ФОМ3
ТП 903-1-214.84-КЖ-15 Схема расположения элементов каркаса и плит перекрытия
ТП 903-1-214.84-КЖ-16 Схема расположения плит покрытия
ТП 903-1-214.84-КЖ-17 Схема расположения стеновых панелей. Фрагменты 1,2,3
ТП 903-1-214.84-КЖ-18 Схема расположения стеновых панелей. Фрагменты 4,5,6
ТП 903-1-214.84-КМ Конструкции металлические марки КМ
ТП 903-1-214.84-КМ-1 Общие данные (начало)
ТП 903-1-214.84-КМ-2 Общие данные (окончание)
ТП 903-1-214.84-КМ-3 Техническая спецификация металла (начало)
ТП 903-1-214.84-КМ-4 Техническая спецификация металла (продолжение)
ТП 903-1-214.84-КМ-5 Техническая спецификация металла (окончание)
ТП 903-1-214.84-КМ-6 Схемы расположения подвесок и балок для крепления трубопроводов к ж.б. балкам
ТП 903-1-214.84-КМ-7 Схемы расположения перегородок
ТП 903-1-214.84-КМ-8 Схемы расположения опоры под деаэратор и переходной площадки
ТП 903-1-214.84-КМ-9 Узлы 1-6
Разработан: ГПИ Горьковский Сантехпроект
Утверждён:03.02.1984 Главпромстройпроект Госстроя СССР (4)
Расположен в:Техническая документация Строительство Справочные документы Типовые строительные конструкции, изделия и узлы Общероссийский строительный каталог Промышленные предприятия, здания и сооружения Здания и сооружения санитарно-технические Теплоснабжение Котельные установки Закрытые системы теплоснабжения Топливо - газ
Типовой проект 903-1-214.84Типовой проект 903-1-214.84Типовой проект 903-1-214.84Типовой проект 903-1-214.84Типовой проект 903-1-214.84Типовой проект 903-1-214.84Типовой проект 903-1-214.84Типовой проект 903-1-214.84Типовой проект 903-1-214.84Типовой проект 903-1-214.84Типовой проект 903-1-214.84Типовой проект 903-1-214.84Типовой проект 903-1-214.84Типовой проект 903-1-214.84Типовой проект 903-1-214.84Типовой проект 903-1-214.84Типовой проект 903-1-214.84Типовой проект 903-1-214.84Типовой проект 903-1-214.84Типовой проект 903-1-214.84Типовой проект 903-1-214.84Типовой проект 903-1-214.84Типовой проект 903-1-214.84Типовой проект 903-1-214.84Типовой проект 903-1-214.84Типовой проект 903-1-214.84Типовой проект 903-1-214.84Типовой проект 903-1-214.84Типовой проект 903-1-214.84Типовой проект 903-1-214.84Типовой проект 903-1-214.84Типовой проект 903-1-214.84Типовой проект 903-1-214.84Типовой проект 903-1-214.84Типовой проект 903-1-214.84Типовой проект 903-1-214.84Типовой проект 903-1-214.84Типовой проект 903-1-214.84

© 2013 Ёшкин Кот :-) Карта сайта