Информационная система
«Ёшкин Кот»

Скачать базу одним архивом
Скачать обновления
История создания базы
Карта сайта

Скачать Типовой проект 902-2-343 Альбом V. Нестандартизированное оборудование

Дата актуализации: 10.08.2017

Типовой проект 902-2-343

Альбом V. Нестандартизированное оборудование

Обозначение: Типовой проект 902-2-343
Обозначение англ: 902-2-343
Статус:не определен законодательством
Название рус.:Альбом V. Нестандартизированное оборудование
Дата добавления в базу:01.09.2013
Дата актуализации:05.05.2017
Дата введения:01.03.1981
Оглавление:ТП 902-2-343 Титульный лист
ТП 902-2-343 Содержание альбома
ТП 902-2-343 ТМ76.01.00.00.00 Затвор поверхностный скользящий 1200х900 с ручным приводом
ТП 902-2-343 ТМ76.01.01.00.00 Щит в сборе
ТП 902-2-343 ТМ76.01.01.01.00 Щит
ТП 902-2-343 ТМ76.01.02.00.00 Рама
ТП 902-2-343 ТМ76.01.02.01.00 Опора
ТП 902-2-343 ТМ76.01.02.02.00 Стойка
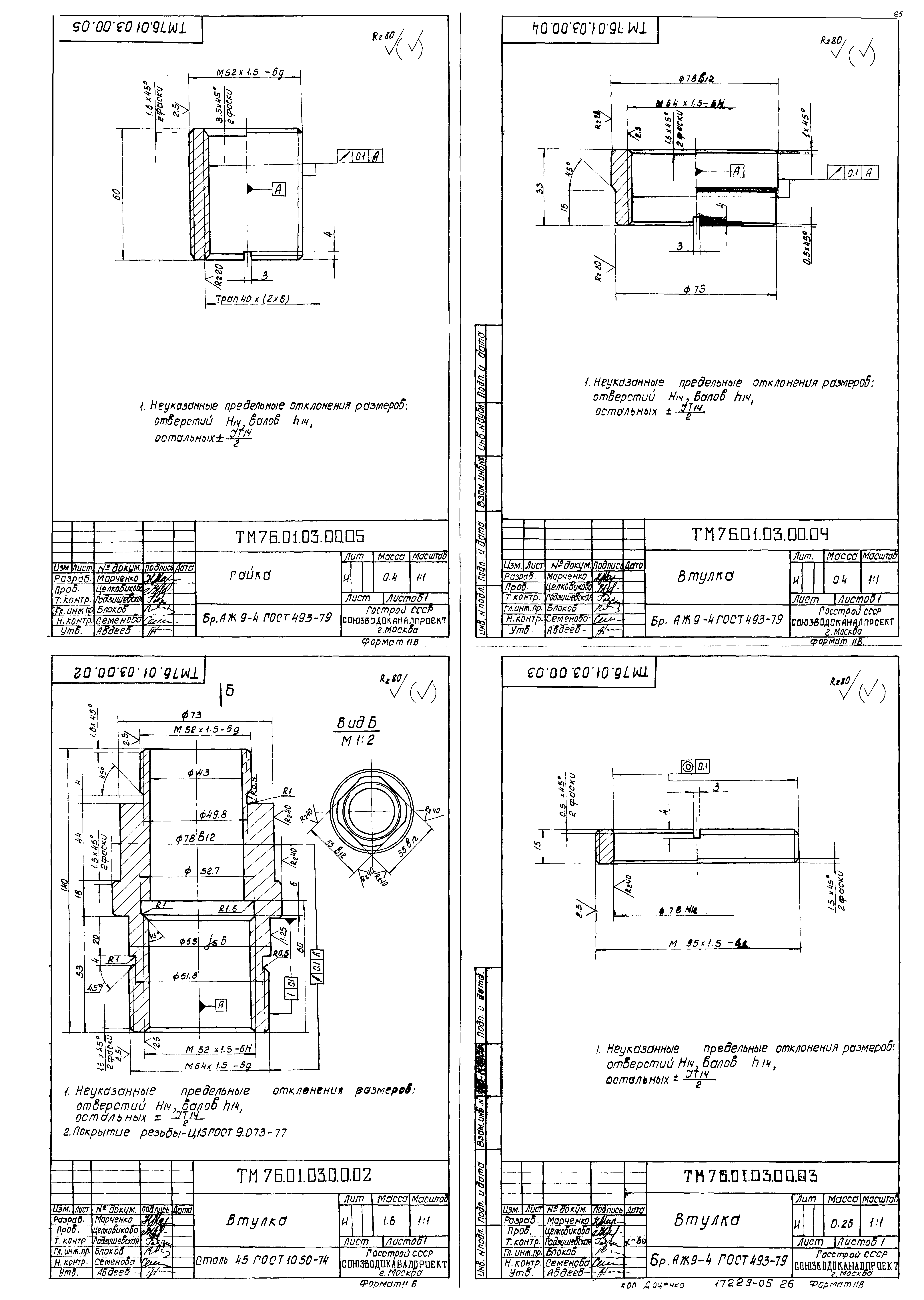
ТП 902-2-343 ТМ76.01.03.00.00 Подпятник
ТП 902-2-343 ТМ76.01.03.01.00 Корпус подпятника
ТП 902-2-343 ТМ76.01.04.00.00 Маховик
ТП 902-2-343 ТМ76.01.05.00.00 Колпак
ТП 902-2-343 ТМ76.02.00.00.00 Затвор плоский глубинный 900х500 с ручным приводом
ТП 902-2-343 ТМ76.02.01.00.00 Рама
ТП 902-2-343 ТМ76.02.02.00.00 Щит в сборе
ТП 902-2-343 ТМ76.02.02.01.00 Щит
ТП 902-2-343 ТМ76.02.03.00.00 Подпятник
ТП 902-2-343 ТМ76.02.03.01.00 Корпус подпятника
ТП 902-2-343 ТМ76.02.04.00.00 Штанга
ТП 902-2-343 ТМ76.02.05.00.00 Винт
ТП 902-2-343 ТМ76.03.00.00.00 Затвор-водослив 1200х500
ТП 902-2-343 ТМ76.03.01.00.00 Рама
ТП 902-2-343 ТМ76.02.06.00.00 Колпак
ТП 902-2-343 ТМ76.03.02.00 Щит
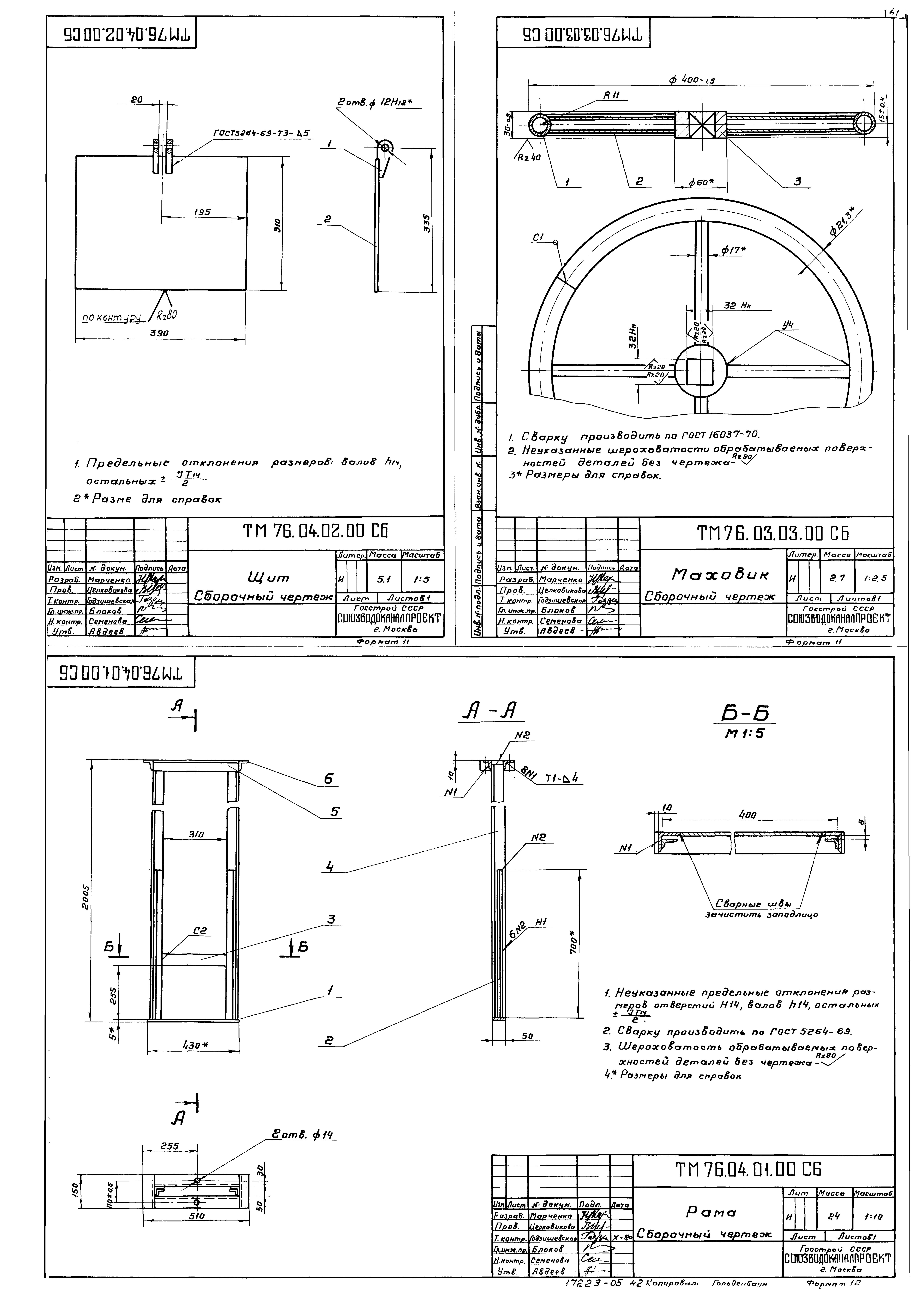
ТП 902-2-343 ТМ76.03.03.00 Маховик
ТП 902-2-343 ТМ76.04.00.00 Затвор щитовой 300х250
ТП 902-2-343 ТМ76.04.01.00 Рама
ТП 902-2-343 ТМ76.04.02.00 Щит
ТП 902-2-343 ТМ76.05.00 Установка трубки Пито
ТП 902-2-343 ТМ76.06.00 Эрлифт (узел)
ТП 902-2-343 ТМ76.01.00.00.00 СБ Затвор поверхностный скользящий 1200х900 с ручным приводом. Сборочный чертеж
ТП 902-2-343 ТМ76.01.01.00.00 СБ Щит в сборе. Сборочный чертеж
ТП 902-2-343 ТМ76.01.01.01.00 СБ Щит. Сборочный чертеж
ТП 902-2-343 ТМ76.01.02.00.00 СБ Рама. Сборочный чертеж
ТП 902-2-343 ТМ76.01.02.01.00 СБ Опора. Сборочный чертеж
ТП 902-2-343 ТМ76.01.02.02.00 СБ Стойка. Сборочный чертеж
ТП 902-2-343 ТМ76.01.04.00.00 СБ Маховик. Сборочный чертеж
ТП 902-2-343 ТМ76.01.03.00.00 СБ Подпятник. Сборочный чертеж
ТП 902-2-343 ТМ76.01.03.01.00 СБ Корпус подпятника. Сборочный чертеж
ТП 902-2-343 ТМ76.01.05.00.00 СБ Колпак. Сборочный чертеж
ТП 902-2-343 ТМ76.01.05.00.01 Гайка
ТП 902-2-343 ТМ76.00.00.00.02 Прокладка регулировочная
ТП 902-2-343 ТМ76.01.02.00.04 Уплотнитель
ТП 902-2-343 ТМ76.01.00.00.01 Винт
ТП 902-2-343 ТМ76.01.00.00.03 Шайба
ТП 902-2-343 ТМ76.01.01.01.01 Уголок
ТП 902-2-343 ТМ76.01.01.01.02 Уголок
ТП 902-2-343 ТМ76.01.01.01.03 Уголок
ТП 902-2-343 ТМ76.01.01.01.04 Уголок
ТП 902-2-343 ТМ76.01.01.01.05 Уголок
ТП 902-2-343 ТМ76.01.01.01.06 Ушко
ТП 902-2-343 ТМ76.01.01.00.01 Планка
ТП 902-2-343 ТМ76.01.01.00.02 Прокладка
ТП 902-2-343 ТМ76.01.02.00.01 Направляющая
ТП 902-2-343 ТМ76.01.02.00.02 Уголок
ТП 902-2-343 ТМ76.01.02.00.03 Планка
ТП 902-2-343 ТМ76.07.00 СБ Муфта. Сборочный чертеж
ТП 902-2-343 ТМ76.01.03.00.01 Втулка
ТП 902-2-343 ТМ76.01.03.00.02 Втулка
ТП 902-2-343 ТМ76.01.03.00.03 Втулка
ТП 902-2-343 ТМ76.01.03.00.04 Гайка
ТП 902-2-343 ТМ76.02.00.00.00 СБ Затвор плоский глубинный 900х500 с ручным приводом. Сборочный чертеж
ТП 902-2-343 ТМ76.02.01.00.00 СБ Рама. Сборочный чертеж
ТП 902-2-343 ТМ76.02.04.00.00 СБ Штанга. Сборочный чертеж
ТП 902-2-343 ТМ76.02.05.00.00 СБ Винт. Сборочный чертеж
ТП 902-2-343 ТМ76.02.02.00.00 СБ Щит в сборе. Сборочный чертеж
ТП 902-2-343 ТМ76.02.02.01.00 СБ Щит. Сборочный чертеж
ТП 902-2-343 ТМ76.02.03.00.00 СБ Подпятник. Сборочный чертеж
ТП 902-2-343 ТМ76.03.03.01.00 СБ Корпус подпятника. Сборочный чертеж
ТП 902-2-343 ТМ76.02.01.00.01 Поперечина
ТП 902-2-343 ТМ76.02.06.00.00 СБ Колпак. Сборочный чертеж
ТП 902-2-343 ТМ76.02.02.00.05 Уплотнение нижнее
ТП 902-2-343 ТМ76.02.02.00.06 Планка
ТП 902-2-343 ТМ76.02.02.00.01 Уплотнение боковое
ТП 902-2-343 ТМ76.02.02.00.02 Направляющая
ТП 902-2-343 ТМ76.02.02.00.03 Уплотнение верхнее
ТП 902-2-343 ТМ76.02.02.00.04 Направляющая верхняя
ТП 902-2-343 ТМ76.02.00.00.01 Прокладка
ТП 902-2-343 ТМ76.02.02.01.01 Ребро
ТП 902-2-343 ТМ76.02.02.01.02 Ушко
ТП 902-2-343 ТМ76.00.01 Шпилька
ТП 902-2-343 ТМ76.02.03.00.02 Винт
ТП 902-2-343 ТМ76.02.04.00.01 Фланец
ТП 902-2-343 ТМ76.02.04.00.02 Штанга
ТП 902-2-343 ТМ76.02.05.00.01 Фланец
ТП 902-2-343 ТМ76.03.00.00 СБ Затвор-водослив 1200х500. Сборочный чертеж
ТП 902-2-343 ТМ76.03.01.00.00 СБ Рама. Сборочный чертеж
ТП 902-2-343 ТМ76.03.02.00.00 СБ Щит. Сборочный чертеж
ТП 902-2-343 ТМ76.03.02.01 Ушко
ТП 902-2-343 ТМ76.03.00.01 Винт
ТП 902-2-343 ТМ76.03.00.02 Фланец верхний
ТП 902-2-343 ТМ76.03.00.03 Фланец нижний
ТП 902-2-343 ТМ76.03.00.04 Гайка подъемная
ТП 902-2-343 ТМ76.03.00.05 Уголок
ТП 902-2-343 ТМ76.03.00.06 Линейка
ТП 902-2-343 ТМ76.03.00.07 Стрелка
ТП 902-2-343 ТМ76.03.00.08 Прокладка регулировочная
ТП 902-2-343 ТМ76.04.00.00 СБ Затвор щитовой 300х250. Сборочный чертеж
ТП 902-2-343 ТМ76.04.01.00 СБ Рама. Сборочный чертеж
ТП 902-2-343 ТМ76.04.02.00 СБ Щит. Сборочный чертеж
ТП 902-2-343 ТМ76.03.03.00 СБ Маховик. Сборочный чертеж
ТП 902-2-343 ТМ76.05.00 СБ Установка трубки Пито. Сборочный чертеж
ТП 902-2-343 ТМ76.05.01 Бобышка
ТП 902-2-343 ТМ76.05.04 Фланец
ТП 902-2-343 ТМ76.05.03 Прокладка
ТП 902-2-343 ТМ76.05.05 Штуцер
ТП 902-2-343 ТМ76.05.02 Штуцер
ТП 902-2-343 ТМ76.05.09 Трубка
ТП 902-2-343 ТМ76.05.07 Наконечник
ТП 902-2-343 ТМ76.05.11 Бобышка
ТП 902-2-343 ТМ76.06.00 СБ Эрлифт (узел). Сборочный чертеж
ТП 902-2-343 ТМ76.08.00 СБ Заглушка. Сборочный чертеж
ТП 902-2-343 ТМ76.00.02 Упор
Разработан: Союзводоканалниипроект
Утверждён:27.10.1980 СоюзводоканалНИИпроект (SoyuzvodokanalNIIproject 73)
Расположен в:Техническая документация Строительство Справочные документы Типовые строительные конструкции, изделия и узлы Общероссийский строительный каталог Промышленные предприятия, здания и сооружения Здания и сооружения санитарно-технические Канализация Сооружения биологической (биохимической) очистки Аэротенки, аэрируемые биопруды, аэроакселаторы
Типовой проект 902-2-343Типовой проект 902-2-343Типовой проект 902-2-343Типовой проект 902-2-343Типовой проект 902-2-343Типовой проект 902-2-343Типовой проект 902-2-343Типовой проект 902-2-343Типовой проект 902-2-343Типовой проект 902-2-343Типовой проект 902-2-343Типовой проект 902-2-343Типовой проект 902-2-343Типовой проект 902-2-343Типовой проект 902-2-343Типовой проект 902-2-343Типовой проект 902-2-343Типовой проект 902-2-343Типовой проект 902-2-343Типовой проект 902-2-343Типовой проект 902-2-343Типовой проект 902-2-343Типовой проект 902-2-343Типовой проект 902-2-343Типовой проект 902-2-343Типовой проект 902-2-343Типовой проект 902-2-343Типовой проект 902-2-343Типовой проект 902-2-343Типовой проект 902-2-343Типовой проект 902-2-343Типовой проект 902-2-343Типовой проект 902-2-343Типовой проект 902-2-343Типовой проект 902-2-343Типовой проект 902-2-343Типовой проект 902-2-343Типовой проект 902-2-343Типовой проект 902-2-343Типовой проект 902-2-343Типовой проект 902-2-343Типовой проект 902-2-343Типовой проект 902-2-343Типовой проект 902-2-343Типовой проект 902-2-343Типовой проект 902-2-343Типовой проект 902-2-343

© 2013 Ёшкин Кот :-) Карта сайта