Информационная система
«Ёшкин Кот»

Скачать базу одним архивом
Скачать обновления
История создания базы
Карта сайта

Скачать Типовой проект 902-2-343 Альбом II. Конструкции железобетонные

Дата актуализации: 10.08.2017

Типовой проект 902-2-343

Альбом II. Конструкции железобетонные

Обозначение: Типовой проект 902-2-343
Обозначение англ: 902-2-343
Статус:не определен законодательством
Название рус.:Альбом II. Конструкции железобетонные
Дата добавления в базу:01.09.2013
Дата актуализации:05.05.2017
Дата введения:01.03.1981
Оглавление:ТП 902-2-343-КЖ-1 Общие данные (начало)
ТП 902-2-343-КЖ-2-9 Общие данные (продолжение)
ТП 902-2-343-КЖ-10 Общие данные (окончание)
ТП 902-2-343-КЖ-11 Компоновочный чертеж на 5,6,7 секций
ТП 902-2-343-КЖ-12 Компоновочный чертеж на 8,9 секций
ТП 902-2-343-КЖ-13 План, узлы
ТП 902-2-343-КЖ-14 Разрезы
ТП 902-2-343-КЖ-15 Секция "А". Днище. Опалубочный чертеж. План, разрезы
ТП 902-2-343-КЖ-16 Секция "Б". Днище. Опалубочный чертеж. План, разрезы
ТП 902-2-343-КЖ-17 Секция "В". Днище. Опалубочный чертеж. План, разрезы
ТП 902-2-343-КЖ-18 Секция "А,Б,В". Днище. Опалубочный чертеж. Сечения
ТП 902-2-343-КЖ-19 Секция "А,Б,В". Днище. Опалубочный чертеж. Узлы
ТП 902-2-343-КЖ-20 Секция "А,Б,В". Днище. Спецификация элементов монолитной конструкции
ТП 902-2-343-КЖ-21 Секция "А". Днище. Арматурный чертеж. Раскладка нижней арматуры
ТП 902-2-343-КЖ-22 Секция "А". Днище. Арматурный чертеж. Раскладка верхней арматуры
ТП 902-2-343-КЖ-23 Секция "А". Днище. Арматурный чертеж. Ведомость одиночных стержней
ТП 902-2-343-КЖ-24 Секция "Б". Днище. Арматурный чертеж. Раскладка нижней арматуры
ТП 902-2-343-КЖ-25 Секция "Б". Днище. Арматурный чертеж. Раскладка верхней арматуры
ТП 902-2-343-КЖ-26 Секция "Б". Днище. Арматурный чертеж. Ведомость одиночных стержней
ТП 902-2-343-КЖ-27 Секция "В". Днище. Арматурный чертеж. Раскладка нижней арматуры
ТП 902-2-343-КЖ-28 Секция "В". Днище. Арматурный чертеж. Раскладка верхней арматуры
ТП 902-2-343-КЖ-29 Секция "В". Днище. Арматурный чертеж. Ведомость одиночных стержней
ТП 902-2-343-КЖ-30 Секции "А,Б,В". Днище. Арматурный чертеж. Сечения 1-1÷6-6
ТП 902-2-343-КЖ-31 Секции "А,Б,В". Днище. Арматурный чертеж. Сечения 7-7÷11-11. Выборка стали
ТП 902-2-343-КЖ-32 Секция "А". Монтажный чертеж. План
ТП 902-2-343-КЖ-33 Секция "Б". Монтажный чертеж. План
ТП 902-2-343-КЖ-34 Секция "В". Монтажный чертеж. План
ТП 902-2-343-КЖ-35 Монтажный чертеж. Виды 1-1÷4-4
ТП 902-2-343-КЖ-36 Монтажный чертеж. Виды 5-5÷9-9
ТП 902-2-343-КЖ-37 Монтажный чертеж. Виды 10-10÷17-17
ТП 902-2-343-КЖ-38 Монтажные чертежи. Узлы
ТП 902-2-343-КЖ-39 Монолитные участки УМ-1,2,3,4. Опалубочный чертеж
ТП 902-2-343-КЖ-40 Монолитные участки УМ-5,6,9,10,20,21. Опалубочный чертеж
ТП 902-2-343-КЖ-41 Монолитные участки УМ-7,11,12,13,14,22. Опалубочный чертеж
ТП 902-2-343-КЖ-42 Монолитные участки УМ-8,15,16 Опалубочный чертеж
ТП 902-2-343-КЖ-43 Монолитные участки УМ-17,18,19. Опалубочный чертеж
ТП 902-2-343-КЖ-44 Монолитные участки стен. Спецификация элементов монолитной конструкции
ТП 902-2-343-КЖ-45 Монолитные участки УМ-1,2. Арматурный чертеж
ТП 902-2-343-КЖ-46 Монолитные участки УМ-3,4. Арматурный чертеж
ТП 902-2-343-КЖ-47 Монолитные участки УМ-5,6,7,22. Арматурный чертеж
ТП 902-2-343-КЖ-48 Монолитные участки УМ-8,9,10,11,12,13,14,20,21. Арматурный чертеж
ТП 902-2-343-КЖ-49 Монолитные участки УМ-15,16,17,18. Арматурный чертеж
ТП 902-2-343-КЖ-50 Монолитные участки УМ-19. Узлы. Арматурный чертеж
ТП 902-2-343-КЖ-51 Монолитные участки УМ-23,24,25. Арматурно-опалубочный чертеж
ТП 902-2-343-КЖ-52 Монолитные участки УМ-1-14,16,17,20,21,22. Спецификация арматуры
ТП 902-2-343-КЖ-53 Монолитные участки УМ-15,18,19,23-25. Спецификация и выборка арматуры
ТП 902-2-343-КЖ-54 Монтажные планы плит, лотков и балок на одну технологическую секцию (L аэротенка-84 м)
ТП 902-2-343-КЖ-55 Монтажные планы плит, лотков и балок на одну технологическую секцию (L аэротенка-90 м)
ТП 902-2-343-КЖ-56 Монтажные планы плит, лотков и балок на одну технологическую секцию (L аэротенка-96 м)
ТП 902-2-343-КЖ-57 Монтажные планы плит, лотков и балок на одну технологическую секцию (L аэротенка-102 м)
ТП 902-2-343-КЖ-58 Монтажные планы плит, лотков и балок на одну технологическую секцию. Узлы 1-4
ТП 902-2-343-КЖ-59 Монтажные планы плит, лотков и балок на одну технологическую секцию. Скользящие и неподвижные опоры
ТП 902-2-343-КЖ-60 Монолитные участки УМ-26,27,28
ТП 902-2-343-КЖ-61 Монтажный план площадок на одну технологическую секцию
ТП 902-2-343-КЖ-62 Монтажный план площадок на одну технологическую секцию. Узлы 1-6
ТП 902-2-343-КЖ-63 Монтажный план площадок на одну технологическую секцию. Узлы 7-10
ТП 902-2-343-КЖ-64 Конструкция водослива
ТП 902-2-343-КЖ-65 Днище. Разбивка закладных деталей в набетонке на одну технологическую секцию. Вариант с фильтросными каналами
ТП 902-2-343-КЖ-66 Днище. План набетонки и фильтросных каналов на одну технологическую секцию (7 рядов аэраторов)
ТП 902-2-343-КЖ-67 Днище. План набетонки и фильтросных каналов на одну технологическую секцию (14 рядов аэраторов)
ТП 902-2-343-КЖ-68 Днище. Фильтросные каналы. Узлы, детали
ТП 902-2-343-КЖ-69 Днище. Разбивка закладных деталей в набетонке на одну технологическую секцию. Вариант с пористыми трубами
ТП 902-2-343-КЖ-70 Днище. План набетонки под пористые трубы на одну технологическую секцию (7 рядов аэраторов)
ТП 902-2-343-КЖ-71 Днище. План набетонки под пористые трубы на одну технологическую секцию (14 рядов аэраторов)
ТП 902-2-343-КЖ-72 Камеры распределения ила № 1,2 с помощью эрлифтов. Опалубочный чертеж. План. Разрезы
ТП 902-2-343-КЖ-73 Камеры распределения ила № 3,4 с помощью эрлифтов. Опалубочный чертеж. План. Разрезы
ТП 902-2-343-КЖ-74 Камеры распределения ила № 5,6 с помощью насосов. Опалубочный чертеж. План. Разрезы
ТП 902-2-343-КЖ-75 Камеры распределения ила № 7,8 с помощью насосов. Опалубочный чертеж. План. Разрезы
ТП 902-2-343-КЖ-76 Камеры распределения ила № 9 с помощью эрлифтов. Опалубочный чертеж. План. Разрезы
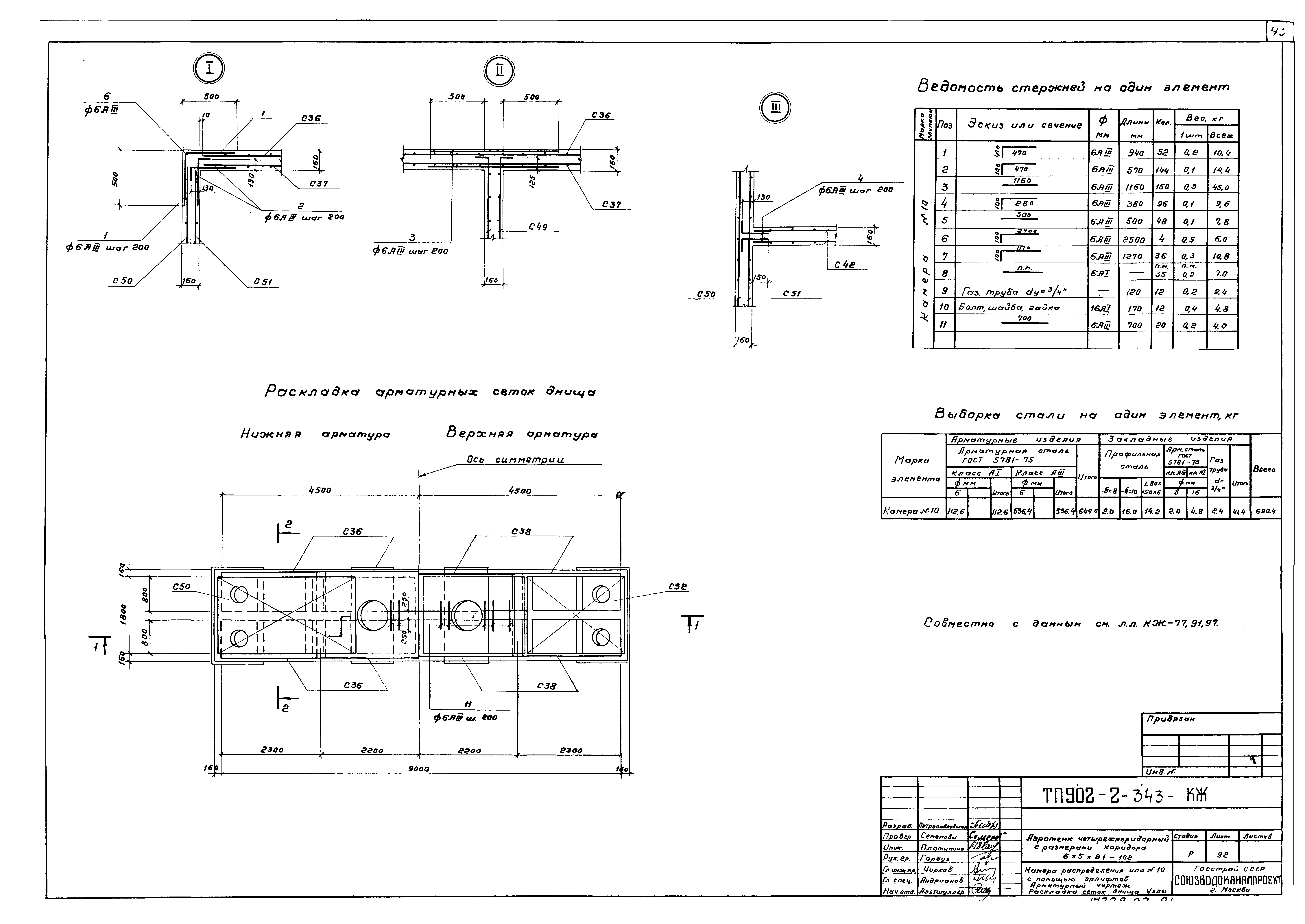
ТП 902-2-343-КЖ-77 Камеры распределения ила № 10 с помощью эрлифтов. Опалубочный чертеж. План. Разрезы
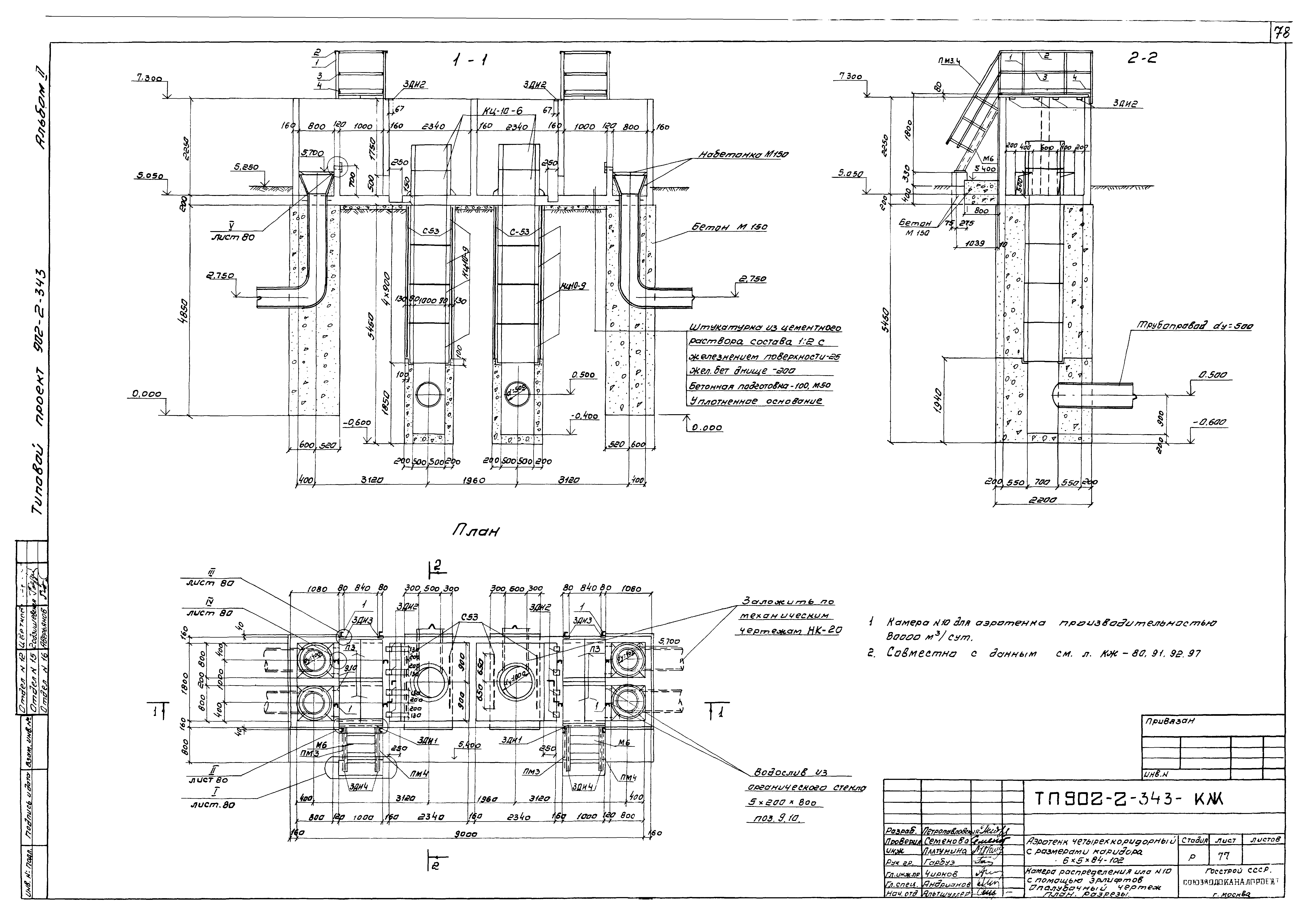
ТП 902-2-343-КЖ-78 Камеры распределения ила № 11 с помощью насосов. Опалубочный чертеж. План. Разрезы
ТП 902-2-343-КЖ-79 Камеры распределения ила № 12 с помощью насосов. Опалубочный чертеж. План. Разрезы
ТП 902-2-343-КЖ-80 Камеры распределения ила № 1-12 с помощью эрлифтов и насосов. Опалубочный чертеж. Узлы 1-5
ТП 902-2-343-КЖ-81 Камеры распределения ила № 1,2 с помощью эрлифтов. Арматурный чертеж. Раскладка сеток стен. Разрезы
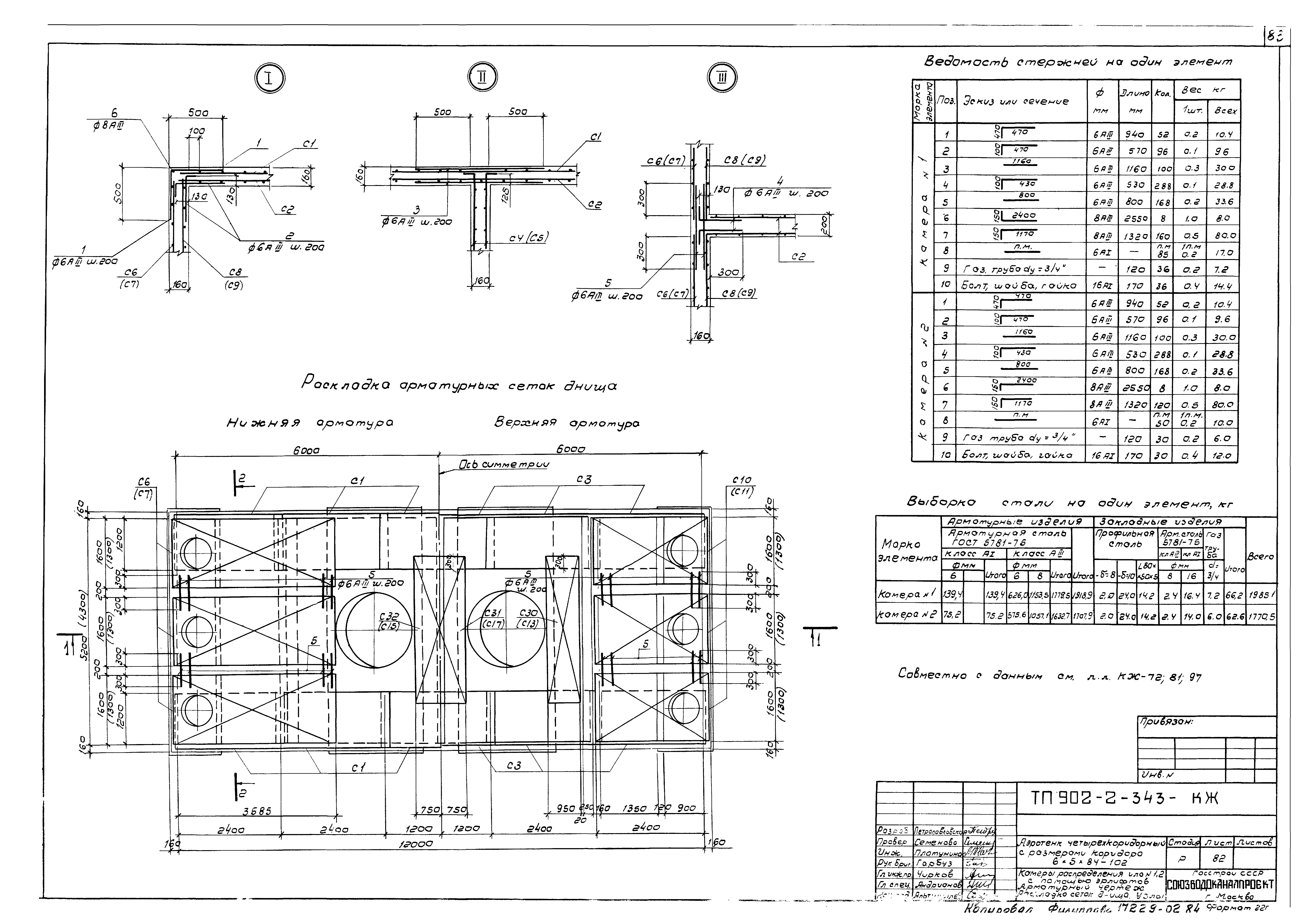
ТП 902-2-343-КЖ-82 Камеры распределения ила № 1,2 с помощью эрлифтов. Арматурный чертеж. Раскладка сеток днища. Узлы
ТП 902-2-343-КЖ-83 Камеры распределения ила № 3,4 с помощью эрлифтов. Арматурный чертеж. Раскладка сеток стен. Разрезы
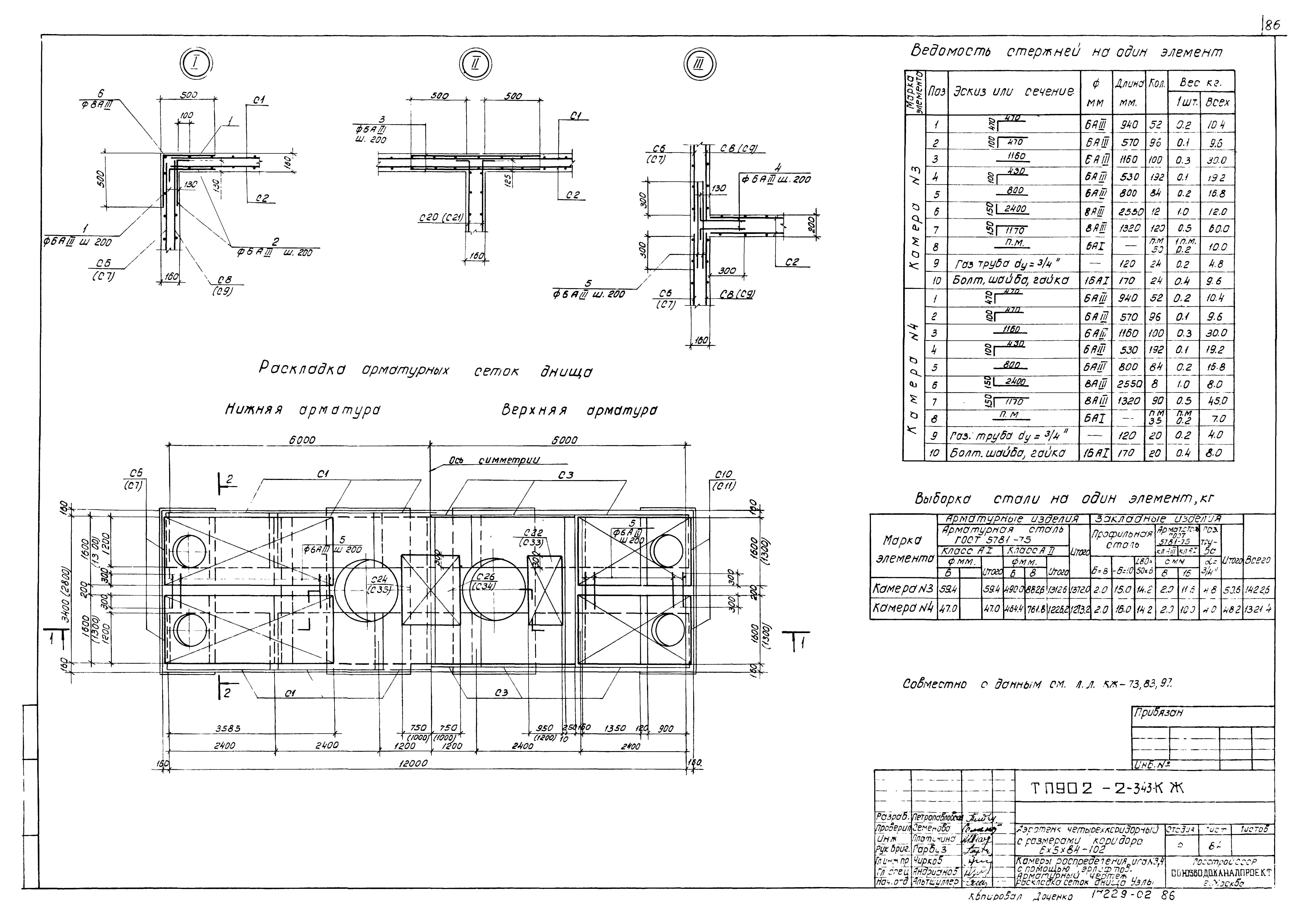
ТП 902-2-343-КЖ-84 Камеры распределения ила № 3,4 с помощью эрлифтов. Арматурный чертеж. Раскладка сеток днища. Узлы
ТП 902-2-343-КЖ-85 Камеры распределения ила № 5,6 с помощью эрлифтов. Арматурный чертеж. Раскладка сеток стен. Разрезы
ТП 902-2-343-КЖ-86 Камеры распределения ила № 5,6 с помощью эрлифтов. Арматурный чертеж. Раскладка сеток днища. Узлы
ТП 902-2-343-КЖ-87 Камеры распределения ила № 7,8 с помощью эрлифтов. Арматурный чертеж. Раскладка сеток стен. Разрезы
ТП 902-2-343-КЖ-88 Камеры распределения ила № 7,8 с помощью эрлифтов. Арматурный чертеж. Раскладка сеток днища. Узлы
ТП 902-2-343-КЖ-89 Камера распределения ила № 9 с помощью эрлифтов. Арматурный чертеж. Раскладка сеток днища. Разрезы
ТП 902-2-343-КЖ-90 Камера распределения ила № 9 с помощью эрлифтов. Арматурный чертеж. Раскладка сеток днища. Узлы
ТП 902-2-343-КЖ-91 Камера распределения ила № 10 с помощью эрлифтов. Арматурный чертеж. Раскладка сеток днища. Разрезы
ТП 902-2-343-КЖ-92 Камера распределения ила № 10 с помощью эрлифтов. Арматурный чертеж. Раскладка сеток днища. Узлы
ТП 902-2-343-КЖ-93 Камера распределения ила № 11 с помощью эрлифтов. Арматурный чертеж. Раскладка сеток днища. Разрезы
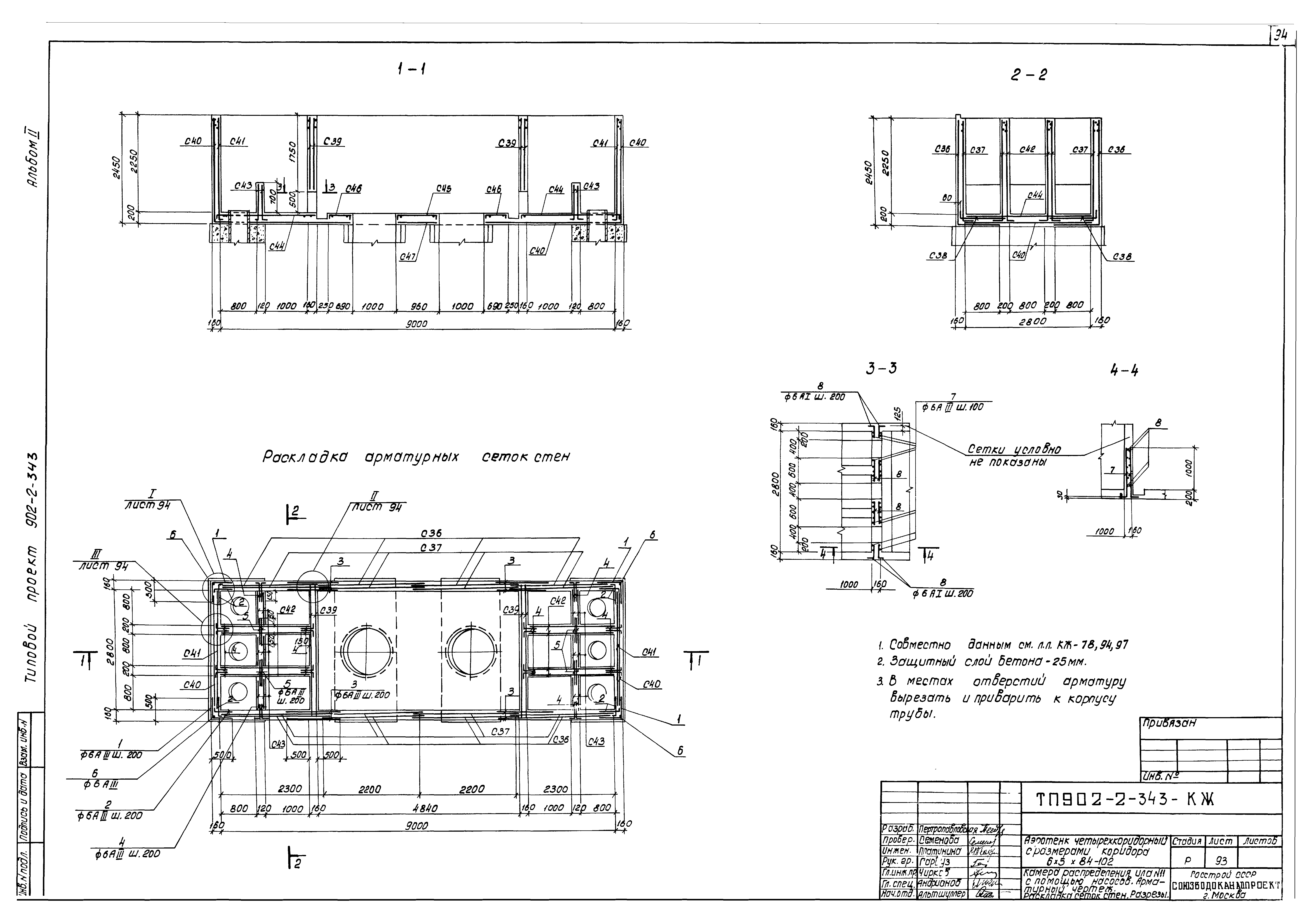
ТП 902-2-343-КЖ-94 Камера распределения ила № 11 с помощью эрлифтов. Арматурный чертеж. Раскладка сеток днища. Узлы
ТП 902-2-343-КЖ-95 Камера распределения ила № 12 с помощью эрлифтов. Арматурный чертеж. Раскладка сеток днища. Разрезы
ТП 902-2-343-КЖ-96 Камера распределения ила № 12 с помощью эрлифтов. Арматурный чертеж. Раскладка сеток днища. Узлы
ТП 902-2-343-КЖ-97 Камеры распределения ила № 1-12. Общие данные
ТП 902-2-343-КЖ-98 Посты гидрогеологических наблюдений за движением уровня грунтовых вод
Разработан: Союзводоканалниипроект
Утверждён:27.10.1980 СоюзводоканалНИИпроект (SoyuzvodokanalNIIproject 73)
Расположен в:Техническая документация Строительство Справочные документы Типовые строительные конструкции, изделия и узлы Общероссийский строительный каталог Промышленные предприятия, здания и сооружения Здания и сооружения санитарно-технические Канализация Сооружения биологической (биохимической) очистки Аэротенки, аэрируемые биопруды, аэроакселаторы
Типовой проект 902-2-343Типовой проект 902-2-343Типовой проект 902-2-343Типовой проект 902-2-343Типовой проект 902-2-343Типовой проект 902-2-343Типовой проект 902-2-343Типовой проект 902-2-343Типовой проект 902-2-343Типовой проект 902-2-343Типовой проект 902-2-343Типовой проект 902-2-343Типовой проект 902-2-343Типовой проект 902-2-343Типовой проект 902-2-343Типовой проект 902-2-343Типовой проект 902-2-343Типовой проект 902-2-343Типовой проект 902-2-343Типовой проект 902-2-343Типовой проект 902-2-343Типовой проект 902-2-343Типовой проект 902-2-343Типовой проект 902-2-343Типовой проект 902-2-343Типовой проект 902-2-343Типовой проект 902-2-343Типовой проект 902-2-343Типовой проект 902-2-343Типовой проект 902-2-343Типовой проект 902-2-343Типовой проект 902-2-343Типовой проект 902-2-343Типовой проект 902-2-343Типовой проект 902-2-343Типовой проект 902-2-343Типовой проект 902-2-343Типовой проект 902-2-343Типовой проект 902-2-343Типовой проект 902-2-343Типовой проект 902-2-343Типовой проект 902-2-343Типовой проект 902-2-343Типовой проект 902-2-343Типовой проект 902-2-343Типовой проект 902-2-343Типовой проект 902-2-343Типовой проект 902-2-343Типовой проект 902-2-343Типовой проект 902-2-343Типовой проект 902-2-343Типовой проект 902-2-343Типовой проект 902-2-343Типовой проект 902-2-343Типовой проект 902-2-343Типовой проект 902-2-343Типовой проект 902-2-343Типовой проект 902-2-343Типовой проект 902-2-343Типовой проект 902-2-343Типовой проект 902-2-343Типовой проект 902-2-343Типовой проект 902-2-343Типовой проект 902-2-343Типовой проект 902-2-343Типовой проект 902-2-343Типовой проект 902-2-343Типовой проект 902-2-343Типовой проект 902-2-343Типовой проект 902-2-343Типовой проект 902-2-343Типовой проект 902-2-343Типовой проект 902-2-343Типовой проект 902-2-343Типовой проект 902-2-343Типовой проект 902-2-343Типовой проект 902-2-343Типовой проект 902-2-343Типовой проект 902-2-343Типовой проект 902-2-343Типовой проект 902-2-343Типовой проект 902-2-343Типовой проект 902-2-343Типовой проект 902-2-343Типовой проект 902-2-343Типовой проект 902-2-343Типовой проект 902-2-343Типовой проект 902-2-343Типовой проект 902-2-343Типовой проект 902-2-343Типовой проект 902-2-343Типовой проект 902-2-343Типовой проект 902-2-343Типовой проект 902-2-343Типовой проект 902-2-343Типовой проект 902-2-343Типовой проект 902-2-343Типовой проект 902-2-343Типовой проект 902-2-343Типовой проект 902-2-343Типовой проект 902-2-343

© 2013 Ёшкин Кот :-) Карта сайта