Информационная система
«Ёшкин Кот»

Скачать базу одним архивом
Скачать обновления
История создания базы
Карта сайта

Скачать Типовой проект 902-2-343 Альбом I. Технологическая часть

Дата актуализации: 10.08.2017

Типовой проект 902-2-343

Альбом I. Технологическая часть

Обозначение: Типовой проект 902-2-343
Обозначение англ: 902-2-343
Статус:не определен законодательством
Название рус.:Альбом I. Технологическая часть
Дата добавления в базу:01.09.2013
Дата актуализации:05.05.2017
Дата введения:01.03.1981
Оглавление:ТП 902-2-343-НК-1 Общие данные (начало)
ТП 902-2-343-НК-2 Общие данные (продолжение)
ТП 902-2-343-НК-3 Общие данные (продолжение)
ТП 902-2-343-НК-4 Общие данные (продолжение)
ТП 902-2-343-НК-5 Общие данные (продолжение)
ТП 902-2-343-НК-6 Общие данные (продолжение)
ТП 902-2-343-НК-7 Общие данные (продолжение)
ТП 902-2-343-НК-8 Общие данные (продолжение)
ТП 902-2-343-НК-9 Общие данные (продолжение)
ТП 902-2-343-НК-10 Общие данные (продолжение)
ТП 902-2-343-НК-11 Общие данные (окончание)
ТП 902-2-343-НК-12 Схемы компоновки аэротенка
ТП 902-2-343-НК-13 План одной секции аэротенка. Разрезы. Монтажный чертеж
ТП 902-2-343-НК-14 Разрезы. Монтажный чертеж
ТП 902-2-343-НК-15 Разрезы. Узлы. Монтажный чертеж
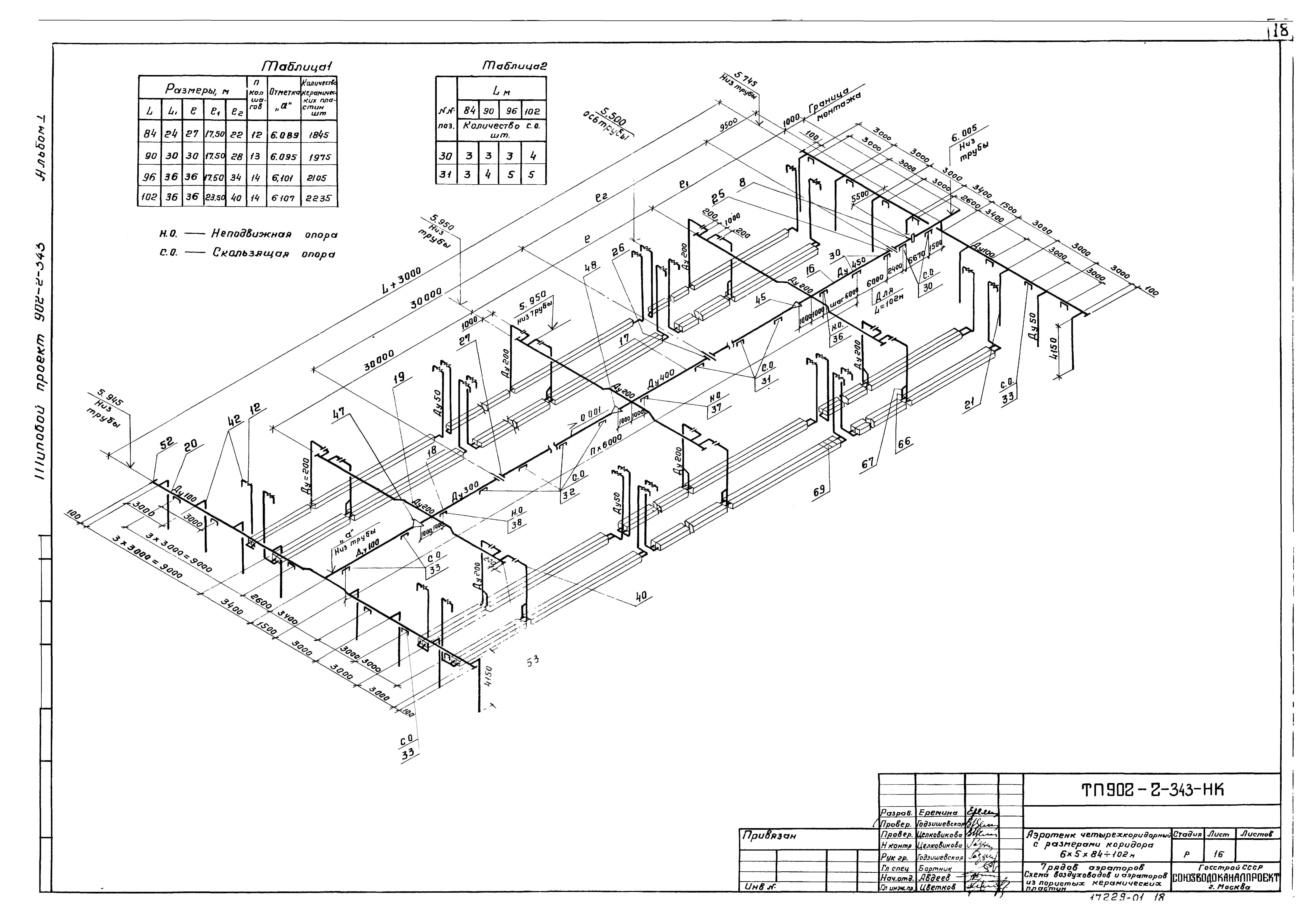
ТП 902-2-343-НК-16 7 рядов аэраторов. Схема воздуховодов и аэраторов с пористыми керамическими пластинами
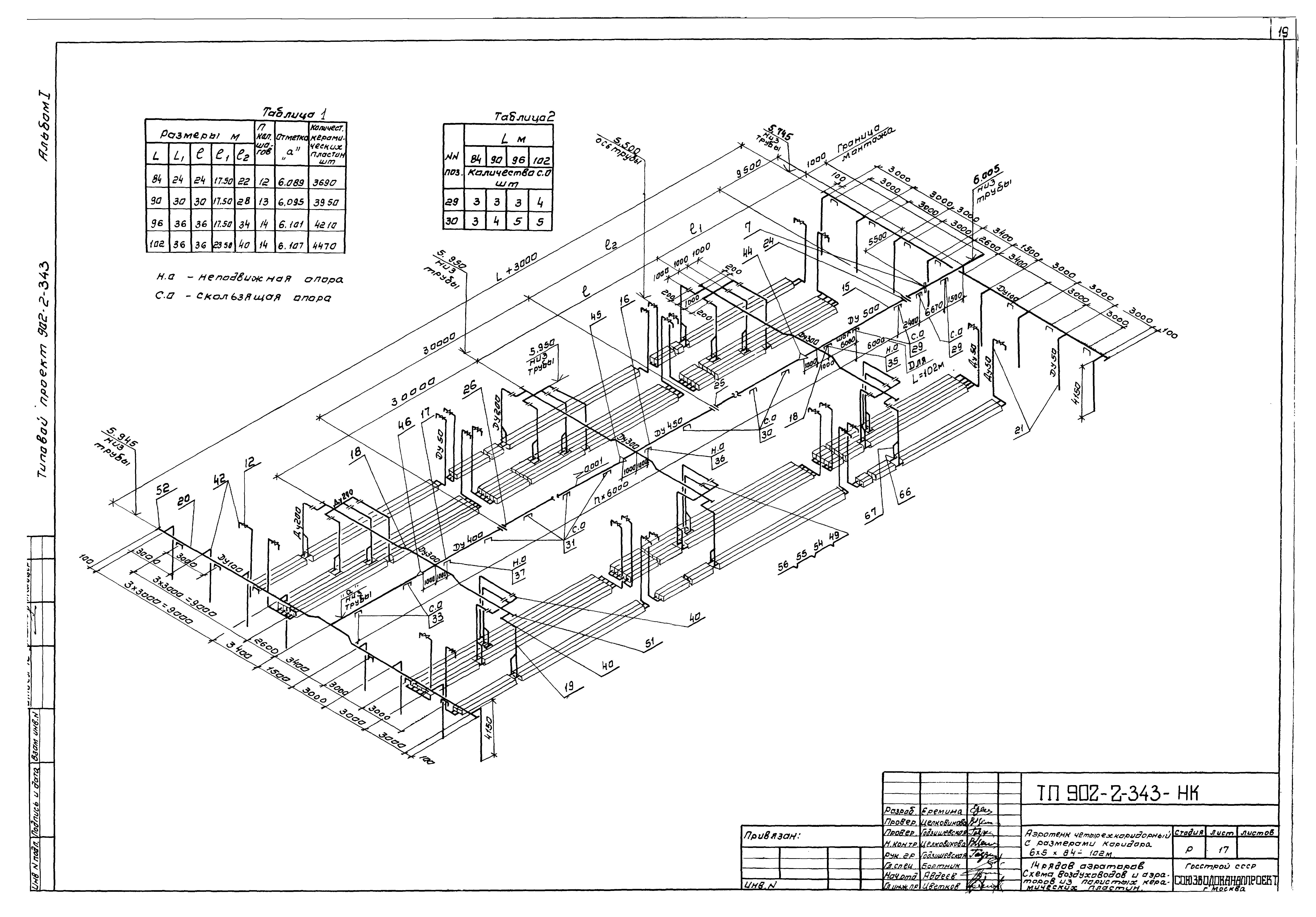
ТП 902-2-343-НК-17 14 рядов аэраторов. Схема воздуховодов и аэраторов с пористыми керамическими пластинами
ТП 902-2-343-НК-18 7 рядов аэраторов. Схема воздуховодов и аэраторов с пористыми керамическими трубами
ТП 902-2-343-НК-19 14 рядов аэраторов. Схема воздуховодов и аэраторов с пористыми керамическими трубами
ТП 902-2-343-НК-20 Камера распределения ила с помощью эрлифтов. План, разрезы. Монтажный чертеж
ТП 902-2-343-НК-21 Камера распределения ила с помощью насосов. План, разрезы. Монтажный чертеж
ТП 902-2-343-НК-22 Отопление шкафов КИП с сжатым воздухом. План. Схема трубопроводов
Разработан: Союзводоканалниипроект
Утверждён:27.10.1980 СоюзводоканалНИИпроект (SoyuzvodokanalNIIproject 73)
Расположен в:Техническая документация Строительство Справочные документы Типовые строительные конструкции, изделия и узлы Общероссийский строительный каталог Промышленные предприятия, здания и сооружения Здания и сооружения санитарно-технические Канализация Сооружения биологической (биохимической) очистки Аэротенки, аэрируемые биопруды, аэроакселаторы
Типовой проект 902-2-343Типовой проект 902-2-343Типовой проект 902-2-343Типовой проект 902-2-343Типовой проект 902-2-343Типовой проект 902-2-343Типовой проект 902-2-343Типовой проект 902-2-343Типовой проект 902-2-343Типовой проект 902-2-343Типовой проект 902-2-343Типовой проект 902-2-343Типовой проект 902-2-343Типовой проект 902-2-343Типовой проект 902-2-343Типовой проект 902-2-343Типовой проект 902-2-343Типовой проект 902-2-343Типовой проект 902-2-343Типовой проект 902-2-343Типовой проект 902-2-343Типовой проект 902-2-343Типовой проект 902-2-343Типовой проект 902-2-343Типовой проект 902-2-343

© 2013 Ёшкин Кот :-) Карта сайта