| ||||||||||||||||||||||||||||||
Скачать Серия 1.459-2 Выпуск 1. Лестницы, переходные площадки и ограждения из холодногнутых профилей с настилом и ступенями из элементов штампованного и решетчатого типов. Чертежи КМДДата актуализации: 10.08.2017
|
| Обозначение: | Серия 1.459-2 |
| Обозначение англ: | Series 1.459-2 |
| Статус: | не действует |
| Название рус.: | Выпуск 1. Лестницы, переходные площадки и ограждения из холодногнутых профилей с настилом и ступенями из элементов штампованного и решетчатого типов. Чертежи КМД |
| Дата добавления в базу: | 01.09.2013 |
| Дата актуализации: | 05.05.2017 |
| Дата введения: | 01.04.1974 |
| Дата окончания срока действия: | 01.12.1984 |
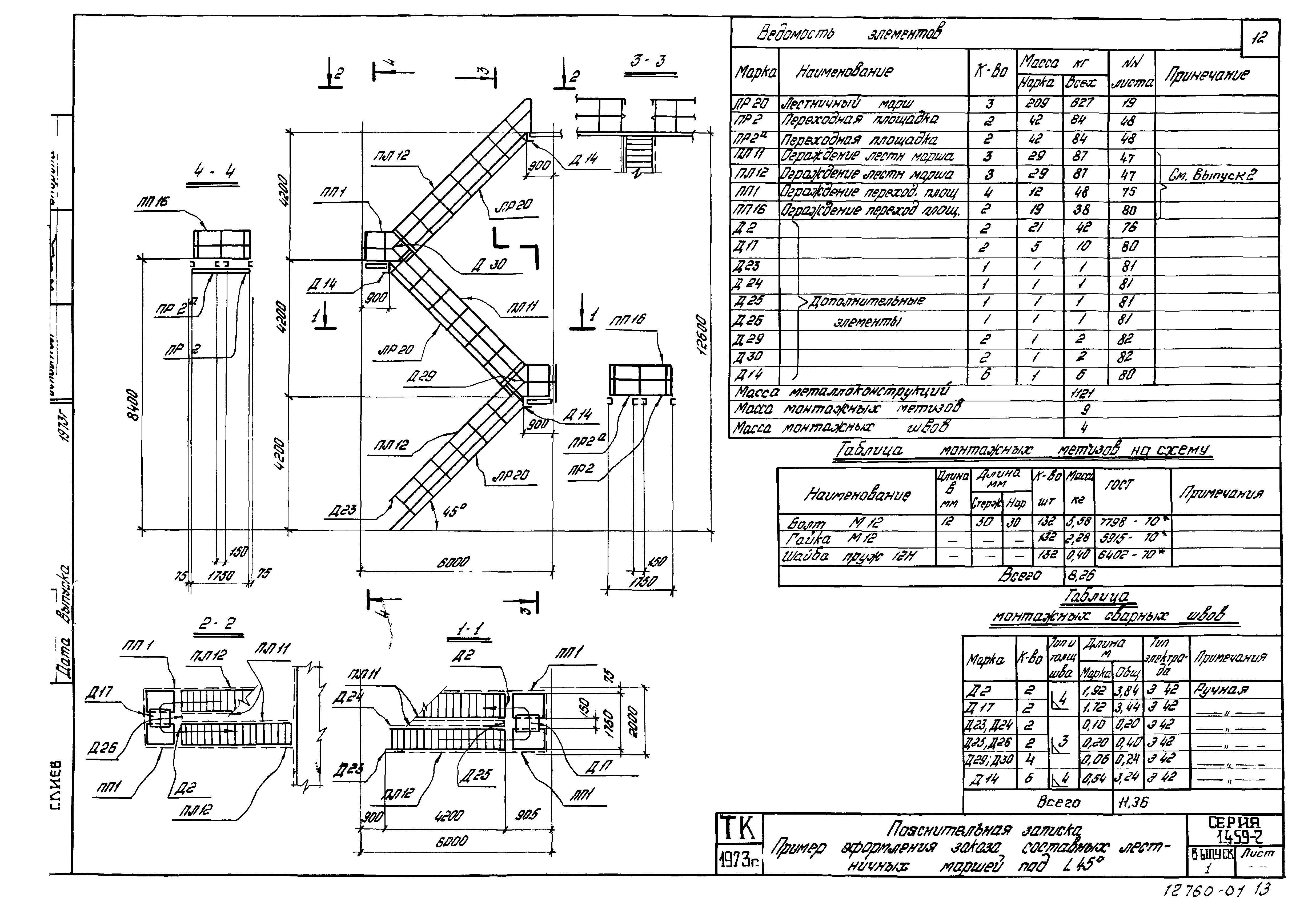
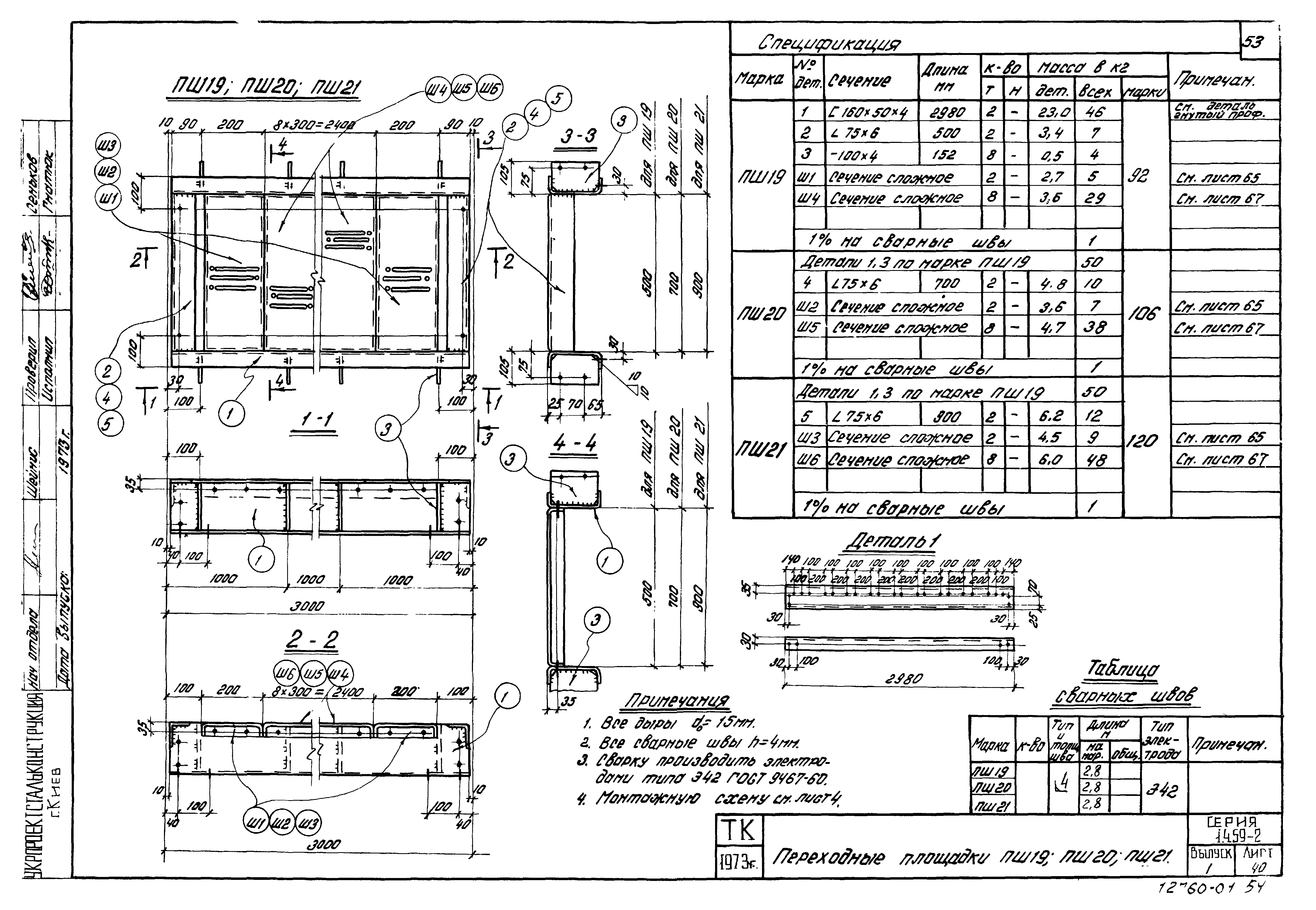
| Оглавление: | 1.459-2 Титульный лист 1.459-2 Содержание выпуска 1.459-2 Пояснительная записка 1.459-2 Пояснительная записка. Пример оформления заказа составных лестничных маршей под 45° 1.459-2 Пояснительная записка. Пример оформления заказа составных лестничных маршей под 60° 1.459-2 Монтажные схемы лестничных маршей под 45° и ограждений к ним 1.459-2 Монтажные схемы лестничных маршей под 60° и ограждений к ним 1.459-2 Монтажные схемы переходных площадок и ограждений к ним 1.459-2 Монтажные схемы ограждений по торцам переходных площадок, стремянок и ограждений к ним 1.459-2 Монтажные схемы крепления обслуживающих и переходных площадок к стенам 1.459-2 Схемы компоновки составных лестничных маршей под 45° с высотой ограждения h=1000 мм 1.459-2 Схемы компоновки составных лестничных маршей под 45° с высотой ограждения h=1200 мм 1.459-2 Схемы компоновки составных лестничных маршей под 60° с высотой ограждения h=1000 мм 1.459-2 Схемы компоновки составных лестничных маршей под 60° с высотой ограждения h=1200 мм 1.459-2 Лестничные марши ЛШ1,ЛР1,ЛШ2,ЛР2,ЛШ3,ЛР3 1.459-2 Лестничные марши ЛШ4,ЛР4,ЛШ5,ЛР5,ЛШ6,ЛР6 1.459-2 Лестничные марши ЛШ7,ЛР7,ЛШ8,ЛР8,ЛШ9,ЛР9 1.459-2 Лестничные марши ЛШ10,ЛР10,ЛШ11,ЛР11,ЛШ12,ЛР12 1.459-2 Лестничные марши ЛШ13,ЛР13,ЛШ14,ЛР14,ЛШ15,ЛР15 1.459-2 Лестничные марши ЛШ16,ЛР16,ЛШ17,ЛР17,ЛШ18,ЛР18 1.459-2 Лестничные марши ЛШ19,ЛР19,ЛШ20,ЛР20,ЛШ21,ЛР21 1.459-2 Лестничные марши МШ1,МР1,МШ2,МР2 1.459-2 Лестничные марши МШ3,МР3,МШ4,МР4 1.459-2 Лестничные марши МШ5,МР5,МШ6,МР6 1.459-2 Лестничные марши МШ7,МР7,МШ8,МР8 1.459-2 Лестничные марши МШ9,МР9,МШ10,МР10 1.459-2 Лестничные марши МШ11,МР11,МШ12,МР12 1.459-2 Лестничные марши МШ13,МР13,МШ14,МР14 1.459-2 Лестничные марши МШ15,МР15,МШ16,МР16 1.459-2 Детали и спецификация стали МШ15,МР15,МШ16,МР16 1.459-2 Лестничные марши МШ17,МР17,МШ18,МР18 1.459-2 Детали и спецификация стали МШ17,МР17,МШ18,МР18 1.459-2 Лестничные марши МШ19,МР19,МШ20,МР20 1.459-2 Детали и спецификация стали МШ19,МР19,МШ20,МР20 1.459-2 Разрезы лестничных маршей МШ16-МШ20,МР16-МР20 1.459-2 Переходные площадки ПШ1,ПШ2,ПШ3 1.459-2 Переходные площадки ПШ4,ПШ5,ПШ6 1.459-2 Переходные площадки ПШ7,ПШ8,ПШ9 1.459-2 Переходные площадки ПШ10,ПШ11,ПШ12 1.459-2 Переходные площадки ПШ13,ПШ14,ПШ15 1.459-2 Переходные площадки ПШ16,ПШ17,ПШ18 1.459-2 Переходные площадки ПШ19,ПШ20,ПШ21 1.459-2 Переходные площадки ПШ22,ПШ23,ПШ24 1.459-2 Переходные площадки ПШ25,ПШ26,ПШ27 1.459-2 Переходные площадки ПШ28,ПШ29,ПШ30 1.459-2 Переходные площадки ПШ31,ПШ32,ПШ33 1.459-2 Переходные площадки ПШ34,ПШ35,ПШ36 1.459-2 Переходные площадки ПШ37,ПШ38,ПШ39 1.459-2 Переходные площадки ПШ40,ПШ41,ПШ42 1.459-2 Переходные площадки ПР1,ПР2,ПР3 1.459-2 Переходные площадки ПР4,ПР5,ПР6 1.459-2 Переходные площадки ПР7,ПР8,ПР9 1.459-2 Переходные площадки ПР10,ПР11,ПР12 1.459-2 Переходные площадки ПР13,ПР14,ПР15 1.459-2 Переходные площадки ПР16,ПР17,ПР18 1.459-2 Переходные площадки ПР19,ПР20,ПР21 1.459-2 Переходные площадки ПР22,ПР23,ПР24 1.459-2 Переходные площадки ПР25,ПР26,ПР27 1.459-2 Переходные площадки ПР28,ПР29,ПР30 1.459-2 Переходные площадки ПР31,ПР32,ПР33 1.459-2 Переходные площадки ПР34,ПР35,ПР36 1.459-2 Переходные площадки ПР37,ПР38,ПР39 1.459-2 Переходные площадки ПР40,ПР41,ПР42 1.459-2 Стремянки С1,С2,С3,С4 1.459-2 Стремянки С5,С6,С7 1.459-2 Стремянки С8,С9,С10 1.459-2 Элементы штампованного типа Ш1,Ш2,Ш3 1.459-2 Детали и спецификация стали элементов штампованного типа Ш1,Ш2,Ш3 1.459-2 Элементы штампованного типа Ш4,Ш5,Ш6 1.459-2 Детали и спецификация стали элементов штампованного типа Ш4,Ш5,Ш6 1.459-2 Элементы решетчатого типа Р1,Р2,Р3 1.459-2 Детали элементов решетчатого типа Р1,Р2,Р3,Р4,Р5,Р6 1.459-2 Детали и спецификация стали элементов решетчатого типа Р1,Р2,Р3 1.459-2 Элементы решетчатого типа Р4,Р5,Р6 1.459-2 Детали и спецификация стали элементов решетчатого типа Р4,Р5,Р6 1.459-2 Элементы решетчатого типа Р7,Р8,Р9 1.459-2 Детали и спецификация стали элементов решетчатого типа Р7,Р8,Р9 1.459-2 Дополнительные элементы Д1,Д2,Д3 1.459-2 Дополнительные элементы Д4,Д5,Д6 1.459-2 Дополнительные элементы Д7,Д8 1.459-2 Дополнительные элементы Д10,Д11 1.459-2 Дополнительные элементы Д14,Д15-Д22 1.459-2 Дополнительные элементы Д23-Д28 1.459-2 Дополнительные элементы Д29-Д46 1.459-2 Верхний и нижний жесткие узлы сопряжения марша с типовой площадкой для лестниц под 45°. Узлы 1,2 1.459-2 Верхний и нижний жесткие узлы сопряжения марша с типовой площадкой для лестниц под 60°. Узлы 3,4 1.459-2 Верхний и нижний шарнирные узлы опирания марша на типовую площадку. Узлы 5,6 1.459-2 Верхние узлы опирания марша на двутавр и швеллер. Узлы 7,8,9 1.459-2 Нижние узлы опирания марша на двутавр и швеллер. Узлы 10,11,12,13 1.459-2 Верхний и нижний узлы опирания марша на сборную железобетонную плиту. Узлы 14,15 1.459-2 Верхний и нижний узлы опирания марша на монолитную железобетонную плиту. Узлы 16,17 1.459-2 Нижние узлы опирания марша на бетон. Узлы 18,19,20 1.459-2 Узел крепления ограждения высотой h=1000 мм к маршу под 45°. Узел 21 1.459-2 Узел крепления ограждения высотой h=1200 мм к маршу под 45°. Узел 22 1.459-2 Узел крепления ограждения высотой h=1000 мм к маршу под 60°. Узел 23 1.459-2 Узел крепления ограждения высотой h=1200 мм к маршу под 60°. Узел 24 1.459-2 Узлы крепления ограждений к площадкам. Узлы 25-30 1.459-2 Узлы крепления обслуживающих к переходных площадок и кирпичным стенам. Узлы 31,32 1.459-2 Узлы крепления обслуживающих и переходных площадок к кирпичным стенам. Узлы 33,34 1.459-2 Узлы крепления обслуживающих и переходных площадок к панельным стенам. Узлы 35,36 |
| Разработан: | ЦНИИпроектстальконструкция Укрпроектстальконструкция |
| Утверждён: | 10.01.1974 Госстрой СССР (Государственный комитет Совета Министров СССР по делам строительства) (USSR Gosstroy 2) |
| Расположен в: | |
| Чем заменён: |
















































































































