Информационная система
«Ёшкин Кот»

Скачать базу одним архивом
Скачать обновления
История создания базы
Карта сайта

Скачать Типовой проект 4.407-152 Прокладка троллейного шинопровода типа ШТМ-72 на 400 А

Дата актуализации: 10.08.2017

Типовой проект 4.407-152

Прокладка троллейного шинопровода типа ШТМ-72 на 400 А

Обозначение: Типовой проект 4.407-152
Обозначение англ: 4.407-152
Статус:не действует
Название рус.:Прокладка троллейного шинопровода типа ШТМ-72 на 400 А
Дата добавления в базу:01.09.2013
Дата актуализации:05.05.2017
Дата окончания срока действия:01.04.1980
Оглавление:ТП 4.407-152-А93.1 Обложка
ТП 4.407-152-А93.2 Титульный лист
ТП 4.407-152-А93.3 Содержание альбома
ТП 4.407-152-А93.4 Пояснительная записка
ТП 4.407-152-А93.5 План прокладки троллейного шинопровода (Пример)
ТП 4.407-152-А93.10 Раздел 1. Справочные материалы
ТП 4.407-152-А93.11 Габариты типовых металлических и железобетонных подкрановых балок (для справок)
ТП 4.407-152-А93.12 Комплектация троллейных линий
ТП 4.407-152-А93.20 Раздел 2. Примеры прокладки
ТП 4.407-152-А93.21 Троллейная линия из шинопровода типа ШТМ-72 без ремонтных участков (пример)
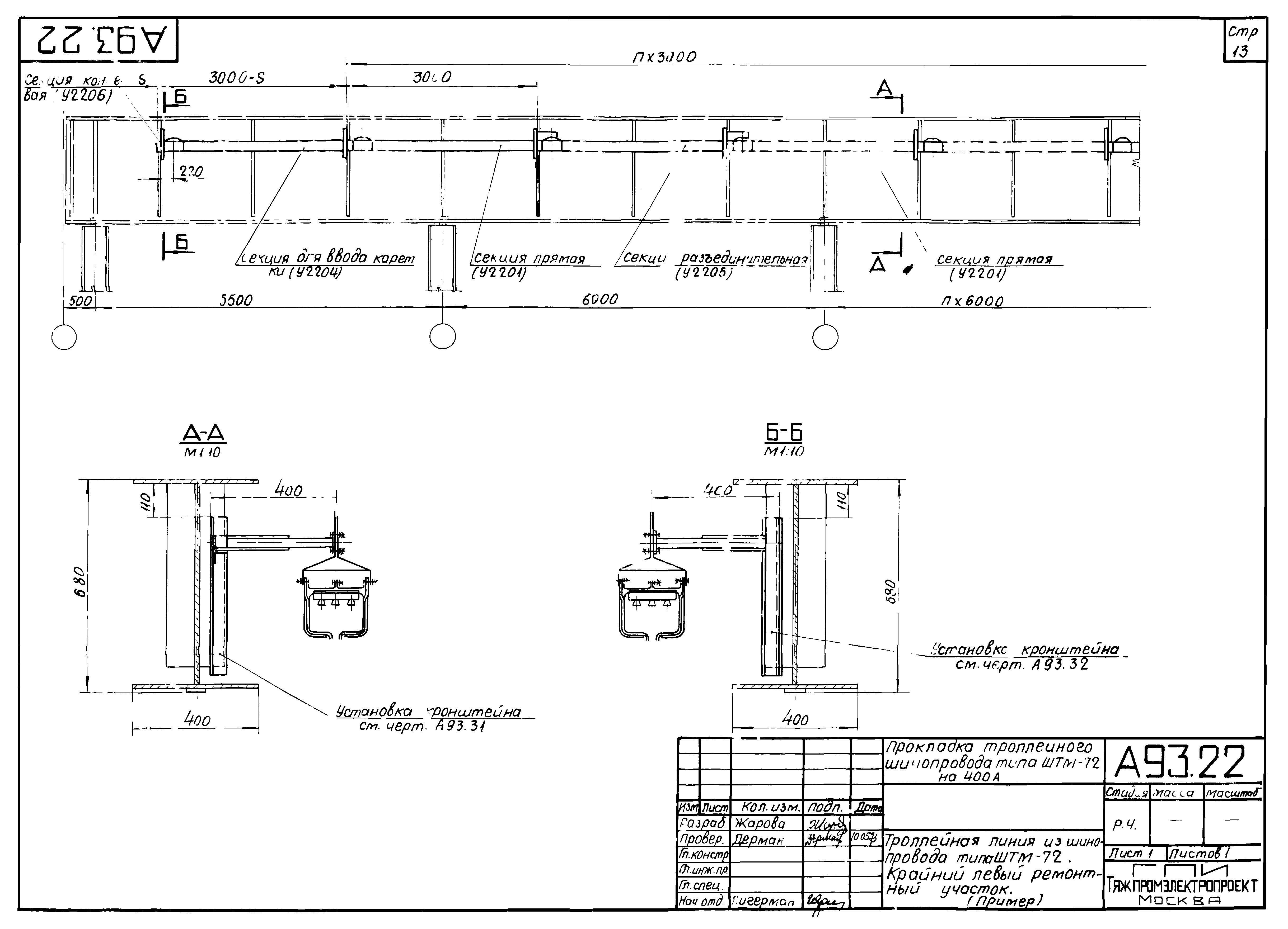
ТП 4.407-152-А93.22 Троллейная линия из шинопровода типа ШТМ-72. Крайний левый ремонтный участок (пример)
ТП 4.407-152-А93.23 Троллейная линия из шинопровода типа ШТМ-72. Крайний правый ремонтный участок (пример)
ТП 4.407-152-А93.24 Троллейная линия из шинопровода типа ШТМ-72. Средний ремонтный участок (пример)
ТП 4.407-152-А93.25 Подвод питания к шинопроводу (пример)
ТП 4.407-152-А93.26 Установка троллейного шинопровода на металлической подкрановой балке
ТП 4.407-152-А93.30 Раздел 3. Установочные чертежи (для монтажной зоны)
ТП 4.407-152-А93.31 Установка кронштейна на металлической подкрановой балке для прокладки шинопровода типа ШТМ-72
ТП 4.407-152-А93.32 Установка кронштейна на металлической подкрановой балке для прокладки шинопровода типа ШТМ-72 (концевая)
ТП 4.407-152-А93.33 Установка кронштейна на железобетонной подкрановой балке для прокладки шинопровода типа ШТМ-72
ТП 4.407-152-А93.34 Установка кронштейна на железобетонной подкрановой балке для прокладки шинопровода типа ШТМ-72
ТП 4.407-152-А93.40 Раздел 4. Сборочные чертежи и детали (изделия монтажно-заготовительного участка)
ТП 4.407-152-А93.41 Кронштейн с подвеской
ТП 4.407-152-А93.42 Кронштейн с подвеской (первое концевое крепление)
ТП 4.407-152-А93.43 Конструкция для крепления проводов и кабелей, подводимых к шинопроводу
ТП 4.407-152-А93.44 Две спаренные каретки
ТП 4.407-152-А93.50 Раздел 5. Номенклатура изделий заводов Главэлектромонтажа
ТП 4.407-152-А93.51 Секция прямая
ТП 4.407-152-А93.52 Секция для ввода каретки (У2204)
ТП 4.407-152-А93.53 Секция разъединительная (У2205)
ТП 4.407-152-А93.54 Секция концевая (У2206)
ТП 4.407-152-А93.55 Клеммы присоединительные (У2207)
ТП 4.407-152-А93.56 Каретка токосъемная на 100а с клеммником на 4 клеммы (У2208)
ТП 4.407-152-А93.57 Подвеска промежуточная (У2223)
ТП 4.407-152-А93.58 Кронштейн для крепления ШТМ-72 на металлических и железобетонных подкрановых балках (У2220)
ТП 4.407-152-А93.59 Скоба ведущая
Разработан: Тяжпромэлектропроект
Утверждён:11.05.1973 Тяжпромэлектропроект (1805)
Расположен в:Техническая документация Строительство Справочные документы Типовые строительные конструкции, изделия и узлы Общероссийский строительный каталог Строительные конструкции, изделия и узлы зданий и сооружений для всех видов строительства Инженерное оборудование Инженерное оборудование; изделия и узлы инженерного оборудования зданий и сооружений Электрооборудование и электросети Прокладка шинопроводов, кабелей, троллеев и электропроводок
Чем заменён:
Типовой проект 4.407-152Типовой проект 4.407-152Типовой проект 4.407-152Типовой проект 4.407-152Типовой проект 4.407-152Типовой проект 4.407-152Типовой проект 4.407-152Типовой проект 4.407-152Типовой проект 4.407-152Типовой проект 4.407-152Типовой проект 4.407-152Типовой проект 4.407-152Типовой проект 4.407-152Типовой проект 4.407-152Типовой проект 4.407-152Типовой проект 4.407-152Типовой проект 4.407-152Типовой проект 4.407-152Типовой проект 4.407-152Типовой проект 4.407-152Типовой проект 4.407-152Типовой проект 4.407-152Типовой проект 4.407-152Типовой проект 4.407-152Типовой проект 4.407-152Типовой проект 4.407-152Типовой проект 4.407-152Типовой проект 4.407-152Типовой проект 4.407-152Типовой проект 4.407-152Типовой проект 4.407-152Типовой проект 4.407-152Типовой проект 4.407-152Типовой проект 4.407-152Типовой проект 4.407-152Типовой проект 4.407-152

© 2013 Ёшкин Кот :-) Карта сайта