| ||||||||||||||||||||||||
Скачать Серия 3.407-95 Альбом I. Пояснительная записка. Рабочие чертежи опорДата актуализации: 10.08.2017
|
| Обозначение: | Серия 3.407-95 |
| Обозначение англ: | Series 3.407-95 |
| Статус: | действует |
| Название рус.: | Альбом I. Пояснительная записка. Рабочие чертежи опор |
| Дата добавления в базу: | 01.09.2013 |
| Дата актуализации: | 05.05.2017 |
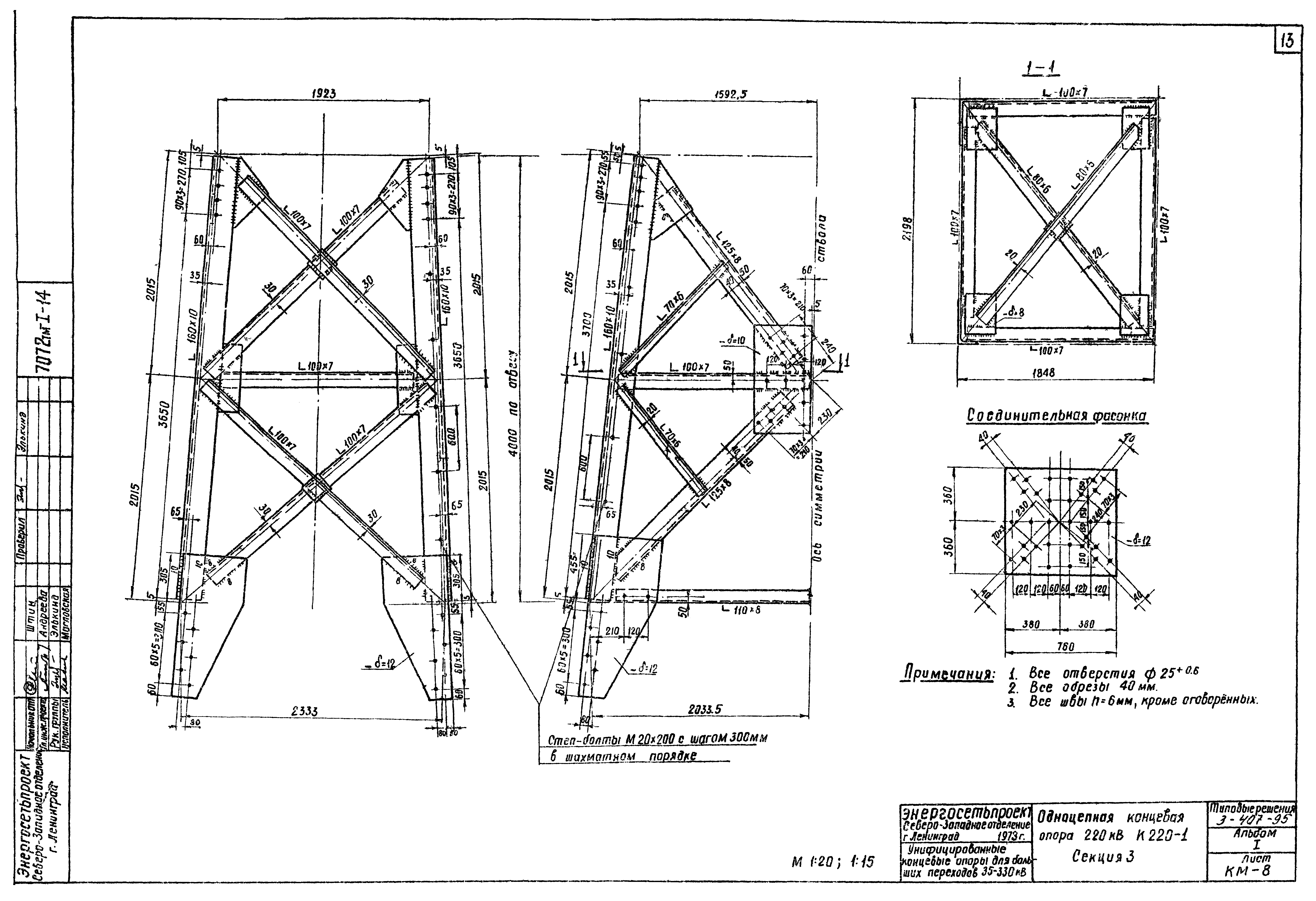
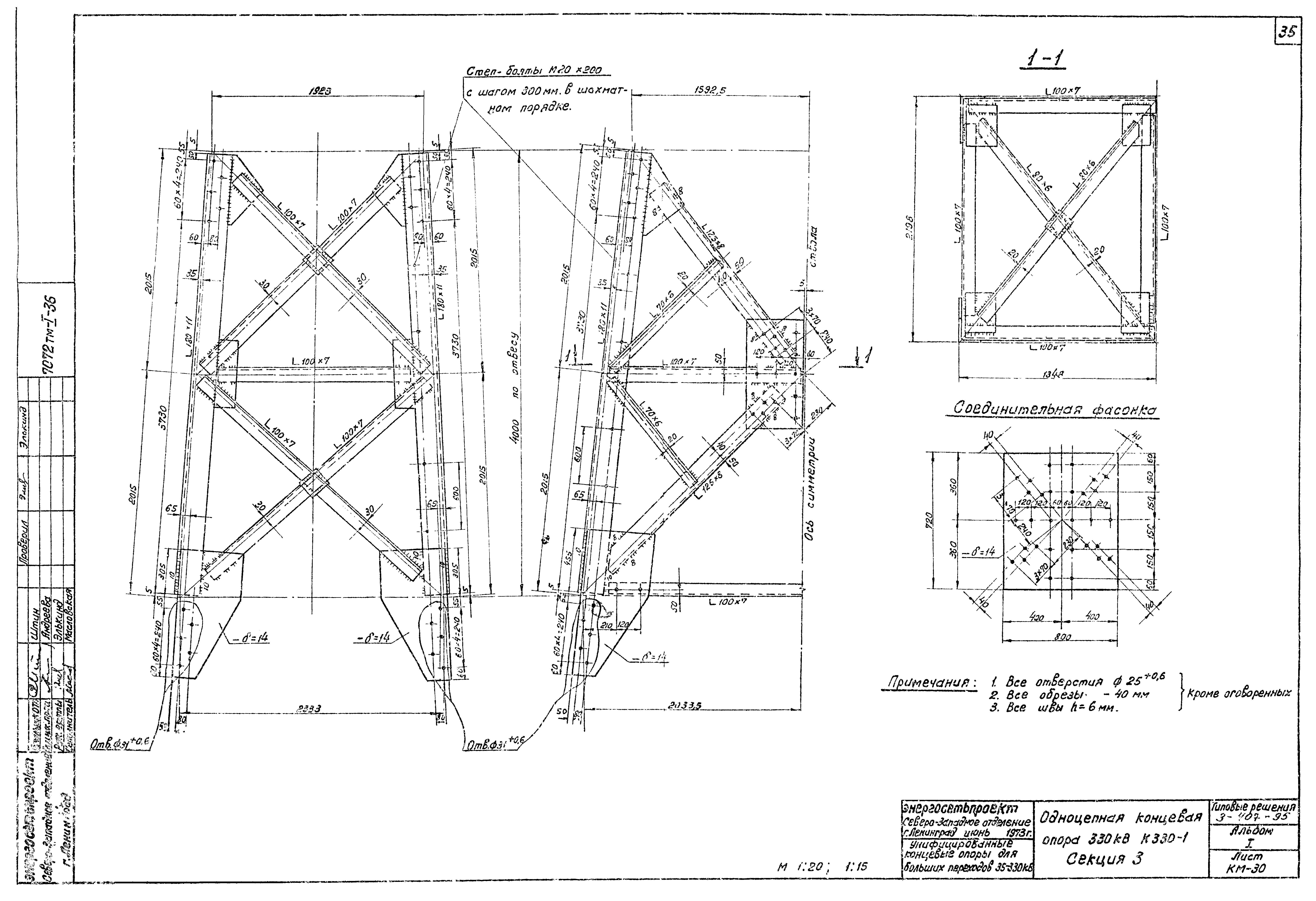
| Оглавление: | ТП 3-407-95 Обложка ТП 3-407-95 Титульный лист ТП 3-407-95 Перечень листов ТП 3-407-95 Пояснительная записка ТП 3-407-95 Схемы нагрузок на опоры и общие примечания ТП 3-407-95-КМ-1 Геометрическая схема ствола опор К220-1, К220-2, К330-1 ТП 3-407-95-КМ-2 Одноцепная концевая опора 220 кВ. Шифр К220-1. Монтажная схема ТП 3-407-95-КМ-3 Одноцепная концевая опора 220 кВ К220-1. Монтажная схема, таблицы элементов, выборки ТП 3-407-95-КМ-4 Одноцепная концевая опора 220 кВ К220-1. Схема подвески проводов на опоре ТП 3-407-95-КМ-5 Одноцепная концевая опора 220 кВ К220-1. Схема узлов ТП 3-407-95-КМ-6 Одноцепные концевые опоры К220-1, К330-1. Секция 1 ТП 3-407-95-КМ-7 Одноцепная концевая опора 220 кВ К220-1. Секция 2 ТП 3-407-95-КМ-8 Одноцепная концевая опора 220 кВ К220-1. Секция 3 ТП 3-407-95-КМ-9 Одноцепная концевая опора 220 кВ К220-1. Секция 4 ТП 3-407-95-КМ-10 Одноцепная концевая опора 220 кВ К220-1. Подставка. Узлы 1,2,3 ТП 3-407-95-КМ-11 Одноцепная концевая опора 220 кВ К220-1. Подставка. Узлы 4,5,6,7 ТП 3-407-95-КМ-12 Одноцепные концевые опоры К220-1, К330-1. Траверса L=6,0 м ТП 3-407-95-КМ-13 Двухцепная концевая опора 220 кВ. Шифр К220-2. Монтажная схема ТП 3-407-95-КМ-14 Двухцепная концевая опора 220 кВ. Шифр К220-2. Монтажная схема, толщина элементов, выборки ТП 3-407-95-КМ-15 Двухцепная концевая опора 220 кВ К220-2. Схема подвески проводов на опоре ТП 3-407-95-КМ-16 Двухцепная концевая опора 220 кВ К220-2. Схема узлов ТП 3-407-95-КМ-17 Двухцепная концевая опора 220 кВ К220-2. Секция 1 ТП 3-407-95-КМ-18 Двухцепная концевая опора 220 кВ К220-2. Секция 2 ТП 3-407-95-КМ-19 Двухцепная концевая опора 220 кВ К220-2. Секция 3 ТП 3-407-95-КМ-20 Двухцепная концевая опора 220 кВ К220-2. Секция 4 ТП 3-407-95-КМ-21 Двухцепная концевая опора 220 кВ К220-2. Подставка. Узлы 1,2,3 ТП 3-407-95-КМ-22 Двухцепная концевая опора 220 кВ К220-2. Подставка. Узлы 4,5,6,7 ТП 3-407-95-КМ-23 Двухцепная концевая опора 220 кВ К220-2. Траверса L=4,5 м ТП 3-407-95-КМ-24 Двухцепная концевая опора 220 кВ К220-2. Траверса L=1,7 м ТП 3-407-95-КМ-25 Одноцепная концевая опора 330 кВ. Шифр К330-1. Монтажная схема ТП 3-407-95-КМ-26 Одноцепная концевая опора 330 кВ К330-1. Монтажная схема, таблицы элементов, выборки ТП 3-407-95-КМ-27 Одноцепная концевая опора 330 кВ К330-1. Схема подвески проводов на опоре ТП 3-407-95-КМ-28 Одноцепная концевая опора 330 кВ К330-1. Схема узлов ТП 3-407-95-КМ-29 Одноцепная концевая опора 330 кВ К330-1. Секция 2 ТП 3-407-95-КМ-30 Одноцепная концевая опора 330 кВ К330-1. Секция 3 ТП 3-407-95-КМ-31 Одноцепная концевая опора 330 кВ К330-1. Секция 4 ТП 3-407-95-КМ-32 Одноцепная концевая опора 330 кВ К330-1. Подставка. Узлы 1,2,3 ТП 3-407-95-КМ-33 Одноцепная концевая опора 330 кВ К330-1. Подставка. Узлы 4,5,6,7 ТП 3-407-95-КМ-34 Двухцепная концевая опора 330 кВ. Шифр К330-2. Монтажная схема ТП 3-407-95-КМ-35 Двухцепная концевая опора 330 кВ К330-2. Монтажная схема, таблица элементов, выборки ТП 3-407-95-КМ-36 Двухцепная концевая опора 330 кВ К330-2. Геометрическая схема ствола опоры ТП 3-407-95-КМ-37 Двухцепная концевая опора 330 кВ К330-2. Схема подвески проводов на опоре ТП 3-407-95-КМ-38 Двухцепная концевая опора 330 кВ К330-2. Схема узлов ТП 3-407-95-КМ-39 Двухцепная концевая опора 330 кВ К330-2. Секция 1 ТП 3-407-95-КМ-40 Двухцепная концевая опора 330 кВ К330-2. Секция 2 ТП 3-407-95-КМ-41 Двухцепная концевая опора 330 кВ К330-2. Секция 3 (лист 1) ТП 3-407-95-КМ-42 Двухцепная концевая опора 330 кВ К330-2. Секция 3 (лист 2) ТП 3-407-95-КМ-43 Двухцепная концевая опора 330 кВ К330-2. Секция 4. Узел 8 ТП 3-407-95-КМ-44 Двухцепная концевая опора 330 кВ К330-2. Секция 4. Узел 9,10,11,12,13,14 ТП 3-407-95-КМ-45 Двухцепная концевая опора 330 кВ К330-2. Подставка. Узел 1 ТП 3-407-95-КМ-46 Двухцепная концевая опора 330 кВ К330-2. Подставка. Узлы 2,3,4,5,6,7 ТП 3-407-95-КМ-47 Двухцепная концевая опора 330 кВ К330-2. Стыки секций. Узлы 15,16 ТП 3-407-95-КМ-48 Двухцепная концевая опора 330 кВ К330-2. Стыки секций. Узлы 17,18 ТП 3-407-95-КМ-49 Двухцепная концевая опора 330 кВ К330-2. Траверса L=6,0 м ТП 3-407-95-КМ-50 Двухцепная концевая опора 330 кВ К330-2. Траверса L=7,0 м |
| Разработан: | Северо-западное отделение института Энергосетьпроект |
| Утверждён: | 13.08.1973 Энергосетьпроект (Energosetproject 113) |
| Расположен в: |























































