| ||||||||||||||||||||||||||||
Скачать Серия 3.407-124 Выпуск 1. Пояснительная записка и рабочие чертежиДата актуализации: 10.08.2017
|
| Обозначение: | Серия 3.407-124 |
| Обозначение англ: | Series 3.407-124 |
| Статус: | заменен |
| Название рус.: | Выпуск 1. Пояснительная записка и рабочие чертежи |
| Дата добавления в базу: | 01.09.2013 |
| Дата актуализации: | 05.05.2017 |
| Дата введения: | 01.03.1990 |
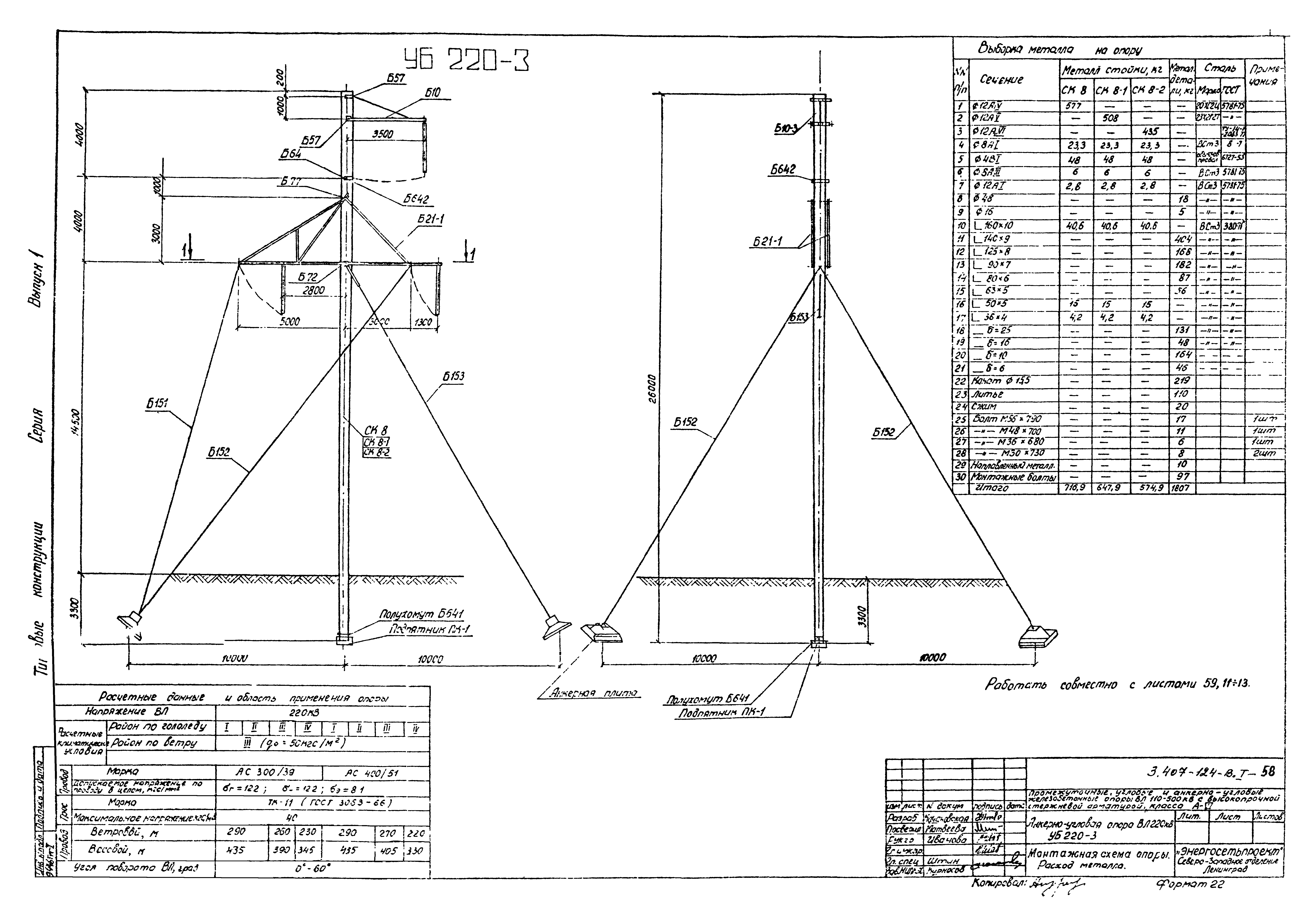
| Оглавление: | 3.407-124 Обложка 3.407-124 Титульный лист 3.407-124 вып.I-1 Перечень листов 3.407-124 вып.I-2-14 Пояснительная записка 3.407-124 вып.I-15 Промежуточная опора ВЛ 110 кВ ПБ110-1. Монтажная схема опоры. Расход металла 3.407-124 вып.I-16 Промежуточная опора ВЛ 110 кВ ПБ110-3. Монтажная схема опоры. Расход металла 3.407-124 вып.I-17 Промежуточная опора ВЛ 110 кВ ПБ110-5. Монтажная схема опоры. Расход металла 3.407-124 вып.I-18 Промежуточная опора ВЛ 110 кВ ПСБ110-1. Монтажная схема опоры. Расход металла 3.407-124 вып.I-19 Промежуточно-угловая специальная опора ВЛ 110 кВ ПУСБ110-1. Монтажная схема опоры. Таблица отправочных марок для поворота ВЛ влево 3.407-124 вып.I-20 Промежуточно-угловая специальная опора ВЛ 110 кВ ПУСБ110-1. Монтажная схема опоры. Таблица отправочных марок для поворота ВЛ вправо 3.407-124 вып.I-21 Промежуточно-угловая специальная опора ВЛ 110 кВ ПУСБ110-1. Расход металла 3.407-124 вып.I-22 Анкерно-угловая опора ВЛ 110 кВ УБ 110-1. Монтажная схема опоры. Расход металла 3.407-124 вып.I-23 Анкерно-угловая опора ВЛ 110 кВ УБ 110-1. Узлы. Перечень листов 3.407-124 вып.I-24 Анкерно-угловая опора ВЛ 110 кВ УБ 110-3 без оттяжек. Монтажная схема опоры. Таблица отправочных марок 3.407-124 вып.I-25 Анкерно-угловая опора ВЛ 110 кВ УБ 110-3 без оттяжек. Расход металла 3.407-124 вып.I-26 Анкерно-угловая опора ВЛ 110 кВ УБ 110-3 с оттяжками. Монтажная схема опоры. Таблица отправочных марок 3.407-124 вып.I-27 Анкерно-угловая опора ВЛ 110 кВ УБ 110-3 с оттяжками. Расход металла 3.407-124 вып.I-28 Анкерно-угловая специальная опора ВЛ 110 кВ УСБ 110-1. Монтажная схема опоры. Таблица отправочных марок 3.407-124 вып.I-29 Анкерно-угловая специальная опора ВЛ 110 кВ УСБ 110-1. Расход металла 3.407-124 вып.I-30 Анкерно-угловая специальная опора ВЛ 110 кВ УСБ 110-3. Монтажная схема опоры. Таблица отправочных марок 3.407-124 вып.I-31 Анкерно-угловая специальная опора ВЛ 110 кВ УСБ 110-3. Расход металла 3.407-124 вып.I-32 Анкерно-угловая специальная опора ВЛ 110 кВ УСБ 110-5 без оттяжек. . Монтажная схема опоры. Расход металла 3.407-124 вып.I-33 Анкерно-угловая специальная опора ВЛ 110 кВ УСБ 110-5 с оттяжками. Монтажная схема опоры. Таблица отправочных марок 3.407-124 вып.I-34 Анкерно-угловая специальная опора ВЛ 110 кВ УСБ 110-5 с оттяжками. Расход металла 3.407-124 вып.I-35 Анкерно-угловая специальная опора ВЛ 110 кВ УСБ 110-7. Монтажная схема опоры. Таблица отправочных марок 3.407-124 вып.I-36 Анкерно-угловая специальная опора ВЛ 110 кВ УСБ 110-7. Расход металла 3.407-124 вып.I-37 Анкерно-угловая специальная опора ВЛ 110 кВ УСБ 110-9. Монтажная схема опоры. Таблица отправочных марок 3.407-124 вып.I-38 Анкерно-угловая специальная опора ВЛ 110 кВ УСБ 110-9. Расход металла 3.407-124 вып.I-39 Концевая специальная опора ВЛ110 кВ КСБ110-1. Монтажная схема опоры. Таблица отправочных марок 3.407-124 вып.I-40 Концевая специальная опора ВЛ110 кВ КСБ110-1. Расход металла 3.407-124 вып.I-41 Промежуточная опора ВЛ 110 кВ ПБ110-2. Монтажная схема опоры. Расход металла 3.407-124 вып.I-42 Промежуточная опора ВЛ 110 кВ ПБ110-4. Монтажная схема опоры. Расход металла 3.407-124 вып.I-43 Промежуточная опора ВЛ 110 кВ ПБ110-6. Монтажная схема опоры. Расход металла 3.407-124 вып.I-44 Промежуточная опора ВЛ 110 кВ ПБ110-8. Монтажная схема опоры. Расход металла 3.407-124 вып.I-45 Промежуточная опора ВЛ 110 кВ ПБ110-10. Монтажная схема опоры. Расход металла 3.407-124 вып.I-46 Промежуточная опора ВЛ 150 кВ ПБ150-1. Монтажная схема опоры. Расход металла 3.407-124 вып.I-47 Промежуточная специальная опора ВЛ 150 кВ ПСБ150-1. Монтажная схема опоры. Таблица отправочных марок 3.407-124 вып.I-48 Промежуточная специальная опора ВЛ 220 кВ ПСБ220-1. Монтажная схема опоры. Таблица отправочных марок 3.407-124 вып.I-49 Промежуточные специальные опоры ВЛ 150 кВ, 220 кВ ПСБ 150-1,ПСБ220-1. Расход металла 3.407-124 вып.I-50 Промежуточная опора ВЛ 150 кВ ПБ150-2. Монтажная схема опоры. Расход металла 3.407-124 вып.I-51 Промежуточная опора ВЛ 220 кВ ПБ220-1. Монтажная схема опоры. Расход металла 3.407-124 вып.I-52 Промежуточная опора ВЛ 220 кВ ПБ220-3. Монтажная схема опоры. Расход металла 3.407-124 вып.I-53 Промежуточно-угловая специальная опора ВЛ 220 кВ ПУСБ 220-1 для поворота ВЛ влево. Монтажная схема опоры. Таблица отправочных марок 3.407-124 вып.I-54 Промежуточно-угловая специальная опора ВЛ 220 кВ ПУСБ 220-1 для поворота ВЛ вправо. Монтажная схема опоры. Таблица отправочных марок 3.407-124 вып.I-55 Промежуточно-угловая специальная опора ВЛ 220 кВ ПУСБ 220-1. Расход металла 3.407-124 вып.I-56 Анкерно-угловая опора ВЛ 220 кВ УБ220-1. Монтажная схема опоры. Таблица отправочных марок 3.407-124 вып.I-57 Анкерно-угловая опора ВЛ 220 кВ УБ220-1. Расход металла 3.407-124 вып.I-58 Анкерно-угловая опора ВЛ 220 кВ УБ220-3. Монтажная схема опоры. Расход металла 3.407-124 вып.I-59 Анкерно-угловая опора ВЛ 220 кВ УБ220-3. Таблица отправочных марок 3.407-124 вып.I-60 Анкерно-угловая опора ВЛ 220 кВ УБ220-7. Монтажная схема опоры. Расход металла 3.407-124 вып.I-61 Анкерно-угловая опора ВЛ 220 кВ УБ220-9. Монтажная схема опоры. Расход металла 3.407-124 вып.I-62 Анкерно-угловая специальная опора ВЛ 220 кВ УСБ220-1. Монтажная схема опоры 3.407-124 вып.I-63 Анкерно-угловая специальная опора ВЛ 220 кВ УСБ220-1. Расход металла 3.407-124 вып.I-64 Промежуточная опора ВЛ 220 кВ ПБ 220-2. Монтажная схема опоры. Таблица отправочных марок 3.407-124 вып.I-65 Промежуточная опора ВЛ 220 кВ ПБ 220-2. Расход металла 3.407-124 вып.I-66 Промежуточная опора ВЛ 220 кВ ПБ 220-4. Монтажная схема опоры. Таблица отправочных марок 3.407-124 вып.I-67 Промежуточная опора ВЛ 220 кВ ПБ 220-4. Расход металла 3.407-124 вып.I-68 Промежуточная опора ВЛ 330 кВ ПБ 330-1. Монтажная схема опоры. Таблица отправочных марок 3.407-124 вып.I-69 Промежуточная опора ВЛ 330 кВ ПБ 330-3. Монтажная схема опоры. Таблица отправочных марок 3.407-124 вып.I-70 Промежуточные опоры ВЛ 3309 кВ ПБ 330-1 и ПБ 330-3. Расход металла 3.407-124 вып.I-71 Анкерно-угловая опора ВЛ 330 кВ УБ 330-1. Монтажная схема опоры 3.407-124 вып.I-72 Анкерно-угловая опора ВЛ 330 кВ УБ 330-1. Таблица отправочных марок 3.407-124 вып.I-73 Анкерно-угловая опора ВЛ 330 кВ УБ 330-1. Расход металла 3.407-124 вып.I-74 Промежуточно-угловая специальная опора ВЛ 330 кВ ПУСБ 330-1. Монтажная схема опоры. Таблица отправочных марок 3.407-124 вып.I-75 Промежуточно-угловая специальная опора ВЛ 330 кВ ПУСБ 330-1. Расход металла 3.407-124 вып.I-76 Промежуточная опора ВЛ 330 кВ ПВС 330-АМ. Монтажная схема опоры. Таблица отправочных марок 3.407-124 вып.I-77 Промежуточные опоры ВЛ 330 кВ ПВС 330-АМ, ПВС 330-IIМ. Расход металла 3.407-124 вып.I-78 Промежуточная опора ВЛ 330 кВ ПВС 330-IIМ. Монтажная схема опоры. Таблица отправочных марок 3.407-124 вып.I-79 Промежуточная опора ВЛ 330 кВ ПВС 330-АМ, ПВС 330-IIМ. Узлы 3.407-124 вып.I-80 Промежуточная опора ВЛ 500 кВ ПВС500. Монтажная схема опоры. Таблица отправочных марок 3.407-124 вып.I-81 Промежуточная опора ВЛ 500 кВ ПВС500ц-2. Монтажная схема опоры. Таблица отправочных марок 3.407-124 вып.I-82 Промежуточные опоры ВЛ 500 кВ ПВС 500 и ПВС 500ц-2. Расход металла 3.407-124 вып.I-83 Стойка СК1-2. Чертеж армирования 3.407-124 вып.I-84 Стойка СК1-2. Разрезы и спецификация 3.407-124 вып.I-85 Стойка СК2-2. Чертеж армирования 3.407-124 вып.I-86 Стойка СК2-2. Разрезы и спецификация 3.407-124 вып.I-87 Стойка СК3-2. Чертеж армирования 3.407-124 вып.I-88 Стойка СК3-2. Разрезы и спецификация 3.407-124 вып.I-89 Стойка СК4-2. Чертеж армирования 3.407-124 вып.I-90 Стойка СК4-2. Разрезы и спецификация 3.407-124 вып.I-91 Стойка СК14-2. Чертеж армирования 3.407-124 вып.I-92 Стойка СК14-2. Разрезы и спецификация 3.407-124 вып.I-93 Стойка СК14-2н. Чертеж армирования 3.407-124 вып.I-94 Стойка СК14-2н. Разрезы и спецификация 3.407-124 вып.I-95 Стойка СК5-2. Чертеж армирования 3.407-124 вып.I-96 Стойка СК5-2. Разрезы и спецификация 3.407-124 вып.I-97 Стойка СК6-2. Чертеж армирования 3.407-124 вып.I-98 Стойка СК6-2. Разрезы и спецификация 3.407-124 вып.I-99 Стойка СК7-2. Чертеж армирования 3.407-124 вып.I-100 Стойка СК7-2. Разрезы и спецификация 3.407-124 вып.I-101 Стойка СК8-2. Чертеж армирования 3.407-124 вып.I-102 Стойка СК8-2. Разрезы и спецификация 3.407-124 вып.I-103 Стойка СЦ30-2. Чертеж армирования 3.407-124 вып.I-104 Стойка СЦ30-2. Разрезы и спецификация 3.407-124 вып.I-105 Стойка СЦ36-2. Чертеж армирования 3.407-124 вып.I-106 Стойка СЦ36-2. Разрезы и спецификация 3.407-124 вып.I-107 Стойка СЦ8-2. Чертеж армирования 3.407-124 вып.I-108 Стойка СЦ8-2. Разрезы и спецификация 3.407-124 вып.I-109 Стойка СЦ10-2. Чертеж армирования 3.407-124 вып.I-110 Стойка СЦ10-2. Разрезы и спецификация 3.407-124 вып.I-111 Стойка СЦ11-2. Чертеж армирования 3.407-124 вып.I-112 Стойка СЦ11-2. Разрезы и спецификация |
| Разработан: | НИИЖБ Госстроя СССР Северо-западное отделение института Энергосетьпроект |
| Утверждён: | 22.12.1977 Минэнерго СССР (USSR Minenergo 15173) |
| Расположен в: | |
| Чем заменён: |
















































































































