Скачать Типовой проект 902-2-311 Альбом IV. Строительная часть. Узлы, детали, сборные железобетонные элементыДата актуализации: 10.08.2017 Типовой проект 902-2-311
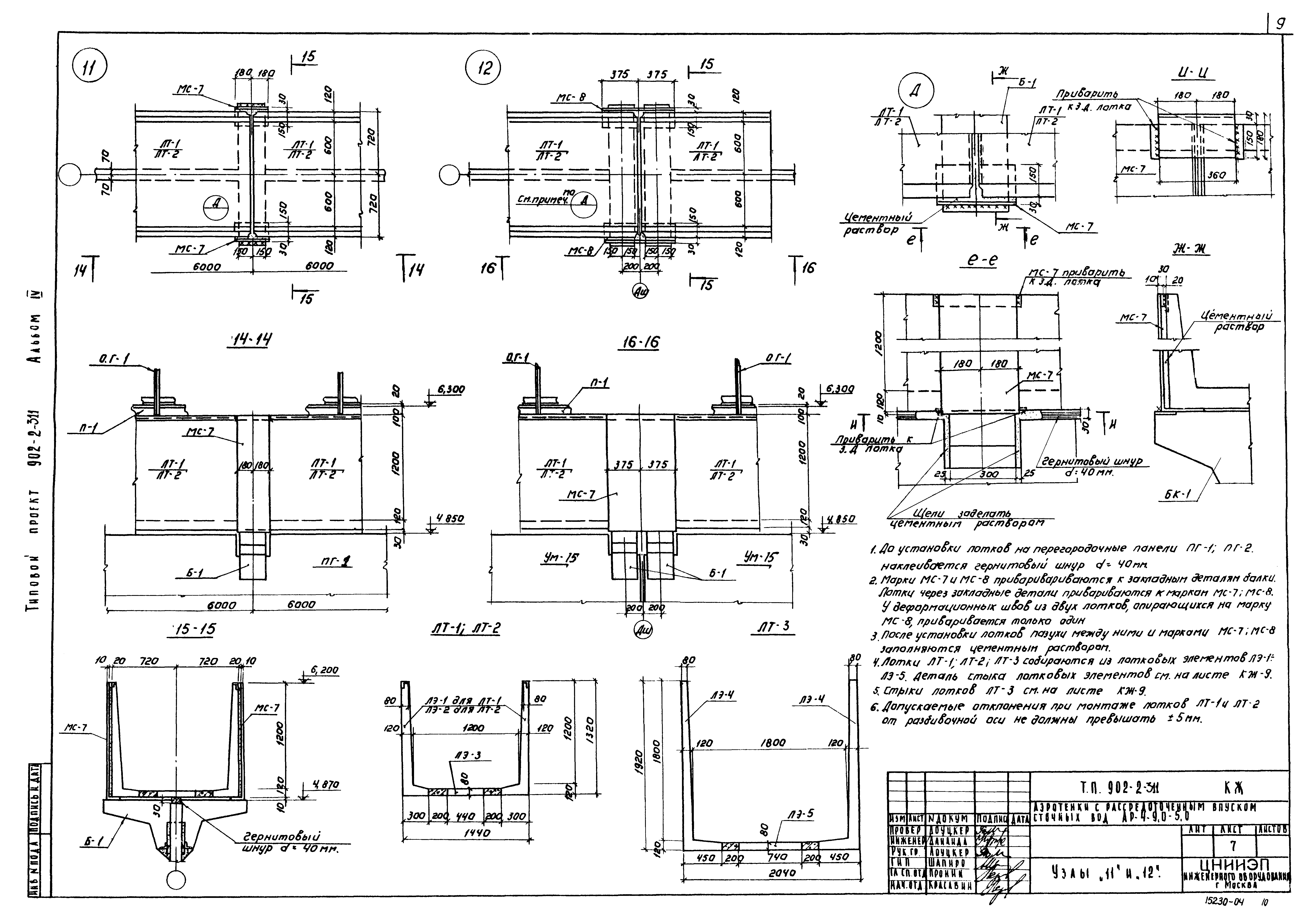
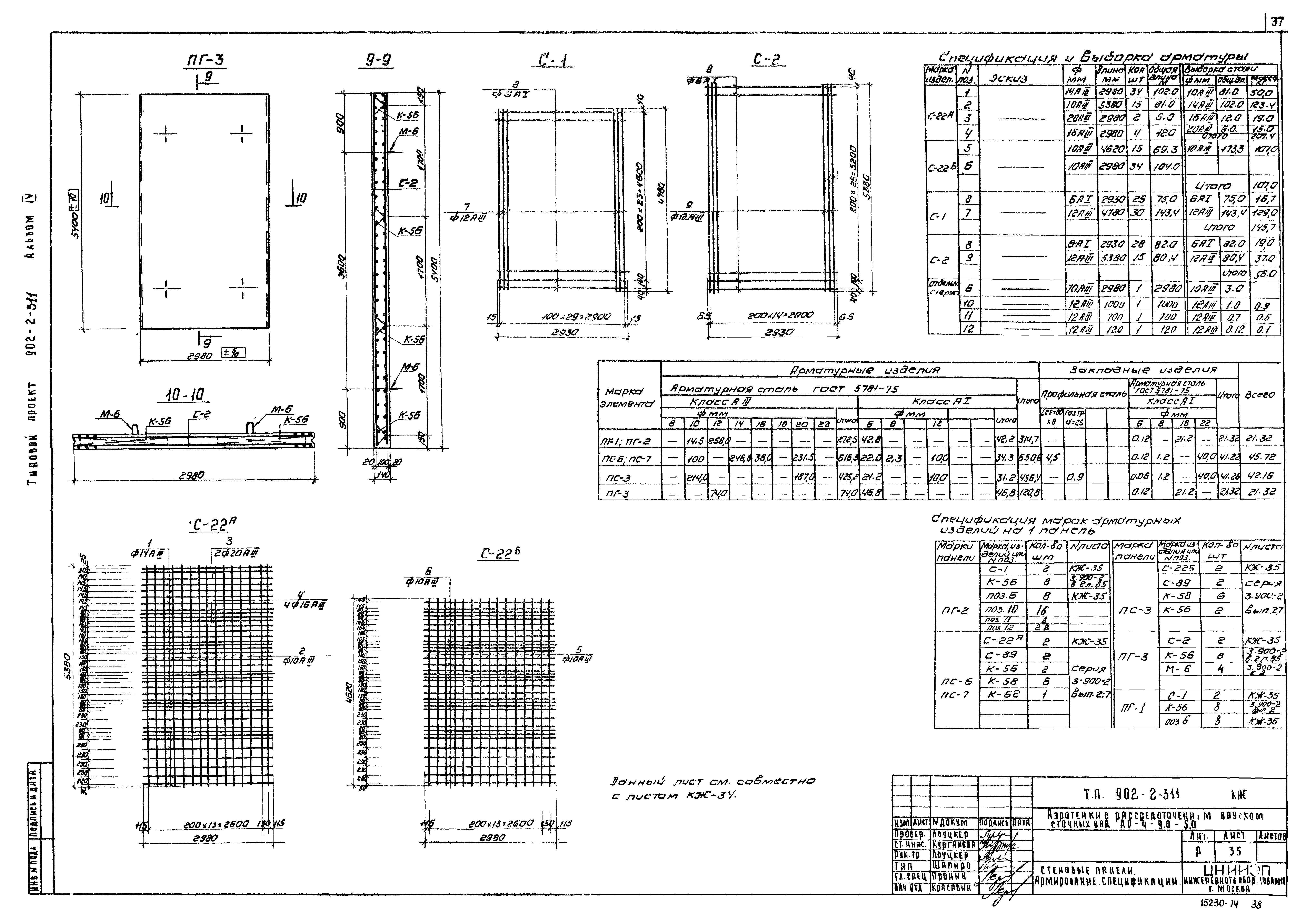
Альбом IV. Строительная часть. Узлы, детали, сборные железобетонные элементыОбозначение: | Типовой проект 902-2-311 | Обозначение англ: | 902-2-311 | Статус: | действует | Название рус.: | Альбом IV. Строительная часть. Узлы, детали, сборные железобетонные элементы | Дата добавления в базу: | 01.09.2013 | Дата актуализации: | 05.05.2017 | Дата введения: | 13.12.1977 | Оглавление: | ТП 902-2-311-КЖ-1 Узлы "1";"2" ТП 902-2-311-КЖ-2 Узлы "3";"4" ТП 902-2-311-КЖ-3 Узлы "5";"6" ТП 902-2-311-КЖ-4 Узлы "5";"6". Сечения ТП 902-2-311-КЖ-5 Узлы "7";"8" ТП 902-2-311-КЖ-6 Узлы "9";"10" ТП 902-2-311-КЖ-7 Узлы "11";"12" ТП 902-2-311-КЖ-8 Детали стыков стеновых панелей ТП 902-2-311-КЖ-9 Детали установки панелей, балок, плит, лотков ТП 902-2-311-КЖ-10 Детали установки фильтросных лотков ТП 902-2-311-КЖ-11 План чистого пола днища. Разрезы ТП 902-2-311-КЖ-12 Днище. Опалубочный чертеж. Узлы ТП 902-2-311-КЖ-13 Днище. Армирование. Узлы 1-5 ТП 902-2-311-КЖ-14 Днище. Армирование. Узлы 6-8 ТП 902-2-311-КЖ-15 Днище. Армирование. Сетки. Каркасы ТП 902-2-311-КЖ-16 Монолитные участки стен. Опалубочный чертеж. Планы ТП 902-2-311-КЖ-17 Монолитные участки стен. Опалубочный чертеж. Разрезы ТП 902-2-311-КЖ-18 Монолитные участки стен УМ-1;УМ-13;УМ-14. Армирование ТП 902-2-311-КЖ-19 Монолитные участки стен УМ-3. Армирование ТП 902-2-311-КЖ-20 Монолитные участки стен УМ-2;УМ-4. Армирование ТП 902-2-311-КЖ-21 Монолитные участки стен УМ-9;УМ-10;УМ-11;УМ-5. Армирование ТП 902-2-311-КЖ-22 Монолитные участки стен УМ-6;УМ-18. Армирование ТП 902-2-311-КЖ-23 Монолитные участки стен УМ-7;УМ-15;УМ-16. Армирование ТП 902-2-311-КЖ-24 Монолитные участки стен УМ-8;УМ-12;УМ-20;УМ-21. Армирование ТП 902-2-311-КЖ-25 Монолитные участки стен УМ-17;УМ-19. Армирование ТП 902-2-311-КЖ-26 Монолитные участки стен. Арматурные сетки С-1÷С-8 ТП 902-2-311-КЖ-27 Монолитные участки стен. Арматурные сетки С-9÷С-12. Спецификация ТП 902-2-311-КЖ-28 Монолитные участки стен. Армирование. Ведомость стержней на 1 элемент ТП 902-2-311-КЖ-29 Монолитные участки стен. Выборки и спецификации ТП 902-2-311-КЖ-30 Монолитные лотки ЛТМ-1÷ЛТМ-4. Опалубочный чертеж ТП 902-2-311-КЖ-31 Монолитные лотки ЛТМ-1÷ЛТМ-4. Армирование ТП 902-2-311-КЖ-32 Монолитные лотки ЛТМ-5. Опалубочный чертеж. Армирование ТП 902-2-311-КЖ-33 Стеновые панели. Опалубочный чертеж ТП 902-2-311-КЖ-34 Стеновые панели. Армирование ТП 902-2-311-КЖ-35 Стеновые панели. Армирование. Спецификации ТП 902-2-311-КЖ-36 Плиты П-1;П-2. Лоток ЛТ-4. Опалубочный чертеж. Армирование ТП 902-2-311-КЖ-37 Балка Б-1. Опалубочный чертеж. Армирование ТП 902-2-311-КЖ-38 Лотковые элементы ЛЭ-1÷ЛЭ-5. Опалубочный чертеж. Армирование ТП 902-2-311-КЖ-39 Лотковые элементы ЛЭ-1÷ЛЭ-5. Арматурные сетки. Спецификации ТП 902-2-311-КЖ-40 Металлические площадки МП-1÷МП-5 ТП 902-2-311-КЖ-41 Металлические марки. Закладные детали | Разработан: | ЦНИИЭП иженерного оборудования
| Утверждён: | 22.07.1974 Госгражданстрой (Gosgrazhdanstroy 164)
| Расположен в: |
|
                                           
|