| ||||||||||||||||||||||||||
Скачать Шифр 23.0067 Установка длинно-искровых разрядников типа РДИП-10 на опорах ВЛ 10 кВ с защитными проводамиДата актуализации: 10.08.2017
|
| Обозначение: | Шифр 23.0067 |
| Обозначение англ: | 23.0067 |
| Статус: | не определен законодательством |
| Название рус.: | Установка длинно-искровых разрядников типа РДИП-10 на опорах ВЛ 10 кВ с защитными проводами |
| Дата добавления в базу: | 01.09.2013 |
| Дата актуализации: | 05.05.2017 |
| Дата введения: | 01.01.2003 |
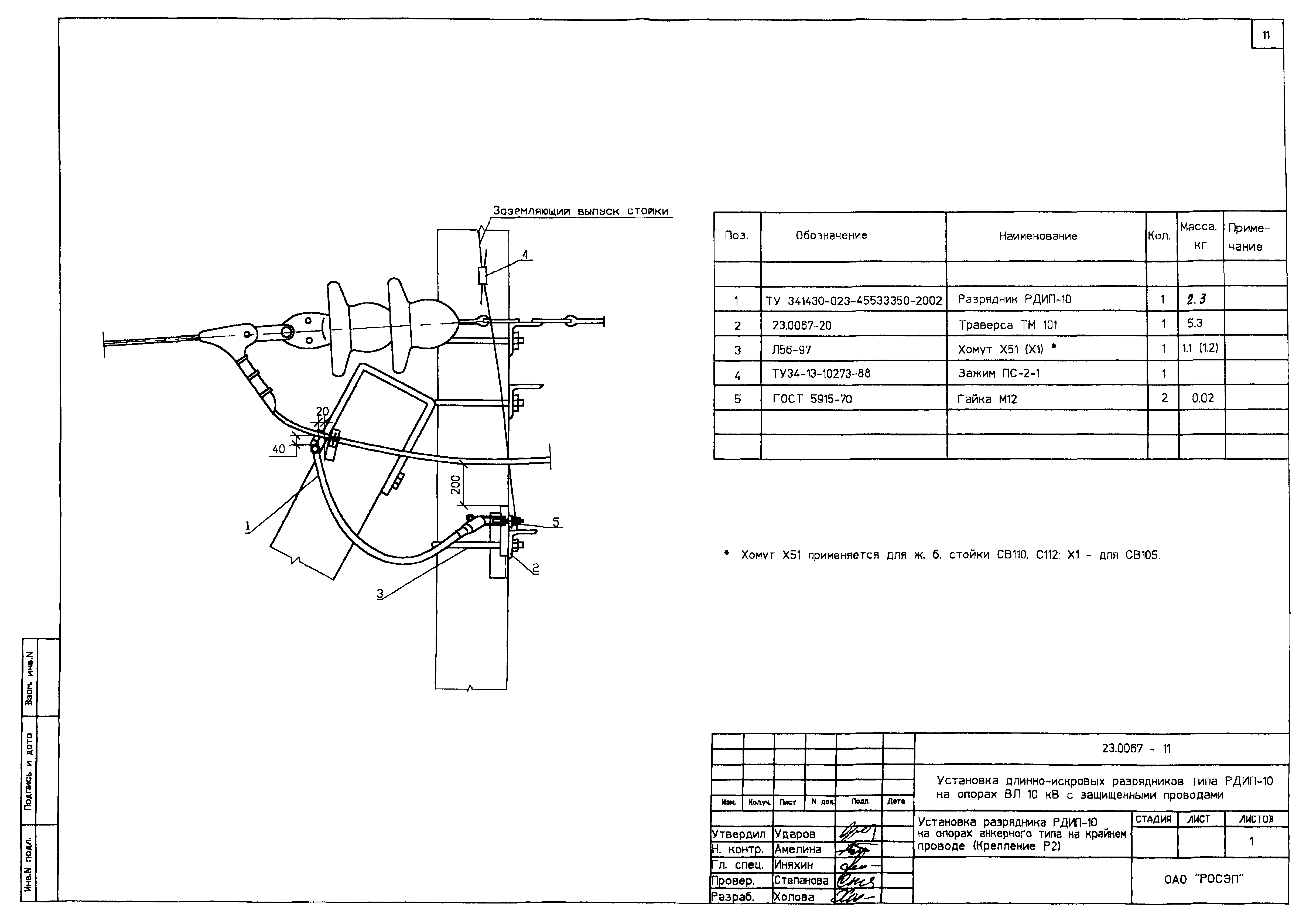
| Оглавление: | 23.0067-ПЗ Пояснительная записка 23.0067-01 Схемы размещения длинно-искровых разрядников РДИП-10 на одноцепной и двухцепной ВЛЗ 10 кВ 23.0067-02 Установка разрядника РДИП-10 на опоре ВЛЗ 10 кВ (Крепление Р1) 23.0067-03 Схемы креплений Р1...Р8 23.0067-04 Перечень изделий на крепления Р1...Р8 23.0067-05 Подбор типов креплений на опоры к проекту шифр Л56-97 23.0067-06 Подбор типов креплений на опоры к проекту шифр Л57-97 23.0067-07 Подбор типов креплений на опоры к проекту шифр 19.0157 23.0067-08 Подбор типов креплений на опоры к проекту шифр 20.0027 23.0067-09 Подбор типов креплений на опоры к проекту шифр 21.0050 23.0067-10 Схемы размещения длинно-искровых разрядников РДИП-10 на одноцепной ВЛЗ 10 кВ на опорах анкерного типа (Крепление Р2) 23.0067-11 Установка разрядника РДИП-10 на опорах анкерного типа на крайнем проводе (Крепление Р2) 23.0067-12 Установка разрядника РДИП-10 на опорах анкерного типа на среднем проводе (Крепление Р2) 23.0067-13 Установка разрядника РДИП-10 на одноцепных угловых промежуточных опорах (Крепление Р3) 23.0067-14 Установка разрядника РДИП-10 на угловых анкерных опорах на фазе А (Крепление Р4) 23.0067-15 Установка разрядника РДИП-10 на угловых анкерных опорах на фазах В, С (Крепление Р4) 23.0067-16 Установка разрядника РДИП-10 на двухцепных опорах анкерного типа (Крепление Р5) 23.0067-17 Установка разрядника РДИП-10 на двухцепных угловых промежуточных опорах (Крепление Р6) 23.0067-18 Установка разрядника РДИП-10 на угловых промежуточных опорах (Крепление Р7) 23.0067-19 Установка разрядника РДИП-10 на повышенных угловых промежуточных опорах (Крепление Р8) 23.0067 Металлические конструкции 23.0067-20 Траверса ТМ101 23.0067-21 Траверса ТМ102 |
| Разработан: | ОАО РОСЭП |
| Утверждён: | 01.01.2003 ОАО РОСЭП |
| Расположен в: |





















