Информационная система
«Ёшкин Кот»

Скачать базу одним архивом
Скачать обновления
История создания базы
Карта сайта

Скачать Серия 1.436.2-17 Выпуск 2. Часть 1. Окна с раздельными переплетами. Рабочие чертежи

Дата актуализации: 10.08.2017

Серия 1.436.2-17

Выпуск 2. Часть 1. Окна с раздельными переплетами. Рабочие чертежи

Обозначение: Серия 1.436.2-17
Обозначение англ: Series 1.436.2-17
Статус:не действует
Название рус.:Выпуск 2. Часть 1. Окна с раздельными переплетами. Рабочие чертежи
Дата добавления в базу:01.09.2013
Дата актуализации:05.05.2017
Дата введения:01.06.1982
Дата окончания срока действия:01.12.1987
Оглавление:1.436.2-17.2 Содержание
1.436.2-17.2.00.00.00.00 Окно с раздельным переплетом
1.436.2-17.2.00.00.00.00 ВС Окно с раздельным переплетом. Ведомость спецификаций
1.436.2-17.2.00.00.00.00 ВП Окно с раздельным переплетом. Ведомость покупных изделий
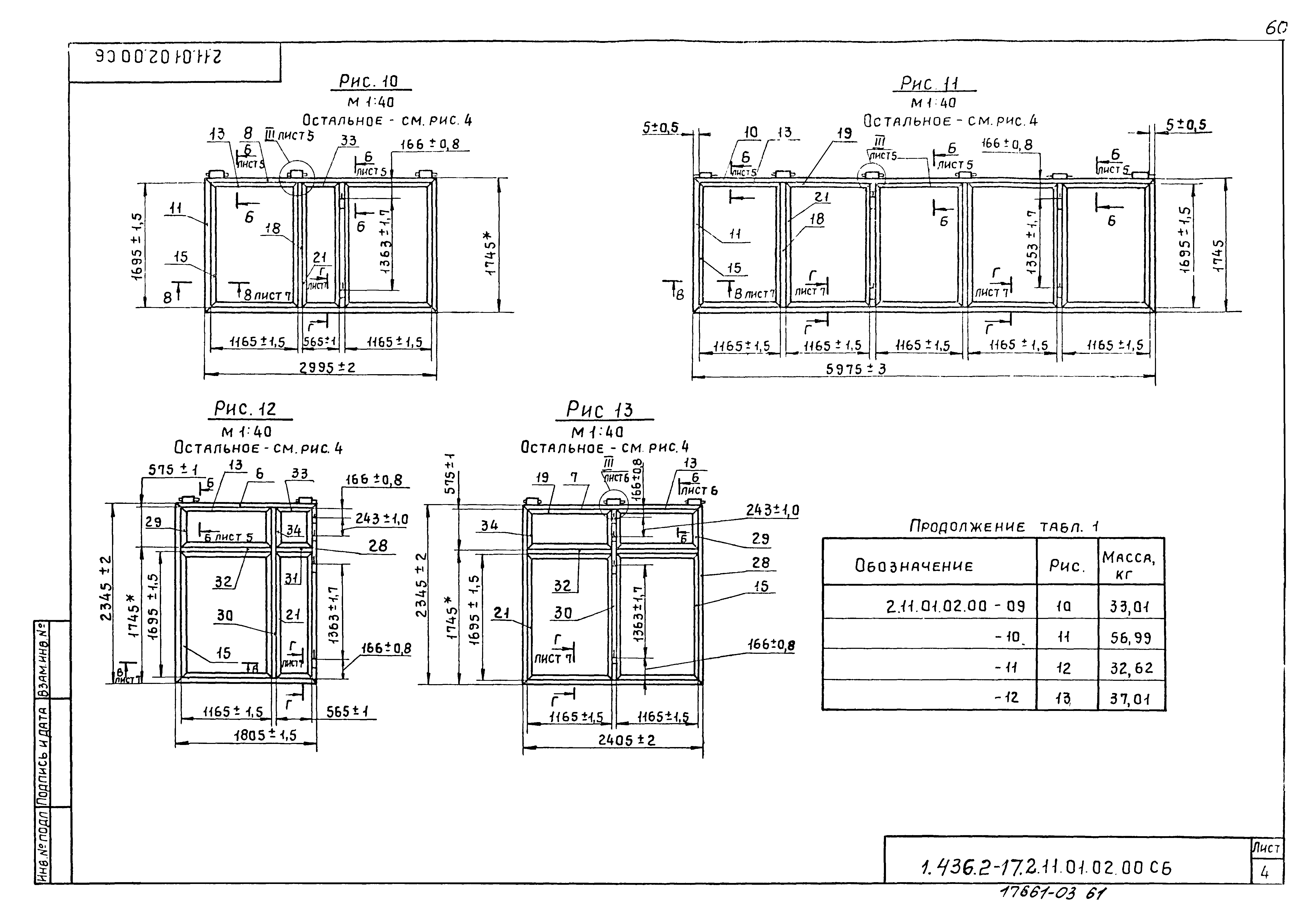
1.436.2-17.2.11.00.00.00 Окно с раздельным переплетом глухое
1.436.2-17.2.11.00.00.00 СБ Окна с раздельным переплетом глухое. Сборочный чертеж
1.436.2-17.2.11.01.00.00 Рама
1.436.2-17.2.11.01.00.00 СБ Рама. Сборочный чертеж
1.436.2-17.2.11.01.01.00 Рама
1.436.2-17.2.11.01.01.00 СБ Рама. Сборочный чертеж
1.436.2-17.2.11.01.02.00 Рама
1.436.2-17.2.11.01.02.00 СБ Рама. Сборочный чертеж
1.436.2-17.2.11.02.00.00 Фрамуга
1.436.2-17.2.11.02.00.00 СБ Фрамуга. Сборочный чертеж
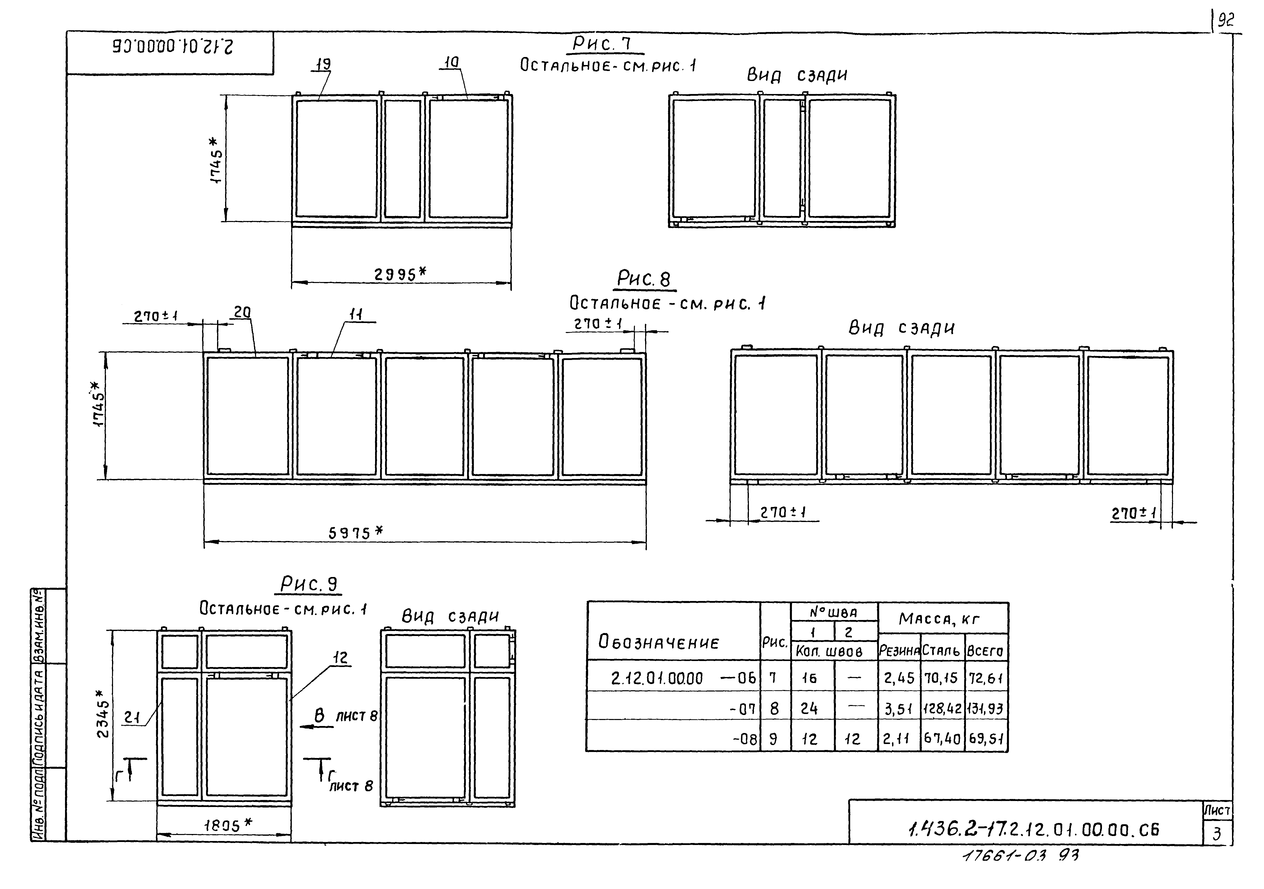
1.436.2-17.2.12.00.00.00 Окно с раздельным переплетом открывающееся подвесное откидное
1.436.2-17.2.12.00.00.00 СБ Окно с раздельным переплетом открывающееся подвесное откидное. Сборочный чертеж
1.436.2-17.2.12.01.00.00 Рама
1.436.2-17.2.12.01.00.00 СБ Рама. Сборочный чертеж
1.436.2-17.2.12.01.01.00 Рама
1.436.2-17.2.12.01.01.00 СБ Рама. Сборочный чертеж
1.436.2-17.2.12.01.02.00 Рама
1.436.2-17.2.12.01.02.00 СБ Рама. Сборочный чертеж
Разработан: Промстройпроект
Утверждён:05.02.1982 Госстрой СССР (Государственный комитет Совета Министров СССР по делам строительства) (USSR Gosstroy 8)
Расположен в:Техническая документация Строительство Справочные документы Типовые строительные конструкции, изделия и узлы Общероссийский строительный каталог Строительные конструкции, изделия и узлы зданий и сооружений для всех видов строительства Конструкции, изделия и узлы зданий Ограждающие конструкции Окна и балконные двери
Чем заменён:
Серия 1.436.2-17Серия 1.436.2-17Серия 1.436.2-17Серия 1.436.2-17Серия 1.436.2-17Серия 1.436.2-17Серия 1.436.2-17Серия 1.436.2-17Серия 1.436.2-17Серия 1.436.2-17Серия 1.436.2-17Серия 1.436.2-17Серия 1.436.2-17Серия 1.436.2-17Серия 1.436.2-17Серия 1.436.2-17Серия 1.436.2-17Серия 1.436.2-17Серия 1.436.2-17Серия 1.436.2-17Серия 1.436.2-17Серия 1.436.2-17Серия 1.436.2-17Серия 1.436.2-17Серия 1.436.2-17Серия 1.436.2-17Серия 1.436.2-17Серия 1.436.2-17Серия 1.436.2-17Серия 1.436.2-17Серия 1.436.2-17Серия 1.436.2-17Серия 1.436.2-17Серия 1.436.2-17Серия 1.436.2-17Серия 1.436.2-17Серия 1.436.2-17Серия 1.436.2-17Серия 1.436.2-17Серия 1.436.2-17Серия 1.436.2-17Серия 1.436.2-17Серия 1.436.2-17Серия 1.436.2-17Серия 1.436.2-17Серия 1.436.2-17Серия 1.436.2-17Серия 1.436.2-17Серия 1.436.2-17Серия 1.436.2-17Серия 1.436.2-17Серия 1.436.2-17Серия 1.436.2-17Серия 1.436.2-17Серия 1.436.2-17Серия 1.436.2-17Серия 1.436.2-17Серия 1.436.2-17Серия 1.436.2-17Серия 1.436.2-17Серия 1.436.2-17Серия 1.436.2-17Серия 1.436.2-17Серия 1.436.2-17Серия 1.436.2-17Серия 1.436.2-17Серия 1.436.2-17Серия 1.436.2-17Серия 1.436.2-17Серия 1.436.2-17Серия 1.436.2-17Серия 1.436.2-17Серия 1.436.2-17Серия 1.436.2-17Серия 1.436.2-17Серия 1.436.2-17Серия 1.436.2-17Серия 1.436.2-17Серия 1.436.2-17Серия 1.436.2-17Серия 1.436.2-17Серия 1.436.2-17Серия 1.436.2-17Серия 1.436.2-17Серия 1.436.2-17Серия 1.436.2-17Серия 1.436.2-17Серия 1.436.2-17Серия 1.436.2-17Серия 1.436.2-17Серия 1.436.2-17Серия 1.436.2-17Серия 1.436.2-17Серия 1.436.2-17Серия 1.436.2-17Серия 1.436.2-17Серия 1.436.2-17Серия 1.436.2-17Серия 1.436.2-17Серия 1.436.2-17Серия 1.436.2-17Серия 1.436.2-17Серия 1.436.2-17Серия 1.436.2-17Серия 1.436.2-17Серия 1.436.2-17Серия 1.436.2-17Серия 1.436.2-17Серия 1.436.2-17Серия 1.436.2-17Серия 1.436.2-17Серия 1.436.2-17Серия 1.436.2-17Серия 1.436.2-17Серия 1.436.2-17Серия 1.436.2-17Серия 1.436.2-17Серия 1.436.2-17

© 2013 Ёшкин Кот :-) Карта сайта