Информационная система
«Ёшкин Кот»

Скачать базу одним архивом
Скачать обновления
История создания базы
Карта сайта

Скачать Серия 1.432-10 Выпуск 2. Панели длиной 6 м

Дата актуализации: 10.08.2017

Серия 1.432-10

Выпуск 2. Панели длиной 6 м

Обозначение: Серия 1.432-10
Обозначение англ: Series 1.432-10
Статус:заменен
Название рус.:Выпуск 2. Панели длиной 6 м
Дата добавления в базу:01.09.2013
Дата актуализации:05.05.2017
Дата введения:01.03.1992
Область применения:Данный выпуск содержит рабочие чертежи стеновых панелей длиной 6 м, запроектированных с сохранением опалубочных размеров панелей из тяжелого бетона серии 1.432-5
Оглавление:1.432-10 Содержание
1.432-10 Пояснительная записка
1.432-10 Номенклатура предварительно напряженных панелей из легких бетонов, армированных сталью класса Вр-II
1.432-10 Номенклатура предварительно напряженных панелей из легких бетонов, армированных сталью класса Вр-II и номенклатура рядовых доборных панелей
1.432-10 Номенклатура предварительно напряженных панелей из легких бетонов, армированных сталью класса А-IV
1.432-10 Номенклатура предварительно напряженных панелей из легких бетонов, армированных сталью класса А-V
1.432-10 Опалубка рядовых панелей
1.432-10 Опалубка рядовых панелей, устанавливаемых у температурного шва и в углу зданий по продольной стене
1.432-10 Спецификация арматурных изделий и выборки стали, арматура класса Вр-II, панели рядовые и устанавливаемые у температурного шва и в углу зданий по продольной стене
1.432-10 Спецификация арматурных изделий и выборка стали, арматура класса А-IV, панели рядовые и устанавливаемые у температурного шва и в углу зданий по продольной стене
1.432-10 Спецификация арматурных изделий и выборка стали, арматура класса А-V, панели рядовые и устанавливаемые у температурного шва и в углу зданий по продольной стене
1.432-10 Опалубка рядовых панелей, устанавливаемых в углу зданий по торцовой стене при привязке продольной стены "0"
1.432-10 Опалубка рядовых панелей, устанавливаемых в углу зданий по торцовой стене при привязке продольной стены "250"
1.432-10 Спецификация арматурных изделий и выборка стали, арматура класса Вр-II, рядовые панели, устанавливаемые в углу зданий по торцовой стене при привязке продольной стены "0" и "250"
1.432-10 Спецификация арматурных изделий и выборка стали, арматура класса А-IV, рядовые панели, устанавливаемые в углу зданий по торцовой стене при привязке продольной стены "0" и "250"
1.432-10 Спецификация арматурных изделий и выборка стали, арматура класса А-V, рядовые панели, устанавливаемые в углу зданий по торцовой стене при привязке продольной стены "0" и "250"
1.432-10 Опалубка подкарнизных панелей
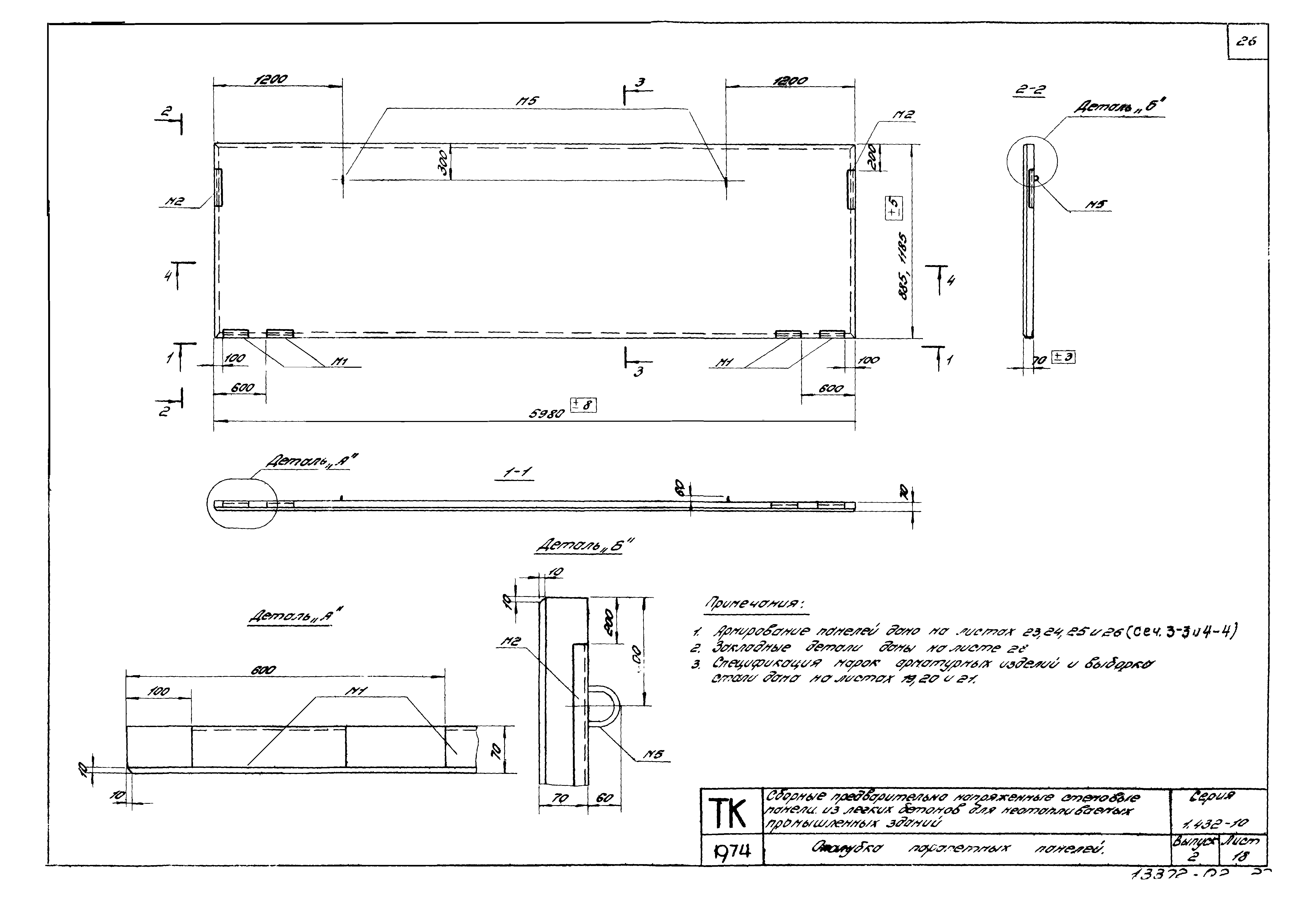
1.432-10 Опалубка парапетных панелей
1.432-10 Спецификация арматурных изделий и выборка стали, арматура класса Вр-II, подкарнизные и парапетные панели
1.432-10 Спецификация арматурных изделий и выборка стали, арматура класса А-IV, подкарнизные и парапетные панели
1.432-10 Спецификация арматурных изделий и выборка стали, арматура класса А-V, подкарнизные и парапетные панели
1.432-10 Опалубка и армирование рядовых доборных панелей. Детали. Спецификация и выборка стали
1.432-10 Армирование панелей сталью класса Вр-II. Сечения 3-3
1.432-10 Армирование панелей сталью класса А-IV. Сечения 3-3
1.432-10 Армирование панелей сталью класса А-V. Сечения 3-3
1.432-10 Армирование панелей. Сечение 4-4
1.432-10 Арматурные сетки С1-С7,С1а-С4а,С1б,С2б,С4б. Спецификация и выборка стали
1.432-10 Закладные детали М1-М6
Разработан: ЦНИИпромзданий
НИИЖБ
Утверждён:23.07.1975 Госстрой СССР (Государственный комитет Совета Министров СССР по делам строительства) (USSR Gosstroy )
Расположен в:Техническая документация Строительство Справочные документы Типовые строительные конструкции, изделия и узлы Общероссийский строительный каталог Строительные конструкции, изделия и узлы зданий и сооружений для всех видов строительства Конструкции, изделия и узлы зданий Ограждающие конструкции Стены наружные Панели (бетонные и железобетонные)
Чем заменён:
Нормативные ссылки:
Серия 1.432-10Серия 1.432-10Серия 1.432-10Серия 1.432-10Серия 1.432-10Серия 1.432-10Серия 1.432-10Серия 1.432-10Серия 1.432-10Серия 1.432-10Серия 1.432-10Серия 1.432-10Серия 1.432-10Серия 1.432-10Серия 1.432-10Серия 1.432-10Серия 1.432-10Серия 1.432-10Серия 1.432-10Серия 1.432-10Серия 1.432-10Серия 1.432-10Серия 1.432-10Серия 1.432-10Серия 1.432-10Серия 1.432-10Серия 1.432-10Серия 1.432-10Серия 1.432-10Серия 1.432-10Серия 1.432-10Серия 1.432-10Серия 1.432-10Серия 1.432-10Серия 1.432-10Серия 1.432-10Серия 1.432-10Серия 1.432-10

© 2013 Ёшкин Кот :-) Карта сайта