Информационная система
«Ёшкин Кот»

Скачать базу одним архивом
Скачать обновления
История создания базы
Карта сайта

Скачать Серия 1.432-10 Выпуск 1. Панели длиной 12 м

Дата актуализации: 10.08.2017

Серия 1.432-10

Выпуск 1. Панели длиной 12 м

Обозначение: Серия 1.432-10
Обозначение англ: Series 1.432-10
Статус:заменен
Название рус.:Выпуск 1. Панели длиной 12 м
Дата добавления в базу:01.09.2013
Дата актуализации:05.05.2017
Дата введения:01.03.1992
Область применения:Данный выпуск содержит рабочие чертежи стеновых панелей длиной 12 м, запроектированных с сохранением опалубочных размеров панелей из тяжелого бетона серии СТ-02-19/68
Оглавление:1.432-10 Содержание
1.432-10 Пояснительная записка
1.432-10 Номенклатура панелей из легких бетонов
1.432-10 Опалубочный чертеж рядовых панелей
1.432-10 Выборка стали на рядовые панели. Спецификация марок арматурных изделий
1.432-10 Опалубочный чертеж парапетных панелей
1.432-10 Выборка стали на парапетные панели. Спецификация марок арматурных изделий
1.432-10 Опалубочный чертеж панелей-перемычек
1.432-10 Выборка стали на панели-перемычки. Спецификация марок арматурных изделий
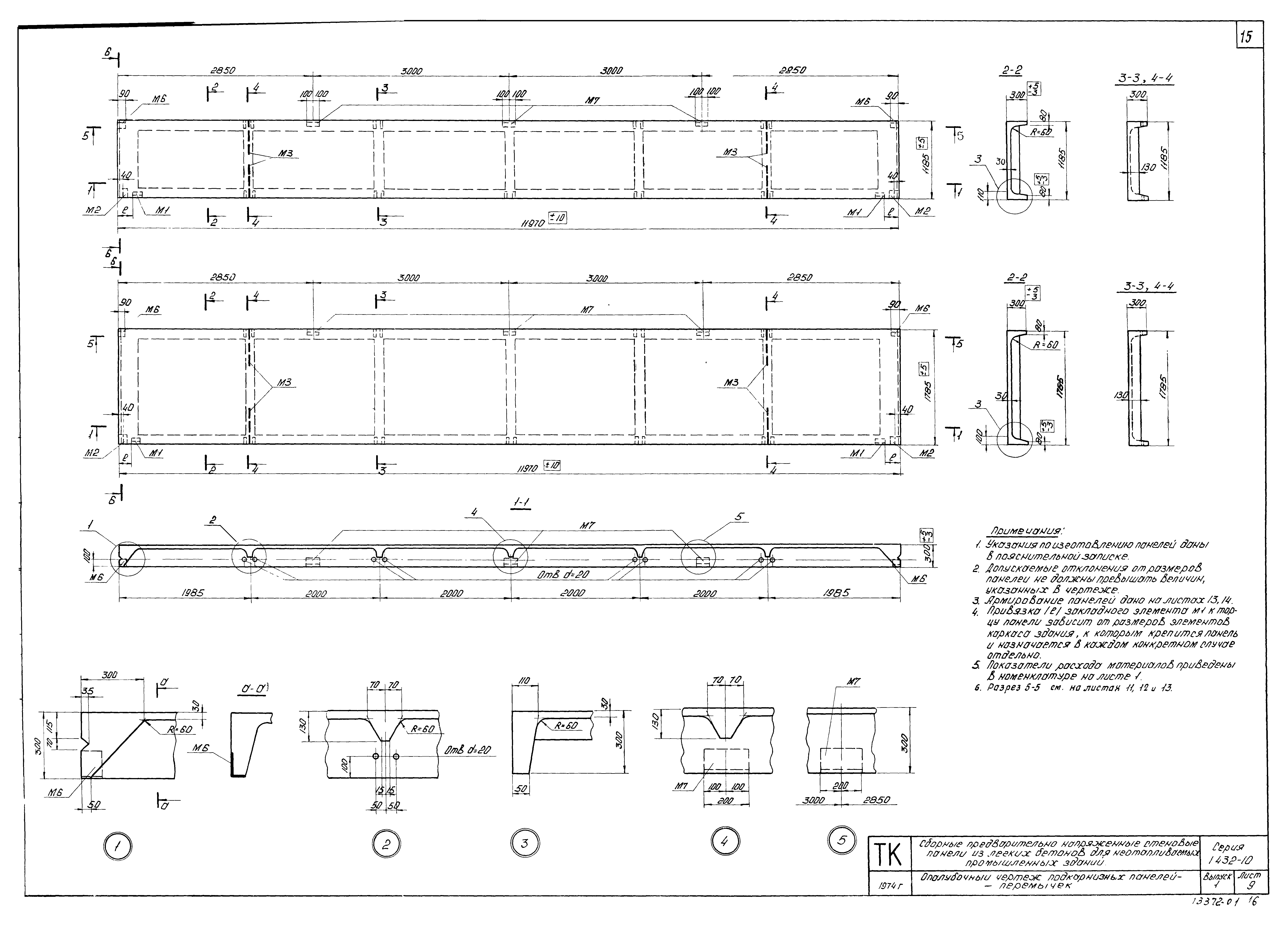
1.432-10 Опалубочный чертеж подкарнизных рядовых панелей
1.432-10 Опалубочный чертеж подкарнизных панелей-перемычек
1.432-10 Выборка стали на подкарнизные рядовые панели и на подкарнизные панели-перемычки. Спецификация марок арматурных изделий
1.432-10 Армирование рядовых, парапетных и подкарнизных панелей со стержневой и прядевой арматурой. Продольные и поперечные разрезы
1.432-10 Армирование рядовых, парапетных и подкарнизных панелей с проволочной арматурой. Продольные и поперечные разрезы
1.432-10 Армирование панелей-перемычек и подкарнизных панелей-перемычек. Продольные и поперечные разрезы
1.432-10 Армирование панелей. Узлы 6-11
1.432-10 Плоские каркасы КР1-КР11, сетки С1-С7
1.432-10 Закладные детали М1-М10
1.432-10 Легкобетонные блоки для углов здания. Номенклатура железобетонных карнизных плит
1.432-10 Схемы расположения карнизных плит и детали их крепления к подкарнизным панелям
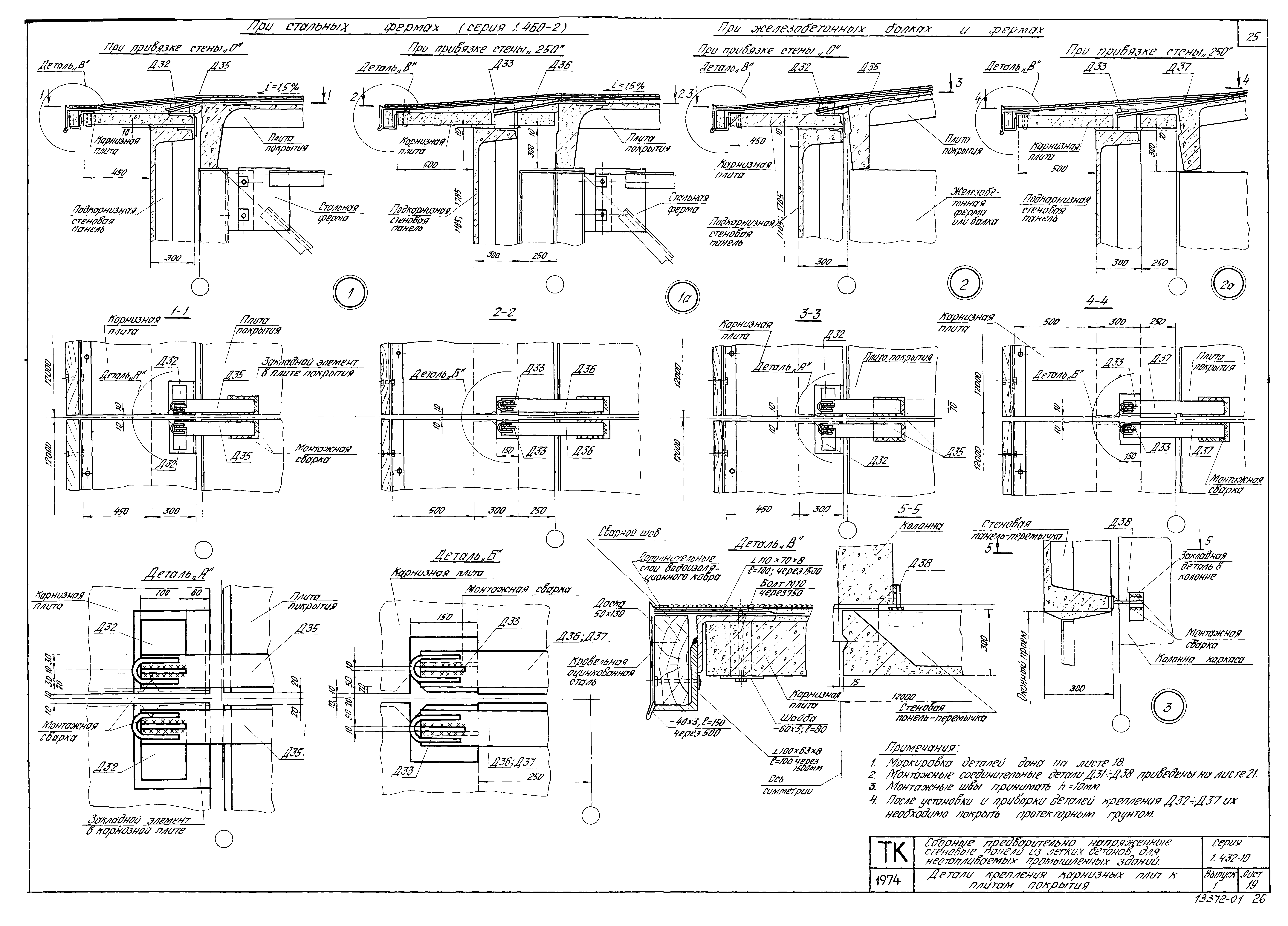
1.432-10 Детали крепления карнизных плит к плитам покрытия
1.432-10 Опалубка и армирование карнизных плит
1.432-10 Сетки С8 и С9. Стальные монтажные детали Д31-Д38
Разработан: ЦНИИпромзданий
НИИЖБ
Утверждён:23.07.1975 Госстрой СССР (Государственный комитет Совета Министров СССР по делам строительства) (USSR Gosstroy )
Расположен в:Техническая документация Строительство Справочные документы Типовые строительные конструкции, изделия и узлы Общероссийский строительный каталог Строительные конструкции, изделия и узлы зданий и сооружений для всех видов строительства Конструкции, изделия и узлы зданий Ограждающие конструкции Стены наружные Панели (бетонные и железобетонные)
Чем заменён:
Нормативные ссылки:
Серия 1.432-10Серия 1.432-10Серия 1.432-10Серия 1.432-10Серия 1.432-10Серия 1.432-10Серия 1.432-10Серия 1.432-10Серия 1.432-10Серия 1.432-10Серия 1.432-10Серия 1.432-10Серия 1.432-10Серия 1.432-10Серия 1.432-10Серия 1.432-10Серия 1.432-10Серия 1.432-10Серия 1.432-10Серия 1.432-10Серия 1.432-10Серия 1.432-10Серия 1.432-10Серия 1.432-10Серия 1.432-10Серия 1.432-10Серия 1.432-10Серия 1.432-10Серия 1.432-10

© 2013 Ёшкин Кот :-) Карта сайта