Информационная система
«Ёшкин Кот»

Скачать базу одним архивом
Скачать обновления
История создания базы
Карта сайта

Скачать Типовой проект 902-2-406.86 Альбом VII. Спецификации оборудования (из ТП 902-2-405.86)

Дата актуализации: 10.08.2017

Типовой проект 902-2-406.86

Альбом VII. Спецификации оборудования (из ТП 902-2-405.86)

Обозначение: Типовой проект 902-2-406.86
Обозначение англ: 902-2-406.86
Статус:заменен
Название рус.:Альбом VII. Спецификации оборудования (из ТП 902-2-405.86)
Дата добавления в базу:01.09.2013
Дата актуализации:05.05.2017
Дата введения:01.10.1987
Оглавление:ТП 902-2-405.86 Титульный лист
ТП 902-2-405.86 Содержание альбома
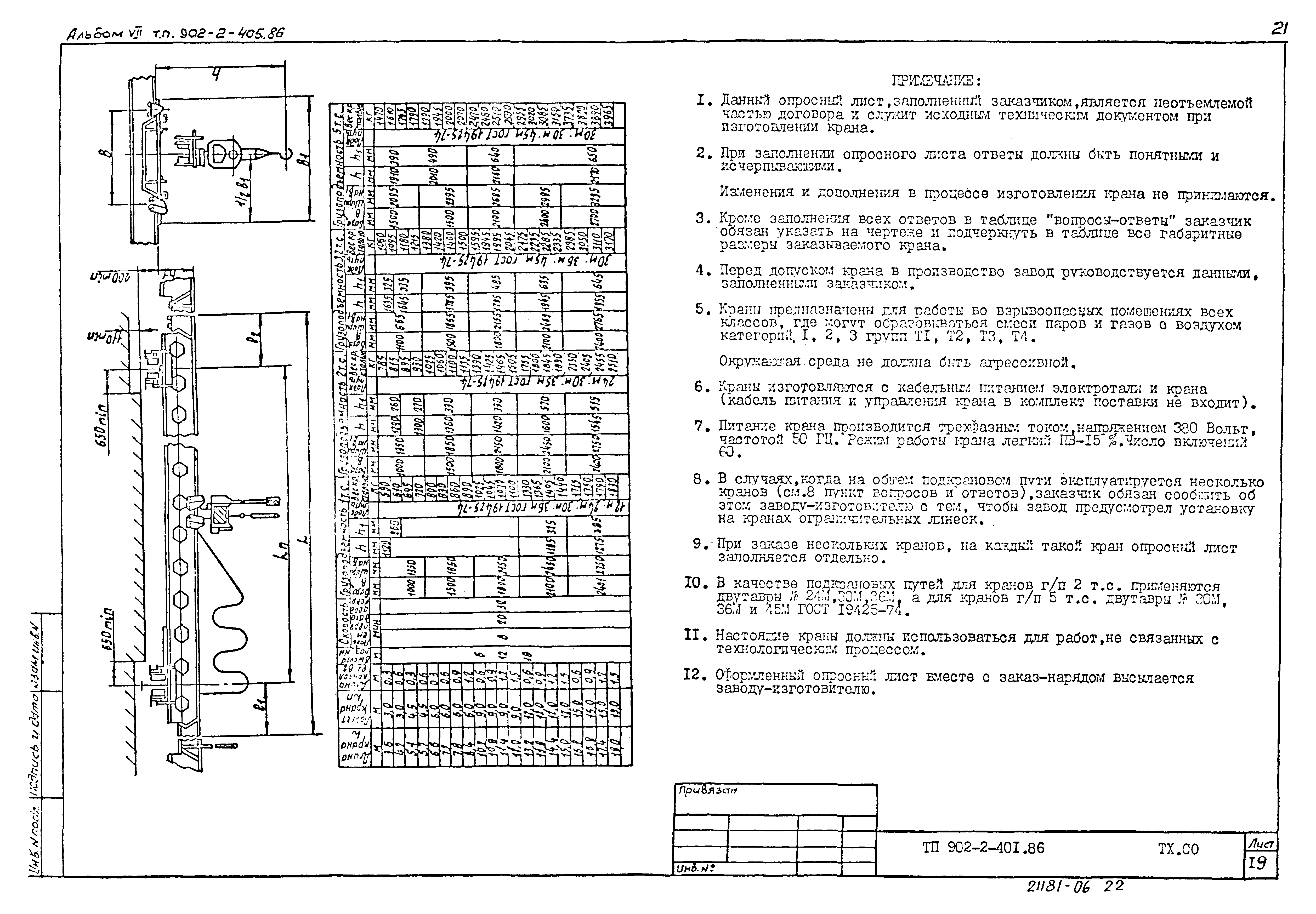
ТП 902-2-405.86-ТХ.СО Спецификация оборудования
ТП 902-2-405.86-ВК.СО Спецификация оборудования
ТП 902-2-405.86-ОВ.СО Спецификация оборудования
ТП 902-2-405.86-ЭМ.СО Спецификация оборудования
ТП 902-2-405.86-ЭО.СО Спецификация оборудования
ТП 902-2-405.86-А.СО1 Спецификация оборудования
ТП 902-2-405.86-А.СО2 Спецификация оборудования
ТП 902-2-405.86-СС.СО Спецификация оборудования
Разработан: Гипроавтотранс
Утверждён:27.03.1985 Минавтотранс РСФСР (Russian Federation Minavtotrans 55)
Издан: ЦИТП Госстроя СССР (CITP, Gosstroy (USSR) 1986 г. )
Расположен в:Техническая документация Строительство Справочные документы Типовые строительные конструкции, изделия и узлы Общероссийский строительный каталог Промышленные предприятия, здания и сооружения Здания и сооружения санитарно-технические Канализация Сооружения для очистки производственных сточных вод Сооружения для очистки сточных вод от мойки автомобилей
Чем заменён:
Типовой проект 902-2-406.86Типовой проект 902-2-406.86Типовой проект 902-2-406.86Типовой проект 902-2-406.86Типовой проект 902-2-406.86Типовой проект 902-2-406.86Типовой проект 902-2-406.86Типовой проект 902-2-406.86Типовой проект 902-2-406.86Типовой проект 902-2-406.86Типовой проект 902-2-406.86Типовой проект 902-2-406.86Типовой проект 902-2-406.86Типовой проект 902-2-406.86Типовой проект 902-2-406.86Типовой проект 902-2-406.86Типовой проект 902-2-406.86Типовой проект 902-2-406.86Типовой проект 902-2-406.86Типовой проект 902-2-406.86Типовой проект 902-2-406.86Типовой проект 902-2-406.86Типовой проект 902-2-406.86Типовой проект 902-2-406.86Типовой проект 902-2-406.86Типовой проект 902-2-406.86Типовой проект 902-2-406.86Типовой проект 902-2-406.86Типовой проект 902-2-406.86Типовой проект 902-2-406.86Типовой проект 902-2-406.86Типовой проект 902-2-406.86Типовой проект 902-2-406.86Типовой проект 902-2-406.86Типовой проект 902-2-406.86Типовой проект 902-2-406.86Типовой проект 902-2-406.86Типовой проект 902-2-406.86Типовой проект 902-2-406.86Типовой проект 902-2-406.86Типовой проект 902-2-406.86Типовой проект 902-2-406.86Типовой проект 902-2-406.86Типовой проект 902-2-406.86Типовой проект 902-2-406.86Типовой проект 902-2-406.86Типовой проект 902-2-406.86Типовой проект 902-2-406.86Типовой проект 902-2-406.86Типовой проект 902-2-406.86Типовой проект 902-2-406.86Типовой проект 902-2-406.86Типовой проект 902-2-406.86Типовой проект 902-2-406.86Типовой проект 902-2-406.86Типовой проект 902-2-406.86Типовой проект 902-2-406.86Типовой проект 902-2-406.86Типовой проект 902-2-406.86Типовой проект 902-2-406.86Типовой проект 902-2-406.86Типовой проект 902-2-406.86Типовой проект 902-2-406.86

© 2013 Ёшкин Кот :-) Карта сайта