Скачать Типовой проект 705-1-159.84 Альбом I. Общая часть. Технология производства. Архитектурные решения. Конструкции железобетонные. Конструкции металлические. Силовое электрооборудование. Связь и сигнализацияДата актуализации: 10.08.2017 Типовой проект 705-1-159.84
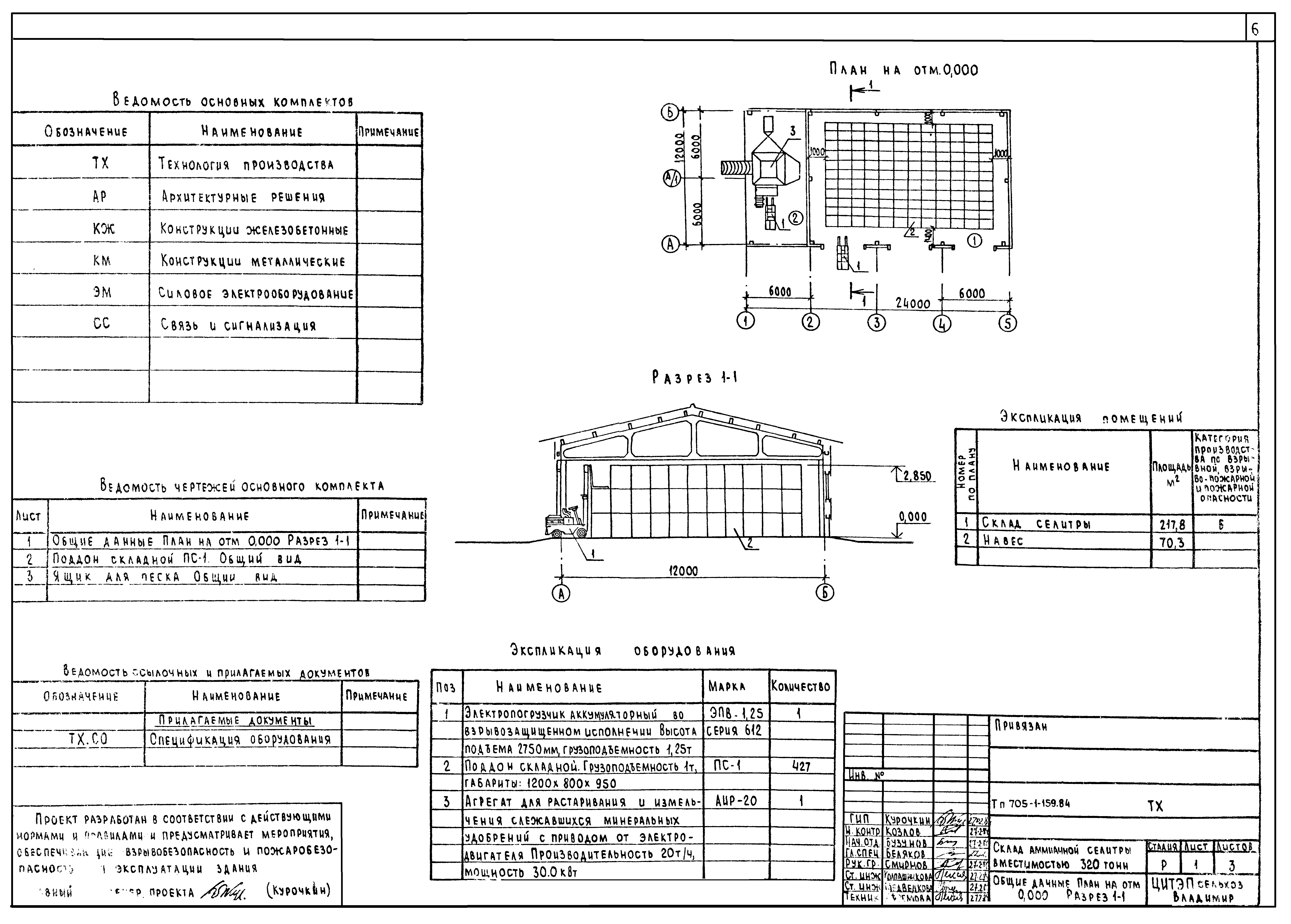
Альбом I. Общая часть. Технология производства. Архитектурные решения. Конструкции железобетонные. Конструкции металлические. Силовое электрооборудование. Связь и сигнализацияОбозначение: | Типовой проект 705-1-159.84 | Обозначение англ: | 705-1-159.84 | Статус: | действует | Название рус.: | Альбом I. Общая часть. Технология производства. Архитектурные решения. Конструкции железобетонные. Конструкции металлические. Силовое электрооборудование. Связь и сигнализация | Дата добавления в базу: | 01.09.2013 | Дата актуализации: | 05.05.2017 | Дата введения: | 10.02.1984 | Оглавление: | ТП 705-1-159.84 Содержание альбома ТП 705-1-159.84-ПЗ Пояснительная записка ТП 705-1-159.84-ТХ-1 Общие данные. План на отм. 0.000. Разрез 1-1 ТП 705-1-159.84-ТХ-2 Поддон складной ПС-1. Общий вид ТП 705-1-159.84-ТХ-3 Ящик для песка. Общий вид ТП 705-1-159.84-АР-1 Общие данные ТП 705-1-159.84-АР-2 План на отм. 0.000. Разрез 1-1. Узлы 1,2,3 ТП 705-1-159.84-АР-3 Фасады 1-5, 5-1, А-Б, Б-А. План кровли. Узлы 4,5,6. Схема установки ветрового ригеля ТП 705-1-159.84-АР-4 Схемы расположения элементов стен и кровли ТП 705-1-159.84-КЖ-1 Общие данные ТП 705-1-159.84-КЖ-2 Схема расположения фундаментов и фундаментных балок ТП 705-1-159.84-КЖ-3 Схема расположения колонн, ферм, связей ТП 705-1-159.84-КЖ-4 Схема расположения прогонов покрытия, панелей стен ТП 705-1-159.84-КМ-1 Общие данные ТП 705-1-159.84-КМ-2 Схемы расположения элементов фахверка ТП 705-1-159.84-КМ-3 Площадка 1. Ведомость металлоконструкций по видам профилей ТП 705-1-159.84-ЭМ-1 Общие данные ТП 705-1-159.84-ЭМ-2 План на отм. 0.000. Принципиальная расчетная схема ТП 705-1-159.84-СС-1 Общие данные. План на отм. 0.000 | Разработан: | ЦИТЭПсельхозпрома
| Утверждён: | 30.11.1983 Главсельстройпроект Минсельхоза СССР (Glavselstroyproject, USSR Minselkhoz 104)
| Расположен в: |
|
                      
|