Информационная система
«Ёшкин Кот»

Скачать базу одним архивом
Скачать обновления
История создания базы
Карта сайта

Скачать Типовой проект 902-2-259 Альбом II. Блок емкостей. Строительная часть. Опалубка и армирование днища. Монтажные схемы. Выборка

Дата актуализации: 10.08.2017

Типовой проект 902-2-259

Альбом II. Блок емкостей. Строительная часть. Опалубка и армирование днища. Монтажные схемы. Выборка

Обозначение: Типовой проект 902-2-259
Обозначение англ: 902-2-259
Статус:действует
Название рус.:Альбом II. Блок емкостей. Строительная часть. Опалубка и армирование днища. Монтажные схемы. Выборка
Дата добавления в базу:01.09.2013
Дата актуализации:05.05.2017
Оглавление:ТП 902-2-259-С-1 Содержание альбома
ТП 902-2-259-КС-II-1 Общеувязочный чертеж. План
ТП 902-2-259-КС-II-2 Общеувязочный чертеж. Разрезы
ТП 902-2-259-КС-II-3 Днище. Опалубочный чертеж. План
ТП 902-2-259-КС-II-4 Днище. Опалубочный чертеж. Разрезы 1-1;2-2
ТП 902-2-259-КС-II-5 Днище. Опалубочный чертеж. Разрезы 3-3;4-4
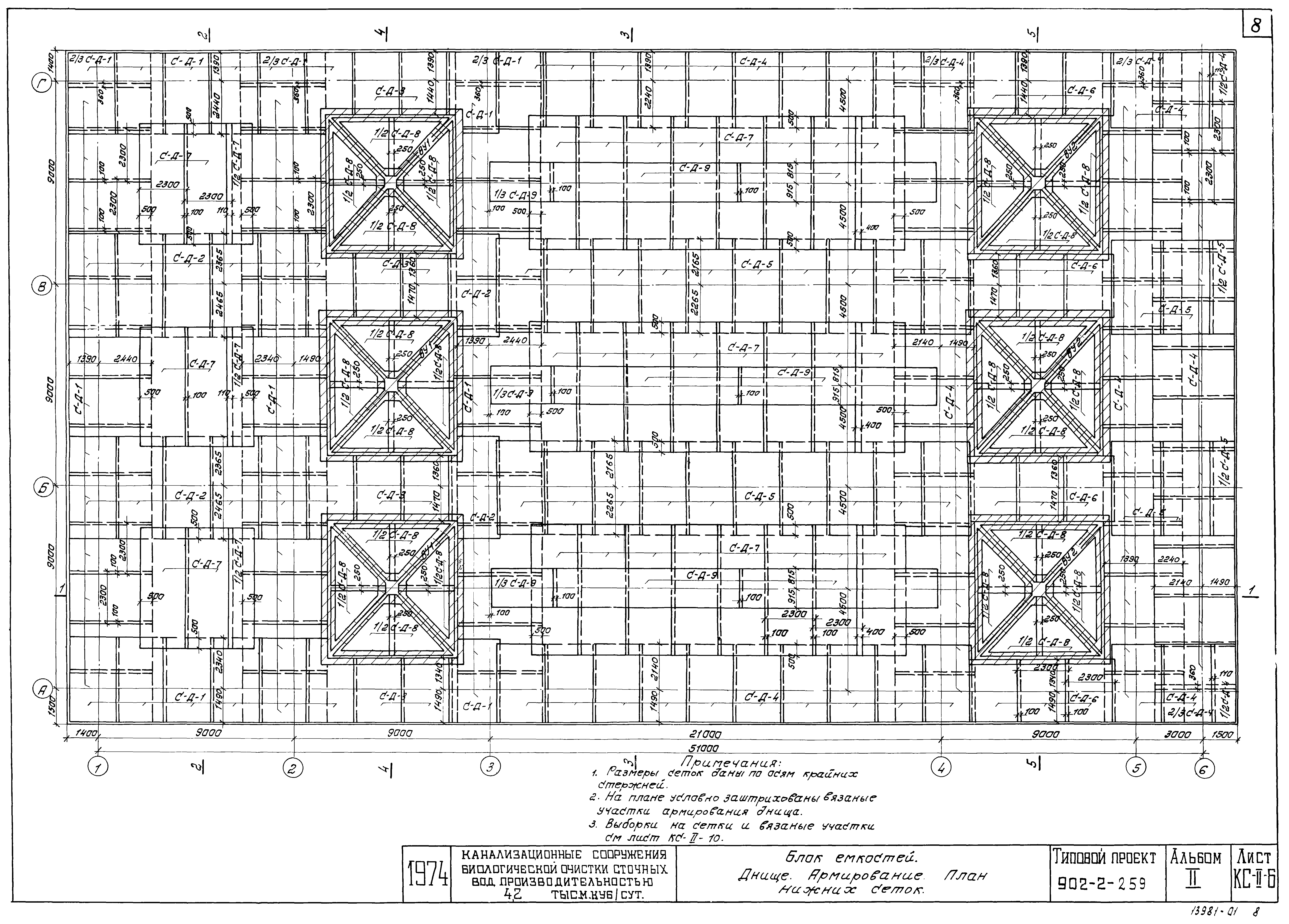
ТП 902-2-259-КС-II-6 Днище. Армирование. План нижних сеток
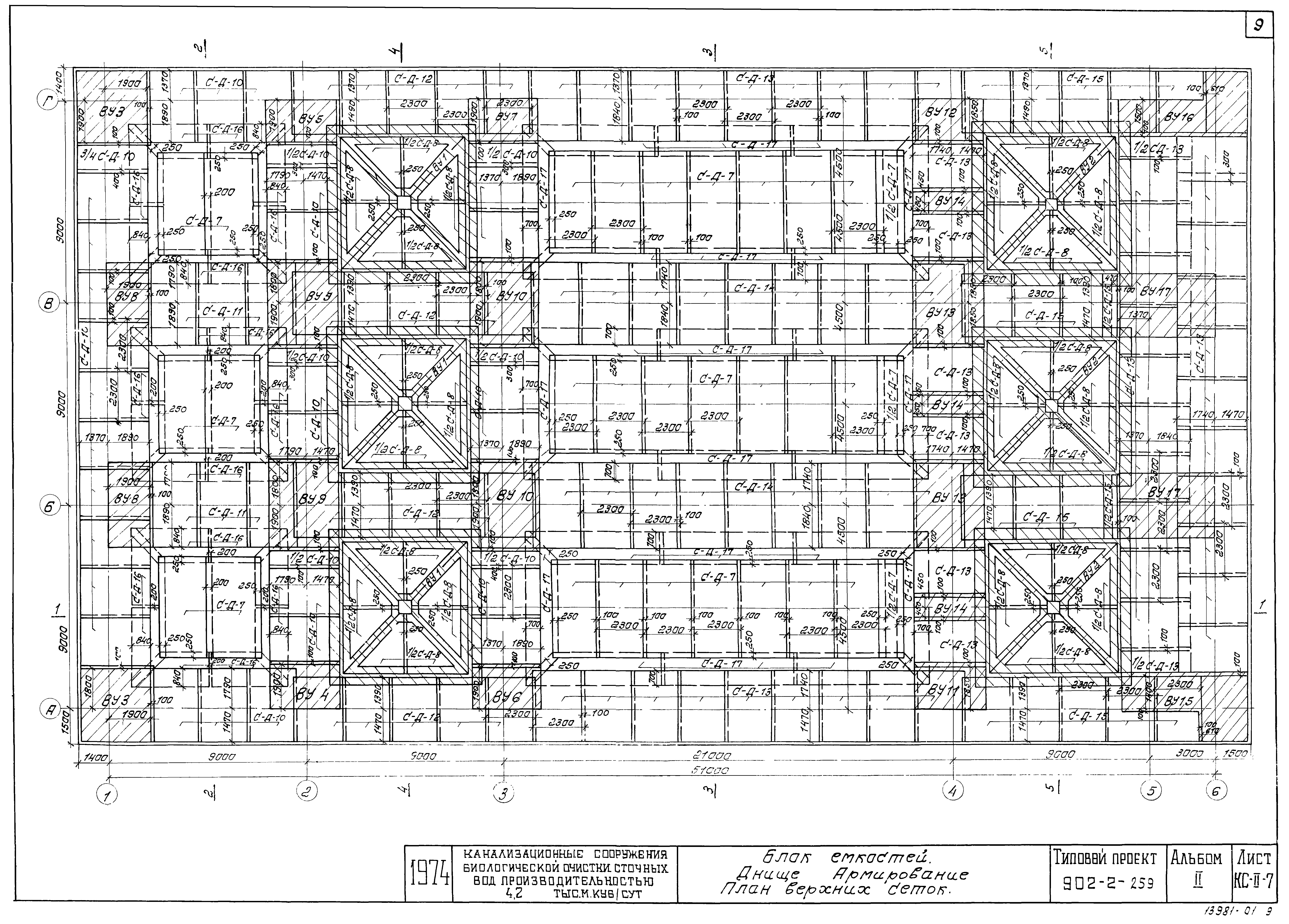
ТП 902-2-259-КС-II-7 Днище. Армирование. План верхних сеток
ТП 902-2-259-КС-II-8 Днище. Армирование. План раскладки каркасных блоков
ТП 902-2-259-КС-II-9 Днище. Армирование. Разрезы 1-1÷3-3
ТП 902-2-259-КС-II-10 Днище. Армирование. Разрезы 4-4;5-5. Выборки
ТП 902-2-259-КС-II-11 Днище. Набетонка. План
ТП 902-2-259-КС-II-12 Днище. Набетонка. Разрезы
ТП 902-2-259-КС-II-13 Монтажная схема фильтросных коробов. План в осях А-В. Выборки
ТП 902-2-259-КС-II-14 Монтажная схема фильтросных коробов. План в осях В-Г. Разрезы 1-1;2-2
ТП 902-2-259-КС-II-15 Монтажная схема стен. План
ТП 902-2-259-КС-II-16 Монтажная схема стен. Разрезы 1-1÷5-5
ТП 902-2-259-КС-II-17 Монтажная схема стен. Разрез 6-6. Выборки
ТП 902-2-259-КС-II-18 Монтажная схема металлических конструкций. План колонн, центральных труб, перегородок
ТП 902-2-259-КС-II-19 Монтажная схема металлических конструкций. План лотков, балок, лестниц
ТП 902-2-259-КС-II-20 Монтажная схема металлических конструкций. Разрезы 1-1÷3-3
ТП 902-2-259-КС-II-21 Монтажная схема металлических конструкций. Разрез 4-4. Выборки
ТП 902-2-259-КС-II-22 Монтажная схема мостиков. План
ТП 902-2-259-КС-II-23 Монтажная схема мостиков. Разрез 1-1. Выборки
ТП 902-2-259-КС-II-24 Выборки
ТП 902-2-259-КС-II-25 Выборки
ТП 902-2-259-КС-II-26 Выборки
Разработан: Гипрокоммунводоканал Минжилкомхоза РСФСР
Утверждён:20.06.1975 МЖКХ РСФСР (10-ТД)
Расположен в:Техническая документация Строительство Справочные документы Типовые строительные конструкции, изделия и узлы Общероссийский строительный каталог Промышленные предприятия, здания и сооружения Здания и сооружения санитарно-технические Канализация Сооружения биологической (биохимической) очистки Станции биологической очистки сточных вод
Типовой проект 902-2-259Типовой проект 902-2-259Типовой проект 902-2-259Типовой проект 902-2-259Типовой проект 902-2-259Типовой проект 902-2-259Типовой проект 902-2-259Типовой проект 902-2-259Типовой проект 902-2-259Типовой проект 902-2-259Типовой проект 902-2-259Типовой проект 902-2-259Типовой проект 902-2-259Типовой проект 902-2-259Типовой проект 902-2-259Типовой проект 902-2-259Типовой проект 902-2-259Типовой проект 902-2-259Типовой проект 902-2-259Типовой проект 902-2-259Типовой проект 902-2-259Типовой проект 902-2-259Типовой проект 902-2-259Типовой проект 902-2-259Типовой проект 902-2-259Типовой проект 902-2-259Типовой проект 902-2-259Типовой проект 902-2-259Типовой проект 902-2-259

© 2013 Ёшкин Кот :-) Карта сайта