Информационная система
«Ёшкин Кот»

Скачать базу одним архивом
Скачать обновления
История создания базы
Карта сайта

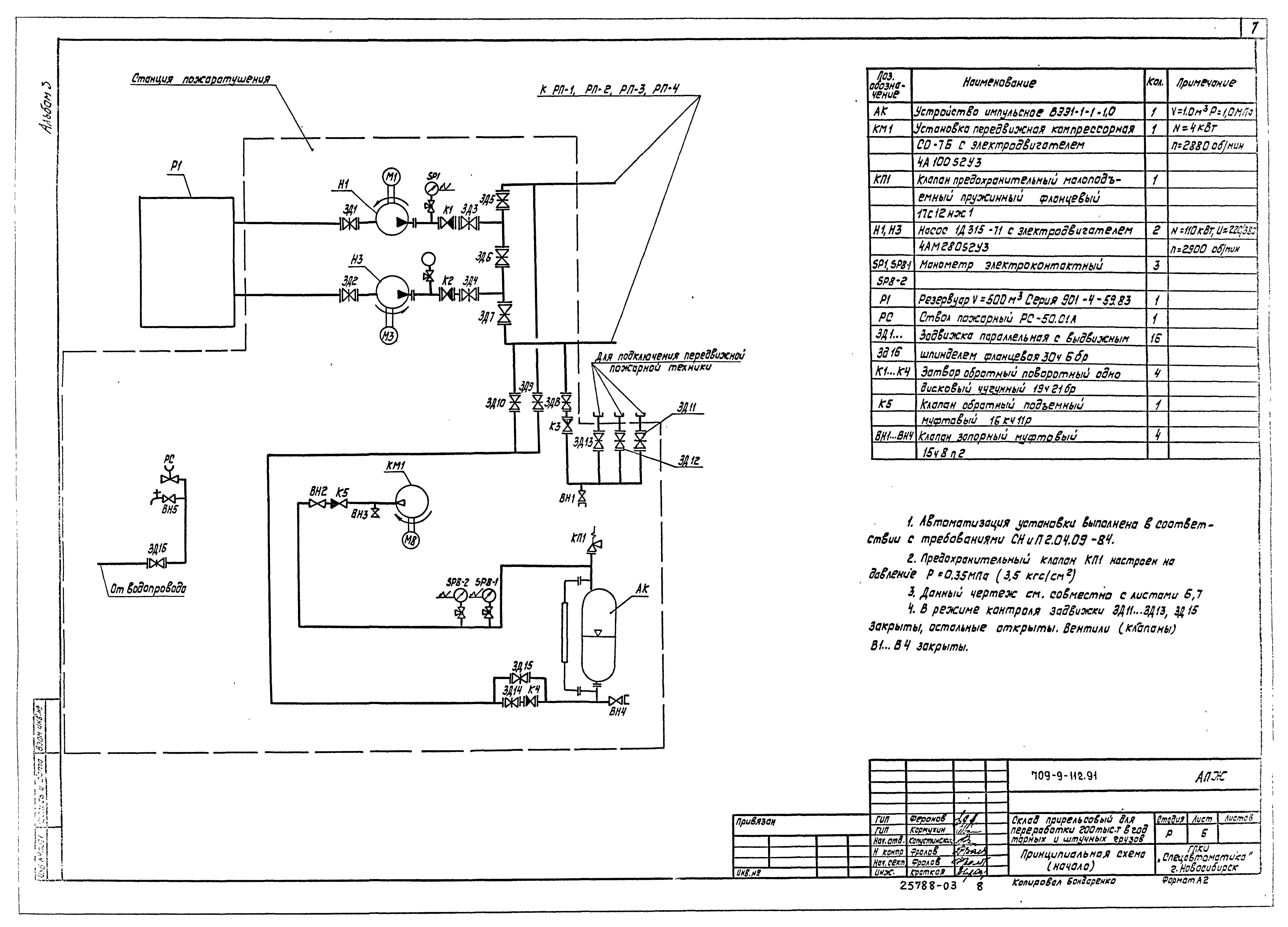
Скачать Типовой проект 709-9-112.91 Альбом 3. Автоматическая установка пожаротушения

Дата актуализации: 10.08.2017

Типовой проект 709-9-112.91

Альбом 3. Автоматическая установка пожаротушения

Обозначение: Типовой проект 709-9-112.91
Обозначение англ: 709-9-112.91
Статус:не определен законодательством
Название рус.:Альбом 3. Автоматическая установка пожаротушения
Дата добавления в базу:01.09.2013
Дата актуализации:05.05.2017
Дата введения:12.07.1991
Разработан: Гипропромтрансстрой
Утверждён:05.01.1989 Министерство путей сообщения СССР (USSR Ministry of Railroads Д-42у)
Расположен в:Техническая документация Строительство Справочные документы Типовые строительные конструкции, изделия и узлы Общероссийский строительный каталог Промышленные предприятия, здания и сооружения Предприятия, здания и сооружения складские Склады разные Склады материально-технические и запчастей
Типовой проект 709-9-112.91Типовой проект 709-9-112.91Типовой проект 709-9-112.91Типовой проект 709-9-112.91Типовой проект 709-9-112.91Типовой проект 709-9-112.91Типовой проект 709-9-112.91Типовой проект 709-9-112.91Типовой проект 709-9-112.91Типовой проект 709-9-112.91Типовой проект 709-9-112.91Типовой проект 709-9-112.91Типовой проект 709-9-112.91Типовой проект 709-9-112.91Типовой проект 709-9-112.91Типовой проект 709-9-112.91Типовой проект 709-9-112.91Типовой проект 709-9-112.91Типовой проект 709-9-112.91Типовой проект 709-9-112.91Типовой проект 709-9-112.91Типовой проект 709-9-112.91Типовой проект 709-9-112.91Типовой проект 709-9-112.91Типовой проект 709-9-112.91Типовой проект 709-9-112.91Типовой проект 709-9-112.91Типовой проект 709-9-112.91Типовой проект 709-9-112.91Типовой проект 709-9-112.91Типовой проект 709-9-112.91Типовой проект 709-9-112.91Типовой проект 709-9-112.91Типовой проект 709-9-112.91Типовой проект 709-9-112.91Типовой проект 709-9-112.91Типовой проект 709-9-112.91Типовой проект 709-9-112.91Типовой проект 709-9-112.91Типовой проект 709-9-112.91Типовой проект 709-9-112.91Типовой проект 709-9-112.91Типовой проект 709-9-112.91Типовой проект 709-9-112.91Типовой проект 709-9-112.91Типовой проект 709-9-112.91Типовой проект 709-9-112.91Типовой проект 709-9-112.91Типовой проект 709-9-112.91Типовой проект 709-9-112.91Типовой проект 709-9-112.91Типовой проект 709-9-112.91Типовой проект 709-9-112.91Типовой проект 709-9-112.91Типовой проект 709-9-112.91Типовой проект 709-9-112.91Типовой проект 709-9-112.91Типовой проект 709-9-112.91Типовой проект 709-9-112.91Типовой проект 709-9-112.91Типовой проект 709-9-112.91Типовой проект 709-9-112.91Типовой проект 709-9-112.91Типовой проект 709-9-112.91Типовой проект 709-9-112.91Типовой проект 709-9-112.91Типовой проект 709-9-112.91Типовой проект 709-9-112.91

© 2013 Ёшкин Кот :-) Карта сайта