Информационная система
«Ёшкин Кот»

Скачать базу одним архивом
Скачать обновления
История создания базы
Карта сайта

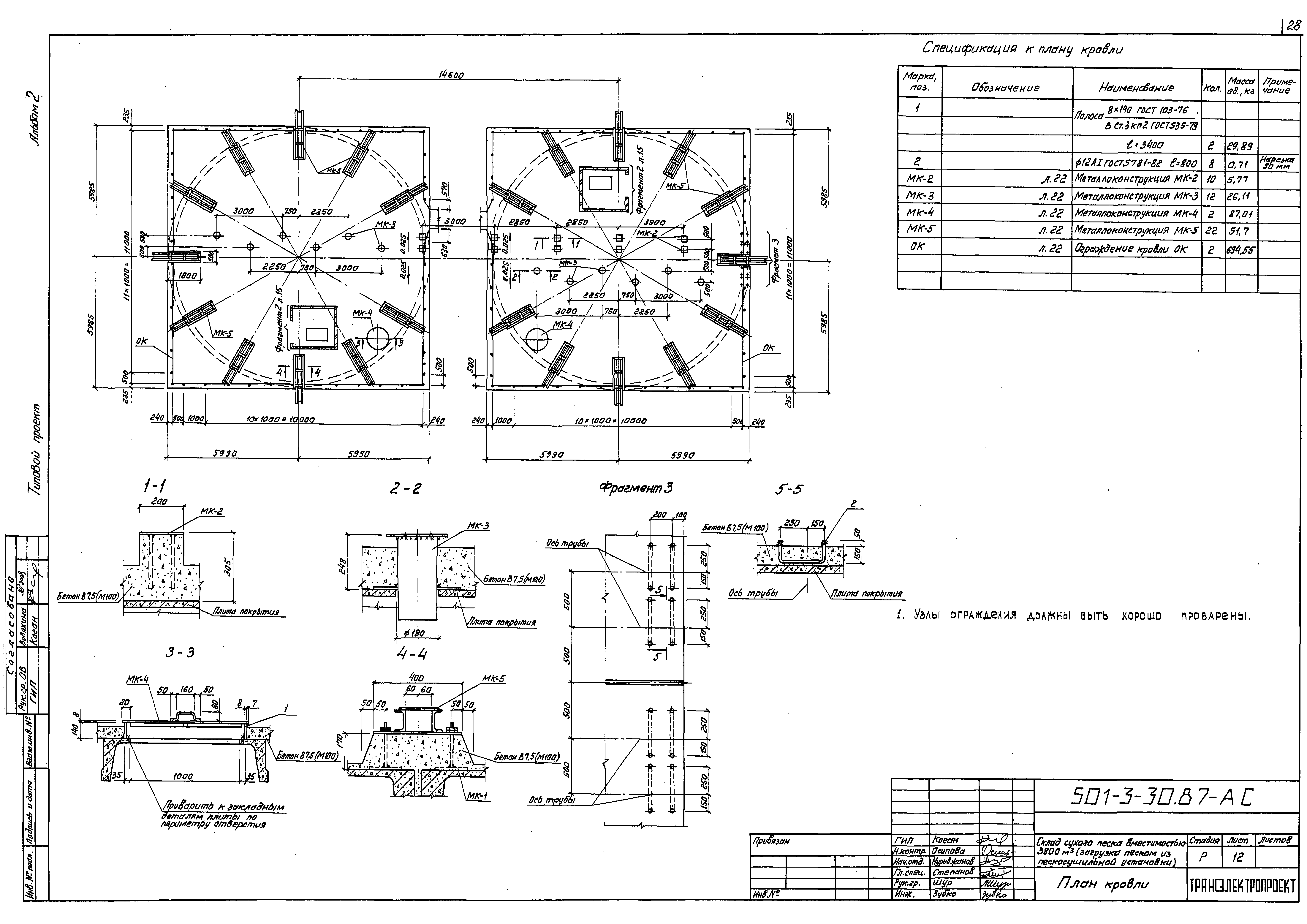
Скачать Типовой проект 501-3-30.87 Альбом 2. Технология производства. Архитектурно-строительные решения. Отопление и вентиляция. Электрическое освещение. Силовое электрооборудование. Автоматизация технологии производства. Основные положения по производству строительных и монтажных работ

Дата актуализации: 10.08.2017

Типовой проект 501-3-30.87

Альбом 2. Технология производства. Архитектурно-строительные решения. Отопление и вентиляция. Электрическое освещение. Силовое электрооборудование. Автоматизация технологии производства. Основные положения по производству строительных и монтажных работ

Обозначение: Типовой проект 501-3-30.87
Обозначение англ: 501-3-30.87
Статус:не определен законодательством
Название рус.:Альбом 2. Технология производства. Архитектурно-строительные решения. Отопление и вентиляция. Электрическое освещение. Силовое электрооборудование. Автоматизация технологии производства. Основные положения по производству строительных и монтажных работ
Дата добавления в базу:01.09.2013
Дата актуализации:05.05.2017
Дата введения:26.11.1987
Разработан: Трансэлектропроект МПС
Утверждён:26.11.1987 Министерство путей сообщения СССР (USSR Ministry of Railroads 5993у)
Расположен в:Техническая документация Строительство Справочные документы Типовые строительные конструкции, изделия и узлы Общероссийский строительный каталог Промышленные предприятия, здания и сооружения Предприятия, здания и сооружения транспорта Транспорт железнодорожный Здания и сооружения локомотивного и вагонного хозяйства Экипировочные устройства, депо, склады и др. здания и сооружения
Типовой проект 501-3-30.87Типовой проект 501-3-30.87Типовой проект 501-3-30.87Типовой проект 501-3-30.87Типовой проект 501-3-30.87Типовой проект 501-3-30.87Типовой проект 501-3-30.87Типовой проект 501-3-30.87Типовой проект 501-3-30.87Типовой проект 501-3-30.87Типовой проект 501-3-30.87Типовой проект 501-3-30.87Типовой проект 501-3-30.87Типовой проект 501-3-30.87Типовой проект 501-3-30.87Типовой проект 501-3-30.87Типовой проект 501-3-30.87Типовой проект 501-3-30.87Типовой проект 501-3-30.87Типовой проект 501-3-30.87Типовой проект 501-3-30.87Типовой проект 501-3-30.87Типовой проект 501-3-30.87Типовой проект 501-3-30.87Типовой проект 501-3-30.87Типовой проект 501-3-30.87Типовой проект 501-3-30.87Типовой проект 501-3-30.87Типовой проект 501-3-30.87Типовой проект 501-3-30.87Типовой проект 501-3-30.87Типовой проект 501-3-30.87Типовой проект 501-3-30.87Типовой проект 501-3-30.87Типовой проект 501-3-30.87Типовой проект 501-3-30.87Типовой проект 501-3-30.87Типовой проект 501-3-30.87Типовой проект 501-3-30.87Типовой проект 501-3-30.87Типовой проект 501-3-30.87Типовой проект 501-3-30.87Типовой проект 501-3-30.87Типовой проект 501-3-30.87Типовой проект 501-3-30.87Типовой проект 501-3-30.87Типовой проект 501-3-30.87Типовой проект 501-3-30.87Типовой проект 501-3-30.87Типовой проект 501-3-30.87Типовой проект 501-3-30.87Типовой проект 501-3-30.87Типовой проект 501-3-30.87Типовой проект 501-3-30.87Типовой проект 501-3-30.87Типовой проект 501-3-30.87Типовой проект 501-3-30.87Типовой проект 501-3-30.87Типовой проект 501-3-30.87Типовой проект 501-3-30.87Типовой проект 501-3-30.87Типовой проект 501-3-30.87Типовой проект 501-3-30.87Типовой проект 501-3-30.87Типовой проект 501-3-30.87Типовой проект 501-3-30.87Типовой проект 501-3-30.87Типовой проект 501-3-30.87Типовой проект 501-3-30.87

© 2013 Ёшкин Кот :-) Карта сайта