Информационная система
«Ёшкин Кот»

Скачать базу одним архивом
Скачать обновления
История создания базы
Карта сайта

Скачать Типовой проект 902-2-269 Альбом IX. Электротехническая часть

Дата актуализации: 10.08.2017

Типовой проект 902-2-269

Альбом IX. Электротехническая часть

Обозначение: Типовой проект 902-2-269
Обозначение англ: 902-2-269
Статус:действует
Название рус.:Альбом IX. Электротехническая часть
Дата добавления в базу:01.09.2013
Дата актуализации:05.05.2017
Дата введения:05.11.1976
Оглавление:ТП 902-2-269-ЭЛ-1 Заглавный лист. Содержание альбома
ТП 902-2-269-ЭЛ-2 Пояснительная записка
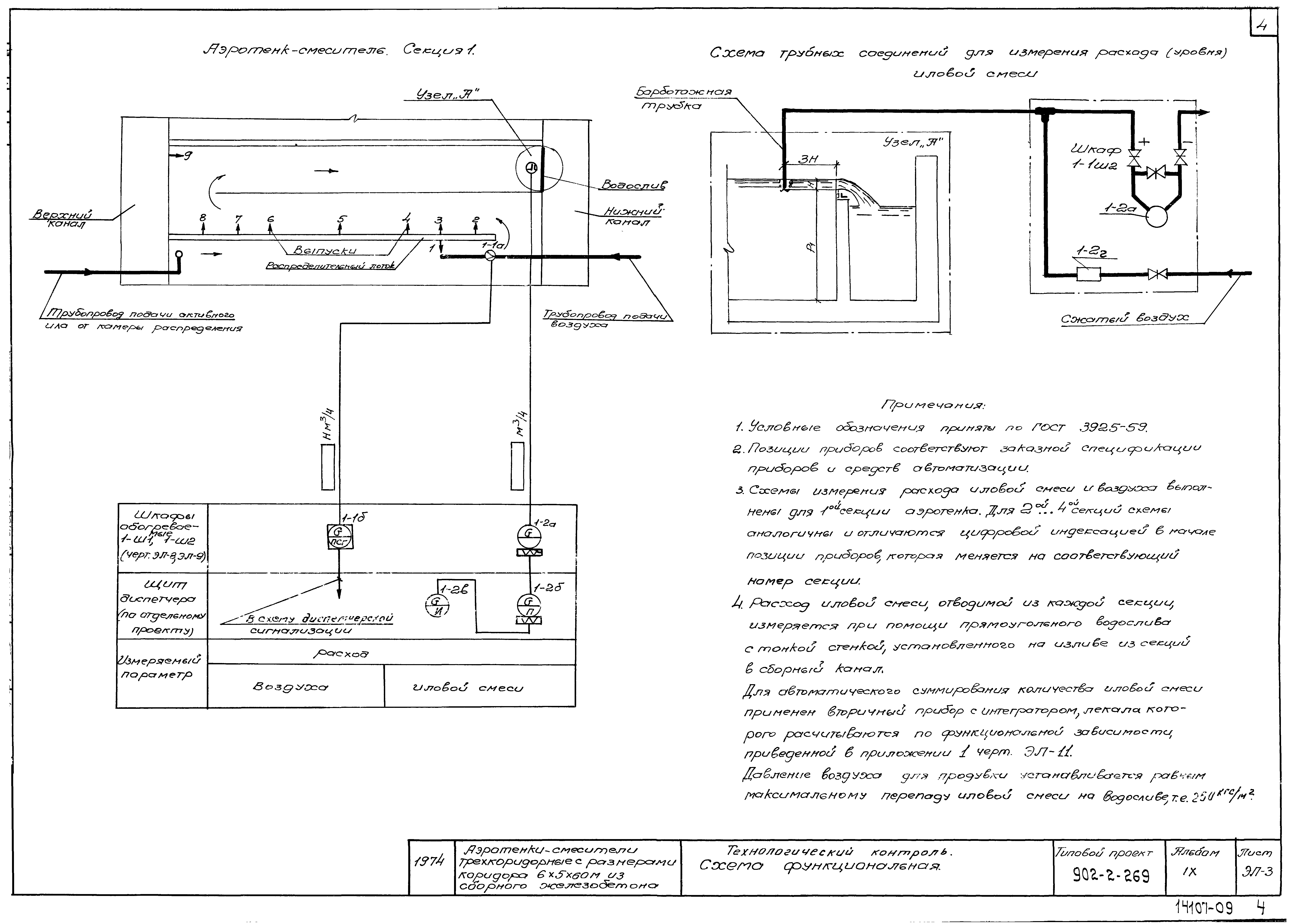
ТП 902-2-269-ЭЛ-3 Технологический контроль. Схема функциональная
ТП 902-2-269-ЭЛ-4 Схемы электрические принципиальные измерения расхода воздуха и иловой смеси
ТП 902-2-269-ЭЛ-5 Схемы подключения электрических и трубных проводок
ТП 902-2-269-ЭЛ-6 Электрические и трубные проводки. Монтажный чертеж
ТП 902-2-269-ЭЛ-7 Электроосвещение
ТП 902-2-269-ЭЛ-8 Шкаф обогреваемый 1-Ш1...□-Ш1. Общий вид и схема соединений
ТП 902-2-269-ЭЛ-9 Шкаф обогреваемый 1-Ш2...□-Ш2. Общий вид и схема соединений
ТП 902-2-269-ЭЛ-10 Образец заполнения опросного листа для заказа дифманометра-расходомера газа
ТП 902-2-269-ЭЛ-11 Образец заполнения опросного листа для заказа дифманометра-расходомера жидкости
Разработан: ЦНИИпромзданий
Союзводоканалниипроект
Утверждён:09.12.1975 Главпромстройпроект Госстроя СССР
Расположен в:Техническая документация Строительство Справочные документы Типовые строительные конструкции, изделия и узлы Общероссийский строительный каталог Промышленные предприятия, здания и сооружения Здания и сооружения санитарно-технические Канализация Сооружения биологической (биохимической) очистки Аэротенки, аэрируемые биопруды, аэроакселаторы
Типовой проект 902-2-269Типовой проект 902-2-269Типовой проект 902-2-269Типовой проект 902-2-269Типовой проект 902-2-269Типовой проект 902-2-269Типовой проект 902-2-269Типовой проект 902-2-269Типовой проект 902-2-269Типовой проект 902-2-269Типовой проект 902-2-269Типовой проект 902-2-269Типовой проект 902-2-269

© 2013 Ёшкин Кот :-) Карта сайта