Информационная система
«Ёшкин Кот»

Скачать базу одним архивом
Скачать обновления
История создания базы
Карта сайта

Скачать Типовой проект 902-2-269 Альбом VII. Технологическая и сантехническая части

Дата актуализации: 10.08.2017

Типовой проект 902-2-269

Альбом VII. Технологическая и сантехническая части

Обозначение: Типовой проект 902-2-269
Обозначение англ: 902-2-269
Статус:действует
Название рус.:Альбом VII. Технологическая и сантехническая части
Дата добавления в базу:01.09.2013
Дата актуализации:05.05.2017
Дата введения:05.11.1976
Оглавление:ТП 902-2-269 Обложка-титульный лист
ТП 902-2-269-ПЗ-1 Содержание альбома
ТП 902-2-269-ПЗ-2 Заглавный лист
ТП 902-2-269-ПЗ-3-9 Пояснительная записка
ТП 902-2-269-ТК-1 Схемы компоновок из 2х,3х и 4х
ТП 902-2-269-ТМ-1 1,2,3- варианты- 5,10,16 рядов аэраторов. Монтажный чертеж. План
ТП 902-2-269-ТМ-2 1,2,3- варианты- 5,10,16 рядов аэраторов. Монтажный чертеж. Разрезы
ТП 902-2-269-ТМ-3 Вариант 1 -5 рядов аэраторов. Схема воздуховодов и аэраторов из пористых керамических труб
ТП 902-2-269-ТМ-4 Вариант 2 -10 рядов аэраторов. Схема воздуховодов и аэраторов из пористых керамических труб
ТП 902-2-269-ТМ-5 Вариант 3 -15 рядов аэраторов. Схема воздуховодов и аэраторов из пористых керамических труб
ТП 902-2-269-ТМ-6 Вариант 1 - 5 рядов аэраторов. Схема воздуховодов и аэраторов с пористыми керамическими пластинами
ТП 902-2-269-ТМ-7 Вариант 2 - 10 рядов аэраторов. Схема воздуховодов и аэраторов с пористыми керамическими пластинами
ТП 902-2-269-ТМ-8 Вариант 3 - 15 рядов аэраторов. Схема воздуховодов и аэраторов с пористыми керамическими пластинами
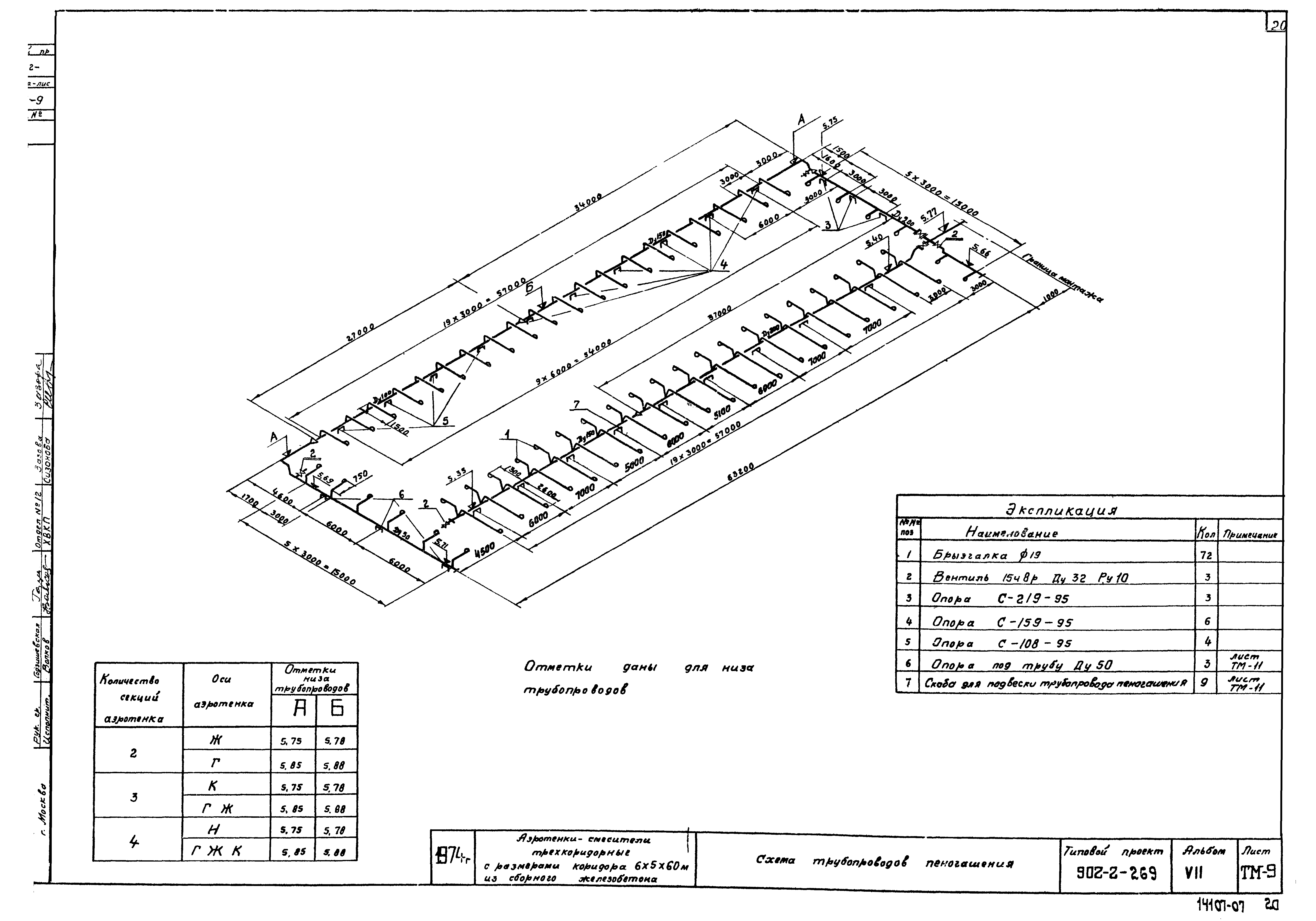
ТП 902-2-269-ТМ-9 Схема трубопроводов пеногашения
ТП 902-2-269-ТМ-10 Крепление пористых керамических блоков № 1 и № 2. Монтажный чертеж
ТП 902-2-269-ТМ-11 Крепление пористых керамических блоков № 1 и № 2. Монтажный чертеж. Узлы, детали
ТП 902-2-269-ТМ-12 Камера распределения ила №1. Монтажный чертеж
ТП 902-2-269-ТМ-13 Камера распределения ила №2. Монтажный чертеж
ТП 902-2-269-ОВ-1 Отопление шкафов КИП сжатым воздухом. План. Разрезы 1-1 и 2-2. Схемы воздуховодов. Разбивка отверстий для выхода воздуха в змеевике шкафа
Разработан: ЦНИИпромзданий
Союзводоканалниипроект
Утверждён:09.12.1975 Главпромстройпроект Госстроя СССР
Расположен в:Техническая документация Строительство Справочные документы Типовые строительные конструкции, изделия и узлы Общероссийский строительный каталог Промышленные предприятия, здания и сооружения Здания и сооружения санитарно-технические Канализация Сооружения биологической (биохимической) очистки Аэротенки, аэрируемые биопруды, аэроакселаторы
Типовой проект 902-2-269Типовой проект 902-2-269Типовой проект 902-2-269Типовой проект 902-2-269Типовой проект 902-2-269Типовой проект 902-2-269Типовой проект 902-2-269Типовой проект 902-2-269Типовой проект 902-2-269Типовой проект 902-2-269Типовой проект 902-2-269Типовой проект 902-2-269Типовой проект 902-2-269Типовой проект 902-2-269Типовой проект 902-2-269Типовой проект 902-2-269Типовой проект 902-2-269Типовой проект 902-2-269Типовой проект 902-2-269Типовой проект 902-2-269Типовой проект 902-2-269Типовой проект 902-2-269Типовой проект 902-2-269Типовой проект 902-2-269Типовой проект 902-2-269Типовой проект 902-2-269

© 2013 Ёшкин Кот :-) Карта сайта