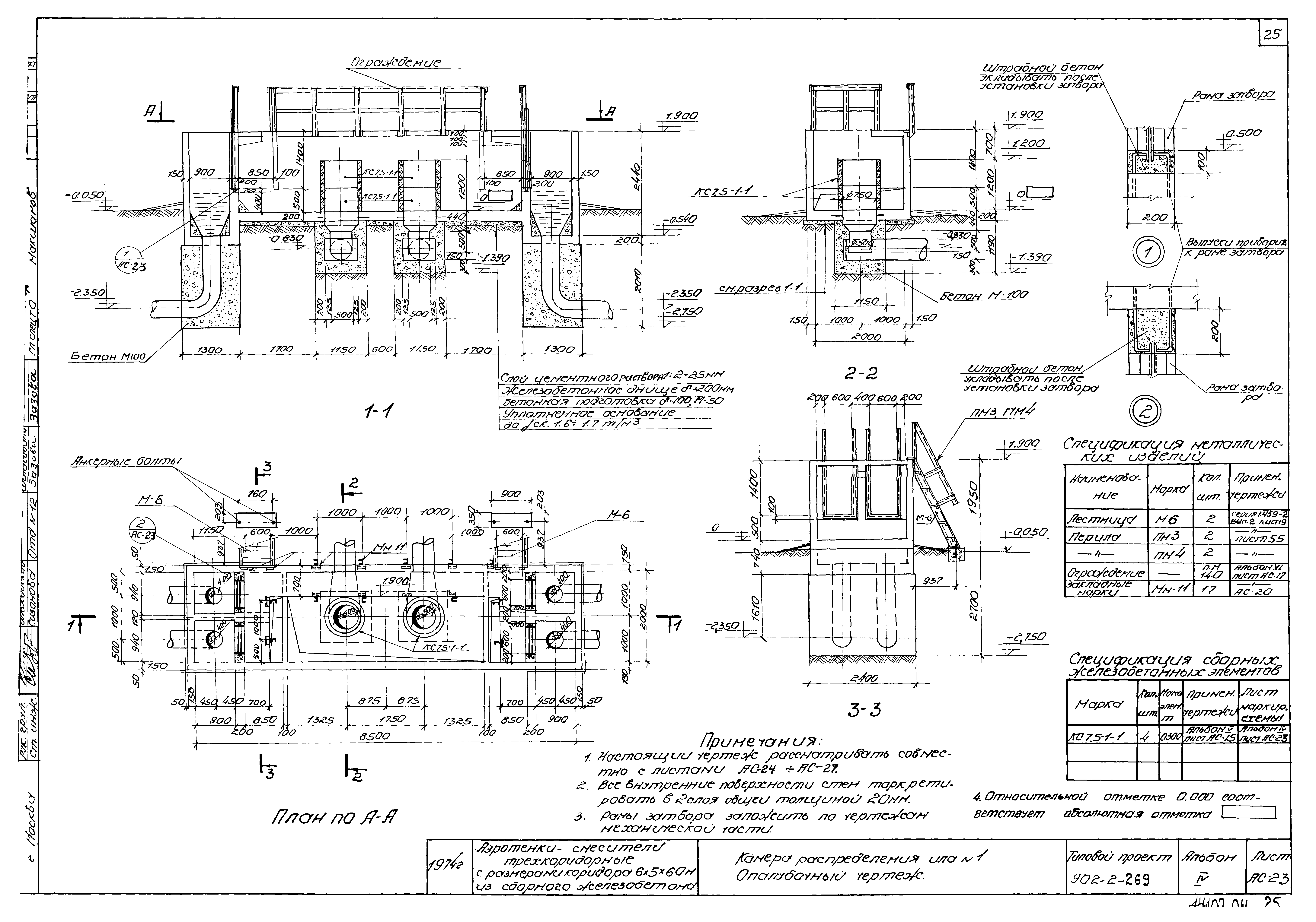
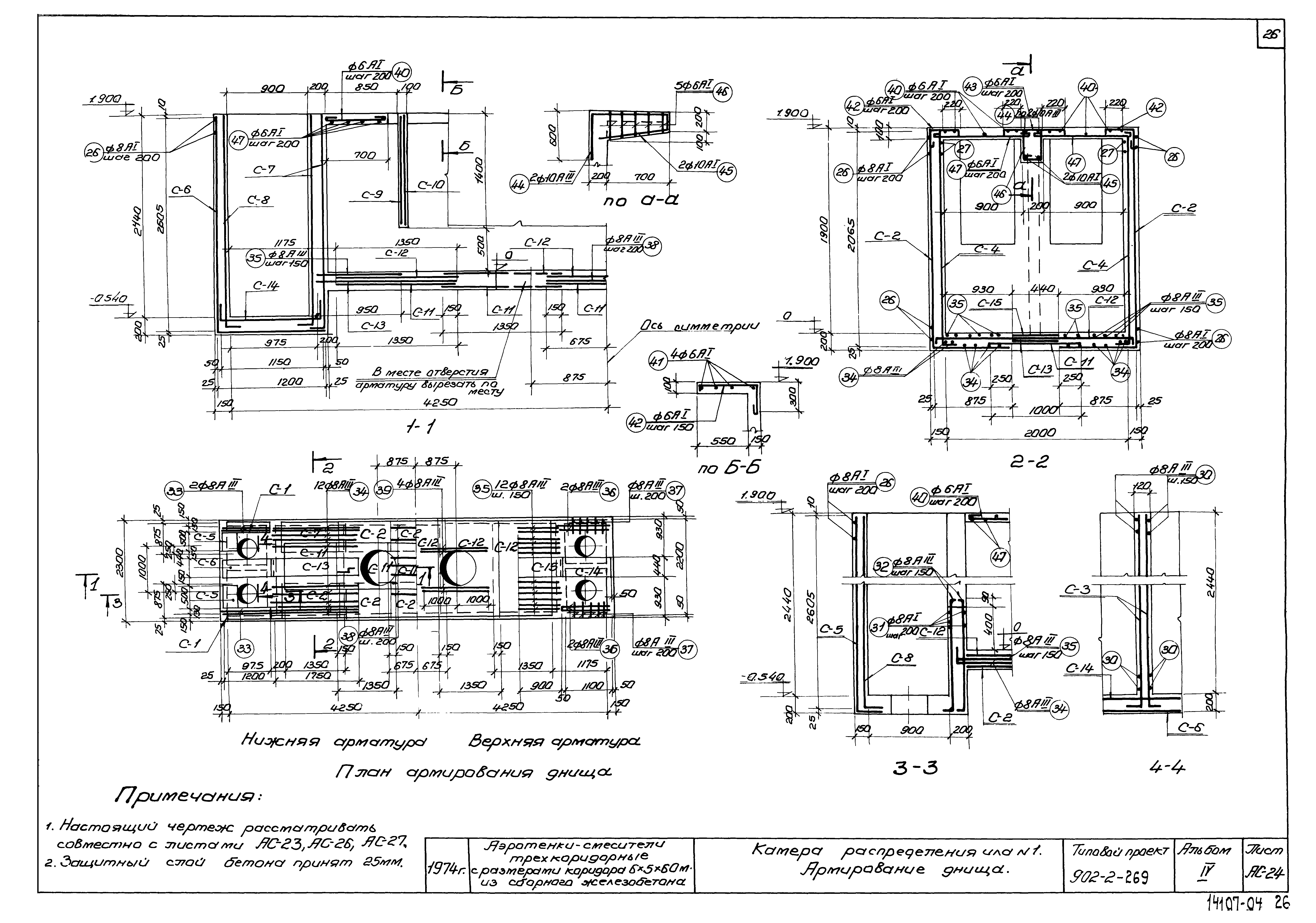
Скачать Типовой проект 902-2-269 Альбом IV. Узлы и детали, монолитные участки стен. Камеры распределения илаДата актуализации: 10.08.2017 Типовой проект 902-2-269
Альбом IV. Узлы и детали, монолитные участки стен. Камеры распределения илаОбозначение: | Типовой проект 902-2-269 | Обозначение англ: | 902-2-269 | Статус: | действует | Название рус.: | Альбом IV. Узлы и детали, монолитные участки стен. Камеры распределения ила | Дата добавления в базу: | 01.09.2013 | Дата актуализации: | 05.05.2017 | Дата введения: | 05.11.1976 | Разработан: | ЦНИИпромзданий Союзводоканалниипроект
| Утверждён: | 09.12.1975 Главпромстройпроект Госстроя СССР
| Расположен в: |
|
                                  
|