Информационная система
«Ёшкин Кот»

Скачать базу одним архивом
Скачать обновления
История создания базы
Карта сайта

Скачать Типовой проект 902-2-57/71 Альбом I. Архитектурно-строительная часть. Отопление и вентиляция

Дата актуализации: 10.08.2017

Типовой проект 902-2-57/71

Альбом I. Архитектурно-строительная часть. Отопление и вентиляция

Обозначение: Типовой проект 902-2-57/71
Обозначение англ: 902-2-57/71
Статус:не действует
Название рус.:Альбом I. Архитектурно-строительная часть. Отопление и вентиляция
Дата добавления в базу:01.09.2013
Дата актуализации:05.05.2017
Дата введения:01.01.1986
Оглавление:ТП 902-2-57/71-АС-1 Заглавный лист
ТП 902-2-57/71-АС-2И Содержание альбома
ТП 902-2-57/71-АС-3 Пояснительная записка
ТП 902-2-57/71-АС-4 Пояснительная записка (продолжение)
ТП 902-2-57/71-АС-5 Планы здания, кровли, покрытия и опорных подушек. Спецификация
ТП 902-2-57/71-АС-6 Разрезы 1-1; 2-2; 3-3. Сечение 3-3; 4-4
ТП 902-2-57/71-АС-7 Фасады
ТП 902-2-57/71-АС-8 План фундаментов. Детали (расположение здания на насыпи Н=2.0;3.0;4.0;5.0м)
ТП 902-2-57/71-АС-9 Фундаменты. План и профили фундаментов. Сечения (расположение здания на уровне земли и на насыпи Н= 10м)
ТП 902-2-57/71-АС-10 Лотки и каналы. Планы расположения перекрытия лотков и каналов
ТП 902-2-57/71-АС-11 Каналы. Сечения и детали. Узлы лотков "4", "5", "5а"
ТП 902-2-57/71-АС-12 Лотки. Разрез 1-1, сечения, узлы (расположение здания на насыпи Н=2.0;3.0;4.0;5.0 м)
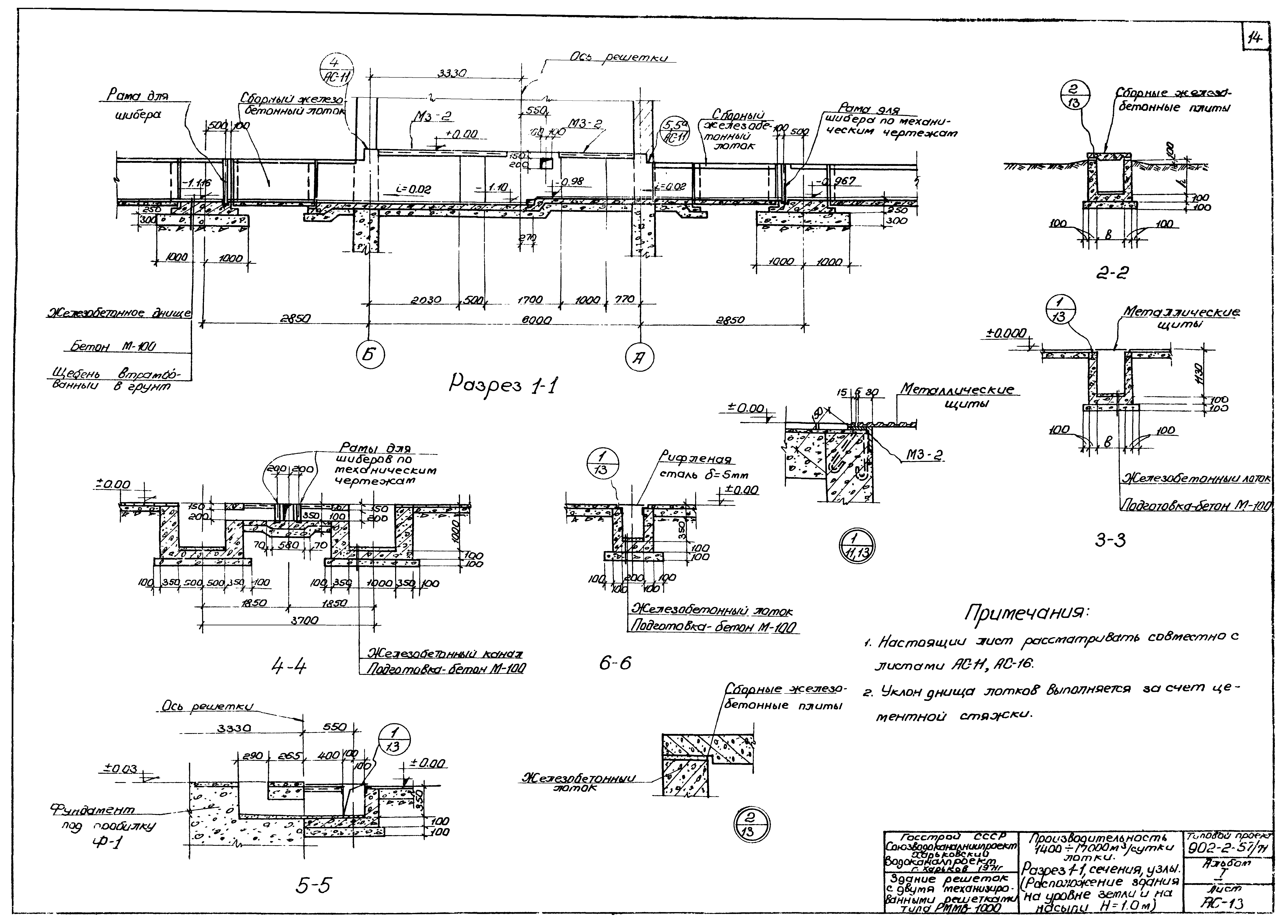
ТП 902-2-57/71-АС-13 Лотки. Разрез 1-1, сечения, узлы (расположение здания на уровне земли на насыпи Н=10 м)
ТП 902-2-57/71-АС-14 Фундаменты под оборудование. Детали
ТП 902-2-57/71-АС-15 Опоры под лотки ОП-2а, ОП-2б. Детали
ТП 902-2-57/71-АС-16 Опалубочный чертеж лотка ЛМ-1. Расход материалов на лотки ЛМ-1,ЛМ-2,ЛМ-3
ТП 902-2-57/71-АС-17 Опалубочный чертеж лотка ЛМ-3
ТП 902-2-57/71-АС-18 Лоток ЛМ-1. Армирование. План. Разрезы 1-1; 2-2; 3-3
ТП 902-2-57/71-АС-19 Лотки ЛМ-1; ЛМ-2; ЛМ-3. Армирование
ТП 902-2-57/71-АС-21 Лотки ЛМ-1; ЛМ-2; ЛМ-3. Спецификация арматуры
ТП 902-2-57/71-АС-24 Металлические щиты перекрытия каналов. Детали. Спецификация металла
ТП 902-2-57/71-АС-26 Направляющие пути кран-балки. Узлы, марки. Спецификация металла
ТП 902-2-57/71-АС-27 Металлическая площадка на отм 200 м. План. Разрезы, детали. Спецификация металла
ТП 902-2-57/71-АС-29 Сборный железобетонный лоток АС-1. Плита П-1. Армирование
ТП 902-2-57/71-АС-31 Плита ПН-1. Опорная подушка ОП-1. Опалубка и армирование
ТП 902-2-57/71-АС-32 Металлические закладные марки
ТП 902-2-57/71-АС-33 Сводная спецификация на здание
ТП 902-2-57/71-АС-34,35 Сводная выборка бетона и стали
ТП 902-2-57/71-ОВ Отопление и вентиляция
ТП 902-2-57/71-ОВ-1И Основные показатели проекта отопления и вентиляции
ТП 902-2-57/71-ОВ-2И План с нанесением системы отопления. Схема системы отопления. Узел ввода. Схема обвязки калориферов (теплоноситель вода 150-70ºС)
ТП 902-2-57/71-ОВ-3И План с нанесением системы отопления. Схема системы отопления. Узел ввода. Схема обвязки калориферов (теплоноситель вода 110-70ºС)
ТП 902-2-57/71-ОВ-4И План с нанесением системы вентиляции. Схемы воздуховодов системы П-1 и В-1. Характеристика отопительно-вентиляционного оборудования
ТП 902-2-57/71-ОВ-5И Отопление и вентиляция. Приточная установка П-1. Разрез 1-1. Детали
Разработан: Союзводоканалниипроект
Утверждён:06.10.1972 СоюзводоканалНИИпроект (SoyuzvodokanalNIIproject 218)
Расположен в:Техническая документация Строительство Справочные документы Типовые строительные конструкции, изделия и узлы Общероссийский строительный каталог Промышленные предприятия, здания и сооружения Здания и сооружения санитарно-технические Канализация Сооружения механической очистки Здания решеток
Типовой проект 902-2-57/71Типовой проект 902-2-57/71Типовой проект 902-2-57/71Типовой проект 902-2-57/71Типовой проект 902-2-57/71Типовой проект 902-2-57/71Типовой проект 902-2-57/71Типовой проект 902-2-57/71Типовой проект 902-2-57/71Типовой проект 902-2-57/71Типовой проект 902-2-57/71Типовой проект 902-2-57/71Типовой проект 902-2-57/71Типовой проект 902-2-57/71Типовой проект 902-2-57/71Типовой проект 902-2-57/71Типовой проект 902-2-57/71Типовой проект 902-2-57/71Типовой проект 902-2-57/71Типовой проект 902-2-57/71Типовой проект 902-2-57/71Типовой проект 902-2-57/71Типовой проект 902-2-57/71Типовой проект 902-2-57/71Типовой проект 902-2-57/71Типовой проект 902-2-57/71Типовой проект 902-2-57/71Типовой проект 902-2-57/71Типовой проект 902-2-57/71Типовой проект 902-2-57/71Типовой проект 902-2-57/71Типовой проект 902-2-57/71Типовой проект 902-2-57/71Типовой проект 902-2-57/71Типовой проект 902-2-57/71Типовой проект 902-2-57/71Типовой проект 902-2-57/71Типовой проект 902-2-57/71Типовой проект 902-2-57/71Типовой проект 902-2-57/71Типовой проект 902-2-57/71Типовой проект 902-2-57/71Типовой проект 902-2-57/71

© 2013 Ёшкин Кот :-) Карта сайта