Информационная система
«Ёшкин Кот»

Скачать базу одним архивом
Скачать обновления
История создания базы
Карта сайта

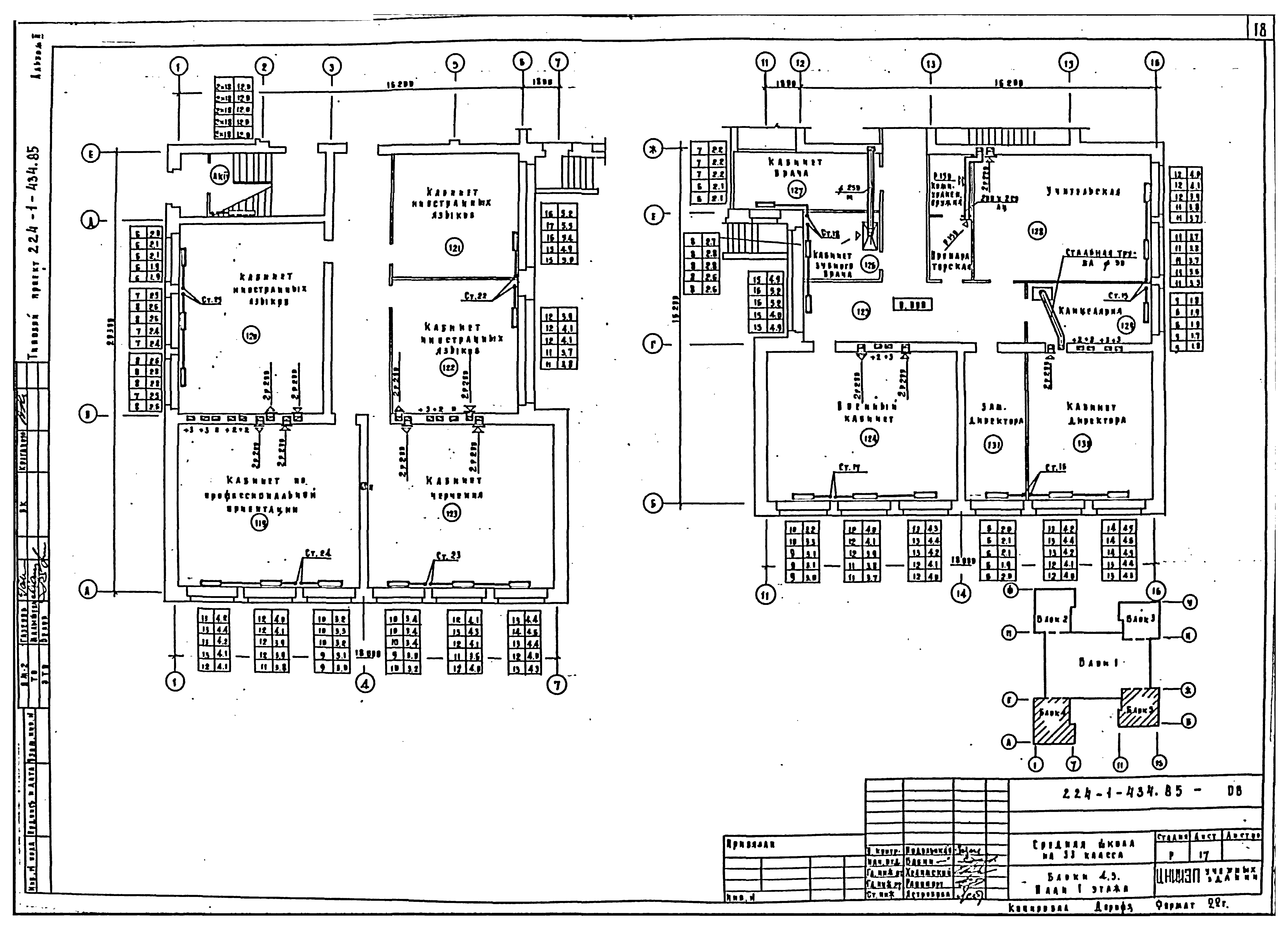
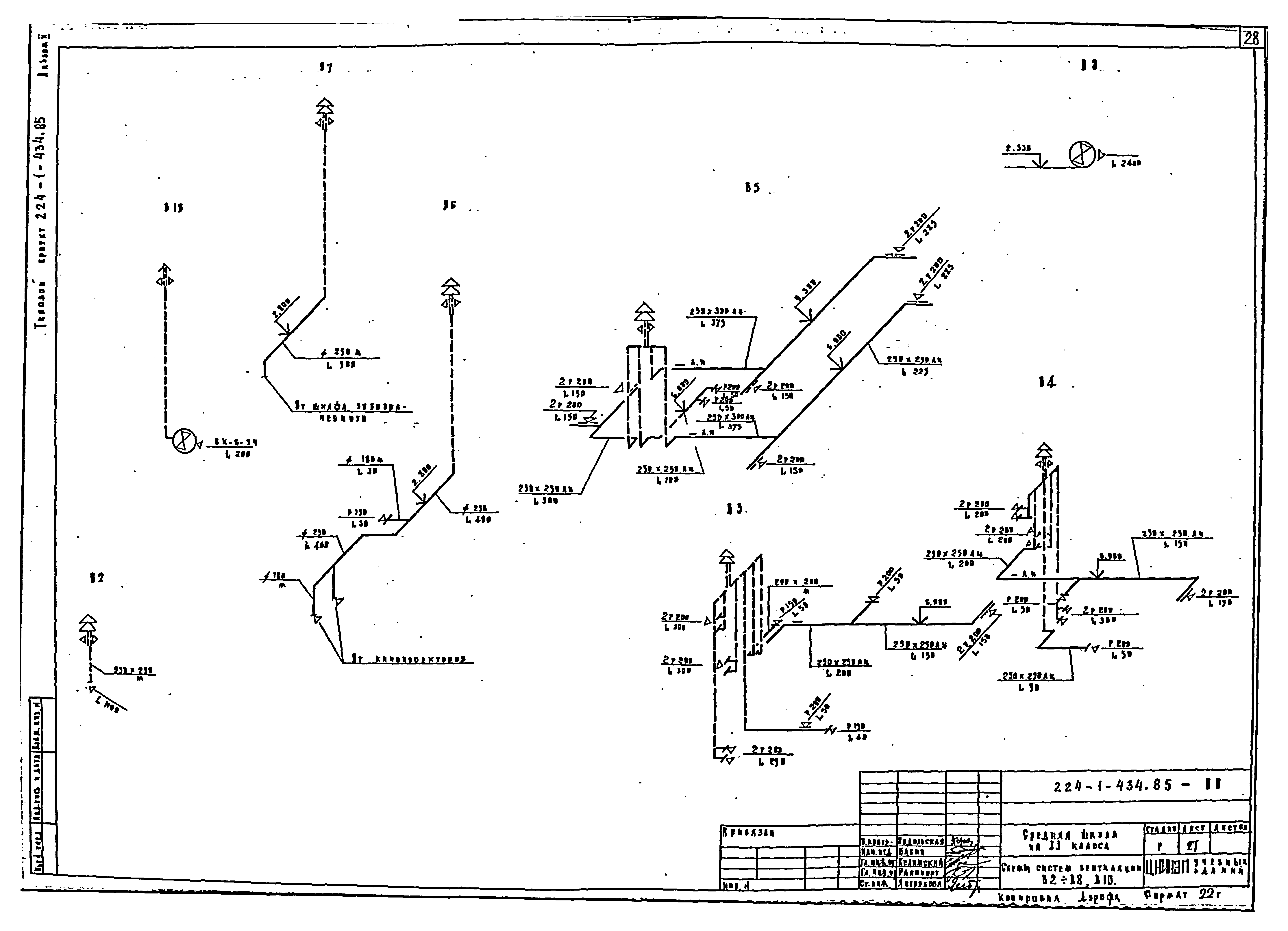
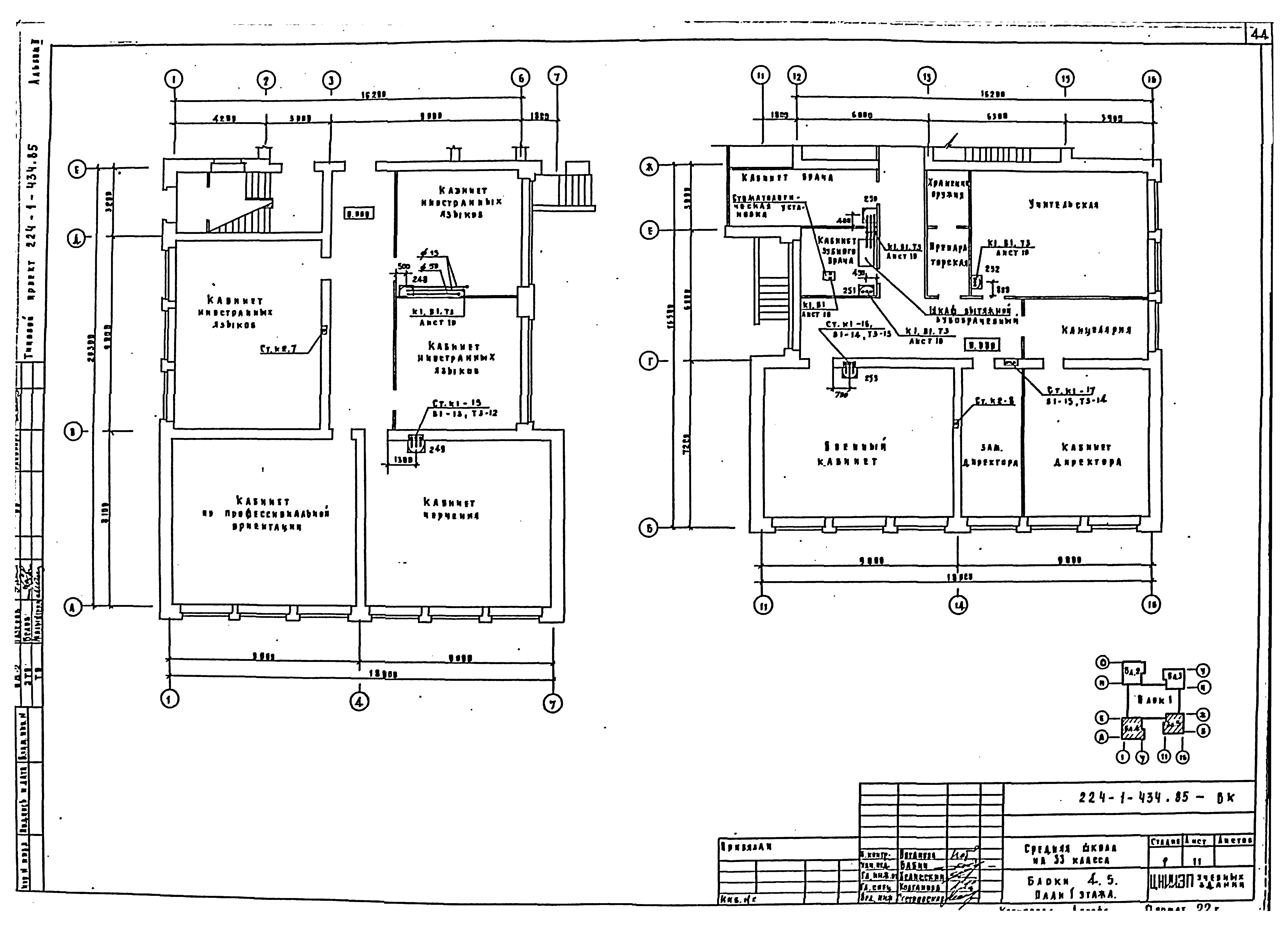
Скачать Типовой проект 224-1-434.85 Альбом II. Санитарно-технические чертежи

Дата актуализации: 10.08.2017

Типовой проект 224-1-434.85

Альбом II. Санитарно-технические чертежи

Обозначение: Типовой проект 224-1-434.85
Обозначение англ: 224-1-434.85
Статус:не определен законодательством
Название рус.:Альбом II. Санитарно-технические чертежи
Дата добавления в базу:01.09.2013
Дата актуализации:05.05.2017
Дата введения:23.04.1985
Разработан: ЦНИИЭП учебных зданий Госгражданстроя
Утверждён:01.11.1982 Госгражданстрой (Gosgrazhdanstroy 293)
Расположен в:Техническая документация Строительство Справочные документы Типовые строительные конструкции, изделия и узлы Общероссийский строительный каталог Защитные сооружения гражданской обороны Типовые проекты защитных сооружений гражданской обороны для жилищно-гражданского строительства Для строительства в городах и поселках городского типа Встроенные помещения, приспосабливаемые под противорадиационные укрытия в общественных зданиях Противорадиационные укрытия в школах и внешкольных учреждениях Общественные здания в городах и поселках городского типа Школы и внешкольные учреждения Общеобразовательные школы
Типовой проект 224-1-434.85Типовой проект 224-1-434.85Типовой проект 224-1-434.85Типовой проект 224-1-434.85Типовой проект 224-1-434.85Типовой проект 224-1-434.85Типовой проект 224-1-434.85Типовой проект 224-1-434.85Типовой проект 224-1-434.85Типовой проект 224-1-434.85Типовой проект 224-1-434.85Типовой проект 224-1-434.85Типовой проект 224-1-434.85Типовой проект 224-1-434.85Типовой проект 224-1-434.85Типовой проект 224-1-434.85Типовой проект 224-1-434.85Типовой проект 224-1-434.85Типовой проект 224-1-434.85Типовой проект 224-1-434.85Типовой проект 224-1-434.85Типовой проект 224-1-434.85Типовой проект 224-1-434.85Типовой проект 224-1-434.85Типовой проект 224-1-434.85Типовой проект 224-1-434.85Типовой проект 224-1-434.85Типовой проект 224-1-434.85Типовой проект 224-1-434.85Типовой проект 224-1-434.85Типовой проект 224-1-434.85Типовой проект 224-1-434.85Типовой проект 224-1-434.85Типовой проект 224-1-434.85Типовой проект 224-1-434.85Типовой проект 224-1-434.85Типовой проект 224-1-434.85Типовой проект 224-1-434.85Типовой проект 224-1-434.85Типовой проект 224-1-434.85Типовой проект 224-1-434.85Типовой проект 224-1-434.85Типовой проект 224-1-434.85Типовой проект 224-1-434.85Типовой проект 224-1-434.85Типовой проект 224-1-434.85Типовой проект 224-1-434.85Типовой проект 224-1-434.85Типовой проект 224-1-434.85Типовой проект 224-1-434.85Типовой проект 224-1-434.85Типовой проект 224-1-434.85Типовой проект 224-1-434.85Типовой проект 224-1-434.85Типовой проект 224-1-434.85

© 2013 Ёшкин Кот :-) Карта сайта