Информационная система
«Ёшкин Кот»

Скачать базу одним архивом
Скачать обновления
История создания базы
Карта сайта

Скачать Типовой проект 902-2-258 Альбом VIII. Производственный корпус. Архитектурно-строительная часть (из ТП 902-2-260)

Дата актуализации: 10.08.2017

Типовой проект 902-2-258

Альбом VIII. Производственный корпус. Архитектурно-строительная часть (из ТП 902-2-260)

Обозначение: Типовой проект 902-2-258
Обозначение англ: 902-2-258
Статус:действует
Название рус.:Альбом VIII. Производственный корпус. Архитектурно-строительная часть (из ТП 902-2-260)
Дата добавления в базу:01.09.2013
Дата актуализации:05.05.2017
Дата введения:29.12.1975
Оглавление:ТП 902-2-260 Титульный лист
ТП 902-2-260 Содержание альбома
ТП 902-2-260-АР Чертежи марки "АР"
ТП 902-2-260-АР-1 Заглавный лист
ТП 902-2-260-АР-2 Планы кровли, полов. Детали полов. Ведомость внутренней отделки
ТП 902-2-260-АР-3 План на отм. ±0.000
ТП 902-2-260-АР-4 План на отм. 3.300
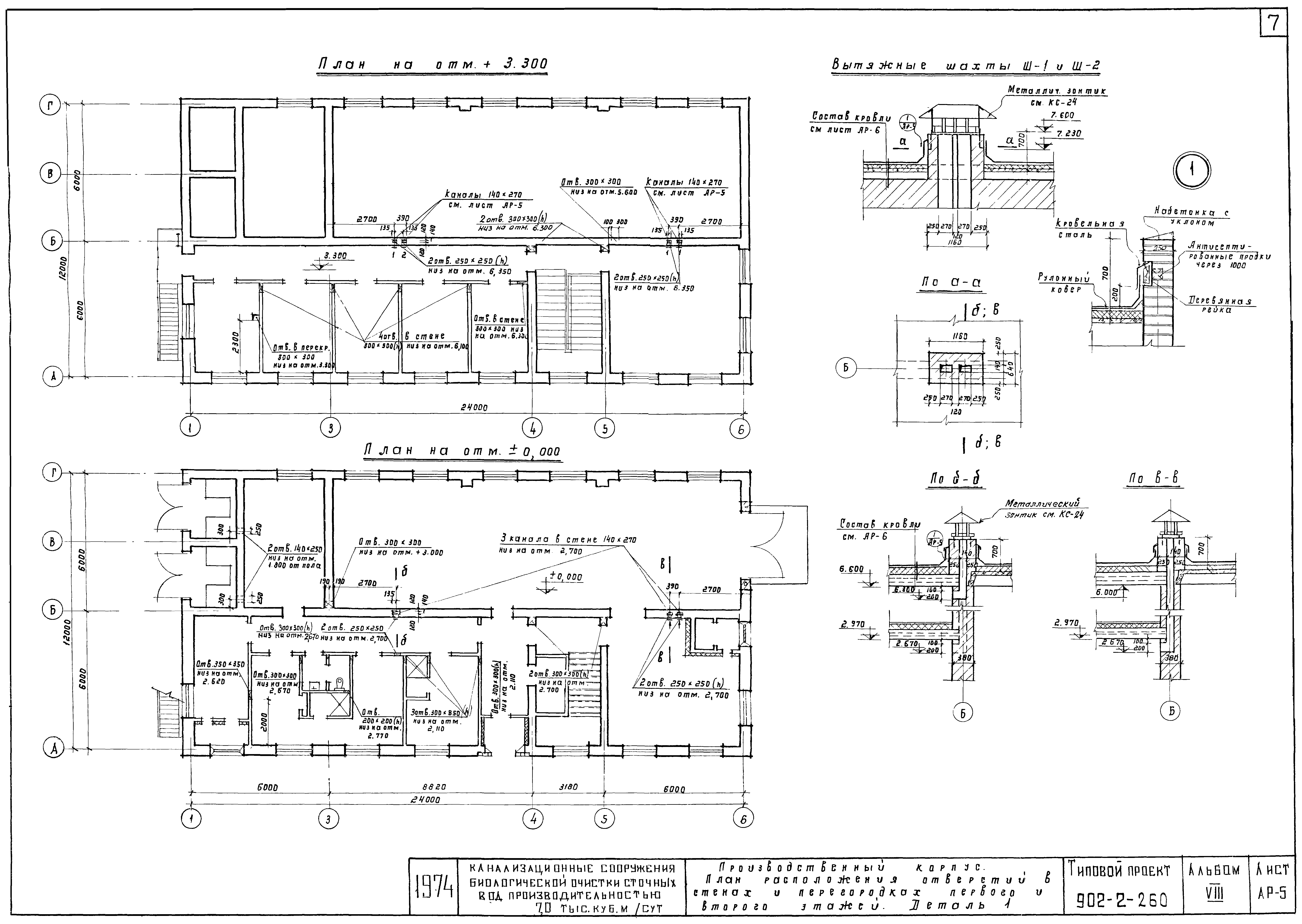
ТП 902-2-260-АР-5 План расположения отверстий в стенах и перегородках первого и второго этажей. Деталь 1
ТП 902-2-260-АР-6 Разрезы 1-1; 2-2; 3-3
ТП 902-2-260-АР-7 Фасады
ТП 902-2-260-АР-8 Разрезы 4-4; 5-5; 6-6; 7-7 и фрагменты планов № 1 и № 2. Детали 2,3
ТП 902-2-260-АР-9 Фрагмент фасада № 1, фрагмент плана № 3. Разрез 8-8
ТП 902-2-260-АР-10 Фрагмент плана № 4, разрез 9-9. Сечение перегородки со стеклоблоками на отм. ±0.000
ТП 902-2-260-АР-11 Фрагмент плана № 5. Разрез 10-10 (перегородка со стеклоблоками на отм. +3.300)
ТП 902-2-260-АР-12 Детали 4-8; разрез 11-11
ТП 902-2-260-АР-13 Монтажные схемы перемычек в стенах и перегородках первого и второго этажей. Спецификация
ТП 902-2-260-АР-14 Железобетонная лестница. Планы, разрез 12-12. Детали 10, 11, 12. Выборки
ТП 902-2-260-КС Чертежи марки "КС"
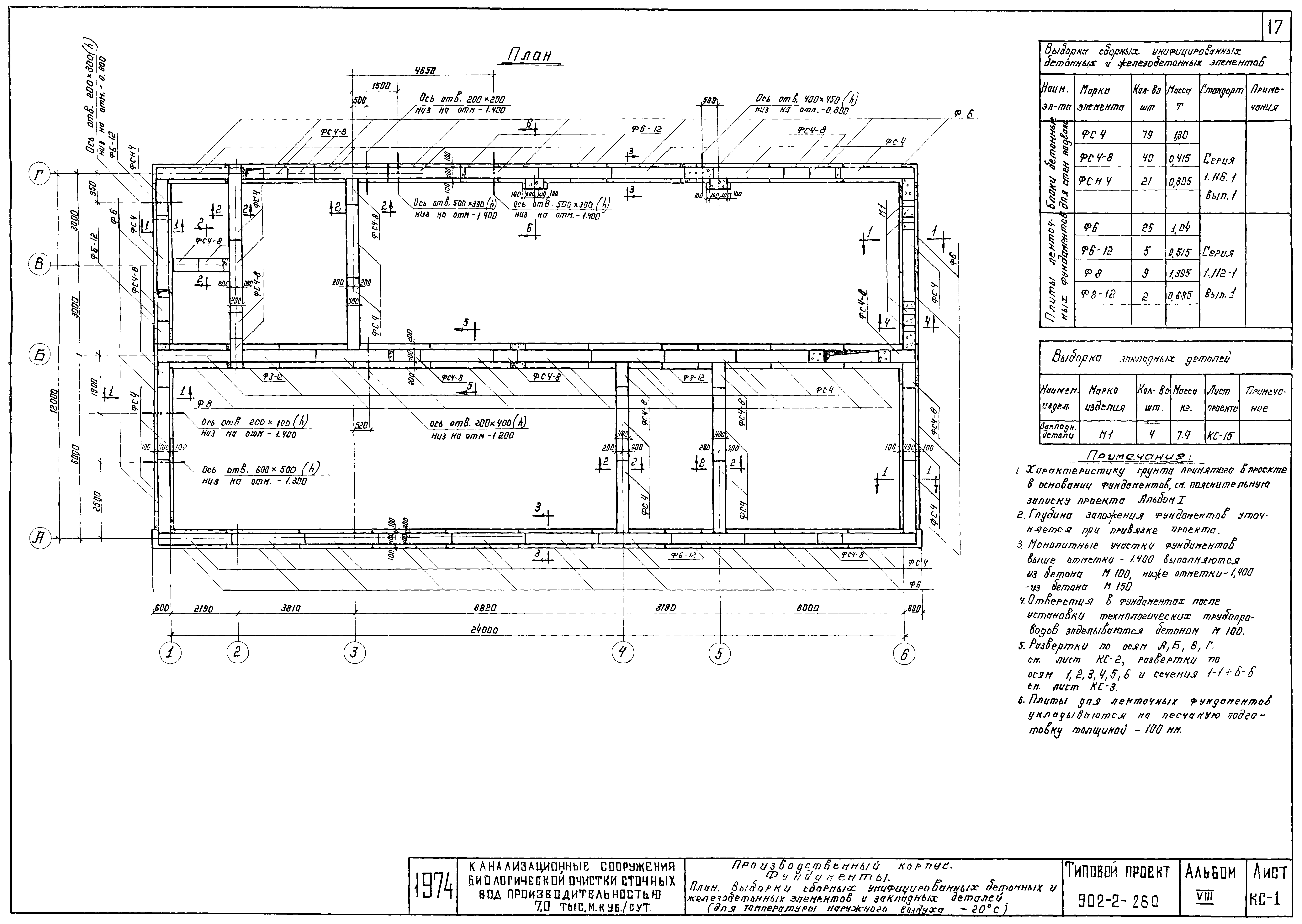
ТП 902-2-260-КС-1 Фундаменты. План. Выборки сборных унифицированных бетонных и железобетонных элементов и закладных деталей (для температуры наружного воздуха -20 ºС)
ТП 902-2-260-КС-2 Фундаменты. Развертки по осям А,Б,В,Г (для температуры наружного воздуха -20 ºС)
ТП 902-2-260-КС-3 Фундаменты. Развертки по осям 1, 2, 3, 4, 5, 6. Сечения 1-1 ÷ 6-6 (для температуры наружного воздуха -20 ºС)
ТП 902-2-260-КС-4 Фундаменты. План. Выборки сборных унифицированных и железобетонных элементов и закладных деталей (для температуры нижнего воздуха -30 ºС)
ТП 902-2-260-КС-5 Фундаменты. Развертки по осям А, Б, В, Г (для температуры наружного воздуха -30 ºС)
ТП 902-2-260-КС-6 Фундаменты. Развертки по осям 1, 2, 3, 4, 5, 6. Сечения 1-1 ÷ 8-8 (для температуры наружного воздуха -30 ºС)
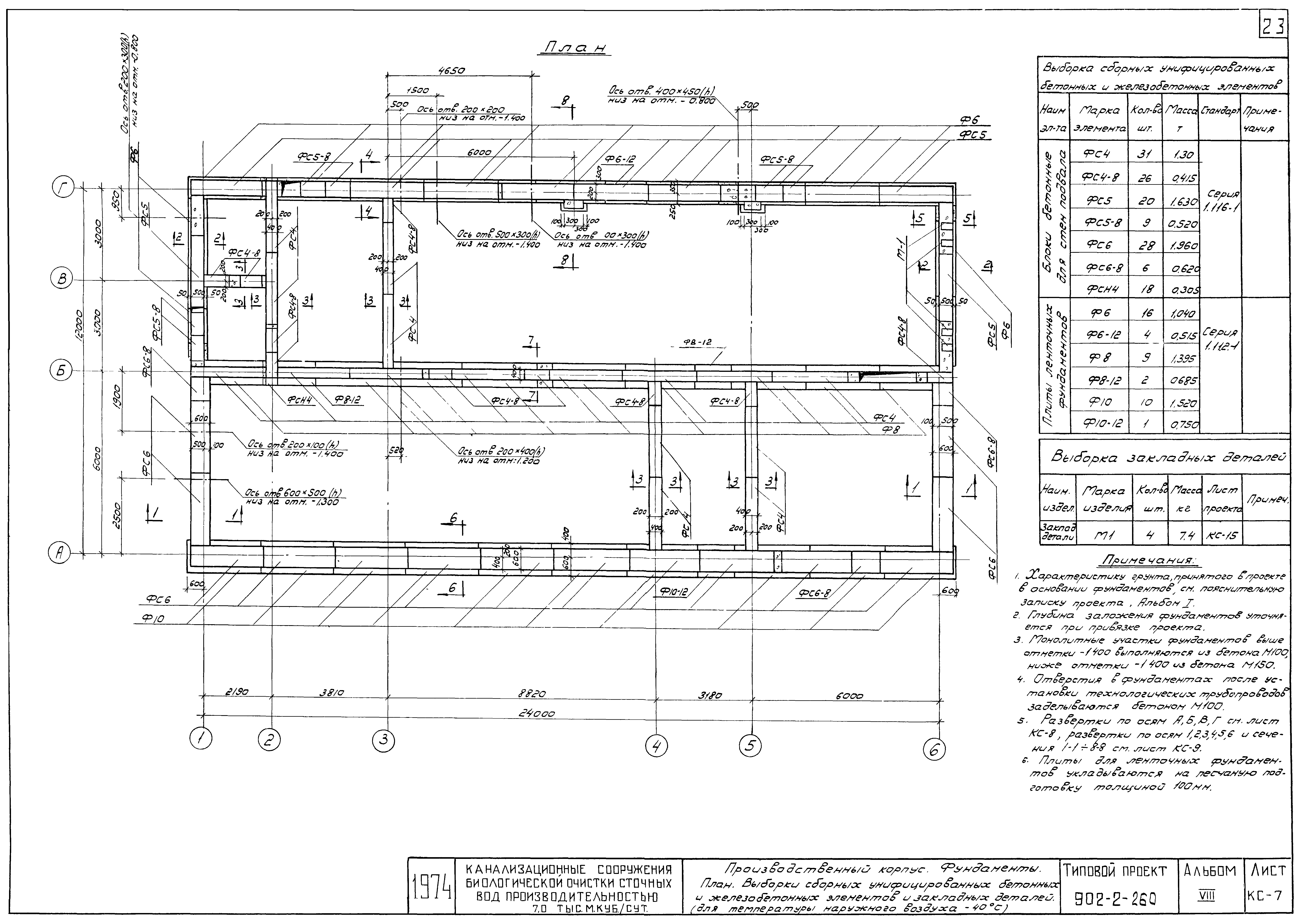
ТП 902-2-260-КС-7 Фундаменты. План. Выборки сборных унифицированных бетонных и железобетонных элементов и закладных деталей (для температуры наружного воздуха -40 ºС)
ТП 902-2-260-КС-8 Фундаменты. Развертки по осям А, Б, В, Г (для температуры наружного воздуха -40 ºС)
ТП 902-2-260-КС-9 Фундаменты. Развертки по осям 1, 2, 3, 4, 5, 6. Сечения 1-1 ÷ 8-8 (для температуры наружного воздуха -40 ºС)
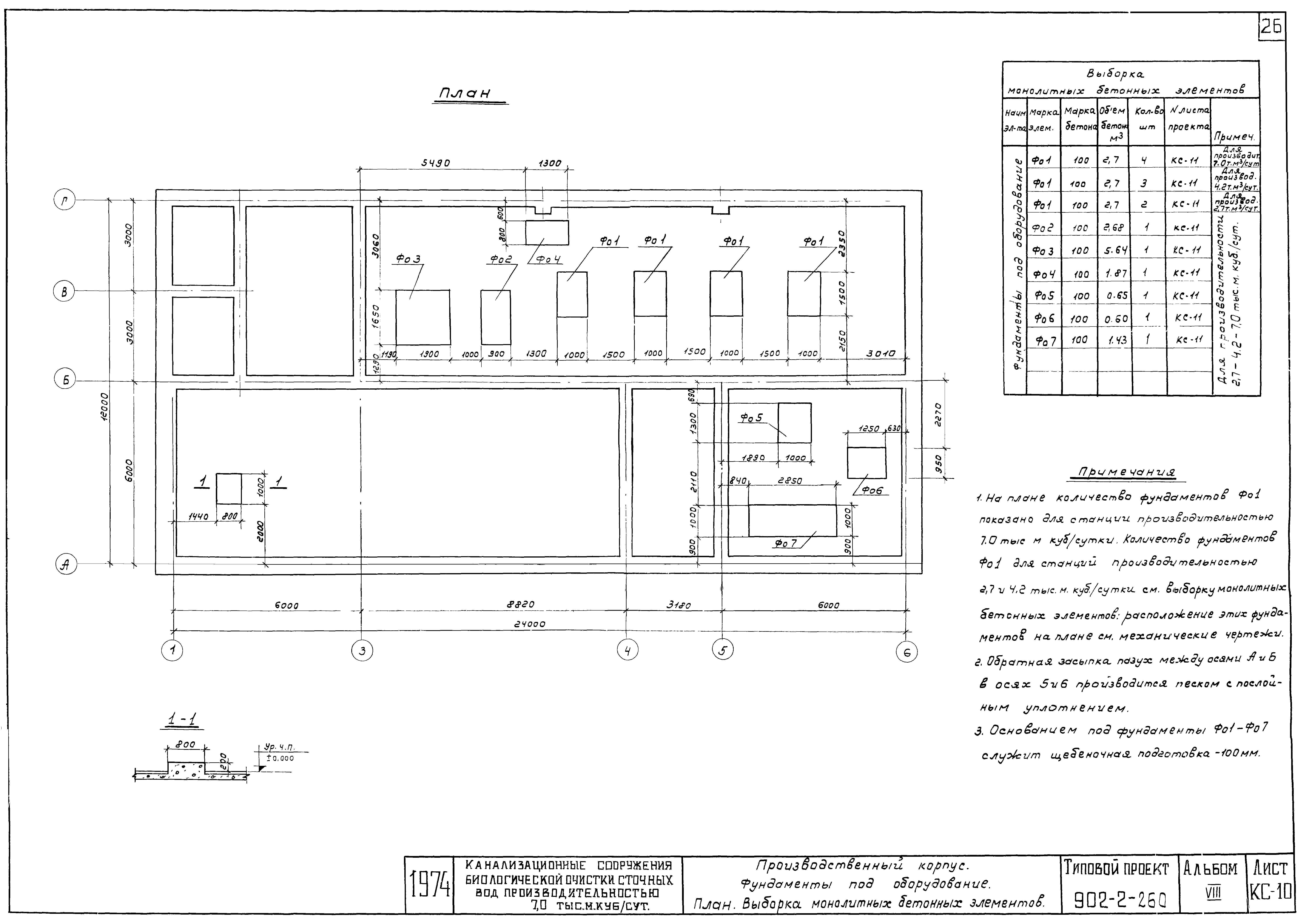
ТП 902-2-260-КС-10 Фундаменты под оборудование. План. Выборка монолитных бетонных элементов
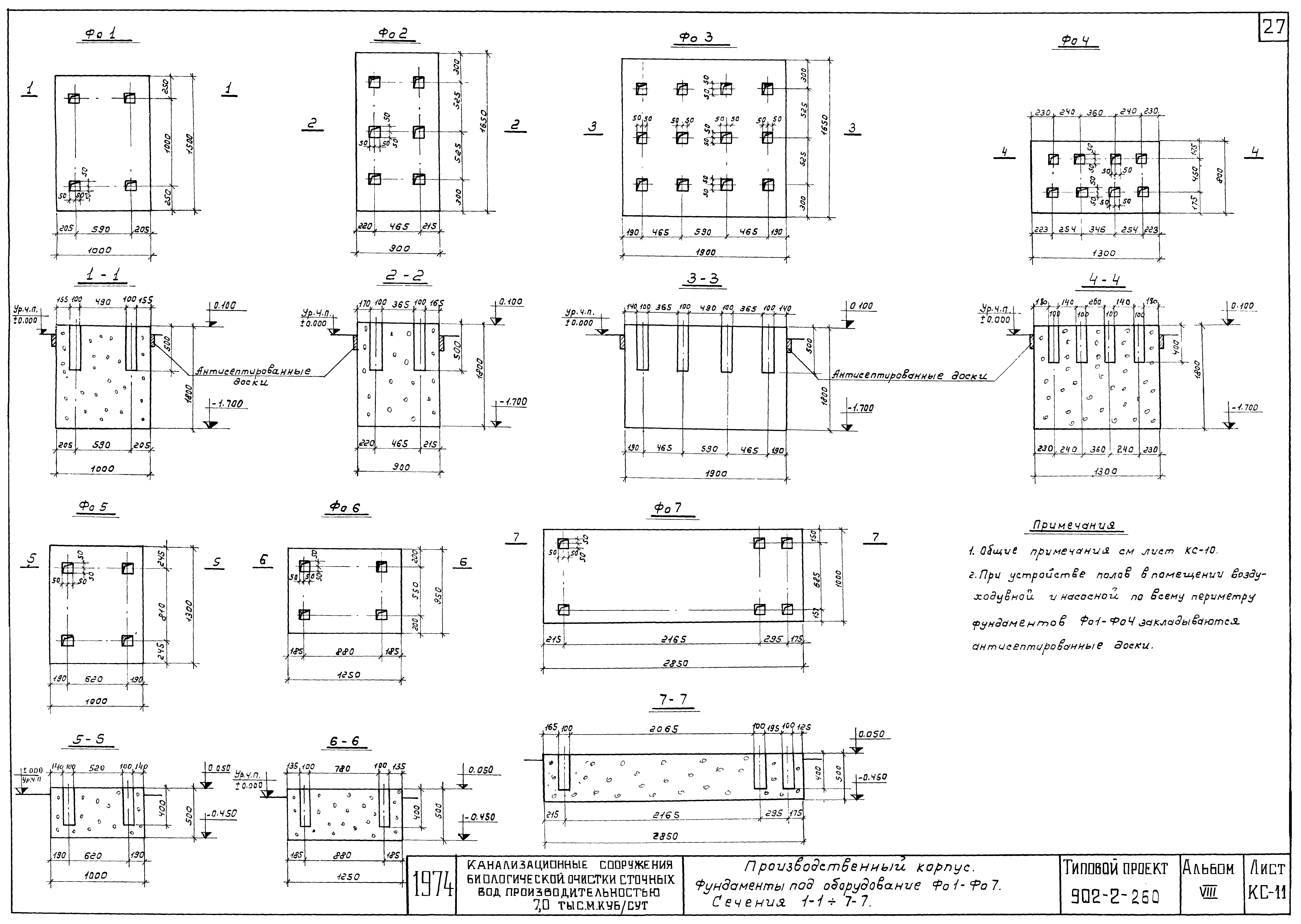
ТП 902-2-260-КС-11 Фундаменты под оборудование ФО1-ФО7. Сечения 1-1 ÷ 7-7
ТП 902-2-260-КС-12 Подпольные каналы. План. Выборка сборных унифицированных железобетонных элементов монолитных участков и металлических изделий
ТП 902-2-260-КС-13 Подпольные каналы. Сечения 1-1 ÷ 8-8. Узлы 1,2
ТП 902-2-260-КС-14 Подпольные каналы. Сечения 9-9 ÷ 15-15
ТП 902-2-260-КС-15 Подпольные каналы. Монолитные железобетонные плиты ПКМ1,ПКМ2. Металлические щиты Щ1,Щ2,Щ3. Закладные детали М1,М2,М3
ТП 902-2-260-КС-16 Подпольные каналы. Закладные детали М4, М5, М6. Спецификация арматуры и стали
ТП 902-2-260-КС-17 Перекрытие. План. Выборки сборных унифицированных железобетонных элементов, монолитных участков и монтажных узлов
ТП 902-2-260-КС-18 Покрытие. Выборка сборных железобетонных элементов и монтажных узлов
ТП 902-2-260-КС-19 Перекрытие. Покрытие. Сечения 1-1 ÷ 9-9. Узлы 1-3. Монолитные плиты ППМ1,ППМ2. Спецификация арматуры
ТП 902-2-260-КС-20 Стойка С1. Опалубочный чертеж. Армирование. Спецификация арматуры и стали. Показатели на один элемент
ТП 902-2-260-КС-21 Схема крепления путей кран-балки. Балки БМ1,БМ2. Спецификация стали
ТП 902-2-260-КС-22 Металлические изделия. Площадка ПМ1. Лестница Л1. Закладная деталь М7. Выборка металлических изделий и узлов. Спецификация
ТП 902-2-260-КС-23 Металлические изделия. Лестница Л2. Ограждение МО1. Узлы 4-6. Анкер А1. Спецификация стали
ТП 902-2-260-КС-24 Металлические изделия. Схема установки зонта. Зонт ЗМ1. Сечения 1-1÷4-4. Узлы 1,2
ТП 902-2-260-КС-25 Металлические изделия. Зонт ЗМ1. Рамки РМ1,РМ2. Позиции 3-6. Спецификации стали
ТП 902-2-260-КС-26 Выборки
ТП 902-2-260-КС-27 Выборки
Разработан: Гипрокоммунводоканал Минжилкомхоза РСФСР
Утверждён:20.06.1975 МЖКХ РСФСР (10ТД)
Издан: ЦИТП Госстроя СССР (CITP, Gosstroy (USSR) 1976 г. )
Расположен в:Техническая документация Строительство Справочные документы Типовые строительные конструкции, изделия и узлы Общероссийский строительный каталог Промышленные предприятия, здания и сооружения Здания и сооружения санитарно-технические Канализация Сооружения биологической (биохимической) очистки Станции биологической очистки сточных вод
Типовой проект 902-2-258Типовой проект 902-2-258Типовой проект 902-2-258Типовой проект 902-2-258Типовой проект 902-2-258Типовой проект 902-2-258Типовой проект 902-2-258Типовой проект 902-2-258Типовой проект 902-2-258Типовой проект 902-2-258Типовой проект 902-2-258Типовой проект 902-2-258Типовой проект 902-2-258Типовой проект 902-2-258Типовой проект 902-2-258Типовой проект 902-2-258Типовой проект 902-2-258Типовой проект 902-2-258Типовой проект 902-2-258Типовой проект 902-2-258Типовой проект 902-2-258Типовой проект 902-2-258Типовой проект 902-2-258Типовой проект 902-2-258Типовой проект 902-2-258Типовой проект 902-2-258Типовой проект 902-2-258Типовой проект 902-2-258Типовой проект 902-2-258Типовой проект 902-2-258Типовой проект 902-2-258Типовой проект 902-2-258Типовой проект 902-2-258Типовой проект 902-2-258Типовой проект 902-2-258Типовой проект 902-2-258Типовой проект 902-2-258Типовой проект 902-2-258Типовой проект 902-2-258Типовой проект 902-2-258Типовой проект 902-2-258Типовой проект 902-2-258Типовой проект 902-2-258Типовой проект 902-2-258

© 2013 Ёшкин Кот :-) Карта сайта