Информационная система
«Ёшкин Кот»

Скачать базу одним архивом
Скачать обновления
История создания базы
Карта сайта

Скачать Типовой проект 902-2-260 Альбом X. Производственный корпус. Электротехническая часть

Дата актуализации: 10.08.2017

Типовой проект 902-2-260

Альбом X. Производственный корпус. Электротехническая часть

Обозначение: Типовой проект 902-2-260
Обозначение англ: 902-2-260
Статус:действует
Название рус.:Альбом X. Производственный корпус. Электротехническая часть
Дата добавления в базу:01.09.2013
Дата актуализации:05.05.2017
Дата введения:29.12.1975
Оглавление:ТП 902-2-260-ЭЛ-1 Содержание альбома
ТП 902-2-260 Раздел 1. Электросиловое оборудование и управление электроприводами
ТП 902-2-260-ЭЛ-2 Содержание раздела 1. Принципиальная однолинейная схема 6 (10 кВ)
ТП 902-2-260-ЭЛ-3 Принципиальная однолинейная схема 380/220 В. Лист 1
ТП 902-2-260-ЭЛ-4 Принципиальная однолинейная схема 380/220 В. Лист 2
ТП 902-2-260-ЭЛ-5 Принципиальная схема управления агрегатами
ТП 902-2-260-ЭЛ-6 Принципиальная схема сигнализации
ТП 902-2-260-ЭЛ-7 Кабельный журнал
ТП 902-2-260-ЭЛ-8 Производственный корпус станции производительностью 70 тыс. м. куб/сутки. Прокладка кабелей и труб. Заземление. Планы на отм. ±0.000 и +3.000. Разрезы
ТП 902-2-260-ЭЛ-9 Трансформаторные камеры и электрощитовая. Установка аппаратов. План и разрезы
ТП 902-2-260-ЭЛ-10 Трансформаторная камера. Установка разъединителя и предохранителей. Разрезы
ТП 902-2-260-ЭЛ-11 Трансформаторная камера. Конструкция под разъединитель с приводом и предохранителями. Барьер. Общие виды и детали
ТП 902-2-260-ЭЛ-12 Трансформаторная камера. Подключение н/в стороны трансформатора. План, разрезы, конструкции и детали
ТП 902-2-260-ЭЛ-13 Схема внешних соединений отдельностоящего оборудования
ТП 902-2-260-ЭЛ-14 Пост местного управления 1ПМУ(2,3ПМУ). Общий вид и схема соединений
ТП 902-2-260-ЭЛ-15 Пост местного управления 4ПМУ(5-7ПМУ). Общий вид и схема соединений
ТП 902-2-260-ЭЛ-16 Пост местного управления 8ПМУ. Общий вид и схема соединений
ТП 902-2-260-ЭЛ-17 Пост местного управления 15ПМУ. Общий вид и схема соединений
ТП 902-2-260-ЭЛ-18 Схема учета электроэнергии. Пост учета электроэнергии ПУЭ. Общий вид и схема соединений
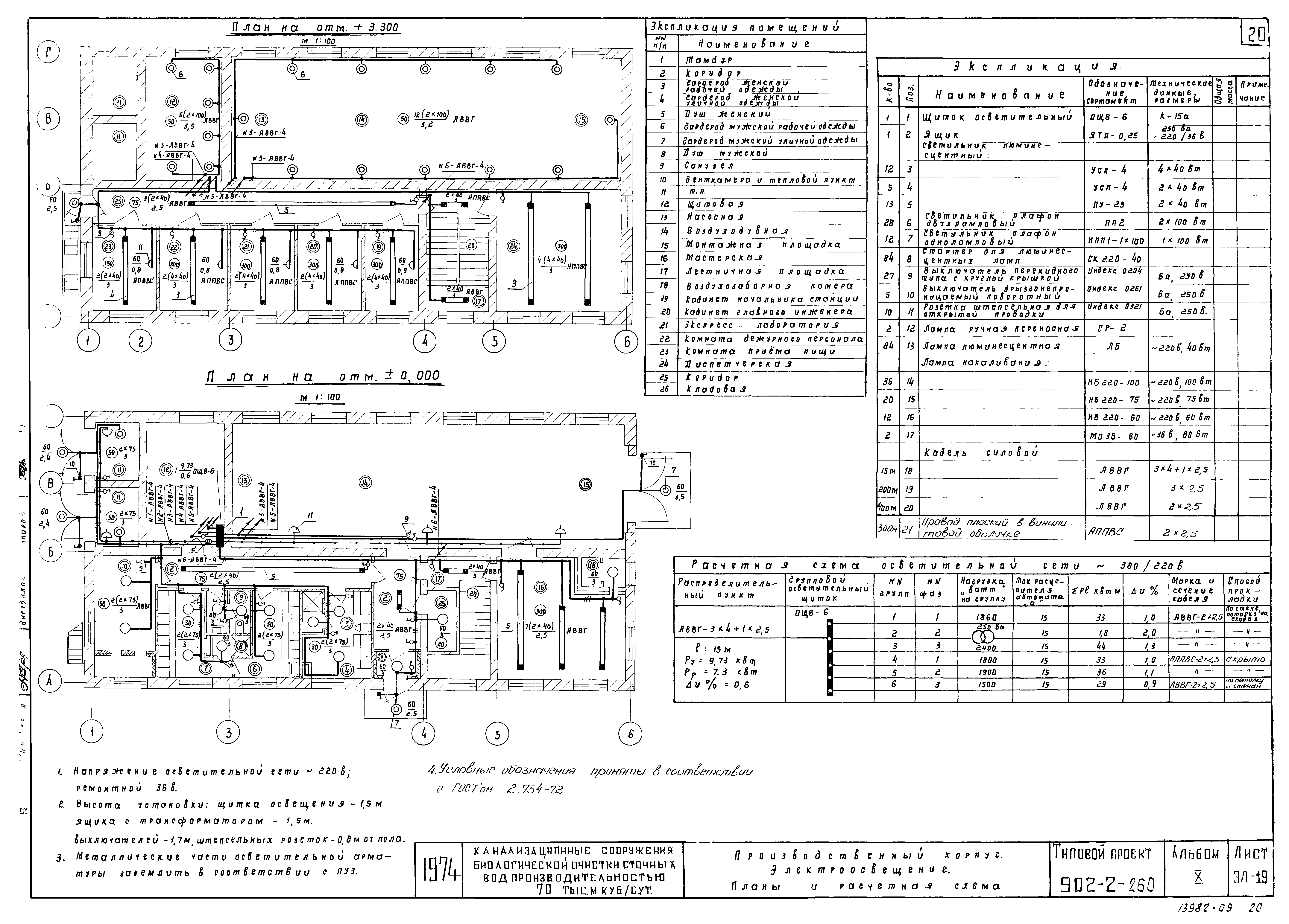
ТП 902-2-260-ЭЛ-19 Электроосвещение. Планы и расчетная схема
ТП 902-2-260-ЭЛ-20 Производственный корпус станции производительностью 70 тыс. м. куб/сутки. Строительное задание на проемы и закладные детали
ТП 902-2-260-ЭЛ-21 Опросный лист для заказа панелей ЩО-□
ТП 902-2-260 Раздел 2. Технологический контроль и слаботочные устройства
ТП 902-2-260-ЭА-1 Принципиальная схема технологического контроля, схема внешних соединений и схема питания приборов
ТП 902-2-260-ЭА-2 Трассы кабельных и трубных проводок
ТП 902-2-260-ЭС-1 Слаботочные устройства на полуэтажных планах
Разработан: Гипрокоммунводоканал Минжилкомхоза РСФСР
Утверждён:20.06.1975 МЖКХ РСФСР (10ТД)
Издан: ЦИТП Госстроя СССР (CITP, Gosstroy (USSR) 1976 г. )
Расположен в:Техническая документация Строительство Справочные документы Типовые строительные конструкции, изделия и узлы Общероссийский строительный каталог Промышленные предприятия, здания и сооружения Здания и сооружения санитарно-технические Канализация Сооружения биологической (биохимической) очистки Станции биологической очистки сточных вод
Типовой проект 902-2-260Типовой проект 902-2-260Типовой проект 902-2-260Типовой проект 902-2-260Типовой проект 902-2-260Типовой проект 902-2-260Типовой проект 902-2-260Типовой проект 902-2-260Типовой проект 902-2-260Типовой проект 902-2-260Типовой проект 902-2-260Типовой проект 902-2-260Типовой проект 902-2-260Типовой проект 902-2-260Типовой проект 902-2-260Типовой проект 902-2-260Типовой проект 902-2-260Типовой проект 902-2-260Типовой проект 902-2-260Типовой проект 902-2-260Типовой проект 902-2-260Типовой проект 902-2-260Типовой проект 902-2-260Типовой проект 902-2-260Типовой проект 902-2-260Типовой проект 902-2-260

© 2013 Ёшкин Кот :-) Карта сайта