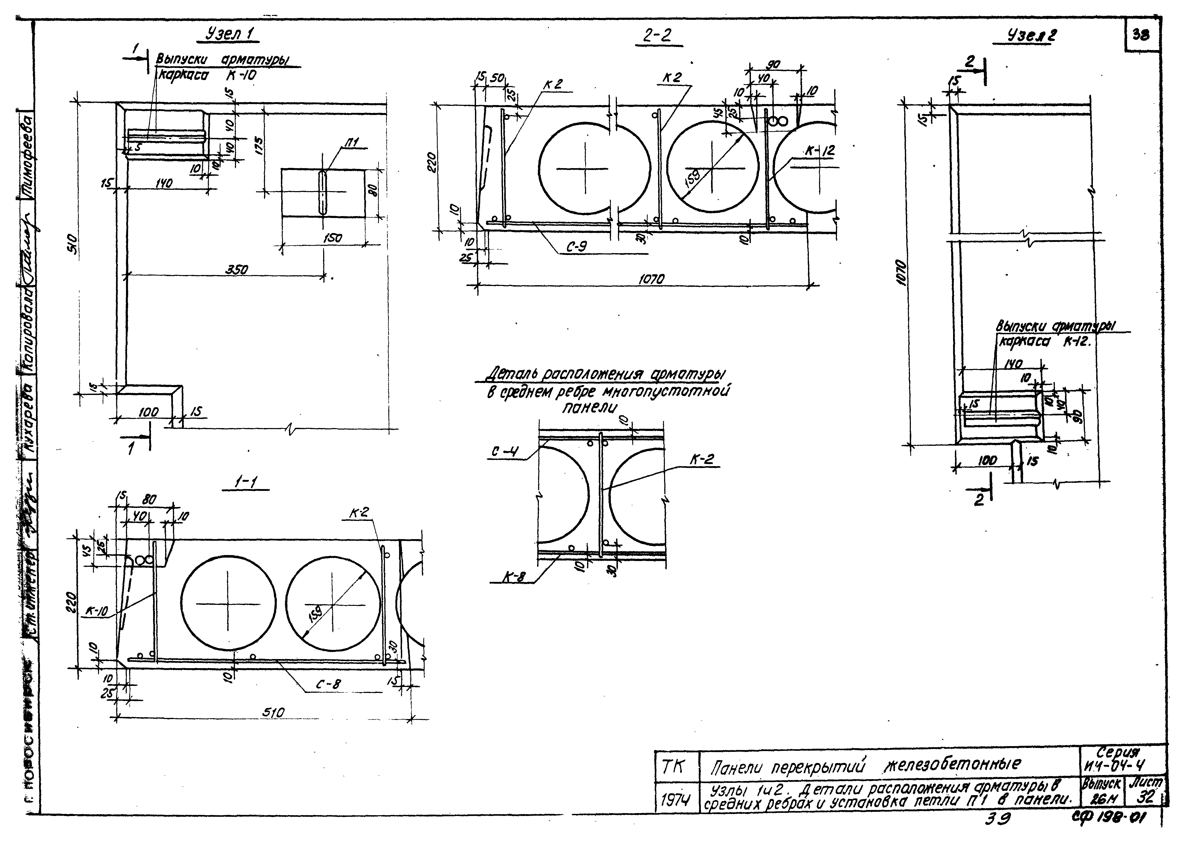
Скачать Серия ИИ-04-4 Выпуск 26м. Многопустотные и ребристые панели длиной 276, 526 и 576 см. Рабочие чертежиДата актуализации: 10.08.2017 Серия ИИ-04-4
Выпуск 26м. Многопустотные и ребристые панели длиной 276, 526 и 576 см. Рабочие чертежиОбозначение: | Серия ИИ-04-4 | Обозначение англ: | Series ИИ-04-4 | Статус: | не действует | Название рус.: | Выпуск 26м. Многопустотные и ребристые панели длиной 276, 526 и 576 см. Рабочие чертежи | Дата добавления в базу: | 01.09.2013 | Дата актуализации: | 05.05.2017 | Дата введения: | 15.11.1975 | Дата окончания срока действия: | 01.10.1988 | Разработан: | СибЗНИИЭП Госгражданстроя
| Утверждён: | 17.09.1975 Госстрой СССР (Государственный комитет Совета Министров СССР по делам строительства) (USSR Gosstroy 210)
| Расположен в: |
|
                                                        
|