Скачать Типовой проект 903-2-11 Альбом IV. Генеральный план, инженерные сети. Части: тепломеханическая, архитектурно-строительная, автоматизация, электротехническая, водопровод и канализация, тепловые сетиДата актуализации: 10.08.2017 Типовой проект 903-2-11
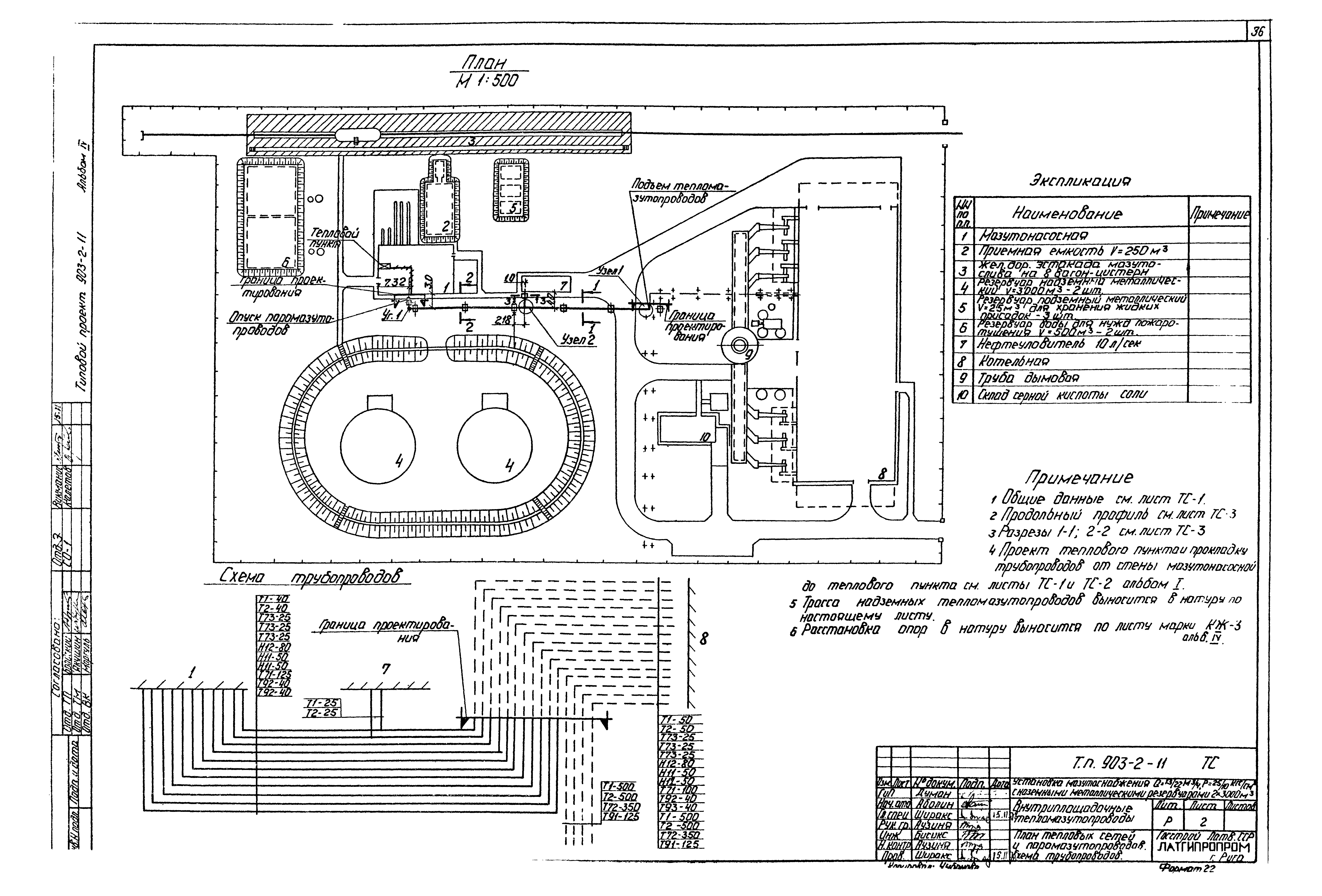
Альбом IV. Генеральный план, инженерные сети. Части: тепломеханическая, архитектурно-строительная, автоматизация, электротехническая, водопровод и канализация, тепловые сетиОбозначение: | Типовой проект 903-2-11 | Обозначение англ: | 903-2-11 | Статус: | не действует | Название рус.: | Альбом IV. Генеральный план, инженерные сети. Части: тепломеханическая, архитектурно-строительная, автоматизация, электротехническая, водопровод и канализация, тепловые сети | Дата добавления в базу: | 01.09.2013 | Дата актуализации: | 05.05.2017 | Оглавление: | ТП 903-2-11 Содержание ТП 903-2-11 Пояснительная записка ТП 903-2-11-ГП Генеральный план ТП 903-2-11-ГП-1 Генеральный план ТП 903-2-11-ПОС Проект организации строительства ТП 903-2-11-ПОС Лист 1 Основные положения по производству строительно-монтажных работ. Пояснительная записка ТП 903-2-11-ПОС Лист 2 Основные положения по производству строительно-монтажных работ. Пояснительная записка. Календарный план строительства ТП 903-2-11-ПОС Лист 3 Основные положения по производству строительно-монтажных работ. Стройгенплан на стадии монтажа. Конструкции надземной части зданий и сооружений ТП 903-2-11-ТМ Тепломеханическая часть ТП 903-2-11-ТМ Площадочные трубопроводы ТП 903-2-11-ТМ-7/1 Площадочные трубопроводы. Общие данные ТП 903-2-11-ТМ-7/2 Площадочные трубопроводы. Перечень изолируемых поверхностей ТП 903-2-11-ТМ-7/3 Площадочные трубопроводы. Трасса парамазутопроводов ТП 903-2-11 Архитектурно-строительная часть ТП 903-2-11-КЖ Конструкции железобетонные ТП 903-2-11-КЖ-1 Эстакада парамазутопроводов. Общие данные ТП 903-2-11-КЖ-2 Эстакада парамазутопроводов. Маркировочный план фундаментов. Опалубка и армирование ФМ-1÷ФМ-3 ТП 903-2-11-КЖ-3 Эстакада парамазутопроводов. Маркировочная схема колонн, балок и траверс ТП 903-2-11-КЖ-4 Эстакада парамазутопроводов. Элемент плана, разрезы 2-2÷4-4. Узлы 1,2 ТП 903-2-11-КЖ-5 Трасса паромазутопроводов от резервуаров. Маркировочная схема опор ТП 903-2-11-КЖ-6 Трасса паромазутопроводов от резервуаров. Опоры ОП-1÷ОП-5;ОП-7;ОП-9 ТП 903-2-11-КЖ-7 Трасса паромазутопроводов от резервуаров. Опоры ОП-6;ОП-8 ТП 903-2-11-КЖИ-Т1;Т2;Т3;Т4 Траверсы Т1;Т2;Т3;Т4 ТП 903-2-11-КЖИ-МН1;МН2 Закладные изделия МН1;МН2 ТП 903-2-11-КЖИ-МН3;МН4;МН5 Закладные изделия МН3;МН4;МН5 ТП 903-2-11-КЖИ-МН6 Закладные изделия МН6 ТП 903-2-11-КЖИ-МН7;МН8;МН9 Закладные изделия МН7;МН8;МН9 ТП 903-2-11-КЖИ-МН10;МН11 Закладные изделия МН10;МН11 ТП 903-2-11-КЖИ-К4-1А Колонна К4-1А ТП 903-2-11-КЖИ-Б-1АтV-а Балка Б-1АтV-а ТП 903-2-11-КЖИ-Б-1АтV-б Балка Б-1АтV-б ТП 903-2-11-КМ Конструкции металлические ТП 903-2-11-КМ-1 Эстакада парамазутопроводов. Общие данные (начало) ТП 903-2-11-КМ-2 Эстакада парамазутопроводов. Общие данные (окончание) ТП 903-2-11-КМ-3 Эстакада парамазутопроводов. Техническая спецификация металла для специализированных заводов ТП 903-2-11-КМ-4 Эстакада парамазутопроводов. Металлические площадки МП-1;МП-2 ТП 903-2-11-КМ-5 Эстакада парамазутопроводов. Узлы ТП 903-2-11-КИП Автоматизация ТП 903-2-11-КИП-13 Общие данные ТП 903-2-11-КИП-14 План расположения ТП 903-2-11-Э Электротехническая часть ТП 903-2-11-Э-1 Общие данные ТП 903-2-11-Э-2 Внутриплощадочные сети, наружное освещение и слаботочные сети ТП 903-2-11-Э-3 Молниезащита и заземления ТП 903-2-11-НВК Наружные сети водоснабжения и канализация ТП 903-2-11-НВК-1 Общие данные (начало) ТП 903-2-11-НВК-2 Общие данные (окончание) ТП 903-2-11-НВК-3 Генплан с сетями водопровода и канализации ТП 903-2-11-ТС Тепловые сети ТП 903-2-11-ТС-1 Общие данные ТП 903-2-11-ТС-2 План тепловых сетей и парамазутопроводов. Схема трубопроводов ТП 903-2-11-ТС-3 Продольный профиль. Разрезы 1-1;2-2;3-3 ТП 903-2-11-ТС-4 Узел №1. План. Разрез А-А ТП 903-2-11-ТС-5 Узел №2. План. Разрез Б-Б | Разработан: | Латгипропром
| Утверждён: | 16.11.1978 Госстрой Латвийской ССР (290)
| Расположен в: |
|
                                       
|