Информационная система
«Ёшкин Кот»

Скачать базу одним архивом
Скачать обновления
История создания базы
Карта сайта

Скачать Типовой проект 902-9-4 Альбом IV. Санитарно-техническая часть (вариант - стены кирпичные)

Дата актуализации: 10.08.2017

Типовой проект 902-9-4

Альбом IV. Санитарно-техническая часть (вариант - стены кирпичные)

Обозначение: Типовой проект 902-9-4
Обозначение англ: 902-9-4
Статус:действует
Название рус.:Альбом IV. Санитарно-техническая часть (вариант - стены кирпичные)
Дата добавления в базу:01.09.2013
Дата актуализации:05.05.2017
Дата введения:01.03.1974
Оглавление:ТП 902-9-4 Содержание альбома
ТП 902-9-4 Пояснительная записка
ТП 902-9-4-ОВ Отопление и вентиляция
ТП 902-9-4-ОВ-1 Характеристика отопительно-вентиляционного оборудования. Таблица объемов воздуха, удаляемого местными отсосами.
ТП 902-9-4-ОВ-2 Таблица воздушных балансов помещений
ТП 902-9-4-ОВ-3 План на отм .±0.00. Отопление и вентиляция .
ТП 902-9-4-ОВ-4 Установочный чертеж системы II-I. Схема обвязки калориферов. Спецификация
ТП 902-9-4-ОВ-5 Установочный чертеж систем B-1, В-2, В-3. Спецификация
ТП 902-9-4-ОВ-6 Установочный чертеж теплового пункта
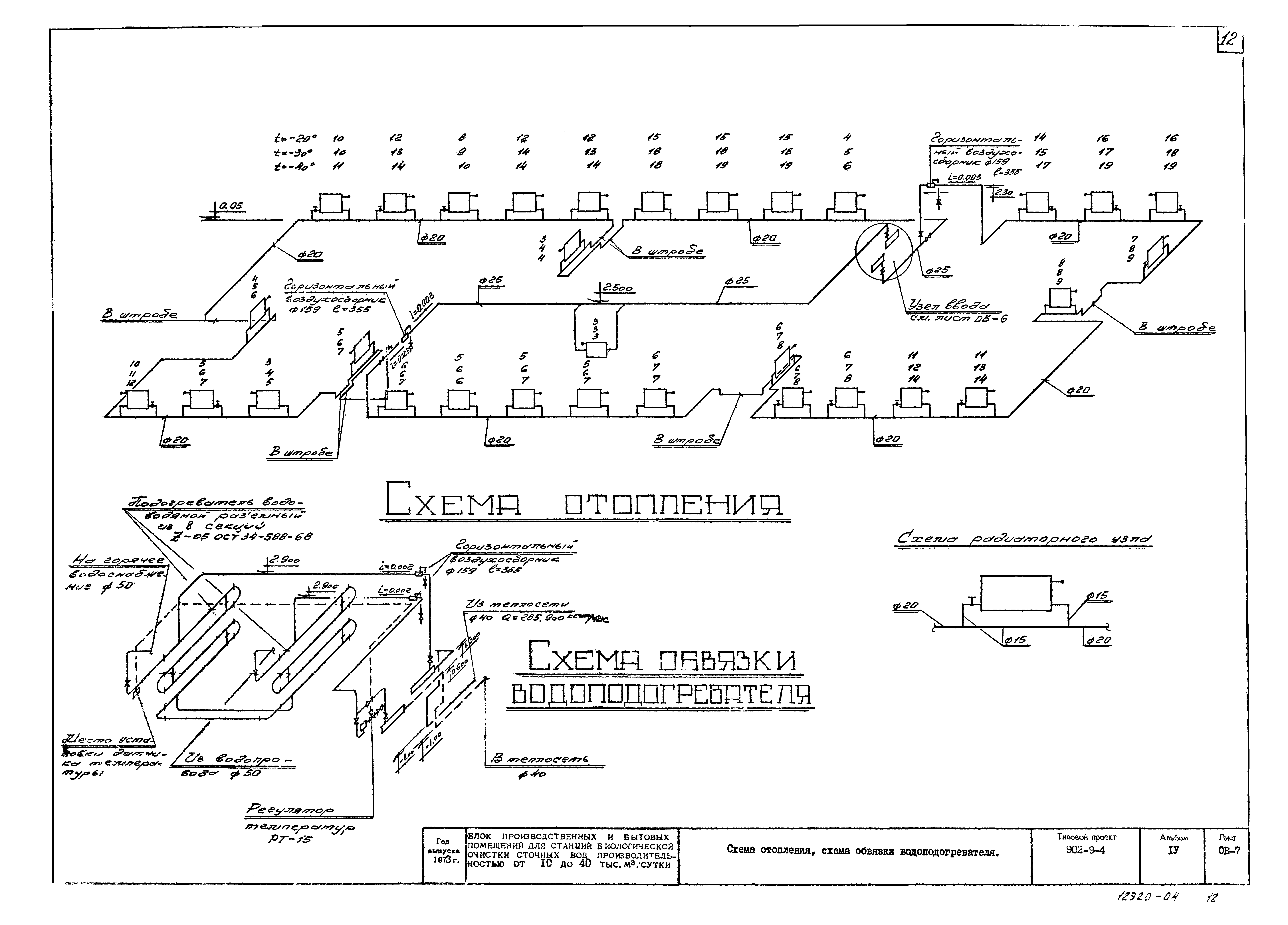
ТП 902-9-4-ОВ-7 Схема отопления, схема обвязки водоподогревателя
ТП 902-9-4-ОВ-8 Схемы вентиляции систем П-1, B-1, B-2, В-3, В-4, В-5, EB-1, ЕВ-2
ТП 902-9-4-ОВ-9 Сводная спецификация (лист № 1)
ТП 902-9-4-ОВ-10 Сводная спецификация (лист № 2)
ТП 902-9-4-ВК Водопровод и канализация
ТП 902-9-4-ВК-1 План корпуса. Кровли. Условные обозначения. Расчетная схема. Расчеты сетей.
ТП 902-9-4-ВК-2 Расчетные расходы воды, бытовых и производственных сточных вод.
ТП 902-9-4-ВК-3 План на отм. ±0.00 с сетями водопровода и канализации.
ТП 902-9-4-ВК-4 Схемы сетей хозяйственно-производственного водопровода и водопровода горячей воды
ТП 902-9-4-ВК-5 Схемы сетей бытовой канализации, производственной канализации, внутренних водостоков и незагрязненных сточных вод
ТП 902-9-4-ВК-6 Спецификация
ТП 902-9-4-ВК-7 Спецификация (продолжение)
Разработан: Госхимпроект
Утверждён:25.02.1974 СоюзводоканалНИИпроект (SoyuzvodokanalNIIproject 39)
Расположен в:Техническая документация Строительство Справочные документы Типовые строительные конструкции, изделия и узлы Общероссийский строительный каталог Промышленные предприятия, здания и сооружения Здания и сооружения санитарно-технические Канализация Сооружения биологической (биохимической) очистки Станции биологической очистки сточных вод
Типовой проект 902-9-4Типовой проект 902-9-4Типовой проект 902-9-4Типовой проект 902-9-4Типовой проект 902-9-4Типовой проект 902-9-4Типовой проект 902-9-4Типовой проект 902-9-4Типовой проект 902-9-4Типовой проект 902-9-4Типовой проект 902-9-4Типовой проект 902-9-4Типовой проект 902-9-4Типовой проект 902-9-4Типовой проект 902-9-4Типовой проект 902-9-4Типовой проект 902-9-4Типовой проект 902-9-4Типовой проект 902-9-4Типовой проект 902-9-4Типовой проект 902-9-4Типовой проект 902-9-4Типовой проект 902-9-4

© 2013 Ёшкин Кот :-) Карта сайта