Скачать Серия 3.501-108 Выпуск 2. Альбом 3. Пролетные строения для применения в районах с расчетной температурой ниже минус 40 градусов Цельсия (Северное исполнение). Рабочие чертежиДата актуализации: 10.08.2017 Серия 3.501-108
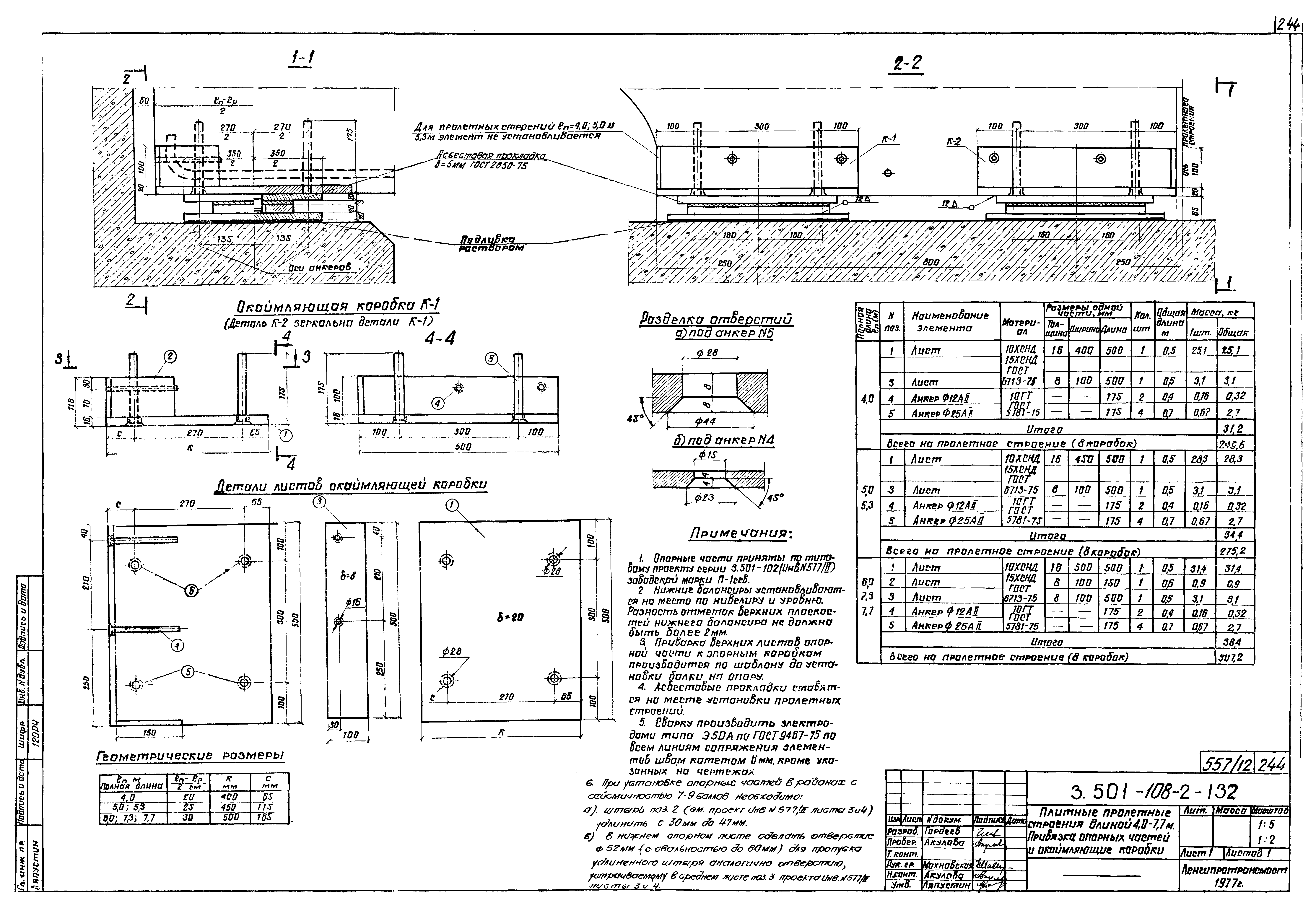
Выпуск 2. Альбом 3. Пролетные строения для применения в районах с расчетной температурой ниже минус 40 градусов Цельсия (Северное исполнение). Рабочие чертежиОбозначение: | Серия 3.501-108 | Обозначение англ: | Series 3.501-108 | Статус: | заменен | Название рус.: | Выпуск 2. Альбом 3. Пролетные строения для применения в районах с расчетной температурой ниже минус 40 градусов Цельсия (Северное исполнение). Рабочие чертежи | Дата добавления в базу: | 01.09.2013 | Дата актуализации: | 05.05.2017 | Дата введения: | 01.03.1990 | Оглавление: | 3.501-108-2-000 Содержание 3.501-108-2-083 Детали тиоколовой изоляции для пролетных строений 3.501-108-2-084 Тиоколовая изоляция у водоотводных трубок 3.501-108-2-085 Детали изоляции на основе резиноподобных рулонных материалов для пролетных строений 3.501-108-2-086 Раскладка секторов у водоотводных трубок 3.501-108-2-087 Детали водоотводных трубок 3.501-108-2-088 Листы перекрытия швов 3.501-108-2-089 Строповка балок 3.501-108-2-090 Детали тротуаров и перил 3.501-108-2-091 Строповочные петли для выемки балок из опалубки 3.501-108-2-092 Монтажный стык плиты ребристых пролетных строений длиной 9.3-16.5 м установленных в районах с сейсмичностью 7-9 баллов 3.501-108-2-093 Условия расположения пролетных строений на кривых участках пути 3.501-108-2-094 Дополнительное армирование пролетных строений на кривых участках пути 3.501-108-2-095 Основные объемы работ на пролетные строения, расположенные на кривых участках пути 3.501-108-2-096 Вкладыши в опалубку для изготовления пролетных строений на кривых участках пути 3.501-108-2-097 Общий вид сварной неметаллической тротуарной консоли на прямых участках пути 3.501-108-2-098 Общий вид сварной металлической тротуарной консоли на кривых участках пути с наружной стороны кривой 3.501-108-2-099 Общий вид сварной металлической консоли длиной 850 мм на кривых участках пути 3.501-108-2-100 Общий вид железобетонной тротуарной консоли на прямых и кривых участках пути 3.501-108-2-101 Опалубочный чертеж железобетонной тротуарной консоли на прямых участках пути 3.501-108-2-102 Опалубочный чертеж железобетонной тротуарной консоли на кривых участках пути 3.501-108-2-103 Арматурный чертеж железобетонной тротуарной консоли на прямых участках пути 3.501-108-2-104 Арматурный чертеж железобетонной тротуарной консоли на кривых участках пути 3.501-108-2-105 Расположение фиксированных сварных убежищ для балок, устанавливаемых с наружной стороны кривой и на прямых. Общий вид 3.501-108-2-106 Сварная консоль убежищ (средняя) для балок, устанавливаемых с наружной стороны кривой и на прямых 3.501-108-2-107 Сварная консоль убежищ (крайняя) для балок, устанавливаемых с наружной стороны кривой и на прямых 3.501-108-2-108 Схемы расположения сварных убежищ для балок, устанавливаемых с внутренней стороны кривой 3.501-108-2-109 Расположение фиксированных сварных убежищ для балок, устанавливаемых с внутренней стороны кривой. Общий вид 3.501-108-2-110 Расположение нефиксированных сварных убежищ для балок, устанавливаемых с внутренней стороны кривой. Общий вид 3.501-108-2-111 Сварная консоль убежищ (средняя) для балок, устанавливаемых с внутренней стороны кривой 3.501-108-2-112 Сварная консоль убежищ (крайняя) для балок, устанавливаемых с внутренней стороны кривой 3.501-108-2-113 Расположение фиксированных клепанных убежищ для балок, устанавливаемых с наружной стороны кривой и на прямых. Общий вид 3.501-108-2-114 Клепаная консоль убежищ (средняя) для балок, устанавливаемых с наружной стороны кривой и на прямых 3.501-108-2-115 Клепаная консоль убежищ (крайняя) для балок, устанавливаемых с наружной стороны кривой и на прямых 3.501-108-2-116 Схемы расположения клепаных убежищ для балок, устанавливаемых с внутренней стороны кривой 3.501-108-2-117 Расположение фиксированных клепанных убежищ для балок, устанавливаемых с внутренней стороны кривой. Общий вид 3.501-108-2-118 Расположение нефиксированных клепанных убежищ для балок, устанавливаемых с внутренней стороны кривой. Общий вид 3.501-108-2-119 Клепаная консоль убежищ (средняя) для балок, устанавливаемых с внутренней стороны кривой 3.501-108-2-120 Клепаная консоль убежищ (крайняя) для балок, устанавливаемых с внутренней стороны кривой 3.501-108-2-121 Схемы разбивки. Опалубочные чертежи тротуарных плит на прямых участках пути 3.501-108-2-122 Арматурный чертеж тротуарных плит для прямых участков пути 3.501-108-2-123 Схемы разбивки тротуарных плит, устанавливаемых с внутренней стороны кривой 3.501-108-2-124 Опалубочный чертеж тротуарных плит, устанавливаемых с внутренней стороны кривой 3.501-108-2-125 Арматурный чертеж тротуарных плит, устанавливаемых с внутренней стороны кривой 3.501-108-2-126 Условия расположения и опалубочный чертеж крайних тротуарных плит, устанавливаемых с наружной стороны кривой 3.501-108-2-127 Арматурный чертеж крайних тротуарных плит, устанавливаемых с наружной стороны кривой 3.501-108-2-128 Плиты перекрытия зазора 3.501-108-2-129 Опалубочный чертеж плит убежищ 3.501-108-2-130 Арматурный чертеж плит убежищ 3.501-108-2-131 Балластное корыто 3.501-108-2-132 Плитные пролетные строения длиной 4.0-7.7 м. Привязка опорных частей и окаймляющие коробки 3.501-108-2-133 Плитные пролетные строения длиной 9.3-12.2 м. Привязка опорных частей и окаймляющие коробки 3.501-108-2-134 Плитные пролетные строения длиной 13.5-16.5 м. Привязка опорных частей и окаймляющие коробки 3.501-108-2-135 Ребристые пролетные строения длиной 9.3-12.2 м. Привязка опорных частей и окаймляющие коробки 3.501-108-2-136 Ребристые пролетные строения длиной 13.5-16.5 м. Привязка опорных частей и окаймляющие коробки 3.501-108-2-137 Опалубочный чертеж поперечного бортика для поддержания балласта на пролетных строениях 3.501-108-2-138 Арматурный чертеж поперечного бортика для поддержания балласта на пролетных строениях 3.501-108-2-139 Расчетный лист. Плитные пролетные строения длиной 2.95-16.5 м (сталь марки 10 ГТ) 3.501-108-2-140 Расчетный лист. Плитные пролетные строения длиной 2.95-16.5 м (сталь марки 25Г2С) 3.501-108-2-141 Расчетный лист. Ребристые пролетные строения длиной 9.3-16.5 м (сталь марки 10 ГТ) 3.501-108-2-142 Расчетный лист. Плитные пролетные строения длиной 9.3-16.5 м (сталь марки 25Г2С) 3.501-108-2-143 Расчетный лист. Расчет крепления убежищ 3.501-108-2-144 Расчетный лист. Расчет пролетных строений на сейсмич6еские нагрузки | Разработан: | Ленгипротрансмост
| Утверждён: | 29.03.1978 МПС (Ministry of Railroads П-9899)
| Расположен в: |
| Заменяет собой: | | Чем заменён: | |
                                                                                                  
|