Информационная система
«Ёшкин Кот»

Скачать базу одним архивом
Скачать обновления
История создания базы
Карта сайта

Скачать Серия 3.501-108 Выпуск 2. Альбом 1. Пролетные строения для применения в районах с расчетной температурой ниже минус 40 градусов Цельсия (Северное исполнение). Рабочие чертежи

Дата актуализации: 10.08.2017

Серия 3.501-108

Выпуск 2. Альбом 1. Пролетные строения для применения в районах с расчетной температурой ниже минус 40 градусов Цельсия (Северное исполнение). Рабочие чертежи

Обозначение: Серия 3.501-108
Обозначение англ: Series 3.501-108
Статус:заменен
Название рус.:Выпуск 2. Альбом 1. Пролетные строения для применения в районах с расчетной температурой ниже минус 40 градусов Цельсия (Северное исполнение). Рабочие чертежи
Дата добавления в базу:01.09.2013
Дата актуализации:05.05.2017
Дата введения:01.03.1990
Оглавление:3.501-108 2-000 Содержание
3.501-108 2-001 Пояснительная записка
3.501-108 2-001 Объемы основных работ
3.501-108 2-001 Основные показатели
3.501-108 2-002 Плитное пролетное строение длиной 2.95 м. Общий вид и опалубочный чертеж
3.501-108 2-003 Плитное пролетное строение длиной 2.95 м. Арматурный чертеж балки (рабочая арматура-сталь марки 10 ГТ)
3.501-108 2-004 Плитное пролетное строение длиной 2.95 м. Арматурный чертеж балки (рабочая арматура-сталь марки 25Г2С)
3.501-108 2-005 Плитное пролетное строение длиной 4.0 м. Общий вид и опалубочный чертеж
3.501-108 2-006 Плитное пролетное строение длиной 4.0 м. Арматурный чертеж балки (рабочая арматура-сталь марки 10 ГТ)
3.501-108 2-007 Плитное пролетное строение длиной 4.0 м. Арматурный чертеж балки (рабочая арматура-сталь марки 25Г2С)
3.501-108 2-008 Пролетные строения длиной 5.0 и 5.3 м. Общий вид и опалубочный чертеж
3.501-108 2-009 Плитное пролетное строение длиной 5.0 м. Арматурный чертеж балки (рабочая арматура-сталь марки 10 ГТ)
3.501-108 2-010 Плитное пролетное строение длиной 5.0 м. Арматурный чертеж балки (рабочая арматура-сталь марки 25Г2С)
3.501-108 2-011 Плитное пролетное строение длиной 5.3 м. Арматурный чертеж балки (рабочая арматура-сталь марки 10 ГТ)
3.501-108 2-012 Плитное пролетное строение длиной 5.3 м. Арматурный чертеж балки (рабочая арматура-сталь марки 25Г2С)
3.501-108 2-013 Плитное пролетное строение длиной 6.0 м. Общий вид и опалубочный чертеж
3.501-108 2-014 Плитное пролетное строение длиной 6.0 м. Арматурный чертеж балки (рабочая арматура-сталь марки 10 ГТ)
3.501-108 2-015 Плитное пролетное строение длиной 6.0 м. Арматурный чертеж балки (рабочая арматура-сталь марки 25Г2С)
3.501-108 2-016 Пролетные строения длиной 7.3 и 7.7 м. Общий вид и опалубочный чертеж
3.501-108 2-017 Плитное пролетное строение длиной 7.3 м. Арматурный чертеж балки (рабочая арматура-сталь марки 10 ГТ)
3.501-108 2-018 Плитное пролетное строение длиной 7.3 м. Арматурный чертеж балки (рабочая арматура-сталь марки 25Г2С)
3.501-108 2-019 Плитное пролетное строение длиной 7.7 м. Арматурный чертеж балки (рабочая арматура-сталь марки 10 ГТ)
3.501-108 2-020 Плитное пролетное строение длиной 7.7 м. Арматурный чертеж балки (рабочая арматура-сталь марки 25Г2С)
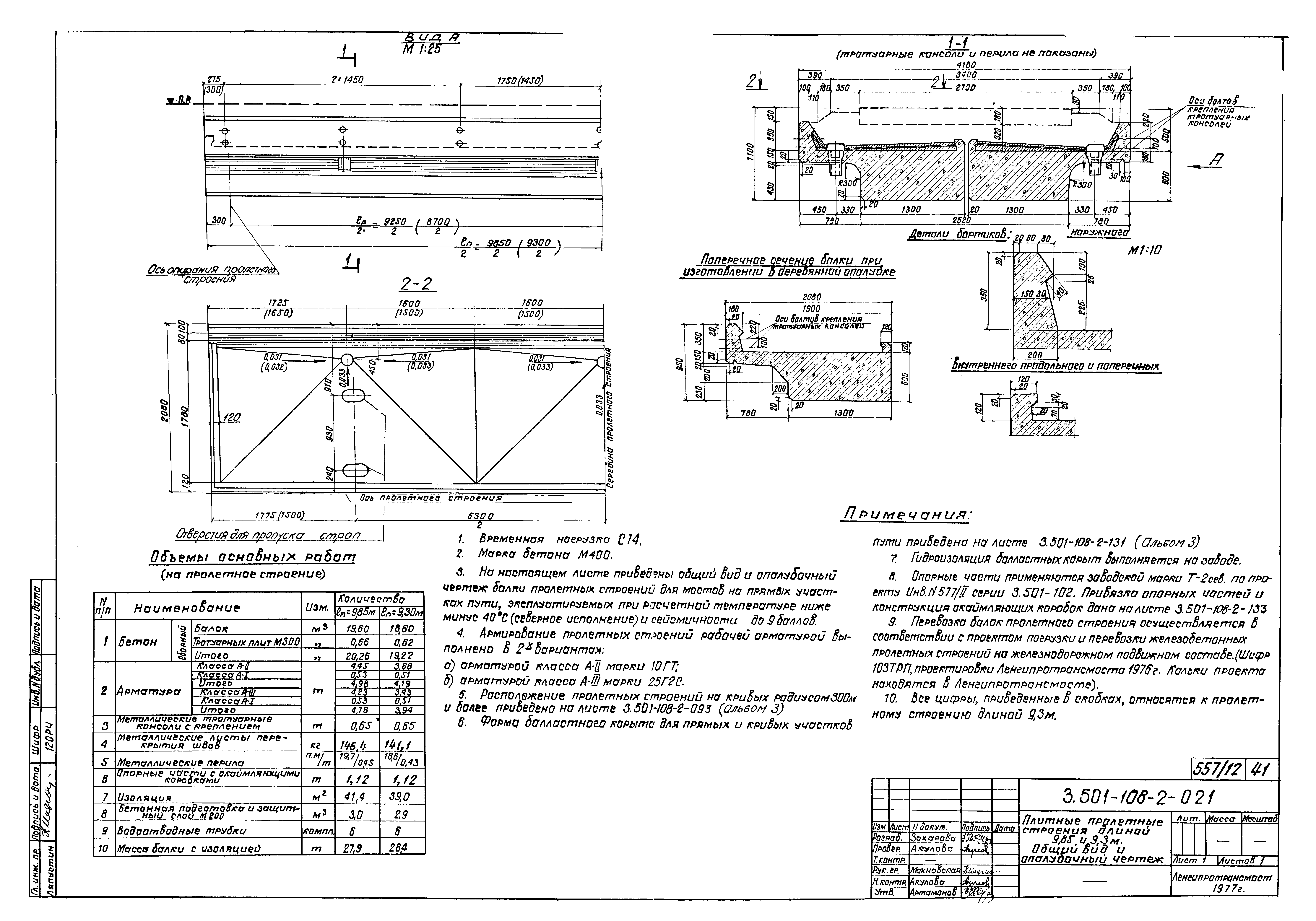
3.501-108 2-021 Пролетные строения длиной 9.3 и 9.85 м. Общий вид и опалубочный чертеж
3.501-108 2-022 Плитное пролетное строение длиной 8.3 м. Арматурный чертеж балки (рабочая арматура-сталь марки 10 ГТ)
3.501-108 2-023 Плитное пролетное строение длиной 8.3 м. Арматурный чертеж балки (рабочая арматура-сталь марки 25Г2С)
3.501-108 2-024 Плитное пролетное строение длиной 9.85 м. Арматурный чертеж балки (рабочая арматура-сталь марки 10 ГТ)
3.501-108 2-025 Плитное пролетное строение длиной 9.85 м. Арматурный чертеж балки (рабочая арматура-сталь марки 25Г2С)
3.501-108 2-026 Пролетные строения длиной 11.5 и 12.2 м. Общий вид и опалубочный чертеж
3.501-108 2-027 Плитное пролетное строение длиной 11.5 м. Арматурный чертеж балки (рабочая арматура-сталь марки 10 ГТ)
3.501-108 2-028 Плитное пролетное строение длиной 11.5 м. Арматурный чертеж балки (рабочая арматура-сталь марки 25Г2С)
3.501-108 2-029 Плитное пролетное строение длиной 12.2 м. Арматурный чертеж балки (рабочая арматура-сталь марки 10 ГТ)
3.501-108 2-030 Плитное пролетное строение длиной 12.2 м. Арматурный чертеж балки (рабочая арматура-сталь марки 25Г2С)
3.501-108 2-031 Пролетные строения длиной 13.5 и 14.3 м. Общий вид и опалубочный чертеж
3.501-108 2-032 Плитное пролетное строение длиной 13.5 м. Арматурный чертеж балки (рабочая арматура-сталь марки 10 ГТ)
3.501-108 2-033 Плитное пролетное строение длиной 13.5 м. Арматурный чертеж балки (рабочая арматура-сталь марки 25Г2С)
3.501-108 2-034 Плитное пролетное строение длиной 14.3 м. Арматурный чертеж балки (рабочая арматура-сталь марки 10 ГТ)
3.501-108 2-035 Плитное пролетное строение длиной 14.3 м. Арматурный чертеж балки (рабочая арматура-сталь марки 25Г2С)
3.501-108 2-036 Плитное пролетное строение длиной 16.5 м. Общий вид и опалубочный чертеж
3.501-108 2-037 Плитное пролетное строение длиной 16.5 м. Арматурный чертеж балки (рабочая арматура-сталь марки 10 ГТ)
3.501-108 2-038 Плитное пролетное строение длиной 16.5 м. Арматурный чертеж балки (рабочая арматура-сталь марки 25Г2С)
Разработан: Ленгипротрансмост
Утверждён:29.03.1978 МПС (Ministry of Railroads П-9899)
Расположен в:Техническая документация Строительство Справочные документы Типовые строительные конструкции, изделия и узлы Общероссийский строительный каталог Строительные конструкции, изделия и узлы зданий и сооружений для всех видов строительства Конструкции и изделия сооружений и оборудования зданий Надземные сооружения Конструкции и сооружения транспорта Пролетные строения мостов, мосты и путепроводы
Заменяет собой:
Чем заменён:
Серия 3.501-108Серия 3.501-108Серия 3.501-108Серия 3.501-108Серия 3.501-108Серия 3.501-108Серия 3.501-108Серия 3.501-108Серия 3.501-108Серия 3.501-108Серия 3.501-108Серия 3.501-108Серия 3.501-108Серия 3.501-108Серия 3.501-108Серия 3.501-108Серия 3.501-108Серия 3.501-108Серия 3.501-108Серия 3.501-108Серия 3.501-108Серия 3.501-108Серия 3.501-108Серия 3.501-108Серия 3.501-108Серия 3.501-108Серия 3.501-108Серия 3.501-108Серия 3.501-108Серия 3.501-108Серия 3.501-108Серия 3.501-108Серия 3.501-108Серия 3.501-108Серия 3.501-108Серия 3.501-108Серия 3.501-108Серия 3.501-108Серия 3.501-108Серия 3.501-108Серия 3.501-108Серия 3.501-108Серия 3.501-108Серия 3.501-108Серия 3.501-108Серия 3.501-108Серия 3.501-108Серия 3.501-108Серия 3.501-108Серия 3.501-108Серия 3.501-108Серия 3.501-108Серия 3.501-108Серия 3.501-108Серия 3.501-108Серия 3.501-108Серия 3.501-108Серия 3.501-108Серия 3.501-108Серия 3.501-108Серия 3.501-108Серия 3.501-108Серия 3.501-108Серия 3.501-108Серия 3.501-108Серия 3.501-108Серия 3.501-108Серия 3.501-108Серия 3.501-108Серия 3.501-108Серия 3.501-108Серия 3.501-108Серия 3.501-108Серия 3.501-108Серия 3.501-108Серия 3.501-108Серия 3.501-108Серия 3.501-108Серия 3.501-108Серия 3.501-108Серия 3.501-108Серия 3.501-108Серия 3.501-108Серия 3.501-108Серия 3.501-108Серия 3.501-108Серия 3.501-108

© 2013 Ёшкин Кот :-) Карта сайта