Скачать Типовой проект А-II,III,IV-60-442.89 Альбом 2. Архитектурные решения. Конструкции железобетонныеДата актуализации: 10.08.2017 Типовой проект А-II,III,IV-60-442.89
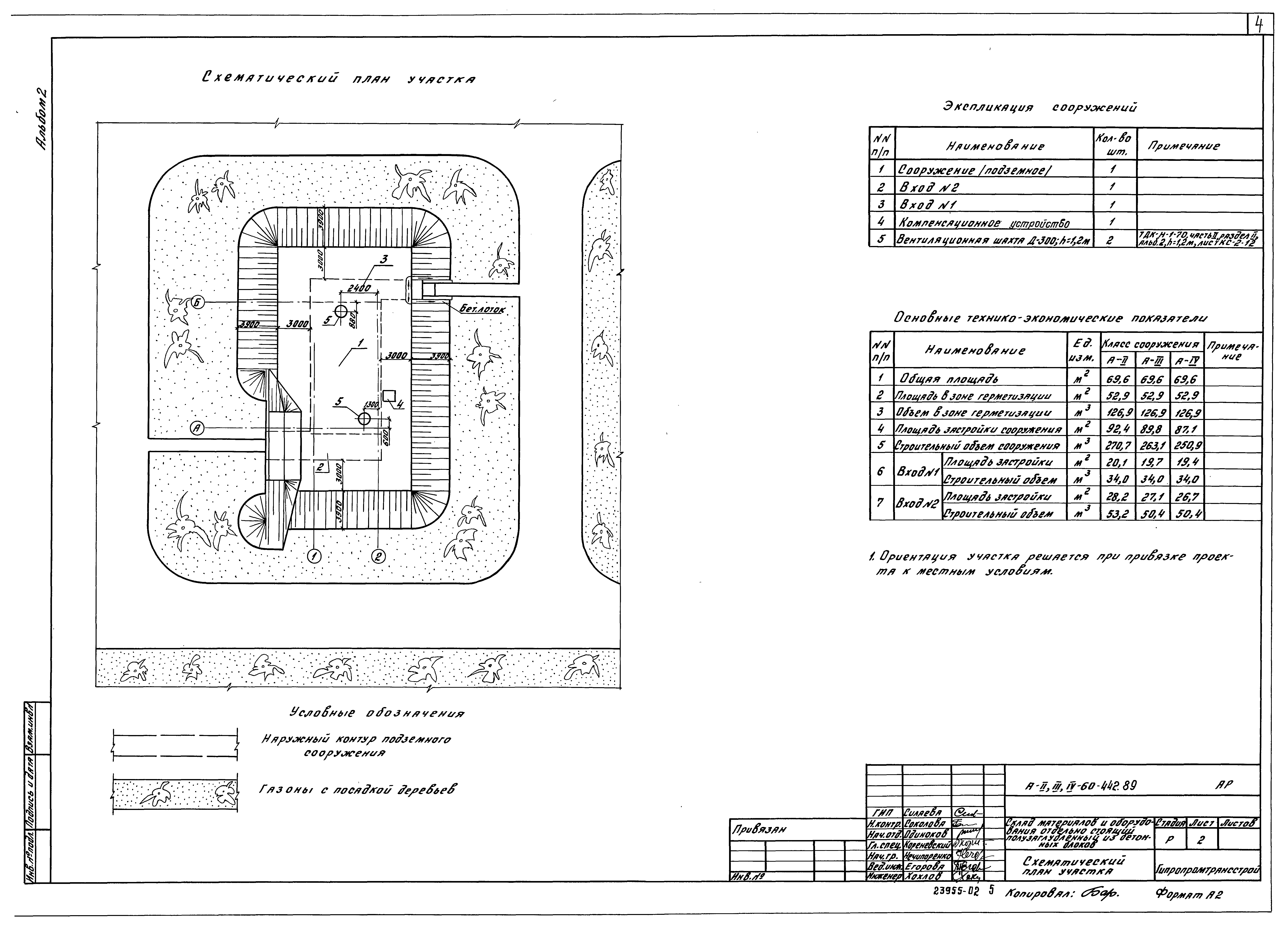
Альбом 2. Архитектурные решения. Конструкции железобетонныеОбозначение: | Типовой проект А-II,III,IV-60-442.89 | Обозначение англ: | А-II,III,IV-60-442.89 | Статус: | не определен законодательством | Название рус.: | Альбом 2. Архитектурные решения. Конструкции железобетонные | Дата добавления в базу: | 01.09.2013 | Дата актуализации: | 05.05.2017 | Дата введения: | 09.08.1989 | Оглавление: | ТП А-II,III,IV-60-442.89 Титульный лист ТП А-II,III,IV-60-442.89 Содержание альбома ТП А-II,III,IV-60-442.89-АР Архитектурные решения ТП А-II,III,IV-60-442.89-АР-1 Общие данные ТП А-II,III,IV-60-442.89-АР-2 Схематический план участка ТП А-II,III,IV-60-442.89-АР-3 План ТП А-II,III,IV-60-442.89-АР-4 Разрезы 1-1 и 2-2 ТП А-II,III,IV-60-442.89-АР-5 Разрезы 3-3...6-6. Герметизация сооружения ТП А-II,III,IV-60-442.89-АР-6 План перегородок. План полов. Фекальный резервуар ТП А-II,III,IV-60-442.89-АР-7 Пример использования помещений в мирное время ТП А-II,III,IV-60-442.89-КЖ Конструкции железобетонные ТП А-II,III,IV-60-442.89-КЖ-1 Общие данные ТП А-II,III,IV-60-442.89-КЖ-2 Ведомости расхода стали ТП А-II,III,IV-60-442.89-КЖ-3 Схема расположения элементов фундаментов и стен ТП А-II,III,IV-60-442.89-КЖ-4 Схема расположения элементов покрытия ТП А-II,III,IV-60-442.89-КЖ-5 Схема расположения элементов покрытия. Сечения 3-3...10-10 ТП А-II,III,IV-60-442.89-КЖ-6 Монолитный участок МУ-1. Опалубочные чертежи. Схемы армирования. Узлы 1...3 ТП А-II,III,IV-60-442.89-КЖ-7 Спецификация монолитного участка МУ-1. Схемы расположения анкеров в коробках ТП А-II,III,IV-60-442.89-КЖ-8 Монолитный участок МУ-2. Опалубочные чертежи. Схемы армирования ТП А-II,III,IV-60-442.89-КЖ-9 Монолитный участок МУ-2. Спецификация. Узел 4 ТП А-II,III,IV-60-442.89-КЖ-10 Вход №1. Опалубка и армирование ТП А-II,III,IV-60-442.89-КЖ-11 Вход №2. Опалубка и армирование ТП А-II,III,IV-60-442.89-КЖ-12 Компенсационное устройство ТП А-II,III,IV-60-442.89-КЖ-13 Схема расположения закладных деталей ТП А-II,III,IV-60-442.89-КЖ-14 Принципиальные схемы открывания рамы с фильтрами ФЯР ТП А-II,III,IV-60-442.89-КЖ-15 Металлические изделия | Разработан: | Гипропромтрансстрой
| Утверждён: | 09.08.1989 НГО СССР (17)
| Расположен в: |
|
                       
|