Информационная система
«Ёшкин Кот»

Скачать базу одним архивом
Скачать обновления
История создания базы
Карта сайта

Скачать Типовой проект 903-1-279.90 Альбом 3. Блоки тепломеханического оборудования (из ТП 903-1-278.90)

Дата актуализации: 10.08.2017

Типовой проект 903-1-279.90

Альбом 3. Блоки тепломеханического оборудования (из ТП 903-1-278.90)

Обозначение: Типовой проект 903-1-279.90
Обозначение англ: 903-1-279.90
Статус:не определен законодательством
Название рус.:Альбом 3. Блоки тепломеханического оборудования (из ТП 903-1-278.90)
Дата добавления в базу:01.09.2013
Дата актуализации:05.05.2017
Дата введения:23.11.1988
Оглавление:ТП 903-1-278.90-ТМ Тепломеханическая часть
ТП 903-1-278.90-ТМ2 Основной комплект рабочих чертежей марки ТМ2
ТП 903-1-278.90-ТМ2-1 Общие данные (начало)
ТП 903-1-278.90-ТМ2-2 Общие данные (продолжение)
ТП 903-1-278.90-ТМ2-3 Общие данные (продолжение)
ТП 903-1-278.90-ТМ2-4 Общие данные (продолжение)
ТП 903-1-278.90-ТМ2-5 Общие данные (продолжение)
ТП 903-1-278.90-ТМ2-6 Общие данные (продолжение)
ТП 903-1-278.90-ТМ2-7 Общие данные (продолжение)
ТП 903-1-278.90-ТМ2-8 Общие данные (продолжение)
ТП 903-1-278.90-ТМ2-9 Общие данные (продолжение)
ТП 903-1-278.90-ТМ2-10 Общие данные (окончание)
ТП 903-1-278.90-ТМ2-11 Блок деаэрационно-подпиточный. Схема блока
ТП 903-1-278.90-ТМ2-12 Блок деаэрационно-подпиточный. План. Разрезы А-А,Б-Б
ТП 903-1-278.90-ТМ2-13 Блок деаэрационно-подпиточный. Спецификация
ТП 903-1-278.90-ТМ2-14 Блок деаэрационно-подпиточный. Блок нижний. План. Разрезы А-А,Б-Б
ТП 903-1-278.90-ТМ2-15 Блок деаэрационно-подпиточный. Блок нижний. Разрезы В-В,Г-Г
ТП 903-1-278.90-ТМ2-16 Блок деаэрационно-подпиточный. Блок нижний. Спецификация
ТП 903-1-278.90-ТМ2-17 Блок деаэрационно-подпиточный. Блок верхний. План. Разрезы А-А,Б-Б
ТП 903-1-278.90-ТМ2-18 Блок деаэрационно-подпиточный. Блок верхний. Разрезы В-В
ТП 903-1-278.90-ТМ2-19 Блок деаэрационно-подпиточный. Установка гидрозатвора. Общий вид
ТП 903-1-278.90-ТМ2-20 Рама под блок деаэрационно-подпиточный
ТП 903-1-278.90-ТМ2-21 Рама под блок деаэрационно-подпиточный
ТП 903-1-278.90-ТМ2-22 Рама под блок деаэрационно-подпиточный
ТП 903-1-278.90-ТМ2-23 Рама под блок деаэрационно-подпиточный
ТП 903-1-278.90-ТМ2-24 Блок подогревателей сетевой воды Q=35Гкал/ч. Схема блока
ТП 903-1-278.90-ТМ2-25 Блок подогревателей сетевой воды Q=35Гкал/ч. План
ТП 903-1-278.90-ТМ2-26 Блок подогревателей сетевой воды Q=35Гкал/ч. Разрезы А-А,Б-Б
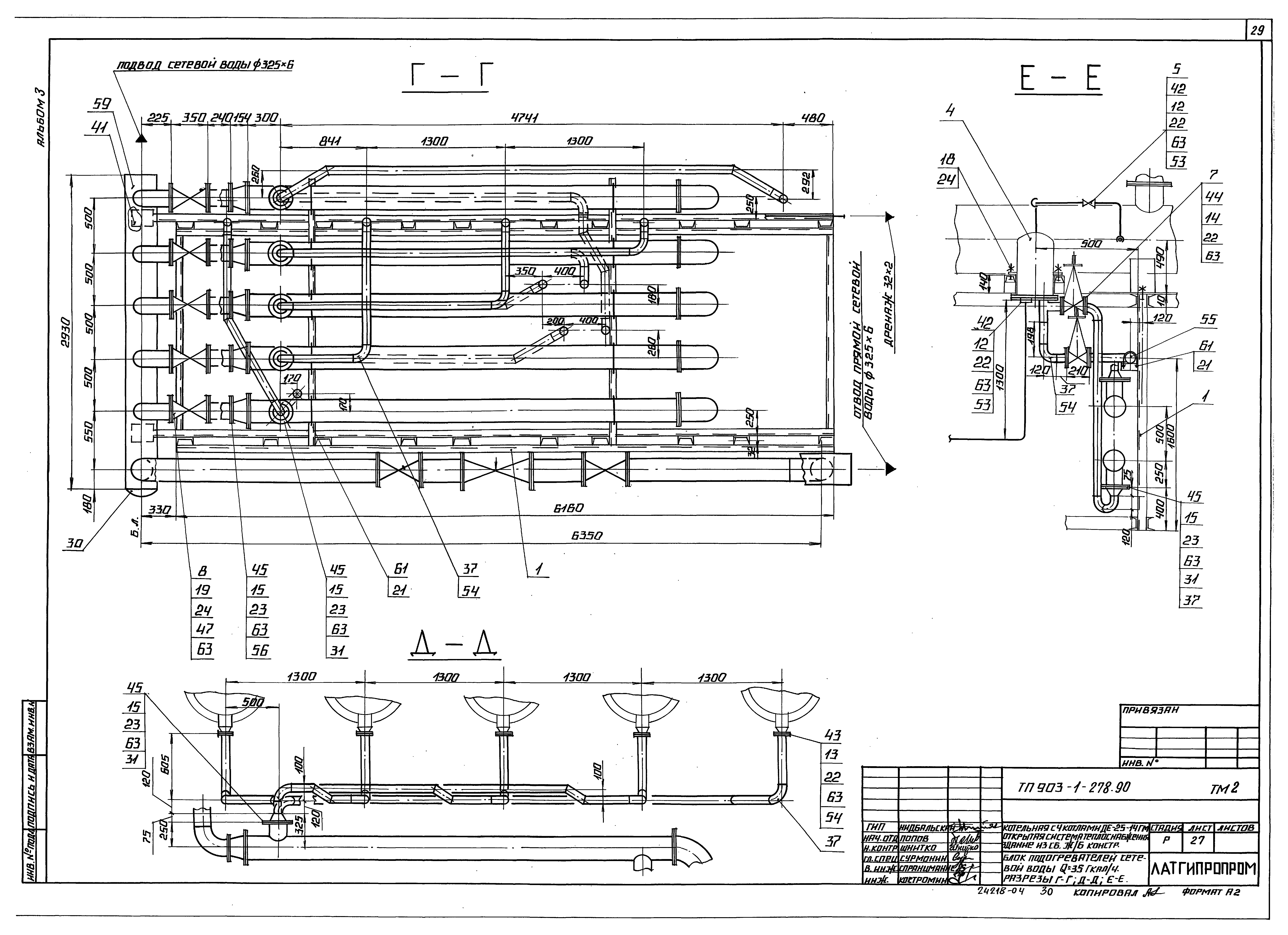
ТП 903-1-278.90-ТМ2-27 Блок подогревателей сетевой воды Q=35Гкал/ч. Разрезы Г-Г,Д-Д,Е-Е
ТП 903-1-278.90-ТМ2-28 Блок подогревателей сетевой воды Q=35Гкал/ч. Разрезы В-В,Ж-Ж,Л-Л
ТП 903-1-278.90-ТМ2-29 Блок подогревателей сетевой воды Q=35Гкал/ч. Разрезы И-И,К-К. Дренажи
ТП 903-1-278.90-ТМ2-30 Блок подогревателей сетевой воды Q=35Гкал/ч. Спецификация
ТП 903-1-278.90-ТМ2-31 Рама под блок подогревателей сетевой воды Q=35Гкал/ч
ТП 903-1-278.90-ТМ2-32 Рама под блок подогревателей сетевой воды Q=35Гкал/ч
ТП 903-1-278.90-ТМ2-33 Блок конденсатный. План. Разрезы А-А,Б-Б
ТП 903-1-278.90-ТМ2-34 Блок конденсатный. Схема блока
ТП 903-1-278.90-ТМ2-35 Рама под блок конденсатный
ТП 903-1-278.90-ТМ2-36 Блок приготовления раствора соли БПРС. Общий вид. Разрез А-А, Схема соединений
ТП 903-1-278.90-ТМ2-37 Блок приготовления раствора соли БПРС. Спецификация
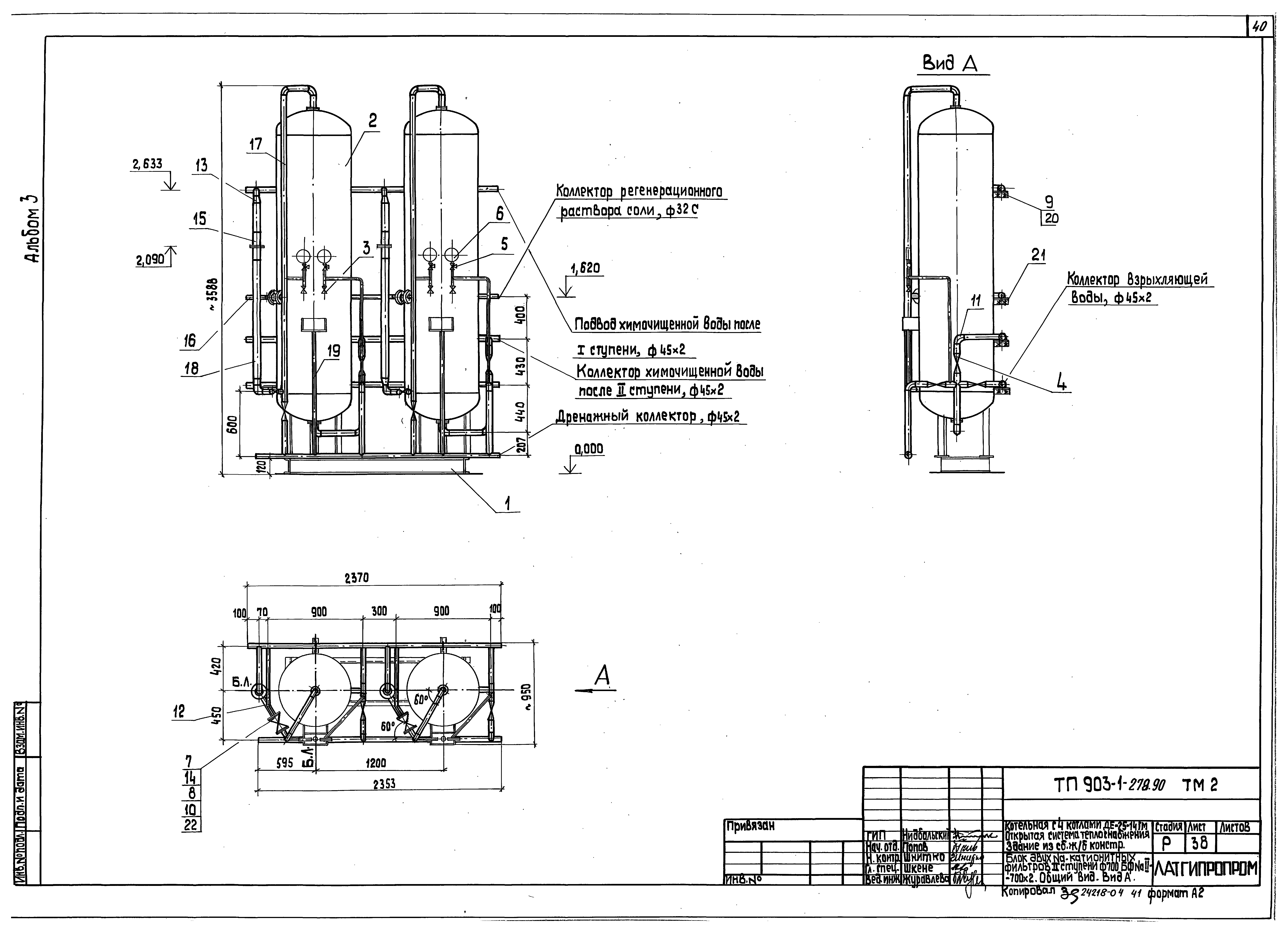
ТП 903-1-278.90-ТМ2-38 Блок двух Nа-катионных фильтров II ступени ø700 БФ Nа II-700х2. Общий вид А
ТП 903-1-278.90-ТМ2-39 Блок двух Nа-катионных фильтров II ступени ø700 БФ Nа II-700х2. Схема соединений
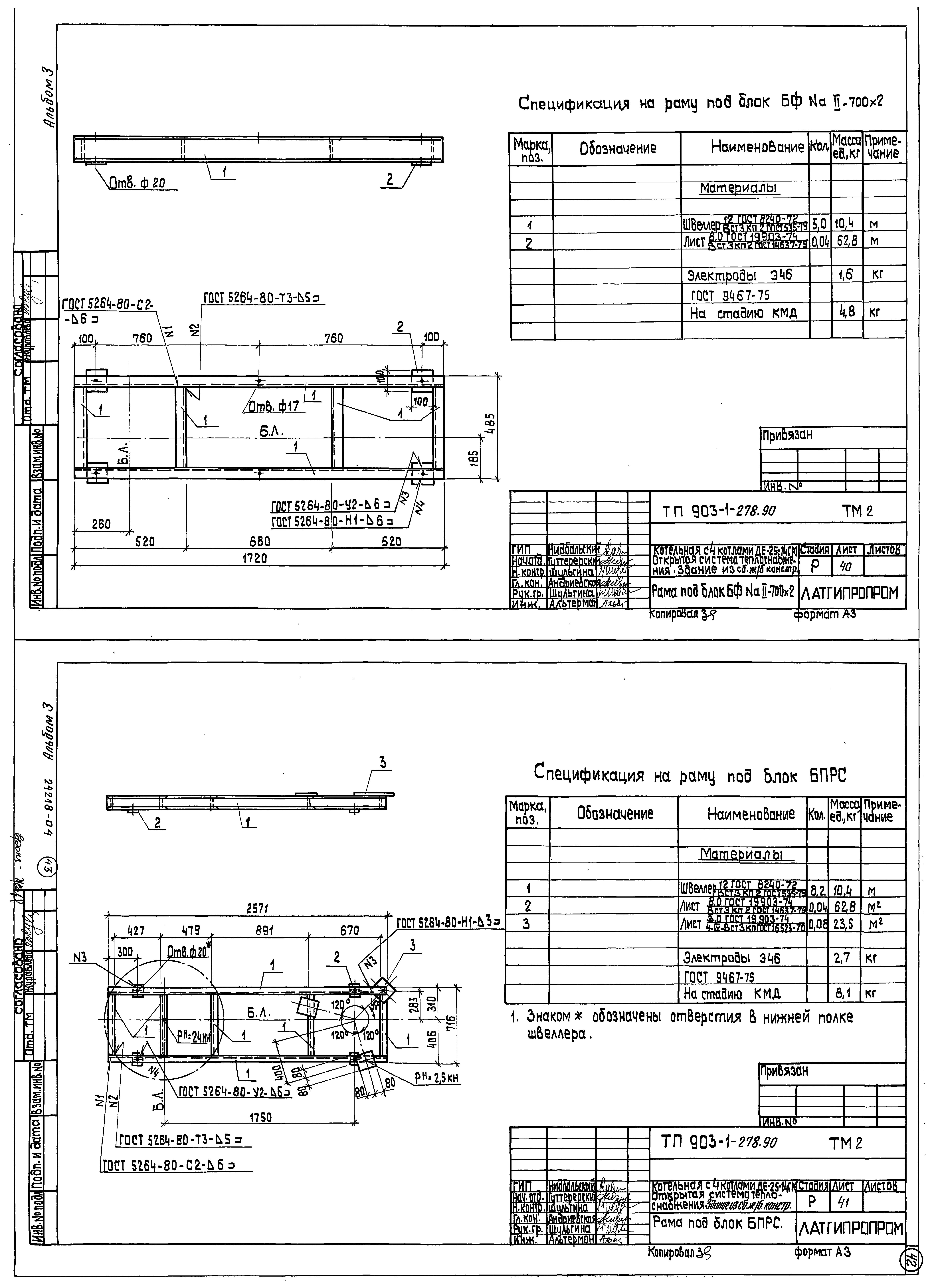
ТП 903-1-278.90-ТМ2-40 Рама под блок БФ NаII-700х2
ТП 903-1-278.90-ТМ2-41 Рама под блок БПРС
Разработан: Латгипропром
Утверждён:23.11.1988 Госстрой СССР (Государственный комитет Совета Министров СССР по делам строительства) (USSR Gosstroy 77)
Расположен в:Техническая документация Строительство Справочные документы Типовые строительные конструкции, изделия и узлы Общероссийский строительный каталог Промышленные предприятия, здания и сооружения Здания и сооружения санитарно-технические Теплоснабжение Котельные установки Открытые системы теплоснабжения Топливо - газ и мазут
Типовой проект 903-1-279.90Типовой проект 903-1-279.90Типовой проект 903-1-279.90Типовой проект 903-1-279.90Типовой проект 903-1-279.90Типовой проект 903-1-279.90Типовой проект 903-1-279.90Типовой проект 903-1-279.90Типовой проект 903-1-279.90Типовой проект 903-1-279.90Типовой проект 903-1-279.90Типовой проект 903-1-279.90Типовой проект 903-1-279.90Типовой проект 903-1-279.90Типовой проект 903-1-279.90Типовой проект 903-1-279.90Типовой проект 903-1-279.90Типовой проект 903-1-279.90Типовой проект 903-1-279.90Типовой проект 903-1-279.90Типовой проект 903-1-279.90Типовой проект 903-1-279.90Типовой проект 903-1-279.90Типовой проект 903-1-279.90Типовой проект 903-1-279.90Типовой проект 903-1-279.90Типовой проект 903-1-279.90Типовой проект 903-1-279.90Типовой проект 903-1-279.90Типовой проект 903-1-279.90Типовой проект 903-1-279.90Типовой проект 903-1-279.90Типовой проект 903-1-279.90Типовой проект 903-1-279.90Типовой проект 903-1-279.90Типовой проект 903-1-279.90Типовой проект 903-1-279.90Типовой проект 903-1-279.90Типовой проект 903-1-279.90Типовой проект 903-1-279.90Типовой проект 903-1-279.90Типовой проект 903-1-279.90Типовой проект 903-1-279.90

© 2013 Ёшкин Кот :-) Карта сайта