Информационная система
«Ёшкин Кот»

Скачать базу одним архивом
Скачать обновления
История создания базы
Карта сайта

Скачать Типовой проект 903-1-279.90 Альбом 2. Часть 1. Тепломеханические решения. Газоснабжение. Станция водоподготовки (из ТП 903-1-278.90)

Дата актуализации: 10.08.2017

Типовой проект 903-1-279.90

Альбом 2. Часть 1. Тепломеханические решения. Газоснабжение. Станция водоподготовки (из ТП 903-1-278.90)

Обозначение: Типовой проект 903-1-279.90
Обозначение англ: 903-1-279.90
Статус:не определен законодательством
Название рус.:Альбом 2. Часть 1. Тепломеханические решения. Газоснабжение. Станция водоподготовки (из ТП 903-1-278.90)
Дата добавления в базу:01.09.2013
Дата актуализации:05.05.2017
Дата введения:23.11.1988
Оглавление:ТП 903-1-278.90-ТМ Тепломеханическая часть
ТП 903-1-278.90-ТМ1 Основной комплект рабочих чертежей марки ТМ1
ТП 903-1-278.90-ТМ1-1 Общие данные (начало)
ТП 903-1-278.90-ТМ1-2 Общие данные (продолжение)
ТП 903-1-278.90-ТМ1-3 Общие данные (продолжение)
ТП 903-1-278.90-ТМ1-4 Общие данные (продолжение)
ТП 903-1-278.90-ТМ1-5 Общие данные (продолжение)
ТП 903-1-278.90-ТМ1-6 Общие данные (продолжение)
ТП 903-1-278.90-ТМ1-7 Общие данные (продолжение)
ТП 903-1-278.90-ТМ1-8 Общие данные (продолжение)
ТП 903-1-278.90-ТМ1-9 Общие данные (продолжение)
ТП 903-1-278.90-ТМ1-10 Общие данные (продолжение)
ТП 903-1-278.90-ТМ1-11 Общие данные (продолжение)
ТП 903-1-278.90-ТМ1-12 Общие данные (продолжение)
ТП 903-1-278.90-ТМ1-13 Общие данные (продолжение)
ТП 903-1-278.90-ТМ1-14 Общие данные (продолжение)
ТП 903-1-278.90-ТМ1-15 Общие данные (продолжение)
ТП 903-1-278.90-ТМ1-16 Общие данные (продолжение)
ТП 903-1-278.90-ТМ1-17 Общие данные (продолжение)
ТП 903-1-278.90-ТМ1-18 Общие данные (продолжение)
ТП 903-1-278.90-ТМ1-19 Общие данные (продолжение)
ТП 903-1-278.90-ТМ1-20 Общие данные (продолжение)
ТП 903-1-278.90-ТМ1-21 Общие данные (окончание)
ТП 903-1-278.90-ТМ1-22 Тепловая схема паровой части котельной
ТП 903-1-278.90-ТМ1-23 Тепловая схема водогрейной части котельной
ТП 903-1-278.90-ТМ1-24 Компоновка оборудования. План на отм. 0.000;3.300
ТП 903-1-278.90-ТМ1-25 Компоновка оборудования. Разрезы А-А;Б-Б
ТП 903-1-278.90-ТМ1-26 Компоновка оборудования. Перечень оборудования (продолжение)
ТП 903-1-278.90-ТМ1-27 Компоновка оборудования. План на отм. 0.000;3.300 (здание из ЛМК)
ТП 903-1-278.90-ТМ1-28 Компоновка оборудования. Разрезы А-А;Б-Б (здание из ЛМК)
ТП 903-1-278.90-ТМ1-29 Трубопроводы пара. План. Разрезы А-А;Б-Б;В-В
ТП 903-1-278.90-ТМ1-30 Трубопроводы пара. Разрезы Г-Г;Д-Д;Е-Е;И-И;Ж-Ж
ТП 903-1-278.90-ТМ1-31 Трубопроводы сетевой воды. План. Разрезы А-А;Б-Б;В-В
ТП 903-1-278.90-ТМ1-32 Трубопроводы питательной воды. План. Разрезы А-А;Б-Б;В-В
ТП 903-1-278.90-ТМ1-33 Трубопроводы подпиточной воды и герметика. План. Разрезы А-А;Б-Б;И-И;К-К
ТП 903-1-278.90-ТМ1-34 Трубопроводы подпиточной воды и герметика. Узел 1. Разрезы В-В;Г-Г;Д-Д;Е-Е;Ж-Ж
ТП 903-1-278.90-ТМ1-35 Трубопроводы подпиточной воды и герметика. Спецификация
ТП 903-1-278.90-ТМ1-36 Трубопровод аварийной подпитки. План. Разрезы А-А;Б-Б;В-В
ТП 903-1-278.90-ТМ1-37 Трубопроводы исходной химочищенной воды. План. Разрезы Б-Б;В-В;Г-Г;Д-Д;Е-Е
ТП 903-1-278.90-ТМ1-38 Трубопроводы исходной химочищенной воды. План. Разрезы А-А;Ж-Ж
ТП 903-1-278.90-ТМ1-39 Трубопроводы исходной химочищенной воды. Спецификация
ТП 903-1-278.90-ТМ1-40 Трубопроводы пара на собственные нужды. План. Разрезы А-А;Б-Б
ТП 903-1-278.90-ТМ1-41 Трубопроводы пара на собственные нужды. Спецификация
ТП 903-1-278.90-ТМ1-42 Схема парамазутопроводов
ТП 903-1-278.90-ТМ1-43 Паромазутопроводы. План. Разрезы А-А;Б-Б;В-В;Г-Г;Д-Д;Е-Е;Ж-Ж
ТП 903-1-278.90-ТМ1-44 Паромазутопроводы. Спецификация
ТП 903-1-278.90-ТМ1-45 Трубопроводы конденсата. План. Разрезы А-А;Б-Б
ТП 903-1-278.90-ТМ1-46 Трубопроводы конденсата. Разрезы В-В;Г-Г;Д-Д;Е-Е;Ж-Ж;К-К
ТП 903-1-278.90-ТМ1-47 Трубопроводы конденсата с мазутного хозяйства. План. Разрезы А-А;Д-Д;Г-Г
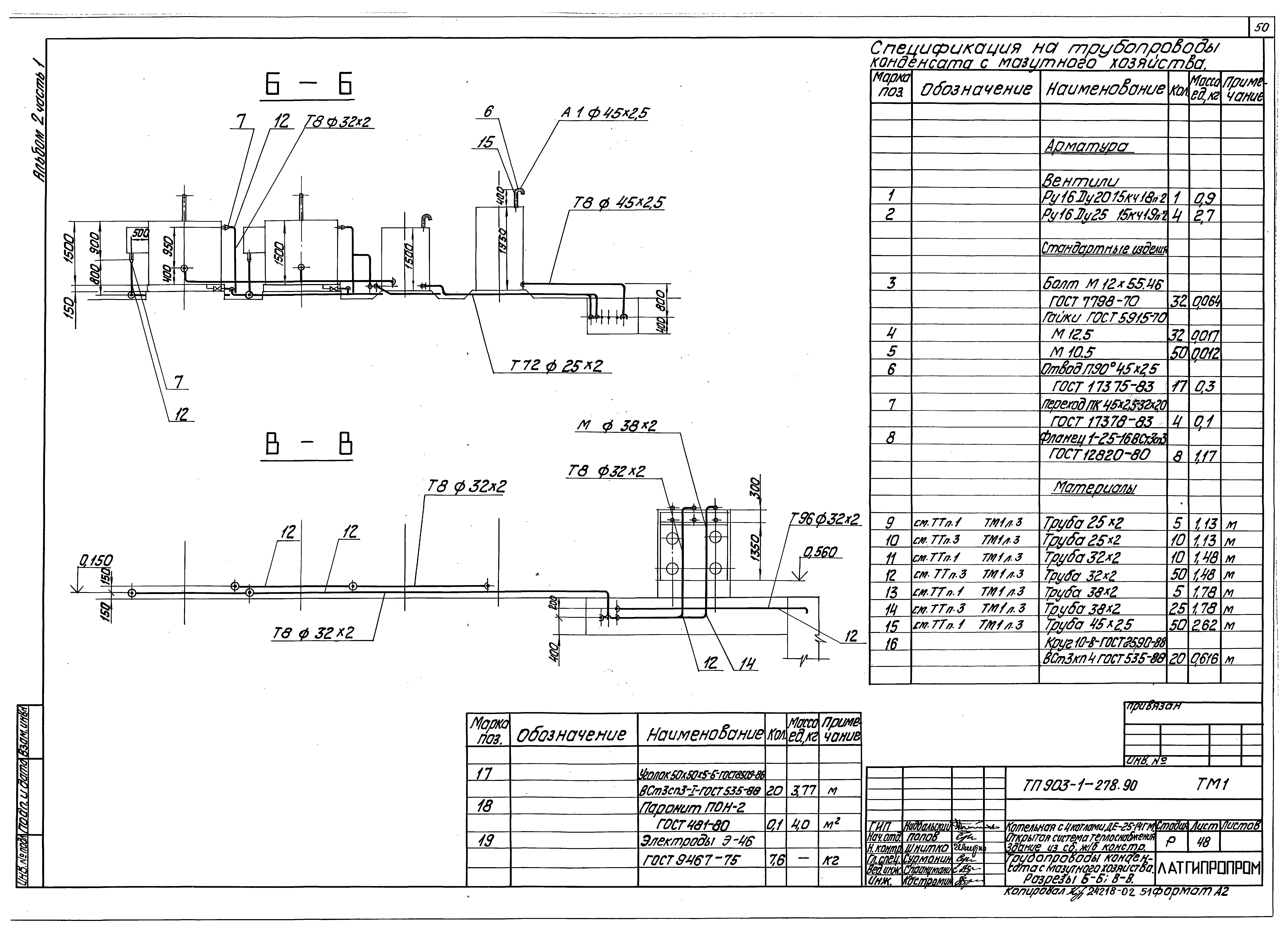
ТП 903-1-278.90-ТМ1-48 Трубопроводы конденсата с мазутного хозяйства. Разрезы Б-Б;В-В
ТП 903-1-278.90-ТМ1-49 Трубопроводы конденсата от калориферов. План. Разрез А-А
ТП 903-1-278.90-ТМ1-50 Трубопроводы орошения. План. Разрез А-А
ТП 903-1-278.90-ТМ1-51 Трубопроводы обвязки холодильников отбора проб. План. Разрез А-А
ТП 903-1-278.90-ТМ1-52 Трубопроводы продувок и дренажей. План. Разрезы А-А;Б-Б;Г-Г
ТП 903-1-278.90-ТМ1-53 Трубопроводы продувок и дренажей. Разрезы В-В;Д-Д
ТП 903-1-278.90-ТМ1-54 Схема трубопроводов дренажей и продувки паропроводов
ТП 903-1-278.90-ТМ1-55 Схема трубопроводов дренажей и продувки паропроводов сетевой воды
ТП 903-1-278.90-ТМ1-56 Трубопроводы выхлопа. План. Разрезы А-А;Б-Б;В-В
ТП 903-1-278.90-ТМ1-57 Бак-отстойник конденсата V=2.5м³. План. Разрез А-А. Деталь поз. 8
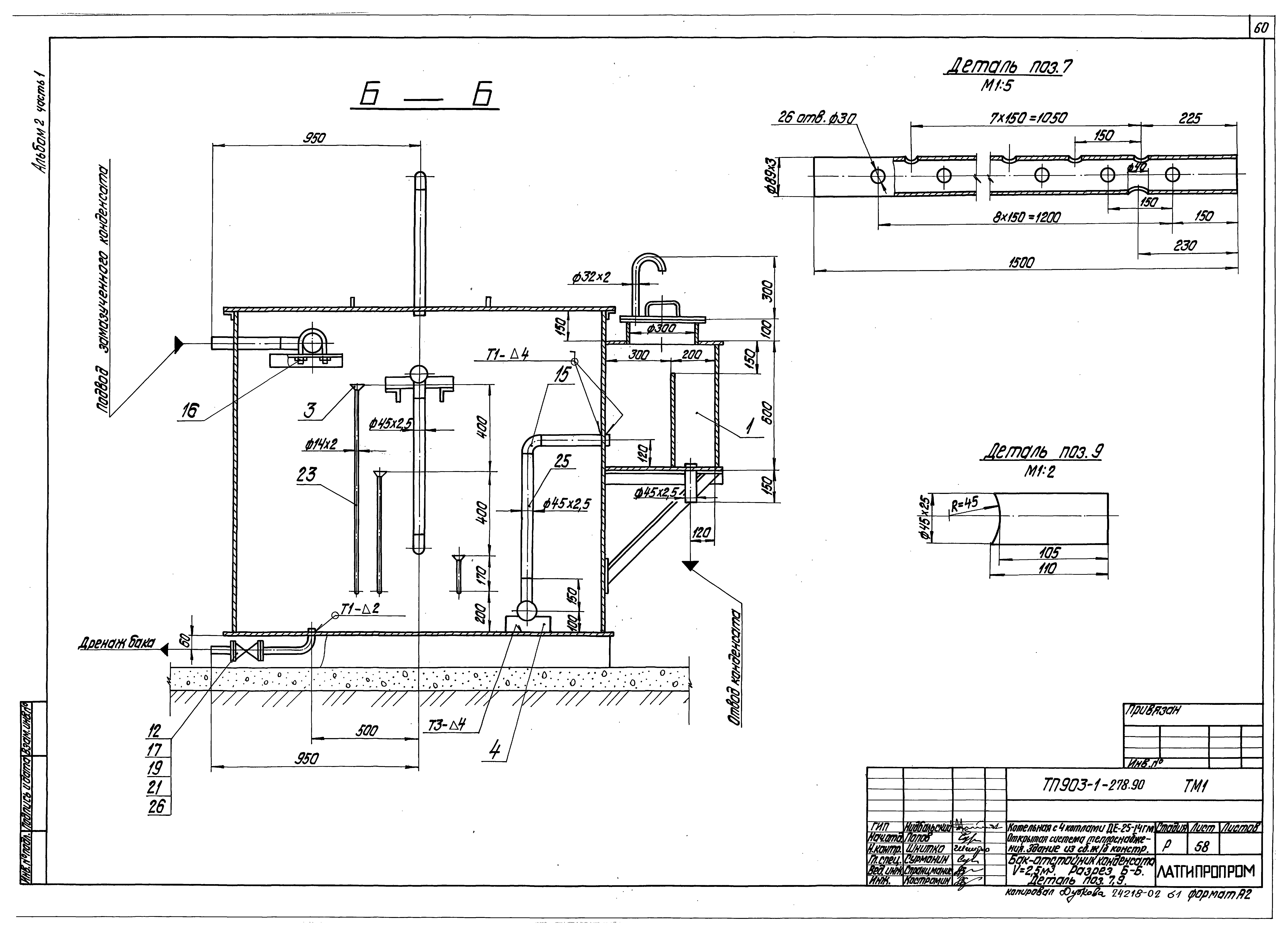
ТП 903-1-278.90-ТМ1-58 Бак-отстойник конденсата V=2.5м³. Разрез Б-Б. Деталь поз. 7,9
ТП 903-1-278.90-ТМ1-59 Бак-отстойник конденсата V=2.5м³. Спецификация
ТП 903-1-278.90-ТМ1-60 Бак сбора отстоявшегося мазута V=1м³. План. Разрез А-А
ТП 903-1-278.90-ТМ1-61 Бак-аккумулятор V=400м³. План. Разрезы А-А;Б-Б;В-В
ТП 903-1-278.90-ТМ1-62 Бак-аккумулятор V=400м³. Узел 1. Детали поз.4,5,6,7. Разрезы Г-Г;Д-Д;Е-Е;И-И;К-К;Л-Л;М-М
ТП 903-1-278.90-ТМ1-63 Бак-аккумулятор V=400м³. Узлы 2,3. Разрез Н-Н. Фланцевая заглушка
ТП 903-1-278.90-ТМ1-64 Бак-аккумулятор V=400м³. Спецификация
ТП 903-1-278.90-ТМ1-65 Трубопроводы резервуара для хранения герметизирующей жидкости. План. Разрезы А-А;Б-Б, Узел 1
ТП 903-1-278.90-ТМ1-66 Газоходы котельной. План. Разрезы А-А;Б-Б
ТП 903-1-278.90 Прилагаемы документы
ТП 903-1-278.90-ТМ.Н Общий вид теплоизоляции газовоздуховодов и оборудования
Разработан: Латгипропром
Утверждён:23.11.1988 Госстрой СССР (Государственный комитет Совета Министров СССР по делам строительства) (USSR Gosstroy 77)
Расположен в:Техническая документация Строительство Справочные документы Типовые строительные конструкции, изделия и узлы Общероссийский строительный каталог Промышленные предприятия, здания и сооружения Здания и сооружения санитарно-технические Теплоснабжение Котельные установки Открытые системы теплоснабжения Топливо - газ и мазут
Типовой проект 903-1-279.90Типовой проект 903-1-279.90Типовой проект 903-1-279.90Типовой проект 903-1-279.90Типовой проект 903-1-279.90Типовой проект 903-1-279.90Типовой проект 903-1-279.90Типовой проект 903-1-279.90Типовой проект 903-1-279.90Типовой проект 903-1-279.90Типовой проект 903-1-279.90Типовой проект 903-1-279.90Типовой проект 903-1-279.90Типовой проект 903-1-279.90Типовой проект 903-1-279.90Типовой проект 903-1-279.90Типовой проект 903-1-279.90Типовой проект 903-1-279.90Типовой проект 903-1-279.90Типовой проект 903-1-279.90Типовой проект 903-1-279.90Типовой проект 903-1-279.90Типовой проект 903-1-279.90Типовой проект 903-1-279.90Типовой проект 903-1-279.90Типовой проект 903-1-279.90Типовой проект 903-1-279.90Типовой проект 903-1-279.90Типовой проект 903-1-279.90Типовой проект 903-1-279.90Типовой проект 903-1-279.90Типовой проект 903-1-279.90Типовой проект 903-1-279.90Типовой проект 903-1-279.90Типовой проект 903-1-279.90Типовой проект 903-1-279.90Типовой проект 903-1-279.90Типовой проект 903-1-279.90Типовой проект 903-1-279.90Типовой проект 903-1-279.90Типовой проект 903-1-279.90Типовой проект 903-1-279.90Типовой проект 903-1-279.90Типовой проект 903-1-279.90Типовой проект 903-1-279.90Типовой проект 903-1-279.90Типовой проект 903-1-279.90Типовой проект 903-1-279.90Типовой проект 903-1-279.90Типовой проект 903-1-279.90Типовой проект 903-1-279.90Типовой проект 903-1-279.90Типовой проект 903-1-279.90Типовой проект 903-1-279.90Типовой проект 903-1-279.90Типовой проект 903-1-279.90Типовой проект 903-1-279.90Типовой проект 903-1-279.90Типовой проект 903-1-279.90Типовой проект 903-1-279.90Типовой проект 903-1-279.90Типовой проект 903-1-279.90Типовой проект 903-1-279.90Типовой проект 903-1-279.90Типовой проект 903-1-279.90Типовой проект 903-1-279.90Типовой проект 903-1-279.90Типовой проект 903-1-279.90Типовой проект 903-1-279.90Типовой проект 903-1-279.90

© 2013 Ёшкин Кот :-) Карта сайта