Информационная система
«Ёшкин Кот»

Скачать базу одним архивом
Скачать обновления
История создания базы
Карта сайта

Скачать Типовой проект 903-1-279.90 Альбом 2. Решения архитектурные. Конструкции железобетонные. Антикоррозийная защита конструкций

Дата актуализации: 10.08.2017

Типовой проект 903-1-279.90

Альбом 2. Решения архитектурные. Конструкции железобетонные. Антикоррозийная защита конструкций

Обозначение: Типовой проект 903-1-279.90
Обозначение англ: 903-1-279.90
Статус:не определен законодательством
Название рус.:Альбом 2. Решения архитектурные. Конструкции железобетонные. Антикоррозийная защита конструкций
Дата добавления в базу:01.09.2013
Дата актуализации:05.05.2017
Дата введения:23.11.1988
Оглавление:ТП 903-1-279.90-АР Решения архитектурные АР
ТП 903-1-279.90-АР-1 Общие данные (начало)
ТП 903-1-279.90-АР-2 Общие данные (продолжение)
ТП 903-1-279.90-АР-3 Общие данные (окончание). Ведомость отделки помещений
ТП 903-1-279.90-АР-4 План полов на отм. 0.000;+3.300. План кровли. Экспликация полов
ТП 903-1-279.90-АР-5 План полов на отм. 0.000. Фрагмент 1. Узел 10
ТП 903-1-279.90-АР-6 План полов на отм. +3.300. Фрагмент 3. Узел 11
ТП 903-1-279.90-АР-7 Разрез 1-1;2-2. Сечение а-а. Фрагмент 4. Узлы 1,12,13
ТП 903-1-279.90-АР-8 Фрагмент 2. План подвесного потолка на отм. +5.900. Узлы 3,4,5,14
ТП 903-1-279.90-АР-9 Фасад 1-11;11-1;А-Д;Д-А;А'-Б';Б'-А';2'-1'
ТП 903-1-279.90-АР-10 Узел 6,7,8,9
ТП 903-1-279.90-АР-11 Боров. План на отм. +2.500. Разрезы. Фасады. Узлы
ТП 903-1-279.90-КЖ1 Конструкции железобетонные КЖ1
ТП 903-1-279.90-КЖ1-1 Общие данные (начало)
ТП 903-1-279.90-КЖ1-2 Общие данные (окончание)
ТП 903-1-279.90-КЖ1-3 Схема расположения фундаментов и фундаментных балок
ТП 903-1-279.90-КЖ1-4 Фрагменты 1,2,3
ТП 903-1-279.90-КЖ1-5 Фрагменты 4,5. Фундамент ФМ13
ТП 903-1-279.90-КЖ1-6 ФМ1;ФМ2. Опалубка и армирование
ТП 903-1-279.90-КЖ1-7 ФМ3;ФМ4;ФМ5;ФМ6. Опалубка и армирование
ТП 903-1-279.90-КЖ1-8 ФМ7;ФМ7-1;ФМ8;ФМ9. Опалубка и армирование
ТП 903-1-279.90-КЖ1-9 ФМ10;ФМ11;ФМ12. Опалубка и армирование
ТП 903-1-279.90-КЖ1-10 Схема расположения подземных конструкций в осях 1...11
ТП 903-1-279.90-КЖ1-11 ПРМ1,КНМ2,ФОМ1,ФОМ2. Опалубка и армирование
ТП 903-1-279.90-КЖ1-12 Монолитные участки УМ1,УМ2
ТП 903-1-279.90-КЖ1-13 Монолитный участок УМ3. Спецификация на КНМ1
ТП 903-1-279.90-КЖ1-14 Схема расположения канала КНМ1
ТП 903-1-279.90-КЖ1-15 Фрагмент 6
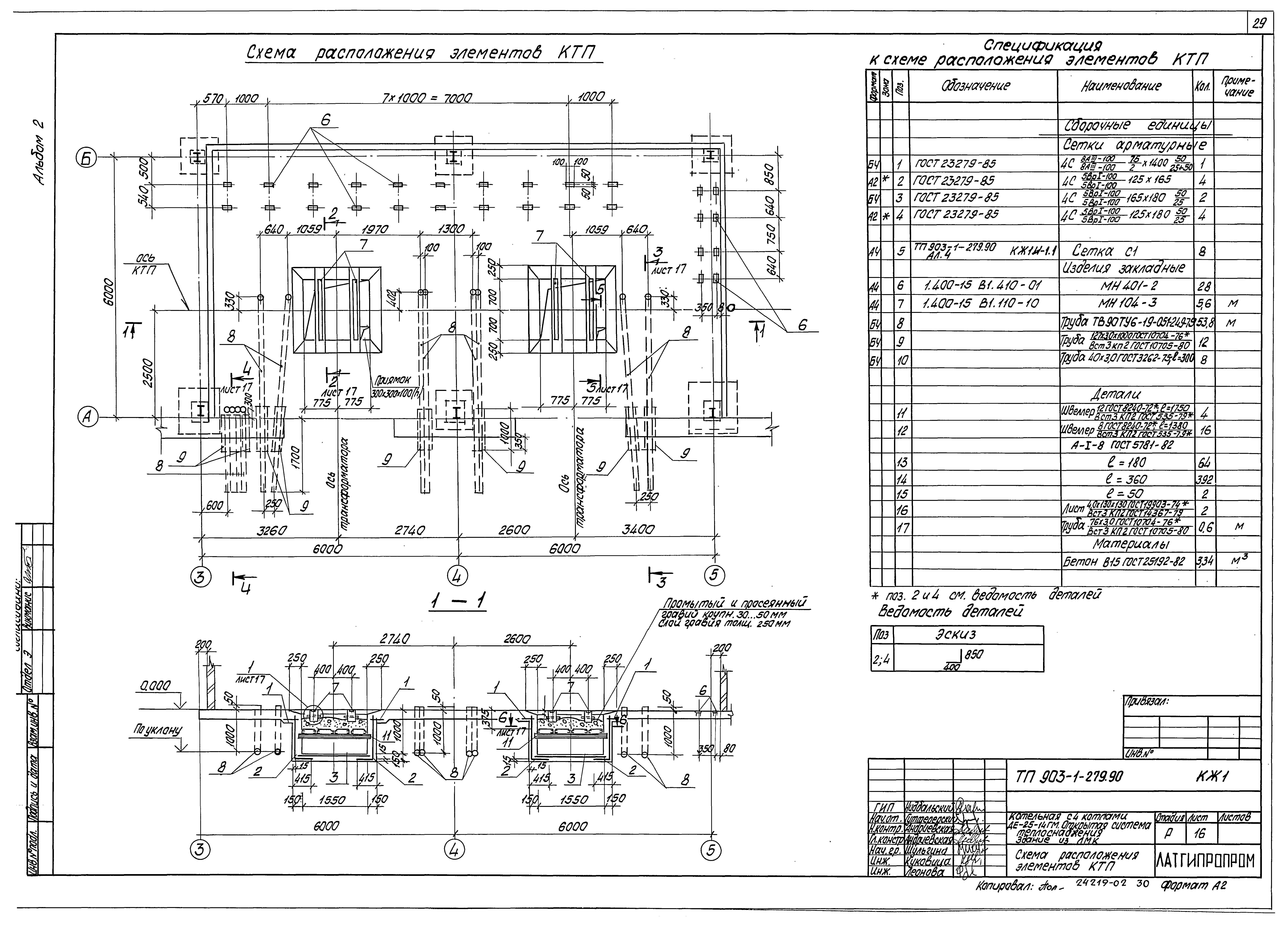
ТП 903-1-279.90-КЖ1-16 Схема расположения элементов КТП
ТП 903-1-279.90-КЖ1-17 Схема расположения элементов КТП. Разрезы 2-2...6-6. Узел 1
ТП 903-1-279.90-КЖ1-18 Схема расположения конструкций наружного оборудования в осях 2...7
ТП 903-1-279.90-КЖ1-19 Фрагмент 7. Разрез 1-1. Узел 1. ФОМ1-1,ФОМ1-2,ФОМ2-1. Опалубка и армирование
ТП 903-1-279.90-КЖ1-20 ФМ1-1. Опалубка и армирование
ТП 903-1-279.90-КЖ1-21 Схема расположения площадки ПМ1,ФОМ9-1
ТП 903-1-279.90-КЖ1-22 Узлы 2 и 3 ФОМ8-1. Опалубка
ТП 903-1-279.90-КЖ1-23 ФОМ3-1...ФОМ7-1. Опалубка и армирование
ТП 903-1-279.90-КЖ1-24 Вид А-А
ТП 903-1-279.90-КЖ1-25 Схема расположения фундаментов, балок, плит перекрытий и покрытий борова
ТП 903-1-279.90-КЖ1-26 ФМ1-2,ОП1,П1. Опалубка и армирование. Узлы 10,11
ТП 903-1-279.90-КЖ1-27 Продувочный колодец ПКМ1. Опалубка и армирование
ТП 903-1-279.90-КЖ1-28 Продувочный колодец ПКМ1. Разрез 3-3. Детали гидроизоляции
ТП 903-1-279.90-КЖ1-29 Склад соли. Опалубка. План на отм. 0.000
ТП 903-1-279.90-КЖ1-30 Склад соли. План на отм. 1.000. Схема расположения плит покрытия на отм. 2.700
ТП 903-1-279.90-КЖ1-31 Склад соли. Приямок СПР1. План на отм. 0.000. Армирование
ТП 903-1-279.90-КЖ1-32 Склад соли. Приямок СПР1. Армирование. Разрезы 3-3,4-4. Узел А
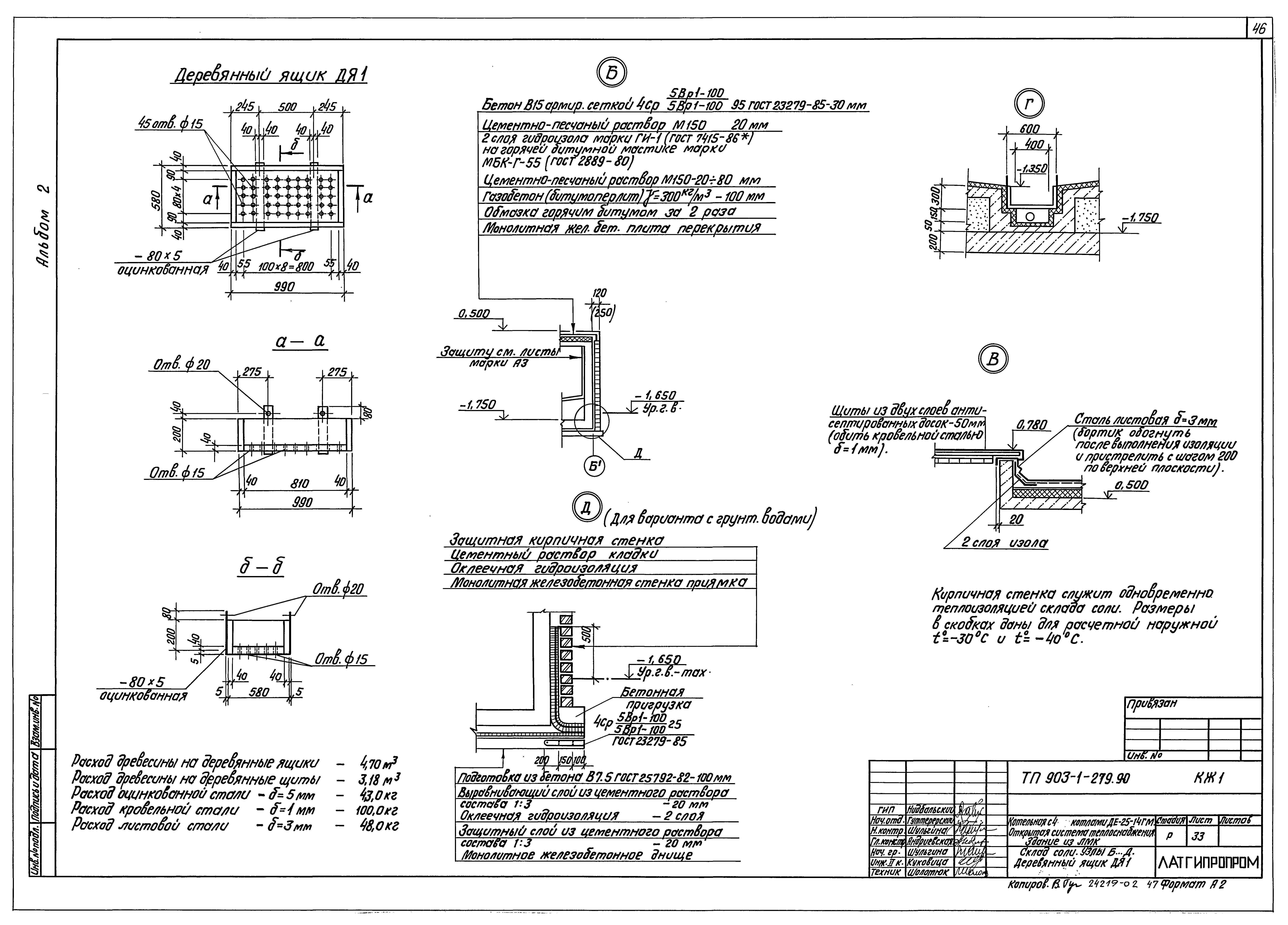
ТП 903-1-279.90-КЖ1-33 Склад соли. Узлы Б...Д. Деревянный ящик ДЯ1
ТП 903-1-279.90-КЖ1-34 Схемы расположения стеновых панелей
ТП 903-1-279.90-КЖ1-35 Схемы расположения перегородок по оси Б
ТП 903-1-279.90-КЖ1-36 Монолитные перекрытия ПМ1,ПМ2 на отм. 3.300
ТП 903-1-279.90-АЗ Антикоррозийная защита конструкции АЗ
ТП 903-1-279.90-АЗ-1 План на отм. -1.750;-1.350;0.000. Узлы 1...3. Общие данные
Разработан: Латгипропром
Утверждён:23.11.1988 Госстрой СССР (Государственный комитет Совета Министров СССР по делам строительства) (USSR Gosstroy 77)
Расположен в:Техническая документация Строительство Справочные документы Типовые строительные конструкции, изделия и узлы Общероссийский строительный каталог Промышленные предприятия, здания и сооружения Здания и сооружения санитарно-технические Теплоснабжение Котельные установки Открытые системы теплоснабжения Топливо - газ и мазут
Типовой проект 903-1-279.90Типовой проект 903-1-279.90Типовой проект 903-1-279.90Типовой проект 903-1-279.90Типовой проект 903-1-279.90Типовой проект 903-1-279.90Типовой проект 903-1-279.90Типовой проект 903-1-279.90Типовой проект 903-1-279.90Типовой проект 903-1-279.90Типовой проект 903-1-279.90Типовой проект 903-1-279.90Типовой проект 903-1-279.90Типовой проект 903-1-279.90Типовой проект 903-1-279.90Типовой проект 903-1-279.90Типовой проект 903-1-279.90Типовой проект 903-1-279.90Типовой проект 903-1-279.90Типовой проект 903-1-279.90Типовой проект 903-1-279.90Типовой проект 903-1-279.90Типовой проект 903-1-279.90Типовой проект 903-1-279.90Типовой проект 903-1-279.90Типовой проект 903-1-279.90Типовой проект 903-1-279.90Типовой проект 903-1-279.90Типовой проект 903-1-279.90Типовой проект 903-1-279.90Типовой проект 903-1-279.90Типовой проект 903-1-279.90Типовой проект 903-1-279.90Типовой проект 903-1-279.90Типовой проект 903-1-279.90Типовой проект 903-1-279.90Типовой проект 903-1-279.90Типовой проект 903-1-279.90Типовой проект 903-1-279.90Типовой проект 903-1-279.90Типовой проект 903-1-279.90Типовой проект 903-1-279.90Типовой проект 903-1-279.90Типовой проект 903-1-279.90Типовой проект 903-1-279.90Типовой проект 903-1-279.90Типовой проект 903-1-279.90Типовой проект 903-1-279.90Типовой проект 903-1-279.90Типовой проект 903-1-279.90Типовой проект 903-1-279.90

© 2013 Ёшкин Кот :-) Карта сайта