Информационная система
«Ёшкин Кот»

Скачать базу одним архивом
Скачать обновления
История создания базы
Карта сайта

Скачать Типовой проект 902-2-476.89 Альбом 3. Конструкции железобетонные

Дата актуализации: 10.08.2017

Типовой проект 902-2-476.89

Альбом 3. Конструкции железобетонные

Обозначение: Типовой проект 902-2-476.89
Обозначение англ: 902-2-476.89
Статус:не определен законодательством
Название рус.:Альбом 3. Конструкции железобетонные
Дата добавления в базу:01.09.2013
Дата актуализации:05.05.2017
Дата введения:16.10.1989
Оглавление:ТП 902-2-476.89-КЖ-1 Общие данные
ТП 902-2-476.89-КЖ-2 Отстойник. Общие виды
ТП 902-2-476.89-КЖ-3 Отстойник. Днище. Опалубочный чертеж. Сечения 3-3÷5-5
ТП 902-2-476.89-КЖ-4 Отстойник. Днище. Опалубочный чертеж. Сечения 6-6÷12-12
ТП 902-2-476.89-КЖ-5 Отстойник. Днище. Опалубка и армирование. Узел 1
ТП 902-2-476.89-КЖ-6 Отстойник. Днище. Армирование. Сечения 2-2÷6-6. Узел 2
ТП 902-2-476.89-КЖ-7 Отстойник. Днище. Армирование. План 8-8. Сечения 7-7,9-9÷11-11
ТП 902-2-476.89-КЖ-8 Отстойник. Днище. Армирование. Спецификация
ТП 902-2-476.89-КЖ-9 Отстойник. Схема расположения стеновых панелей. Узлы 1,2. Сечение 1-1
ТП 902-2-476.89-КЖ-10 Отстойник. Узлы 4-7. Деталь навивки кольцевой арматуры
ТП 902-2-476.89-КЖ-11 Отстойник. Схема расположения лотков. Узел 8. Сечения 1-1÷4-4
ТП 902-2-476.89-КЖ-12 Отстойник. Выпускная камера ВМ1. Стена СМ1. Опалубочный чертеж
ТП 902-2-476.89-КЖ-13 Отстойник. Выпускная камера ВМ1. Стена отстойника СМ1. Армирование. Сечения 1-1÷4-4
ТП 902-2-476.89-КЖ-14 Отстойник. Выпускная камера ВМ1. Стена отстойника СМ1. Борт отстойника БМ1. Армирование. Сечения 5-5÷8-8
ТП 902-2-476.89-КЖ-15 Отстойник. Выпускная камера ВМ1. Стена отстойника СМ1. Борт отстойника БМ1. Армирование. Спецификация
ТП 902-2-476.89-КЖ-16 Распределительная чаша. Планы 1-1;2-2;5-5. Сечения 3-3;4-4;6-6÷8-8. Узел 1
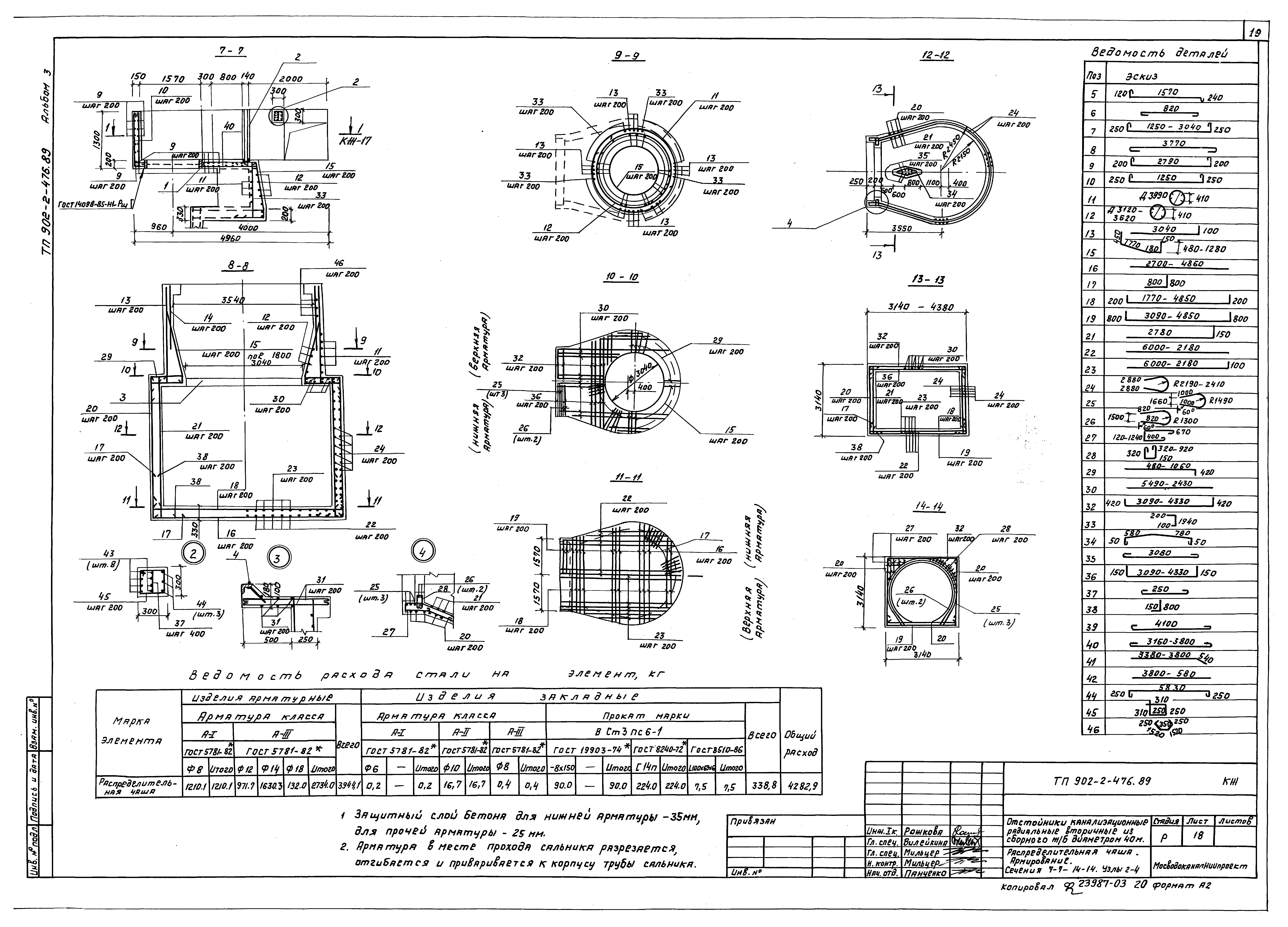
ТП 902-2-476.89-КЖ-17 Распределительная чаша. Армирование. Сечения 1-1÷6-6. Узел 1
ТП 902-2-476.89-КЖ-18 Распределительная чаша. Армирование. Сечения 7-7÷14-14. Узел 2-4
ТП 902-2-476.89-КЖ-19 Камеры ОВ1 и ОВ2. Планы, сечения
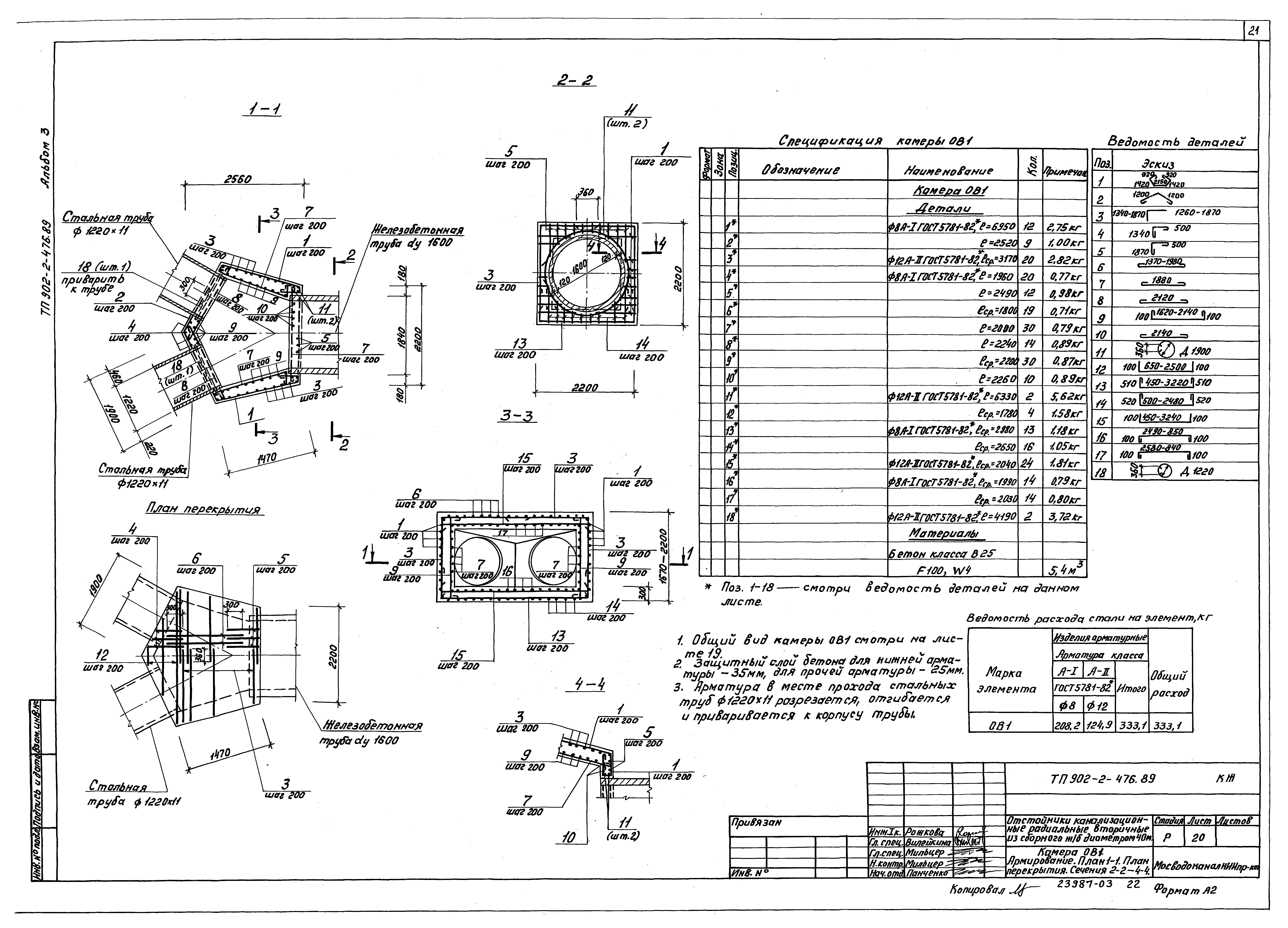
ТП 902-2-476.89-КЖ-20 Камера ОВ1. Армирование. План 1-1. План перекрытия. Сечения 2-2÷4-4
ТП 902-2-476.89-КЖ-21 Камера ОВ2. Армирование. План 1-1. План перекрытия. Сечения 2-2÷4-4
ТП 902-2-476.89-КЖ-22 Иловая камера ИК1. Сечения 1-1÷3-3. Планы 4-4 и 5-5
ТП 902-2-476.89-КЖ-23 Иловая камера ИК1. Армирование. Сечения 1-1,3-3. Планы 2-2,4-4
ТП 902-2-476.89-КЖ-24 Иловая камера ИК1. Армирование. План перекрытия. Сечения. Узел 1
Разработан: МосводоканалНИИпроект
Утверждён:09.10.1989 Мосгорисполком (Mosgorispolkom 2148)
Расположен в:Техническая документация Строительство Справочные документы Типовые строительные конструкции, изделия и узлы Общероссийский строительный каталог Промышленные предприятия, здания и сооружения Здания и сооружения санитарно-технические Канализация Сооружения механической очистки Отстойники Отстойники радиальные вторичные
Типовой проект 902-2-476.89Типовой проект 902-2-476.89Типовой проект 902-2-476.89Типовой проект 902-2-476.89Типовой проект 902-2-476.89Типовой проект 902-2-476.89Типовой проект 902-2-476.89Типовой проект 902-2-476.89Типовой проект 902-2-476.89Типовой проект 902-2-476.89Типовой проект 902-2-476.89Типовой проект 902-2-476.89Типовой проект 902-2-476.89Типовой проект 902-2-476.89Типовой проект 902-2-476.89Типовой проект 902-2-476.89Типовой проект 902-2-476.89Типовой проект 902-2-476.89Типовой проект 902-2-476.89Типовой проект 902-2-476.89Типовой проект 902-2-476.89Типовой проект 902-2-476.89Типовой проект 902-2-476.89Типовой проект 902-2-476.89Типовой проект 902-2-476.89Типовой проект 902-2-476.89

© 2013 Ёшкин Кот :-) Карта сайта