Информационная система
«Ёшкин Кот»

Скачать базу одним архивом
Скачать обновления
История создания базы
Карта сайта

Скачать Типовой проект 902-2-475.89 Альбом 3. Конструкции железобетонные. Конструкции металлические

Дата актуализации: 10.08.2017

Типовой проект 902-2-475.89

Альбом 3. Конструкции железобетонные. Конструкции металлические

Обозначение: Типовой проект 902-2-475.89
Обозначение англ: 902-2-475.89
Статус:не определен законодательством
Название рус.:Альбом 3. Конструкции железобетонные. Конструкции металлические
Дата добавления в базу:01.09.2013
Дата актуализации:05.05.2017
Дата введения:16.10.1989
Оглавление:ТП 902-2-475.89 Титульный лист
ТП 902-2-475.89 Содержание альбома
ТП 902-2-475.89-КЖ Конструкции железобетонные КЖ
ТП 902-2-475.89-КЖ-1 Общие данные
ТП 902-2-475.89-КЖ-2 Схема группы отстойников
ТП 902-2-475.89-КЖ-3 Отстойник. План. Сечение
ТП 902-2-475.89-КЖ-4 Отстойник. Сечения 3-3÷5-5
ТП 902-2-475.89-КЖ-5 Отстойник. Сечения 6-6÷12-12
ТП 902-2-475.89-КЖ-6 Отстойник. Днище Дм1. Опалубка и армирование
ТП 902-2-475.89-КЖ-7 Отстойник. Днище Дм1. Армирование. Сечения 3-3÷6-6
ТП 902-2-475.89-КЖ-8 Отстойник. Днище Дм1. Армирование. Сечения 7-7÷10-10. Узел 1
ТП 902-2-475.89-КЖ-9 Отстойник. Днище Дм1. Армирование. Спецификации
ТП 902-2-475.89-КЖ-10 Отстойник. Схема расположения стеновых панелей
ТП 902-2-475.89-КЖ-11 Отстойник. Узлы 3-5
ТП 902-2-475.89-КЖ-12 Отстойник. Схема расположения лотков и борта отстойника БМ1
ТП 902-2-475.89-КЖ-13 Отстойник. Выпускная камера ВКМ1. Планы. Сечения
ТП 902-2-475.89-КЖ-14 Отстойник. Выпускная камера ВКМ1. Борт отстойника БМ1. Армирование
ТП 902-2-475.89-КЖ-15 Отстойник. Выпускная камера ВКМ1. Армирование
ТП 902-2-475.89-КЖ-16 Отстойник. Выпускная камера ВКМ1. Борт отстойника БМ1. Армирование. Спецификации
ТП 902-2-475.89-КЖ-17 Отстойник. Схема расположения водослива
ТП 902-2-475.89-КЖ-18 Распределительная чаша. Планы. Сечения
ТП 902-2-475.89-КЖ-19 Распределительная чаша. Армирование. Узел 1. Сечения 1-1÷3-3,10-10,11-11
ТП 902-2-475.89-КЖ-20 Распределительная чаша. Схемы армирования днища и перекрытия. Сечения 4-4÷9-9
ТП 902-2-475.89-КЖ-21 Распределительная чаша. Армирование. Спецификации
ТП 902-2-475.89-КЖ-22 Иловая камера ИК1. Планы. Сечения
ТП 902-2-475.89-КЖ-23 Иловая камера ИК1. Армирование
ТП 902-2-475.89-КЖ-24 Иловая камера ИК1. Схема армирования перекрытия. Узел
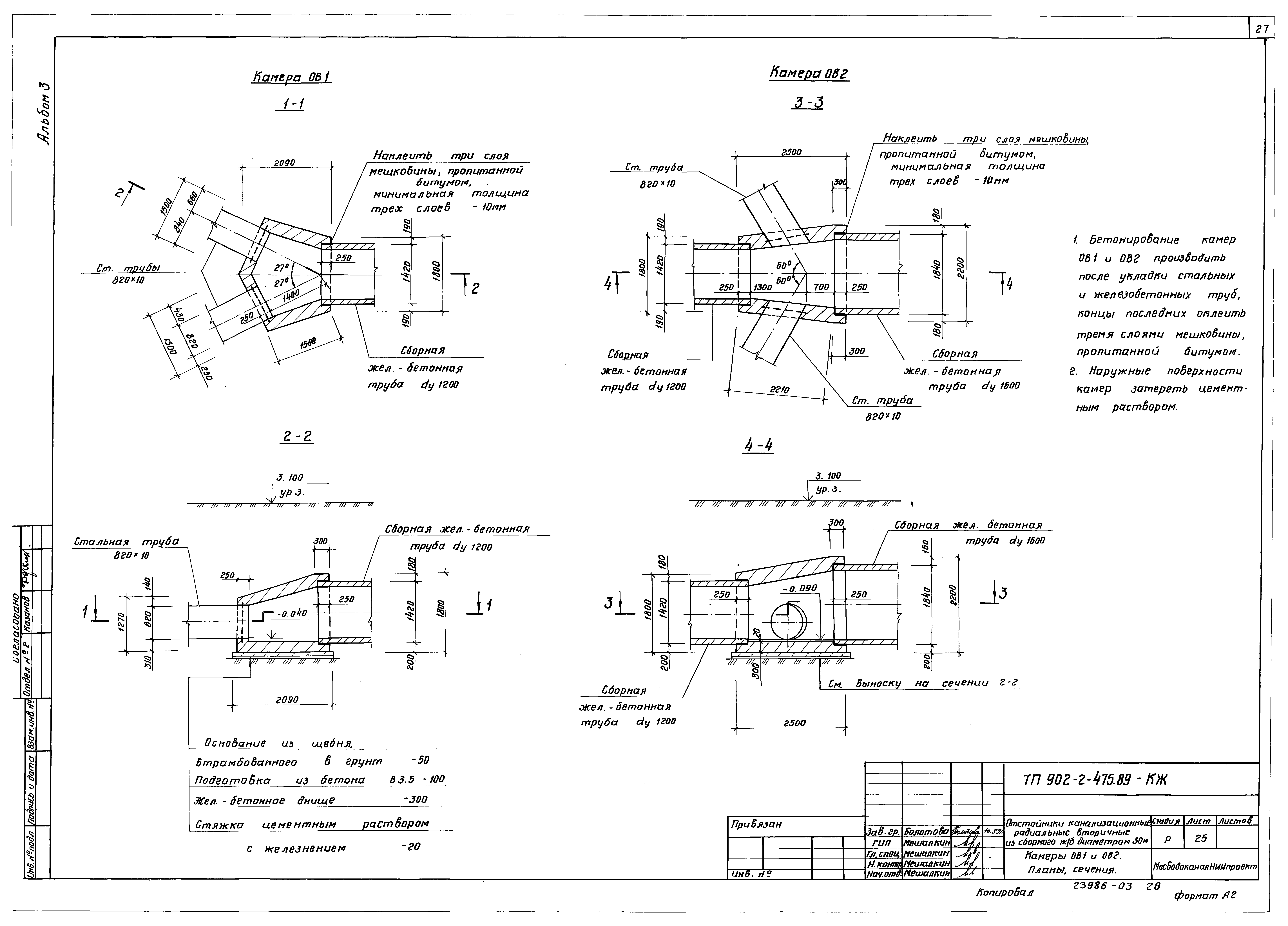
ТП 902-2-475.89-КЖ-25 Камеры ОВ1 и ОВ2. Планы. Сечения
ТП 902-2-475.89-КЖ-26 Камера ОВ1. Армирование
ТП 902-2-475.89-КЖ-27 Камера ОВ2. Армирование
ТП 902-2-475.89-КМ Конструкции металлические КМ
ТП 902-2-475.89-КМ-1 Общие данные (начало)
ТП 902-2-475.89-КМ-2 Общие данные (продолжение)
ТП 902-2-475.89-КМ-3 Общие данные (окончание)
ТП 902-2-475.89-КМ-4 Отстойник. Схема расположения ригелей и подкосов
ТП 902-2-475.89-КМ-5 Отстойник, распределительная чаша, иловая камера. Схемы расположения рам, лестницы и ограждений
Разработан: МосводоканалНИИпроект
Утверждён:09.10.1989 Мосгорисполком (Mosgorispolkom 2147)
Расположен в:Техническая документация Строительство Справочные документы Типовые строительные конструкции, изделия и узлы Общероссийский строительный каталог Промышленные предприятия, здания и сооружения Здания и сооружения санитарно-технические Канализация Сооружения механической очистки Отстойники Отстойники радиальные вторичные
Заменяет собой:
Типовой проект 902-2-475.89Типовой проект 902-2-475.89Типовой проект 902-2-475.89Типовой проект 902-2-475.89Типовой проект 902-2-475.89Типовой проект 902-2-475.89Типовой проект 902-2-475.89Типовой проект 902-2-475.89Типовой проект 902-2-475.89Типовой проект 902-2-475.89Типовой проект 902-2-475.89Типовой проект 902-2-475.89Типовой проект 902-2-475.89Типовой проект 902-2-475.89Типовой проект 902-2-475.89Типовой проект 902-2-475.89Типовой проект 902-2-475.89Типовой проект 902-2-475.89Типовой проект 902-2-475.89Типовой проект 902-2-475.89Типовой проект 902-2-475.89Типовой проект 902-2-475.89Типовой проект 902-2-475.89Типовой проект 902-2-475.89Типовой проект 902-2-475.89Типовой проект 902-2-475.89Типовой проект 902-2-475.89Типовой проект 902-2-475.89Типовой проект 902-2-475.89Типовой проект 902-2-475.89Типовой проект 902-2-475.89Типовой проект 902-2-475.89Типовой проект 902-2-475.89Типовой проект 902-2-475.89Типовой проект 902-2-475.89

© 2013 Ёшкин Кот :-) Карта сайта