Информационная система
«Ёшкин Кот»

Скачать базу одним архивом
Скачать обновления
История создания базы
Карта сайта

Скачать Типовой проект 902-2-473.89 Альбом 6. Электросиловое оборудование. Автоматизация технологического процесса. Автоматизация вентсистем

Дата актуализации: 10.08.2017

Типовой проект 902-2-473.89

Альбом 6. Электросиловое оборудование. Автоматизация технологического процесса. Автоматизация вентсистем

Обозначение: Типовой проект 902-2-473.89
Обозначение англ: 902-2-473.89
Статус:не определен законодательством
Название рус.:Альбом 6. Электросиловое оборудование. Автоматизация технологического процесса. Автоматизация вентсистем
Дата добавления в базу:01.09.2013
Дата актуализации:05.05.2017
Дата введения:06.09.1989
Оглавление:ТП 902-2-473.89 Содержание альбома
ТП 902-2-473.89-ЭМ-1 Общие данные
ТП 902-2-473.89-ЭМ-2 Схема электрическая принципиальная распред. Сети 380/220 В (начало)
ТП 902-2-473.89-ЭМ-3 Схема электрическая принципиальная распред. Сети 380/220 В (окончание)
ТП 902-2-473.89-ЭМ-4 Схема электрическая принципиальная АВР
ТП 902-2-473.89-ЭМ-5 Откачка осадка из отстойников. Диаграмма работы механизмов и настройка программных реле времени
ТП 902-2-473.89-ЭМ-6 Откачка осадка из отстойников. Схема электрическая принципиальная (начало)
ТП 902-2-473.89-ЭМ-7 Откачка осадка из отстойников. Схема электрическая принципиальная (окончание)
ТП 902-2-473.89-ЭМ-8 Откачка осадка из отстойников. Схема электрическая принципиальная управления илоскребами (М1...М4)
ТП 902-2-473.89-ЭМ-9 Откачка осадка из отстойников. Схема электрическая принципиальная управления задвижками выпуска осадка (М5...М8)
ТП 902-2-473.89-ЭМ-10 Откачка осадка из отстойников. Схема электрическая принципиальная управления насосами М9...М11
ТП 902-2-473.89-ЭМ-11 Перекачка жира из жиросборников. Общая схема электрическая принципиальная
ТП 902-2-473.89-ЭМ-12 Перекачка жира из жиросборников. Схема электрическая принципиальная управления насосами М14,М15
ТП 902-2-473.89-ЭМ-13 Перекачка жира из жиросборников. Схема электрическая принципиальная управления задвижками выпуска жира М21,М22
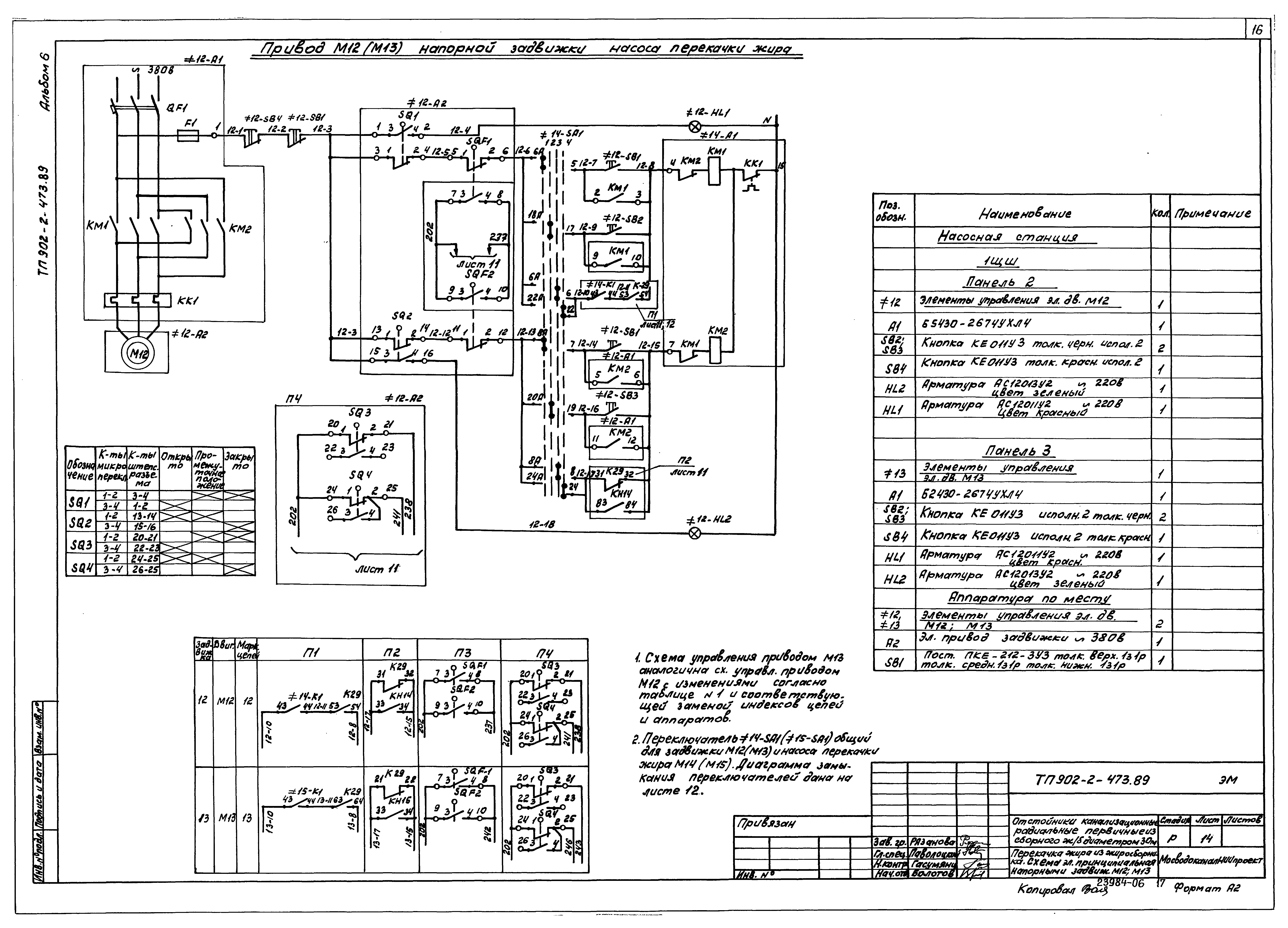
ТП 902-2-473.89-ЭМ-14 Перекачка жира из жиросборников. Схема электрическая принципиальная управления напорными задвижками насосов перекачки жира М12,М13
ТП 902-2-473.89-ЭМ-15 Схема электрическая принципиальная управления дренажными насосами М16 и вытяжным вентилятором М19
ТП 902-2-473.89-ЭМ-16 Схема электрическая принципиальная аварийной сигнализации (начало)
ТП 902-2-473.89-ЭМ-17 Схема электрическая принципиальная аварийной сигнализации (окончание)
ТП 902-2-473.89-ЭМ-18 Схема подключения внешних проводок (начало)
ТП 902-2-473.89-ЭМ-19 Схема подключения внешних проводок (продолжение)
ТП 902-2-473.89-ЭМ-20 Схема подключения внешних проводок (продолжение)
ТП 902-2-473.89-ЭМ-21 Схема подключения внешних проводок (продолжение)
ТП 902-2-473.89-ЭМ-22 Схема подключения внешних проводок (окончание)
ТП 902-2-473.89-ЭМ-23 Кабельный журнал (начало)
ТП 902-2-473.89-ЭМ-24 Кабельный журнал (окончание)
ТП 902-2-473.89-ЭМ-25 План расположения. Кабельные трассы (начало)
ТП 902-2-473.89-ЭМ-26 План расположения. Кабельные трассы (окончание)
ТП 902-2-473.89-ЭМ-27 План расположения электрооборудования и прокладка сети электроосвещения. Кабельный журнал (начало)
ТП 902-2-473.89-ЭМ-28 План расположения электрооборудования и прокладка сети электроосвещения. Кабельный журнал (окончание)
ТП 902-2-473.89-ЭМ-Н1 Щит 1ЩШ. Ящики 1Я...4Я. Эскизный чертеж общего вида
ТП 902-2-473.89-АТХ-1 Общие данные
ТП 902-2-473.89-АТХ-2 Схема автоматизации
ТП 902-2-473.89-АТХ-3 Схема питания
ТП 902-2-473.89-АТХ-4 Схема электрическая принципиальная измерения расходов и уровней
ТП 902-2-473.89-АТХ-5 Схема подключения внешних проводок
ТП 902-2-473.89-АОВ-1 Общие данные
ТП 902-2-473.89-АОВ-2 Функциональные схемы
ТП 902-2-473.89-АОВ-3 Схема принципиальная электрическая управления и регулирования приточной системой
ТП 902-2-473.89-АОВ-4 Схема соединений внешних проводок
Разработан: МосводоканалНИИпроект
Утверждён:18.08.1989 Мосгорисполком (Mosgorispolkom 1583)
Расположен в:Техническая документация Строительство Справочные документы Типовые строительные конструкции, изделия и узлы Общероссийский строительный каталог Промышленные предприятия, здания и сооружения Здания и сооружения санитарно-технические Канализация Сооружения механической очистки Отстойники Отстойники радиальные первичные
Типовой проект 902-2-473.89Типовой проект 902-2-473.89Типовой проект 902-2-473.89Типовой проект 902-2-473.89Типовой проект 902-2-473.89Типовой проект 902-2-473.89Типовой проект 902-2-473.89Типовой проект 902-2-473.89Типовой проект 902-2-473.89Типовой проект 902-2-473.89Типовой проект 902-2-473.89Типовой проект 902-2-473.89Типовой проект 902-2-473.89Типовой проект 902-2-473.89Типовой проект 902-2-473.89Типовой проект 902-2-473.89Типовой проект 902-2-473.89Типовой проект 902-2-473.89Типовой проект 902-2-473.89Типовой проект 902-2-473.89Типовой проект 902-2-473.89Типовой проект 902-2-473.89Типовой проект 902-2-473.89Типовой проект 902-2-473.89Типовой проект 902-2-473.89Типовой проект 902-2-473.89Типовой проект 902-2-473.89Типовой проект 902-2-473.89Типовой проект 902-2-473.89Типовой проект 902-2-473.89Типовой проект 902-2-473.89Типовой проект 902-2-473.89Типовой проект 902-2-473.89Типовой проект 902-2-473.89Типовой проект 902-2-473.89Типовой проект 902-2-473.89Типовой проект 902-2-473.89Типовой проект 902-2-473.89Типовой проект 902-2-473.89Типовой проект 902-2-473.89Типовой проект 902-2-473.89Типовой проект 902-2-473.89

© 2013 Ёшкин Кот :-) Карта сайта