Информационная система
«Ёшкин Кот»

Скачать базу одним архивом
Скачать обновления
История создания базы
Карта сайта

Скачать Типовой проект 902-2-473.89 Альбом 5. Насосная станция сырого осадка. Архитектурные решения. Конструкции железобетонные. Строительные изделия. Конструкции металлические

Дата актуализации: 10.08.2017

Типовой проект 902-2-473.89

Альбом 5. Насосная станция сырого осадка. Архитектурные решения. Конструкции железобетонные. Строительные изделия. Конструкции металлические

Обозначение: Типовой проект 902-2-473.89
Обозначение англ: 902-2-473.89
Статус:не определен законодательством
Название рус.:Альбом 5. Насосная станция сырого осадка. Архитектурные решения. Конструкции железобетонные. Строительные изделия. Конструкции металлические
Дата добавления в базу:01.09.2013
Дата актуализации:05.05.2017
Дата введения:06.09.1989
Оглавление:ТП 902-2-473.89 Титульный лист
ТП 902-2-473.89 Содержание альбома
ТП 902-2-473.89-АР Архитектурные решения
ТП 902-2-473.89-АР-1 Насосная станция сырого осадка. Общие данные
ТП 902-2-473.89-АР-2 Насосная станция сырого осадка. Спецификации. Ведомости, детали
ТП 902-2-473.89-АР-3 Насосная станция сырого осадка. Фасады 1-2,2-1,А-Б. План на отм. 0.000. Узел А
ТП 902-2-473.89-АР-4 Насосная станция сырого осадка. Разрезы 1-1,2-2,3-3. План подземной части
ТП 902-2-473.89-КЖ Конструкции железобетонные
ТП 902-2-473.89-КЖ-1 Насосная станция сырого осадка. Общие данные
ТП 902-2-473.89-КЖ-2 Насосная станция сырого осадка. Схема расположения стеновых панелей
ТП 902-2-473.89-КЖ-3 Насосная станция сырого осадка. Схема расположения стеновых панелей. Узлы 1-7
ТП 902-2-473.89-КЖ-4 Насосная станция сырого осадка. Днище, опалубочный чертеж, план, сечения
ТП 902-2-473.89-КЖ-5 Насосная станция сырого осадка. Днище, армирование, планы, сечение 1-1
ТП 902-2-473.89-КЖ-6 Насосная станция сырого осадка. Днище, армирование, сечения 2-2÷4-4, узел 1
ТП 902-2-473.89-КЖ-7 Насосная станция сырого осадка. Монолитные участки УМ1-УМ4. Армирование, план, сечения
ТП 902-2-473.89-КЖ-8 Насосная станция сырого осадка. Обвязочный пояс ОПм1. Армирование, план, сечения 1-1÷5-5
ТП 902-2-473.89-КЖ-9 Насосная станция сырого осадка. Схема покрытия на отм. 6.400 и перекрытий на отм. 0.000 и 2.250
ТП 902-2-473.89-КЖ-10 Насосная станция сырого осадка. Схема расположения фундаментов ФОМ-1÷ФОМ-3 и труб электрокабелей
ТП 902-2-473.89-КЖ-11 Насосная станция сырого осадка. Помещение щитов. Схемы расположения кирпичных стен, рамок, щитов
ТП 902-2-473.89-КЖИ Прилагаемые материалы
ТП 902-2-473.89-КЖИ.01.000 Панель стеновая ПС1-42-Б2а. Лист 1
ТП 902-2-473.89-КЖИ.01.000 Панель стеновая ПС1-42-Б2а. Лист 2
ТП 902-2-473.89-КЖИ.00.001 Каркас плоский КР11
ТП 902-2-473.89-КЖИ.00.002 Каркас плоский КР12
ТП 902-2-473.89-КЖИ.00.003 Сетка 3
ТП 902-2-473.89-КЖИ.00.004 Сетка 4
ТП 902-2-473.89-КЖИ.00.005 Сетка 6
ТП 902-2-473.89-КЖИ.00.006 Сетка 5
ТП 902-2-473.89-КЖИ.00.007 Изделие закладное МН12
ТП 902-2-473.89-КЖИ.00.008 Изделие закладное МЗ-1
ТП 902-2-473.89-КЖИ.00.009 Изделие закладное МН10
ТП 902-2-473.89-КЖИ.00.010 Изделие закладное МН11
ТП 902-2-473.89-КЖИ.00.011 Рама Р1
ТП 902-2-473.89-КЖИ.00.012 Рама Р2
ТП 902-2-473.89-КЖИ.00.014 Щит деревянный ЩД1
ТП 902-2-473.89-КЖИ.00.015 Щит деревянный ЩД2
ТП 902-2-473.89-КЖИ.00.015 Щит деревянный ЩД3
ТП 902-2-473.89-КМ Конструкции металлические КМ
ТП 902-2-473.89-КМ-1 Насосная станция сырого осадка. Общие данные (начало)
ТП 902-2-473.89-КМ-2 Насосная станция сырого осадка. Общие данные (окончание)
ТП 902-2-473.89-КМ-3 Насосная станция сырого осадка. Схема расположения путей подвесного транспорта на отм. 4.300
ТП 902-2-473.89-КМ-4 Насосная станция сырого осадка. Схема расположения монорельса на отм. -0.780
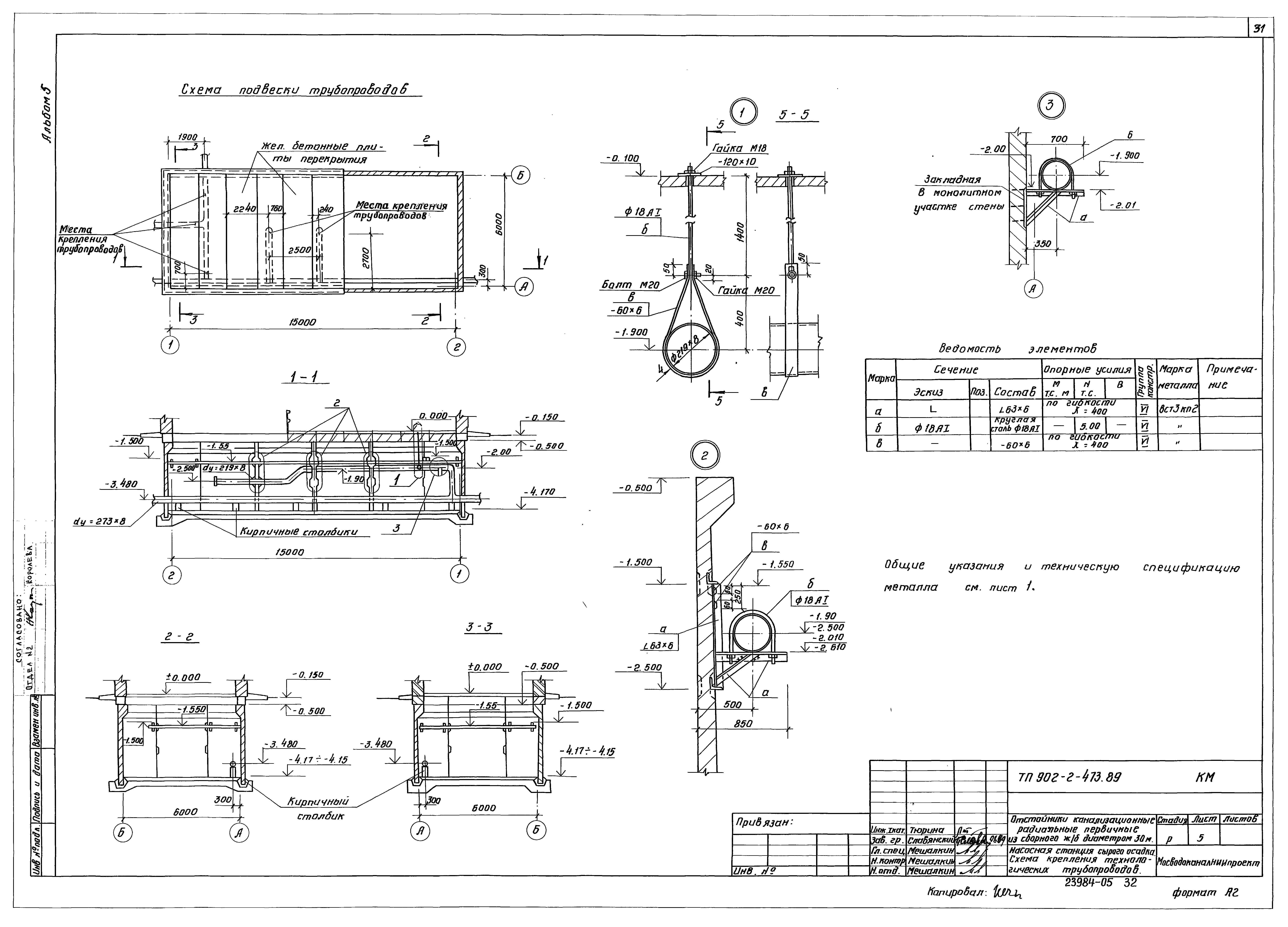
ТП 902-2-473.89-КМ-5 Насосная станция сырого осадка. Схема крепления технологических трубопроводов
ТП 902-2-473.89-КМ-6 Насосная станция сырого осадка. Схема расположения лестниц и площадок на отм. 0.000;-1.800
Разработан: МосводоканалНИИпроект
Утверждён:18.08.1989 Мосгорисполком (Mosgorispolkom 1583)
Расположен в:Техническая документация Строительство Справочные документы Типовые строительные конструкции, изделия и узлы Общероссийский строительный каталог Промышленные предприятия, здания и сооружения Здания и сооружения санитарно-технические Канализация Сооружения механической очистки Отстойники Отстойники радиальные первичные
Типовой проект 902-2-473.89Типовой проект 902-2-473.89Типовой проект 902-2-473.89Типовой проект 902-2-473.89Типовой проект 902-2-473.89Типовой проект 902-2-473.89Типовой проект 902-2-473.89Типовой проект 902-2-473.89Типовой проект 902-2-473.89Типовой проект 902-2-473.89Типовой проект 902-2-473.89Типовой проект 902-2-473.89Типовой проект 902-2-473.89Типовой проект 902-2-473.89Типовой проект 902-2-473.89Типовой проект 902-2-473.89Типовой проект 902-2-473.89Типовой проект 902-2-473.89Типовой проект 902-2-473.89Типовой проект 902-2-473.89Типовой проект 902-2-473.89Типовой проект 902-2-473.89Типовой проект 902-2-473.89Типовой проект 902-2-473.89Типовой проект 902-2-473.89Типовой проект 902-2-473.89Типовой проект 902-2-473.89Типовой проект 902-2-473.89Типовой проект 902-2-473.89Типовой проект 902-2-473.89Типовой проект 902-2-473.89Типовой проект 902-2-473.89Типовой проект 902-2-473.89

© 2013 Ёшкин Кот :-) Карта сайта