Информационная система
«Ёшкин Кот»

Скачать базу одним архивом
Скачать обновления
История создания базы
Карта сайта

Скачать Типовой проект 902-2-473.89 Альбом 3. Отстойники. Конструкции железобетонные. Конструкции металлические

Дата актуализации: 10.08.2017

Типовой проект 902-2-473.89

Альбом 3. Отстойники. Конструкции железобетонные. Конструкции металлические

Обозначение: Типовой проект 902-2-473.89
Обозначение англ: 902-2-473.89
Статус:не определен законодательством
Название рус.:Альбом 3. Отстойники. Конструкции железобетонные. Конструкции металлические
Дата добавления в базу:01.09.2013
Дата актуализации:05.05.2017
Дата введения:06.09.1989
Оглавление:ТП 902-2-473.89 Титульный лист
ТП 902-2-473.89 Содержание альбома
ТП 902-2-473.89-КЖ Конструкции железобетонные КЖ
ТП 902-2-473.89-КЖ-1 Общие данные
ТП 902-2-473.89-КЖ-2 План группы отстойников и коммуникации
ТП 902-2-473.89-КЖ-3 Отстойник. План 1-1. Сечения 2-2;3-3
ТП 902-2-473.89-КЖ-4 Отстойник. Центральная часть. Сечения 4-4÷8-8. Узел 1
ТП 902-2-473.89-КЖ-5 Отстойник. Спецификация центральной части и днища. Ведомости
ТП 902-2-473.89-КЖ-6 Отстойник. Днище. Армирование. Планы. Сечения 1-1,2-2. Узел 1
ТП 902-2-473.89-КЖ-7 Отстойник. Центральная часть. Армирование. Сечения 3-3÷8-8. Узел 1
ТП 902-2-473.89-КЖ-8 Отстойник. Центральная часть. Сечения 10-10÷13-13
ТП 902-2-473.89-КЖ-9 Отстойник. Схема расположения стеновых панелей. Узлы 1;2. Сечения 1-1;2-2
ТП 902-2-473.89-КЖ-10 Отстойник. Узлы 3,4,А
ТП 902-2-473.89-КЖ-11 Отстойник. Схема расположения лотков
ТП 902-2-473.89-КЖ-12 Отстойник. Сечения 1-1;5-5. Узел 1
ТП 902-2-473.89-КЖ-13 Отстойник. Выпускная камера. Сечения 1-1,6-6
ТП 902-2-473.89-КЖ-14 Отстойник. Выпускная камера. Армирование. Сечения 6-6÷11-11
ТП 902-2-473.89-КЖ-15 Отстойник. Борт отстойника. Выпускная камера. Армирование
ТП 902-2-473.89-КЖ-16 Распределительная чаша. Планы 1-1,2-2,5-5. Сечения 3-3,4-4,6-6
ТП 902-2-473.89-КЖ-17 Распределительная чаша. Армирование. Сечения 1-1,4-4
ТП 902-2-473.89-КЖ-18 Распределительная чаша. Армирование. Сечения 5-5÷11-11
ТП 902-2-473.89-КЖ-19 Жиросборник Ж1,Ж2. Планы. Сечения
ТП 902-2-473.89-КЖ-20 Жиросборник Ж1,Ж2. Армирование. Планы. Сечения
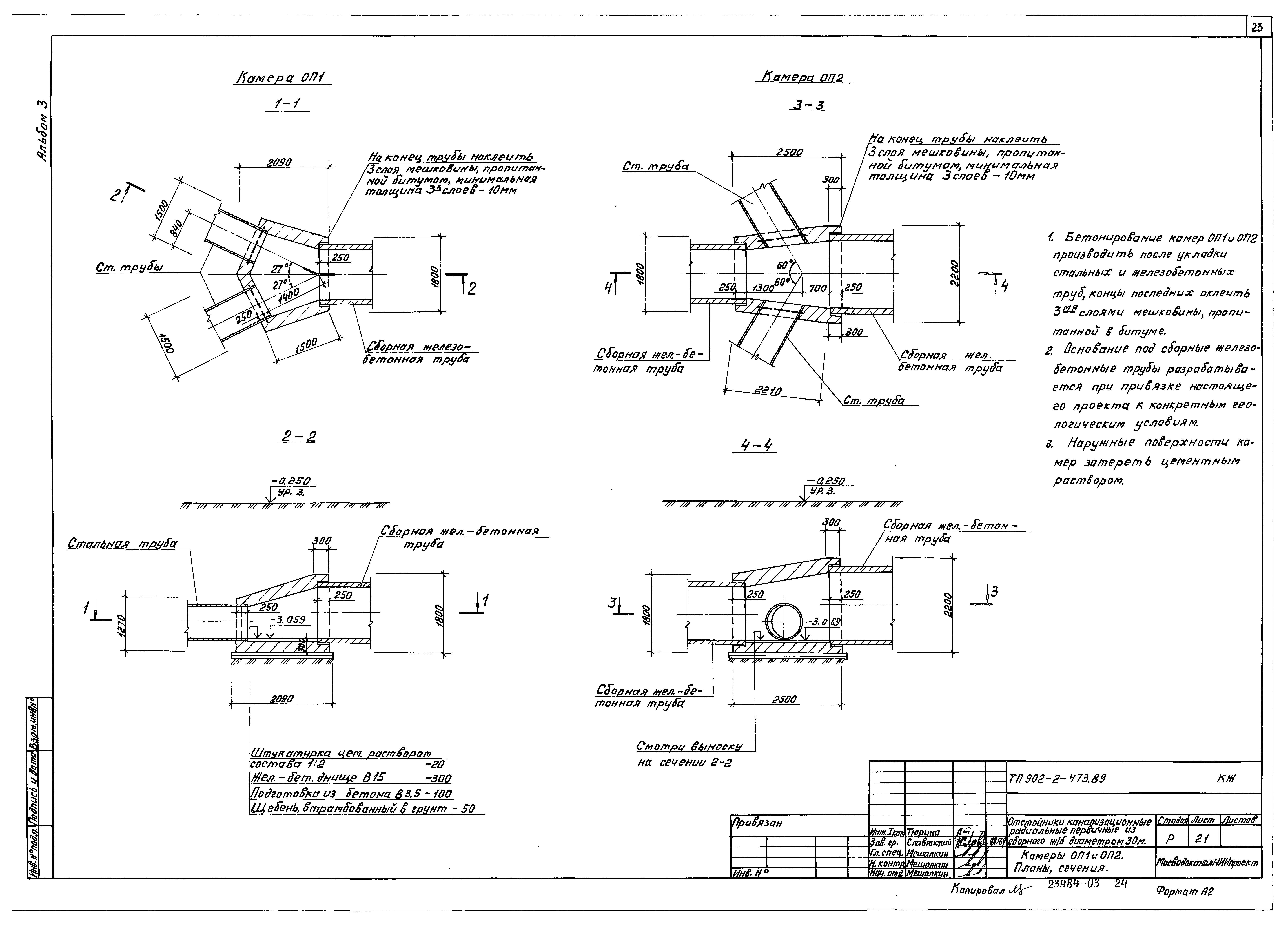
ТП 902-2-473.89-КЖ-21 Камеры ОП1 и ОП2. Планы. Сечения
ТП 902-2-473.89-КЖ-22 Камеры ОП1. Армирование. Планы. Сечения
ТП 902-2-473.89-КЖ-23 Камеры ОП2. Армирование. Планы. Сечения
ТП 902-2-473.89-КМ Конструкции металлические КМ
ТП 902-2-473.89-КМ-1 Общие данные (начало)
ТП 902-2-473.89-КМ-2 Общие данные (окончание)
ТП 902-2-473.89-КМ-3 Схема расположения ригелей отстойника
ТП 902-2-473.89-КМ-4 Схема расположения ригелей лестницы и ограждений распределительной чаши
Разработан: МосводоканалНИИпроект
Утверждён:18.08.1989 Мосгорисполком (Mosgorispolkom 1583)
Расположен в:Техническая документация Строительство Справочные документы Типовые строительные конструкции, изделия и узлы Общероссийский строительный каталог Промышленные предприятия, здания и сооружения Здания и сооружения санитарно-технические Канализация Сооружения механической очистки Отстойники Отстойники радиальные первичные
Типовой проект 902-2-473.89Типовой проект 902-2-473.89Типовой проект 902-2-473.89Типовой проект 902-2-473.89Типовой проект 902-2-473.89Типовой проект 902-2-473.89Типовой проект 902-2-473.89Типовой проект 902-2-473.89Типовой проект 902-2-473.89Типовой проект 902-2-473.89Типовой проект 902-2-473.89Типовой проект 902-2-473.89Типовой проект 902-2-473.89Типовой проект 902-2-473.89Типовой проект 902-2-473.89Типовой проект 902-2-473.89Типовой проект 902-2-473.89Типовой проект 902-2-473.89Типовой проект 902-2-473.89Типовой проект 902-2-473.89Типовой проект 902-2-473.89Типовой проект 902-2-473.89Типовой проект 902-2-473.89Типовой проект 902-2-473.89Типовой проект 902-2-473.89Типовой проект 902-2-473.89Типовой проект 902-2-473.89Типовой проект 902-2-473.89Типовой проект 902-2-473.89Типовой проект 902-2-473.89

© 2013 Ёшкин Кот :-) Карта сайта