Информационная система
«Ёшкин Кот»

Скачать базу одним архивом
Скачать обновления
История создания базы
Карта сайта

Скачать Типовой проект 902-2-473.89 Альбом 2. Технологические решения. Отопление и вентиляция. Внутренний водопровод и канализация

Дата актуализации: 10.08.2017

Типовой проект 902-2-473.89

Альбом 2. Технологические решения. Отопление и вентиляция. Внутренний водопровод и канализация

Обозначение: Типовой проект 902-2-473.89
Обозначение англ: 902-2-473.89
Статус:не определен законодательством
Название рус.:Альбом 2. Технологические решения. Отопление и вентиляция. Внутренний водопровод и канализация
Дата добавления в базу:01.09.2013
Дата актуализации:05.05.2017
Дата введения:06.09.1989
Оглавление:ТП 902-2-473.89 Содержание альбома
ТП 902-2-473.89-ТХ Технологические решения
ТП 902-2-473.89-ТХ-1 Общие данные
ТП 902-2-473.89-ТХ-2 План группы отстойников М1:200
ТП 902-2-473.89-ТХ-3 Отстойник №1. План. Разрезы М1:100
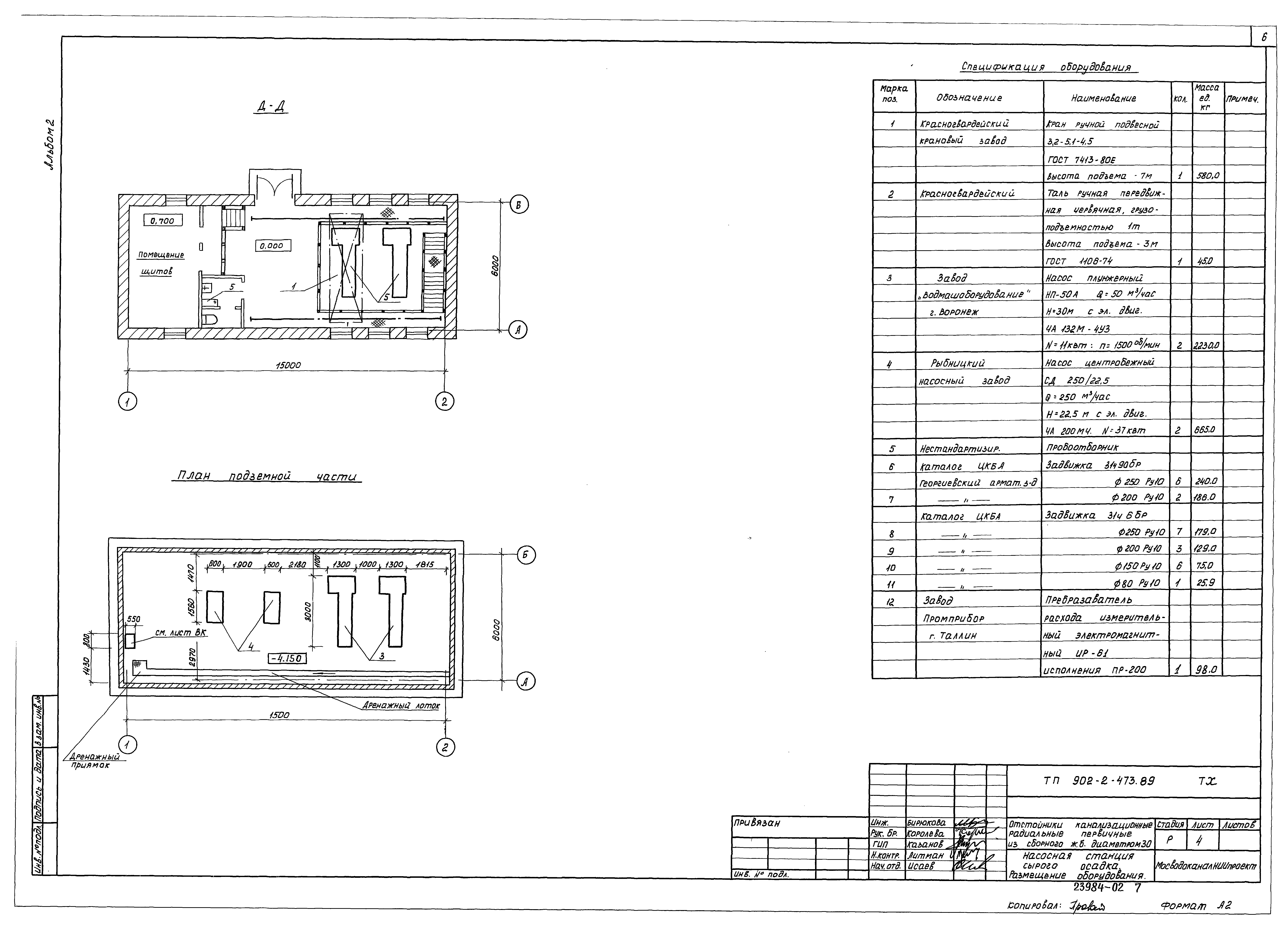
ТП 902-2-473.89-ТХ-4 Насосная станция сырого осадка. Планы размещения оборудования
ТП 902-2-473.89-ТХ-5 Насосная станция сырого осадка. Планы. Разрезы
ТП 902-2-473.89-ТХ-6 Насосная станция сырого осадка. Технологическая схема
ТП 902-2-473.89-ТХ-7 Распределительная чаша. Планы и разрезы М1:50
ТП 902-2-473.89-ТХ-8 Жиросборник. Планы и разрезы М1:50
ТП 902-2-473.89-ТХ-9 Профили подводящих трубопроводов М1:100
ТП 902-2-473.89-ТХ-10 Профили отводящих трубопроводов М1:100
ТП 902-2-473.89-ТХ-11 Профили всасывающих трубопроводов сырого осадка от отстойников №1 и №4 М1:100
ТП 902-2-473.89-ТХ-12 Профили всасывающих трубопроводов сырого осадка от отстойников №2 и №3 М1:100
ТП 902-2-473.89-ТХ-13 Профили жиропроводов, трубопровода промывных вод и трубопровода опорожнения
ТП 902-2-473.89-ОВ Отопление и вентиляция
ТП 902-2-473.89-ОВ-1 Насосная станция сырого осадка. Общие данные
ТП 902-2-473.89-ОВ-2 Насосная станция. Отопление и вентиляция. Планы на отм. -4.200 и 0.000. Схема системы отопления
ТП 902-2-473.89-ОВ-3 Насосная станция. Венткамера. План. Разрез 1-1. Спецификация отопительно-вентиляционной установки
ТП 902-2-473.89-ОВ-4 Насосная станция. Узел управления. Спецификация. Схема системы теплоснабжения установки П1. Схемы системы П1,ВЕ2,ВЕ1
ТП 902-2-473.89-ОВН1 Переходы утепленные
ТП 902-2-473.89-ОВН2 Переход неутепленный
ТП 902-2-473.89-ОВН3 Сетка в рамке
ТП 902-2-473.89-ВК Внутренние водопровод и канализация
ТП 902-2-473.89-ВК-2 Общие данные
ТП 902-2-473.89-ВК-3 Насосная станция сырого осадка. Внутренний водопровод и канализация. Планы и схемы системы
Разработан: МосводоканалНИИпроект
Утверждён:18.08.1989 Мосгорисполком (Mosgorispolkom 1583)
Расположен в:Техническая документация Строительство Справочные документы Типовые строительные конструкции, изделия и узлы Общероссийский строительный каталог Промышленные предприятия, здания и сооружения Здания и сооружения санитарно-технические Канализация Сооружения механической очистки Отстойники Отстойники радиальные первичные
Типовой проект 902-2-473.89Типовой проект 902-2-473.89Типовой проект 902-2-473.89Типовой проект 902-2-473.89Типовой проект 902-2-473.89Типовой проект 902-2-473.89Типовой проект 902-2-473.89Типовой проект 902-2-473.89Типовой проект 902-2-473.89Типовой проект 902-2-473.89Типовой проект 902-2-473.89Типовой проект 902-2-473.89Типовой проект 902-2-473.89Типовой проект 902-2-473.89Типовой проект 902-2-473.89Типовой проект 902-2-473.89Типовой проект 902-2-473.89Типовой проект 902-2-473.89Типовой проект 902-2-473.89Типовой проект 902-2-473.89Типовой проект 902-2-473.89Типовой проект 902-2-473.89Типовой проект 902-2-473.89Типовой проект 902-2-473.89

© 2013 Ёшкин Кот :-) Карта сайта