Информационная система
«Ёшкин Кот»

Скачать базу одним архивом
Скачать обновления
История создания базы
Карта сайта

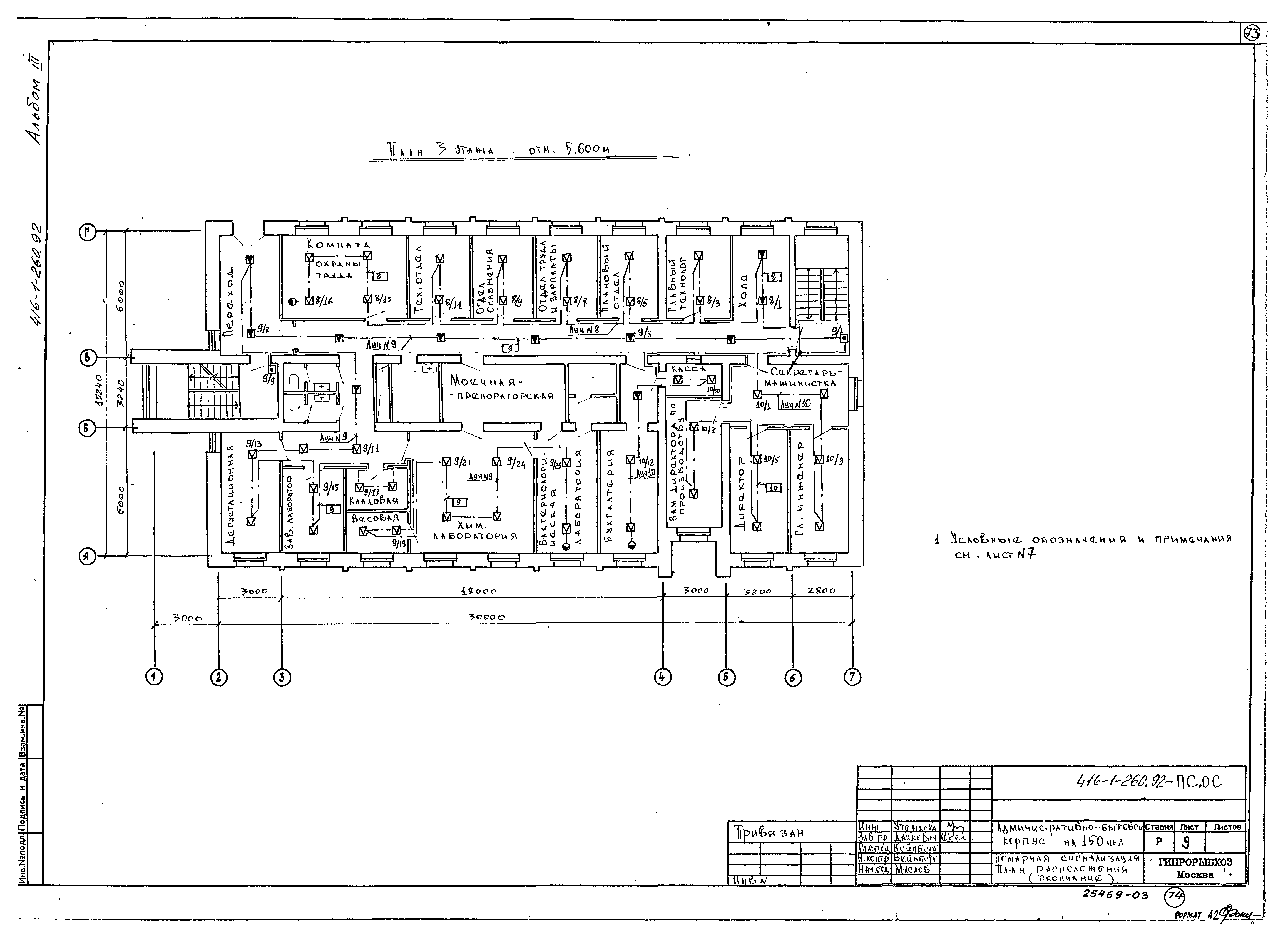
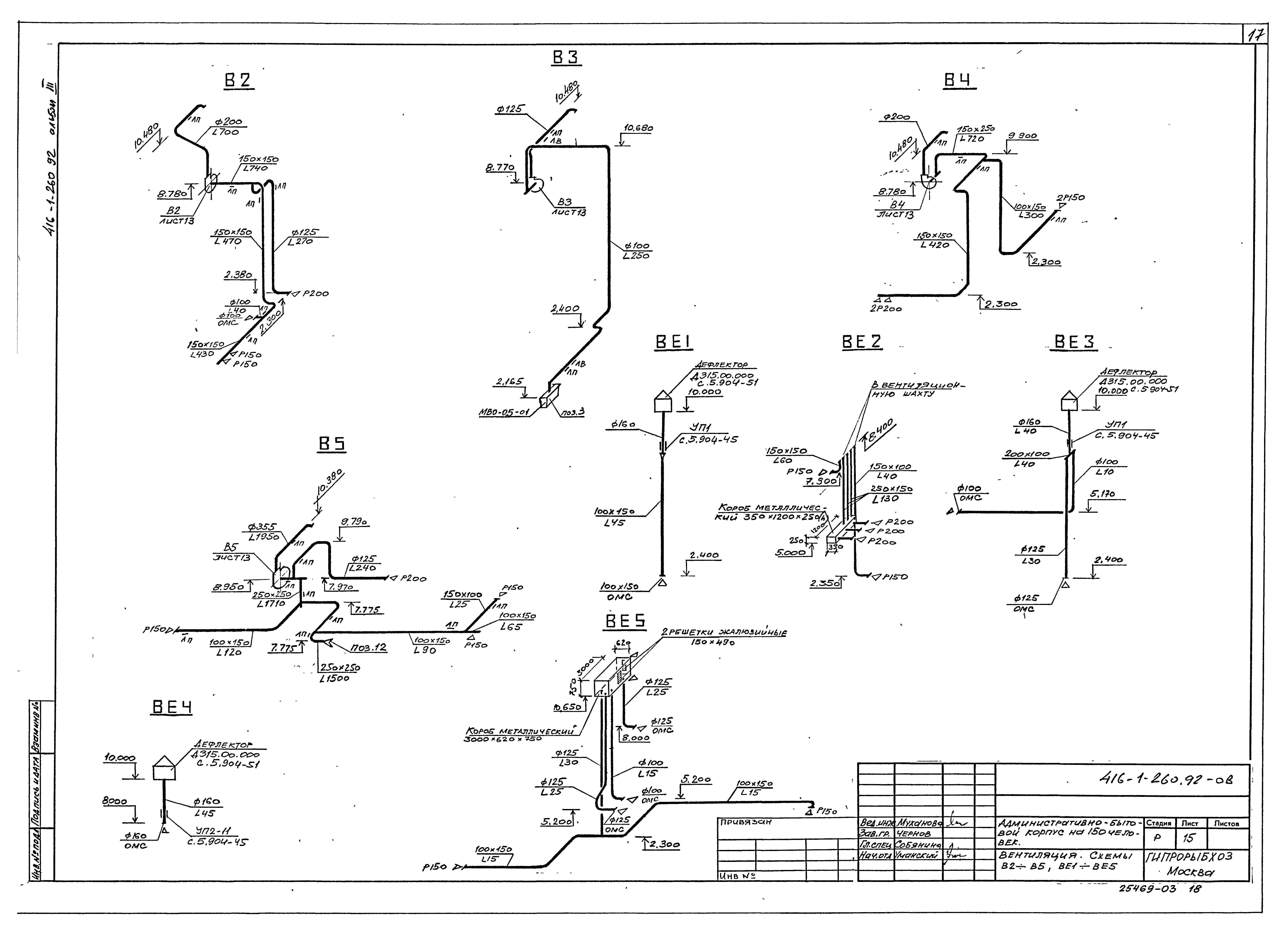
Скачать Типовой проект 416-1-260.92 Альбом III. Отопление и вентиляция. Внутренний водопровод и канализация. Силовое электрооборудование. Электрическое освещение. Автоматизация. Связь и сигнализация. Пожарная и охранная сигнализация

Дата актуализации: 10.08.2017

Типовой проект 416-1-260.92

Альбом III. Отопление и вентиляция. Внутренний водопровод и канализация. Силовое электрооборудование. Электрическое освещение. Автоматизация. Связь и сигнализация. Пожарная и охранная сигнализация

Обозначение: Типовой проект 416-1-260.92
Обозначение англ: 416-1-260.92
Статус:не определен законодательством
Название рус.:Альбом III. Отопление и вентиляция. Внутренний водопровод и канализация. Силовое электрооборудование. Электрическое освещение. Автоматизация. Связь и сигнализация. Пожарная и охранная сигнализация
Дата добавления в базу:01.09.2013
Дата актуализации:05.05.2017
Дата введения:03.01.1993
Разработан: ЦНИИпромзданий
Утверждён:11.08.1992 ЦНИИ промзданий (TsNII promzdaniy 63)
Расположен в:Техническая документация Строительство Справочные документы Типовые строительные конструкции, изделия и узлы Общероссийский строительный каталог Промышленные предприятия, здания и сооружения Предприятия, здания и сооружения промышленности и электроэнергетики Ремонтные предприятия. Административно-бытовые, производственные и вспомогательные здания и сооружения промышленных предприятий Здания административно-бытовые, заводоуправления и конторы
Типовой проект 416-1-260.92Типовой проект 416-1-260.92Типовой проект 416-1-260.92Типовой проект 416-1-260.92Типовой проект 416-1-260.92Типовой проект 416-1-260.92Типовой проект 416-1-260.92Типовой проект 416-1-260.92Типовой проект 416-1-260.92Типовой проект 416-1-260.92Типовой проект 416-1-260.92Типовой проект 416-1-260.92Типовой проект 416-1-260.92Типовой проект 416-1-260.92Типовой проект 416-1-260.92Типовой проект 416-1-260.92Типовой проект 416-1-260.92Типовой проект 416-1-260.92Типовой проект 416-1-260.92Типовой проект 416-1-260.92Типовой проект 416-1-260.92Типовой проект 416-1-260.92Типовой проект 416-1-260.92Типовой проект 416-1-260.92Типовой проект 416-1-260.92Типовой проект 416-1-260.92Типовой проект 416-1-260.92Типовой проект 416-1-260.92Типовой проект 416-1-260.92Типовой проект 416-1-260.92Типовой проект 416-1-260.92Типовой проект 416-1-260.92Типовой проект 416-1-260.92Типовой проект 416-1-260.92Типовой проект 416-1-260.92Типовой проект 416-1-260.92Типовой проект 416-1-260.92Типовой проект 416-1-260.92Типовой проект 416-1-260.92Типовой проект 416-1-260.92Типовой проект 416-1-260.92Типовой проект 416-1-260.92Типовой проект 416-1-260.92Типовой проект 416-1-260.92Типовой проект 416-1-260.92Типовой проект 416-1-260.92Типовой проект 416-1-260.92Типовой проект 416-1-260.92Типовой проект 416-1-260.92Типовой проект 416-1-260.92Типовой проект 416-1-260.92Типовой проект 416-1-260.92Типовой проект 416-1-260.92Типовой проект 416-1-260.92Типовой проект 416-1-260.92Типовой проект 416-1-260.92Типовой проект 416-1-260.92Типовой проект 416-1-260.92Типовой проект 416-1-260.92Типовой проект 416-1-260.92Типовой проект 416-1-260.92Типовой проект 416-1-260.92Типовой проект 416-1-260.92Типовой проект 416-1-260.92Типовой проект 416-1-260.92Типовой проект 416-1-260.92Типовой проект 416-1-260.92Типовой проект 416-1-260.92Типовой проект 416-1-260.92Типовой проект 416-1-260.92Типовой проект 416-1-260.92Типовой проект 416-1-260.92Типовой проект 416-1-260.92Типовой проект 416-1-260.92

© 2013 Ёшкин Кот :-) Карта сайта