| ||||||||||||||||||||||||||||
Скачать Серия ПК-01-99 Выпуск II. Плиты размером 1,5х12 м со стержневой арматурой. Рабочие чертежиДата актуализации: 10.08.2017
|
| Обозначение: | Серия ПК-01-99 |
| Обозначение англ: | Series ПК-01-99 |
| Статус: | не действует |
| Название рус.: | Выпуск II. Плиты размером 1,5х12 м со стержневой арматурой. Рабочие чертежи |
| Дата добавления в базу: | 01.09.2013 |
| Дата актуализации: | 05.05.2017 |
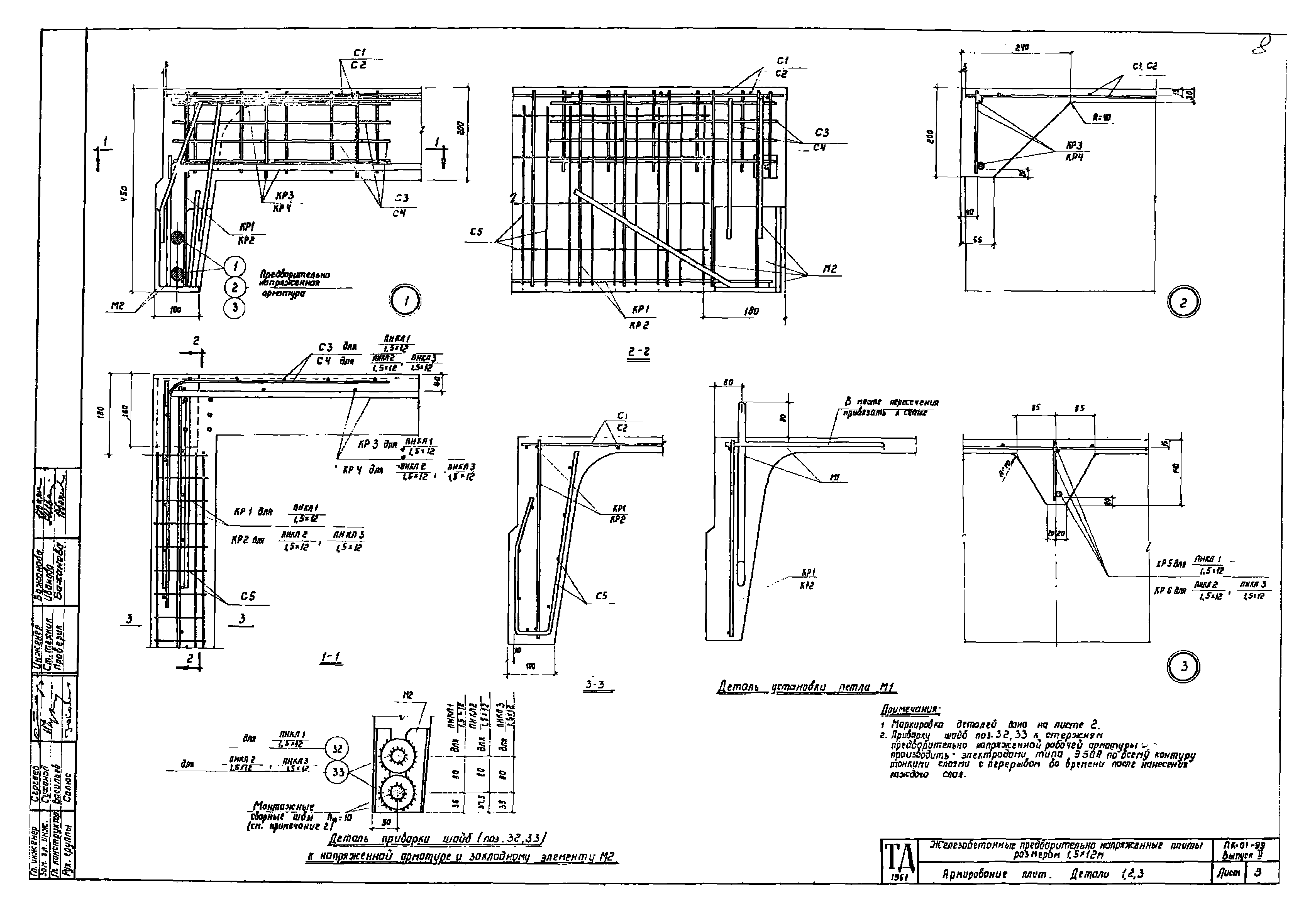
| Оглавление: | ПК-01-99 Пояснительная записка ПК-01-99 Опалубочный чертеж плит и технико-экономические показатели ПК-01-99 Армирование плит. Разрезы и детали ПК-01-99 Армирование плит. Детали 1,2,3,4 ПК-01-99 Арматурные каркасы КР1-КР4, сетки С1-С6 ПК-01-99 Закладные элементы М1,М2. Спецификация и выборка стали |
| Разработан: | НИИЖБ Гипротис Промстройпроект |
| Утверждён: | 19.08.1961 Госстрой СССР (Государственный комитет Совета Министров СССР по делам строительства) (USSR Gosstroy 12-2436) |
| Издан: | ЦИТП Госстроя СССР (CITP, Gosstroy (USSR) 1961 г. ) |
| Расположен в: | |
| Чем заменён: |










