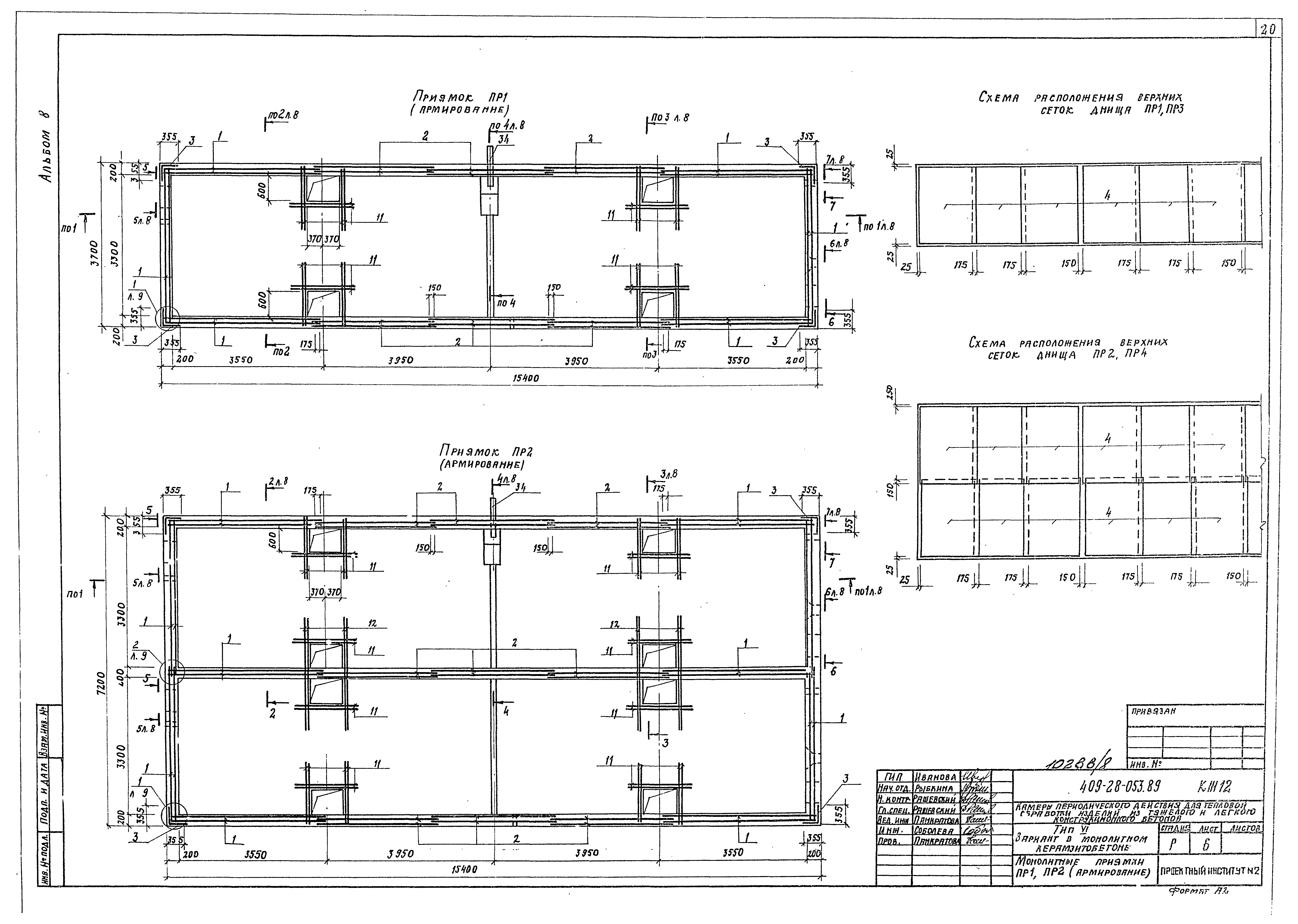
Скачать Типовые проектные решения 409-28-053.89 Альбом 8. Вариант в сборном керамзитобетоне. Вариант в монолитном керамзитобетоне. Камеры типа VI. Конструкции железобетонные. Конструкции металлическиеДата актуализации: 10.08.2017 Типовые проектные решения 409-28-053.89
Альбом 8. Вариант в сборном керамзитобетоне. Вариант в монолитном керамзитобетоне. Камеры типа VI. Конструкции железобетонные. Конструкции металлические| Обозначение: | Типовые проектные решения 409-28-053.89 | | Обозначение англ: | 409-28-053.89 | | Статус: | cправочные материалы, мп, тпр | | Название рус.: | Альбом 8. Вариант в сборном керамзитобетоне. Вариант в монолитном керамзитобетоне. Камеры типа VI. Конструкции железобетонные. Конструкции металлические | | Дата добавления в базу: | 01.09.2013 | | Дата актуализации: | 05.05.2017 | | Дата введения: | 18.08.1989 | | Разработан: | Гипростроммаш
| | Утверждён: | 18.08.1989 Гипростроммаш (109)
| | Расположен в: |
|
                               
|