Скачать Типовой проект А-II,III,IV-300-325.86 Альбом 3. Часть 1. Отопление и вентиляция. Внутренние водопровод и канализация. Электростанция дизельная. Механизация складского хозяйства. Автоматическая установка пожарной сигнализации и автоматического пожаротушенияДата актуализации: 10.08.2017 Типовой проект А-II,III,IV-300-325.86
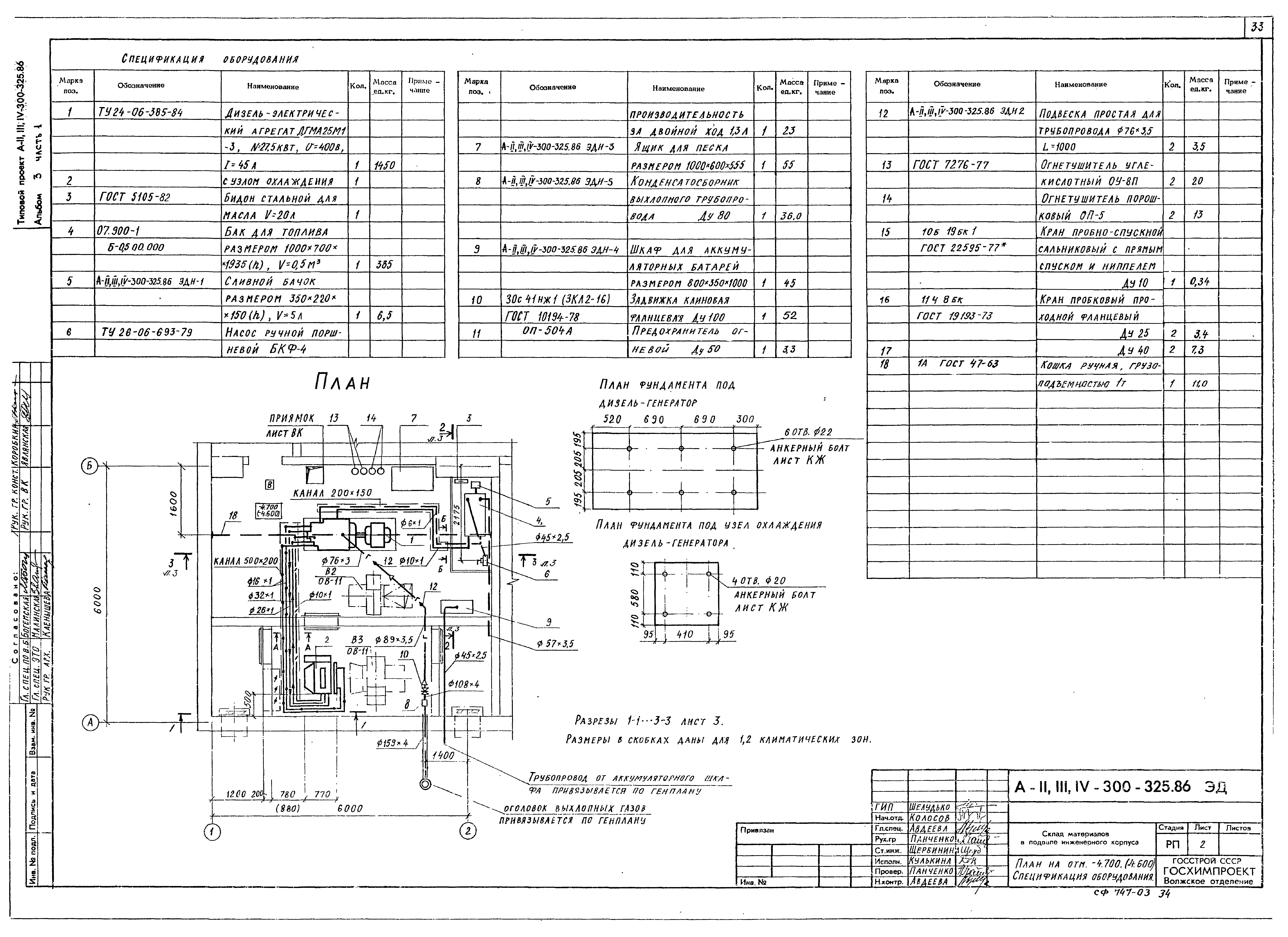
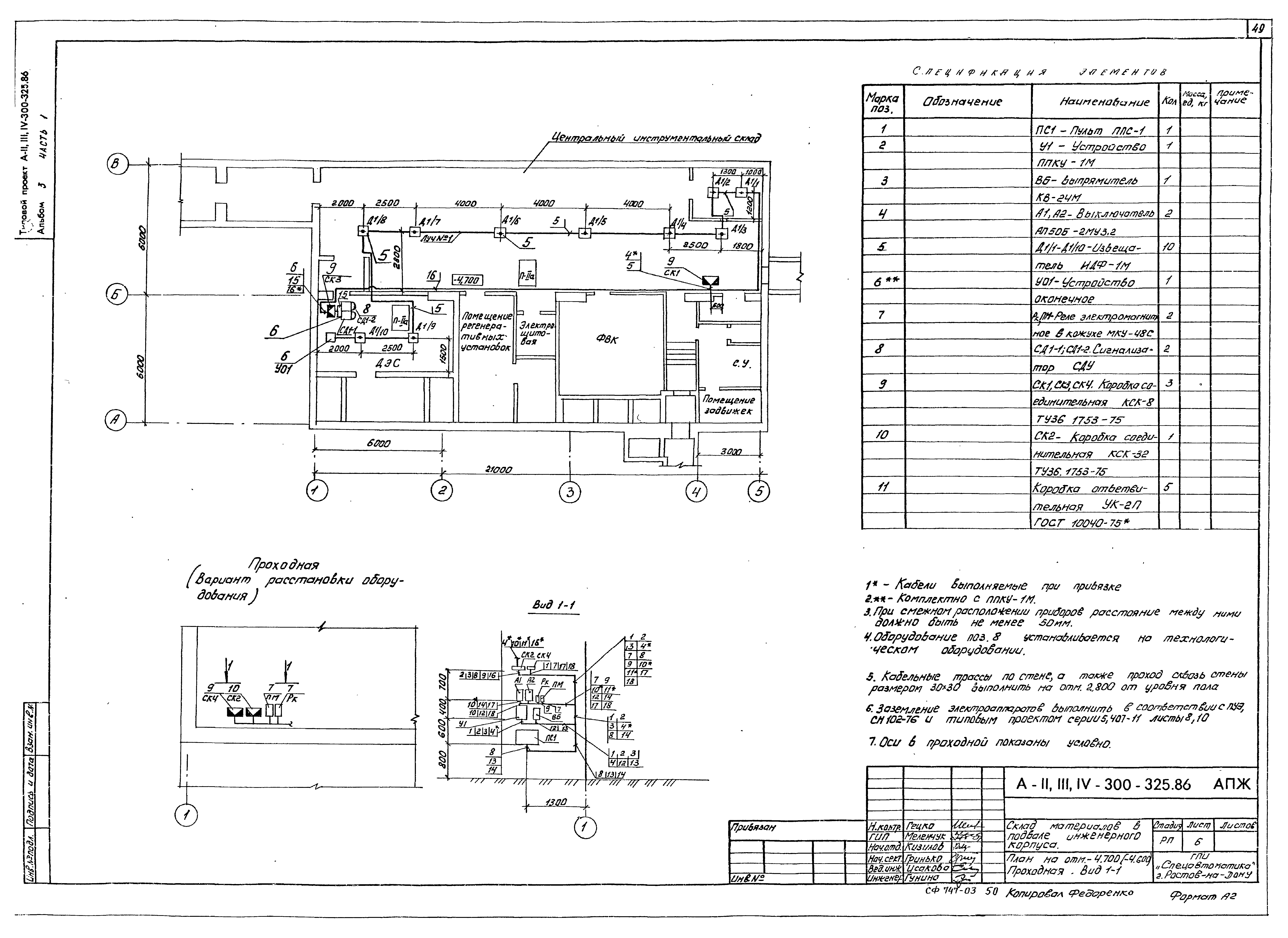
Альбом 3. Часть 1. Отопление и вентиляция. Внутренние водопровод и канализация. Электростанция дизельная. Механизация складского хозяйства. Автоматическая установка пожарной сигнализации и автоматического пожаротушенияОбозначение: | Типовой проект А-II,III,IV-300-325.86 | Обозначение англ: | А-II,III,IV-300-325.86 | Статус: | не определен законодательством | Название рус.: | Альбом 3. Часть 1. Отопление и вентиляция. Внутренние водопровод и канализация. Электростанция дизельная. Механизация складского хозяйства. Автоматическая установка пожарной сигнализации и автоматического пожаротушения | Дата добавления в базу: | 01.09.2013 | Дата актуализации: | 05.05.2017 | Дата введения: | 23.09.1986 | Оглавление: | ТП А-II,III,IV-300-325.86 Титульный лист ТП А-II,III,IV-300-325.86 Содержание альбома ТП А-II,III,IV-300-325.86-ОВ Отопление и вентиляция ТП А-II,III,IV-300-325.86-ОВ-1 Общие данные (начало) ТП А-II,III,IV-300-325.86-ОВ-2 Общие данные (продолжение) ТП А-II,III,IV-300-325.86-ОВ-3 Общие данные (продолжение) ТП А-II,III,IV-300-325.86-ОВ-4 Общие данные (продолжение) ТП А-II,III,IV-300-325.86-ОВ-5 Общие данные (продолжение) ТП А-II,III,IV-300-325.86-ОВ-6 Общие данные (продолжение) ТП А-II,III,IV-300-325.86-ОВ-7 Общие данные (окончание) ТП А-II,III,IV-300-325.86-ОВ-8 Принципиальная схема вентиляции. 1,2 климатическая зона ТП А-II,III,IV-300-325.86-ОВ-9 Принципиальная схема вентиляции. 3,4 климатическая зона ТП А-II,III,IV-300-325.86-ОВ-10 План на отм. -4.700 (-4.600) (отопление). Схема системы отопления ТП А-II,III,IV-300-325.86-ОВ-11 План на отм. -4.700 (-4.600) (вентиляция) ТП А-II,III,IV-300-325.86-ОВ-12 Схема систем П1,П2,В1. 1,2 климатическая зона ТП А-II,III,IV-300-325.86-ОВ-13 Схема систем П1,П2,В1. 34 климатическая зона ТП А-II,III,IV-300-325.86-ОВ-14 Схемы систем В2,В3,В4,ПЕ1 ТП А-II,III,IV-300-325.86-ОВ-15 Установки систем П1,П2,В1,В2,В3,ПЕ1. План. 1 и 2 климатическая зона ТП А-II,III,IV-300-325.86-ОВ-16 Установки систем П1,П2,В1,В2. Разрезы 1-1...6-6. 1 и 2 климатическая зона ТП А-II,III,IV-300-325.86-ОВ-17 Спецификация систем П1,П2,ПЕ1,В1. 1 и 2 климатическая зона ТП А-II,III,IV-300-325.86-ОВ-18 Установки систем П1,П2,В1,В2,В3,ПЕ1. План. 3 и 4 климатическая зона ТП А-II,III,IV-300-325.86-ОВ-19 Установки систем П1,В1,В2. Разрезы 1-1,5-5...7-7. 3 и 4 климатическая зона ТП А-II,III,IV-300-325.86-ОВ-20 Спецификация систем П1,В1,В3. 3 и 4 климатическая зона ТП А-II,III,IV-300-325.86-ОВ-21 Спецификация систем В2,В3 ТП А-II,III,IV-300-325.86-ОВН Эскизные чертежи общих видов нетиповых конструкций систем вентиляции ТП А-II,III,IV-300-325.86-ОВН Титульный лист ТП А-II,III,IV-300-325.86-ОВН Содержание ТП А-II,III,IV-300-325.86-ОВН1 Движок к отверстию на воздуховоде ТП А-II,III,IV-300-325.86-ОВН2 Ограждение входного патрубка вентилятора ТП А-II,III,IV-300-325.86-ОВН3 Рама фильтров ФЯР (3 ячейки) ТП А-II,III,IV-300-325.86-ОВН4 Подставка ТП А-II,III,IV-300-325.86-ОВН5 Рама фильтров ФЯР (2 ячейки) ТП А-II,III,IV-300-325.86-ОВН6 Изоляция трубопроводов шнуром теплоизоляционным ТП А-II,III,IV-300-325.86 Внутренний водопровод и канализация ТП А-II,III,IV-300-325.86-ВК-1 Общие данные ТП А-II,III,IV-300-325.86-ВК-2 План на отм. -4.700 (-4.600). 1,2 климатическая зона. Схема системы К1 ТП А-II,III,IV-300-325.86-ВК-3 План на отм. -4.700 (-4.600). 3,4 климатическая зона ТП А-II,III,IV-300-325.86-ВК-4 Схемы систем В1,К13Н ТП А-II,III,IV-300-325.86-ВК-5 Схемы систем В3,К3Н (1,2 климатическая зона). В4,В5,К3Н (3,4 климатическая зона) ТП А-II,III,IV-300-325.86-ВК-6 Чертеж-заказ бака V=3.0 м³ по серии 1/494-11 ТП А-II,III,IV-300-325.86-ЭД Электростанция дизельная ТП А-II,III,IV-300-325.86-ЭД-1 Общие данные ТП А-II,III,IV-300-325.86-ЭД-2 План на -4.700,(-4.600). Спецификация оборудования ТП А-II,III,IV-300-325.86-ЭД-3 Разрезы 1-1,2-2,3-3. Сечения А-А,Б-Б ТП А-II,III,IV-300-325.86-ЭД-4 Монтажная схема ДЭС ТП А-II,III,IV-300-325.86-ЭД-5 Установка насоса БКФ-4. Теплоизоляция трубопроводов ТП А-II,III,IV-300-325.86-ЭДН Эскизные чертежи общих видов нетиповых конструкций электростанции дизельной ТП А-II,III,IV-300-325.86-ЭДН Титульный лист ТП А-II,III,IV-300-325.86-ЭДН Содержание ТП А-II,III,IV-300-325.86-ЭДН1 Бачок сливной ТП А-II,III,IV-300-325.86-ЭДН2 Подвеска простая для трубопровода ТП А-II,III,IV-300-325.86-ЭДН3 Ящик для песка ТП А-II,III,IV-300-325.86-ЭДН4 Шкаф для аккумуляторных батарей ТП А-II,III,IV-300-325.86-ЭДН5 Конденсатосборник выхлопного трубопровода ТП А-II,III,IV-300-325.86-ТХ Механизация складского хозяйства ТП А-II,III,IV-300-325.86-ТХ-1 Общие данные ТП А-II,III,IV-300-325.86-ТХ-2 План на отм. -4.700 (-4.600) ТП А-II,III,IV-300-325.86-ТХ-3 Установка лифта грузового выжимного 500/0.5. Данные для заказа лифта ТП А-II,III,IV-300-325.86-ТХ-4 Настил ТП А-II,III,IV-300-325.86-ТХ-5 Настил ТП А-II,III,IV-300-325.86-АПЖ Автоматическая установка пожарной сигнализации и автоматического пожаротушения ТП А-II,III,IV-300-325.86-АПЖ-1 Общие данные ТП А-II,III,IV-300-325.86-АПЖ-2 План на отм. -4.700(-4.600). Разрез 1-1. Узел 1. Сечение 2-2 ТП А-II,III,IV-300-325.86-АПЖ-3 Схема электрическая принципиальная включения устройства У1. Схема электрическая подключений (начало) ТП А-II,III,IV-300-325.86-АПЖ-4 Схема электрическая принципиальная включения приемной станции ПС1. Схема электрическая подключений (продолжение) ТП А-II,III,IV-300-325.86-АПЖ-5 Схема электрическая принципиальная АВР. Схема электрическая подключений (окончание). Кабельный журнал ТП А-II,III,IV-300-325.86-АПЖ-6 План на отм. -4.700(-4.600). Проходная. Вид 1-1 ТП А-II,III,IV-300-325.86-АПЖ Эскизные чертежи общих видов нетиповых конструкций автоматической установки пожарной сигнализации и автоматического пожаротушения ТП А-II,III,IV-300-325.86-АПЖИ1-00-СБ Кронштейн для установки пульта ППС-1 ТП А-II,III,IV-300-325.86-АПЖИ2-00 Установка извещателя ИДФ-1М | Разработан: | Госхимпроект
| Утверждён: | 19.08.1986 Госстрой СССР (Государственный комитет Совета Министров СССР по делам строительства) (USSR Gosstroy 42)
| Расположен в: |
|
                                                 
|