Информационная система
«Ёшкин Кот»

Скачать базу одним архивом
Скачать обновления
История создания базы
Карта сайта

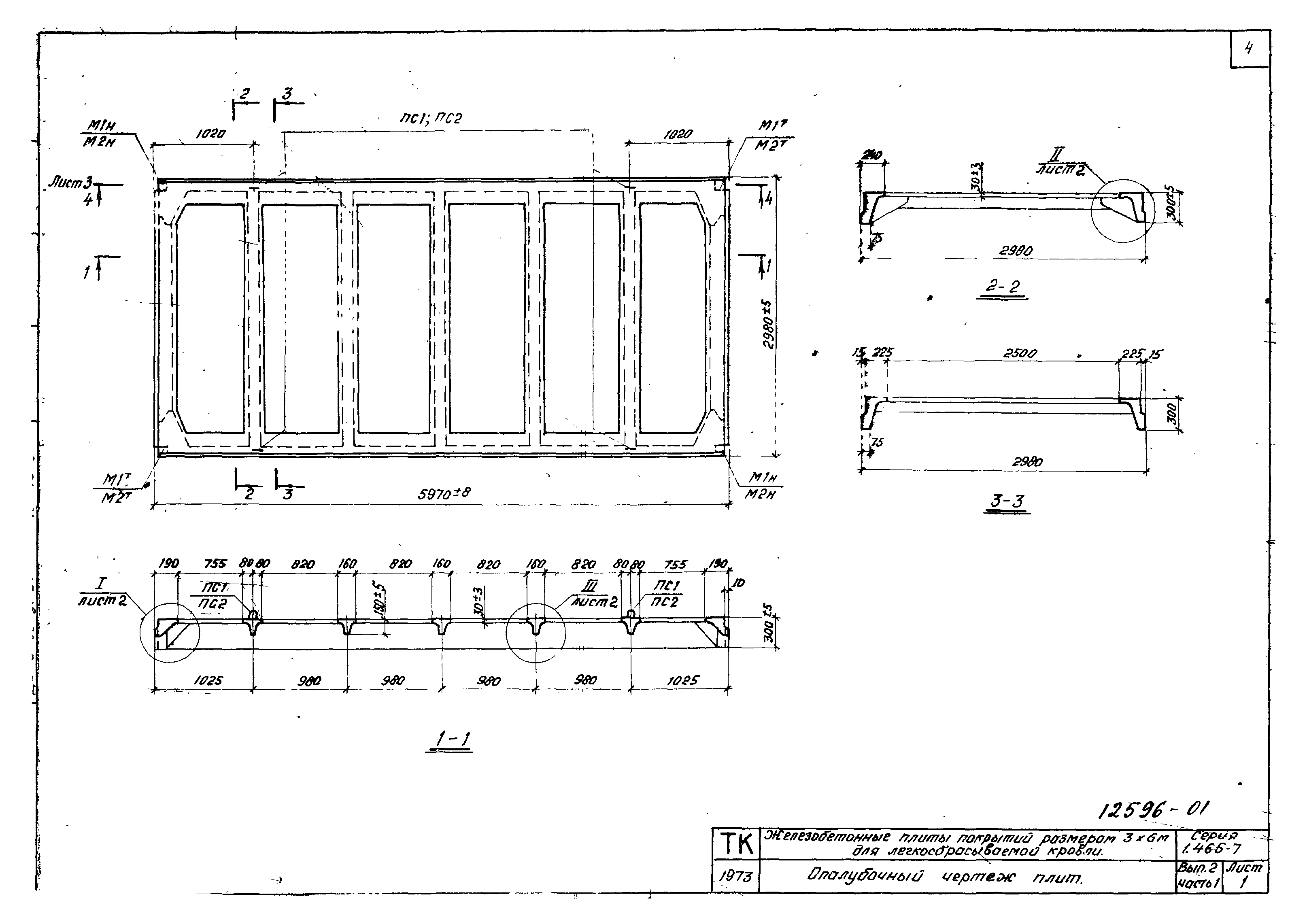
Скачать Серия 1.465-7 Выпуск 2. Часть 1. Рабочие чертежи плит размером 3х6 м для легкосбрасываемой кровли

Дата актуализации: 10.08.2017

Серия 1.465-7

Выпуск 2. Часть 1. Рабочие чертежи плит размером 3х6 м для легкосбрасываемой кровли

Обозначение: Серия 1.465-7
Обозначение англ: Series 1.465-7
Статус:не действует
Название рус.:Выпуск 2. Часть 1. Рабочие чертежи плит размером 3х6 м для легкосбрасываемой кровли
Дата добавления в базу:01.09.2013
Дата актуализации:05.05.2017
Дата введения:01.01.1973
Дата окончания срока действия:01.05.1978
Разработан: ЦНИИпромзданий
НИИЖБ
Утверждён:27.08.1973 Госстрой СССР (Государственный комитет Совета Министров СССР по делам строительства) (USSR Gosstroy 174)
Расположен в:Техническая документация Строительство Справочные документы Типовые строительные конструкции, изделия и узлы Общероссийский строительный каталог Строительные конструкции, изделия и узлы зданий и сооружений для всех видов строительства Конструкции, изделия и узлы зданий Ограждающие конструкции Покрытия Сборные железобетонные плиты и панели
Чем заменён:
Серия 1.465-7Серия 1.465-7Серия 1.465-7Серия 1.465-7Серия 1.465-7Серия 1.465-7Серия 1.465-7Серия 1.465-7Серия 1.465-7Серия 1.465-7Серия 1.465-7Серия 1.465-7Серия 1.465-7Серия 1.465-7Серия 1.465-7Серия 1.465-7Серия 1.465-7Серия 1.465-7Серия 1.465-7Серия 1.465-7Серия 1.465-7Серия 1.465-7Серия 1.465-7Серия 1.465-7Серия 1.465-7Серия 1.465-7Серия 1.465-7Серия 1.465-7Серия 1.465-7

© 2013 Ёшкин Кот :-) Карта сайта